ᐅ Grundrissplanung 175m² Einfamilienhaus mit 3 Kindern
Erstellt am: 15.12.2020 13:22
Ruksson 15.12.2020 13:22
Hallo zusammen,
aktuell planen meine Frau und auf einem 600m² großen Grundstück ein Einfamilienhaus und sind aktuell mit dem Architekten zugange, um einen Entwurf für einen Bauantrag fertigzustellen.
Bebauungsplan/Einschränkungen
Größe des Grundstücks: ziemlich genau 600m²
Hang: Nein
Grundflächenzahl: 0,3
Geschossflächenzahl: 0,4
Baufenster, Baulinie und -grenze: offene Bauweise, Baugrenze
Randbebauung: -
Anzahl Stellplatz: -
Geschossigkeit: -
Dachform: -
Stilrichtung: -
Ausrichtung: -
Maximale Höhen/Begrenzungen: -
weitere Vorgaben: -
Anforderungen der Bauherren
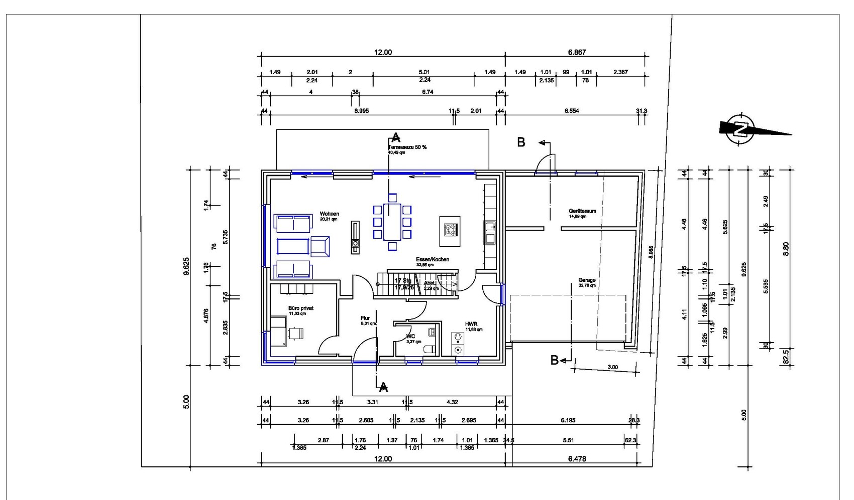
Stilrichtung, Dachform, Gebäudetyp: modern, hell und offen, Satteldach flache Dachziegel, ohne dachüberstand, leicht rechteckig
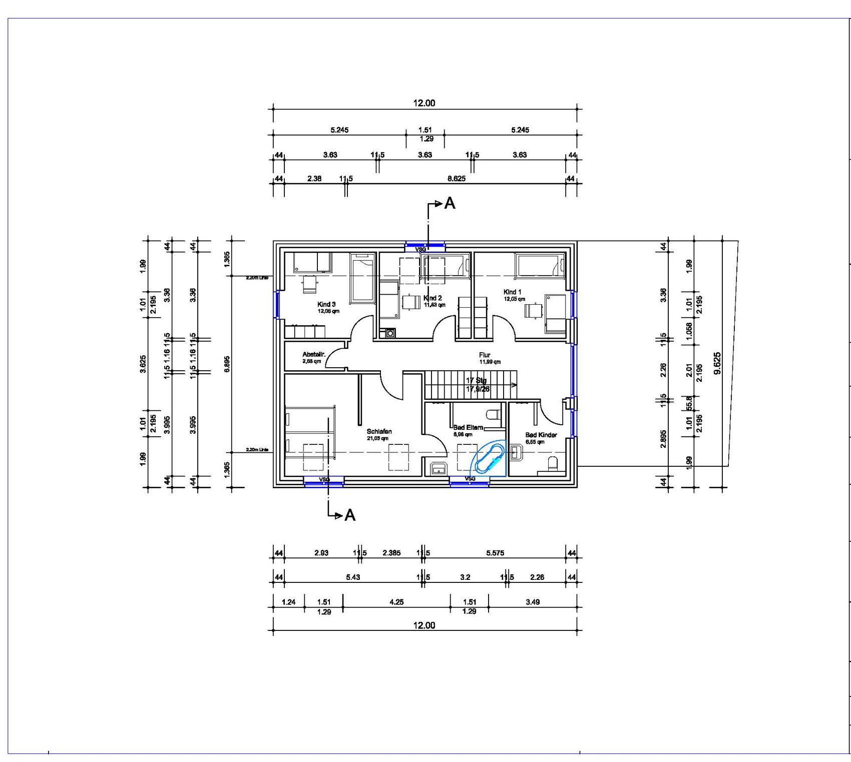
Keller, Geschosse: kein Keller, 1,5 geschosse mit höherem Kniestock (Wunsch waren Vollgeschosse aber der Bebauungsplan macht uns einen Strich durch die Rechnung
Anzahl der Personen, Alter: 2 Erwachsene, 3 Kinder Planung
Raumbedarf im EG, OG:
Büro: Aktuell Home Office, mehr Arbeitszimmer als Familiennutzung
Schlafgäste pro Jahr: Nicht einschätzbar, durchschnittlich
offene oder geschlossene Architektur: Offene Architektur
konservativ oder moderne Bauweise: modene Bauweise
offene Küche, Kochinsel: Kochinsel von ca. 3 Metern
Anzahl Essplätze: offener Essbereich
Kamin: Kaminwand geplant
Musik/Stereowand: -
Balkon, Dachterrasse: -
Garage, Carport: Doppelgarage mit Geräteraum
Nutzgarten, Treibhaus: -
weitere Wünsche/Besonderheiten/Tagesablauf, gern auch Begründungen, warum dieses oder das nicht sein soll: Das Haus soll komplett mit einer Haussteuerung eingerichtet werden, es ist eine Geothermie Anlage gewünscht (Prüfung ob möglich muss stattfinden) und in der Garage soll ein Starkstromanschluss für zukünftige, elektrische Fahrzeuge eingebaut werden.
Hausentwurf
Von wem stammt die Planung: Architekt
Was gefällt besonders? Warum?
Wir mögen die offene Treppe besonders aber haben bisher unterschiedliche Meinungen dazu gehört, was ein wenig verunsichert.
Das Elternbad ist aktuell nicht so, wie wir es gerne hätten. Die Badewanne soll vor dem Fenster stehen und wie wir das WC, die Dusche und Waschbecken platzieren ist auch noch nicht ganz klar.
Preisschätzung lt Architekt/Planer: k.A.
Persönliches Preislimit fürs Haus, inkl Ausstattung: 390.000€
favorisierte Heiztechnik: Geothermie mit Tiefenbohrung
Wenn Ihr verzichten müsst, auf welche Details/Ausbauten
-könnt Ihr verzichten: -
-könnt Ihr nicht verzichten: Die 5 Meter Panorama Fensterfront muss laut meiner Frau bleiben.
Warum ist der Entwurf so geworden, wie er jetzt ist? ZB
Standardentwurf vom Planer? Nein
Entsprechende/Welche Wünsche wurden vom Architekten umgesetzt?
Wir haben uns viele Gedanken gemacht, dass das Haus so praktisch wie möglich ist, wir uns Wege sparen und es zugleich modern ist.
Was ist die wichtigste/grundlegende Frage zum Grundriss in 130 Zeichen zusammengefasst?
Was haltet ihr von unseren Ideen und welche Erfahrungen habt ihr vielleicht bei einigen Aspekten gemacht (Fenster, Hausssteuerung, Heiztechnik, Größe der Garage, Wege Hauswirtschaftsraum, Küche). Habt ihr Anregungen zum Elternbereich im OG? Wie würdet ihr das Zimmer umsetzen, um eine Ankleide oder die Kleiderschränke unterzubringen?






aktuell planen meine Frau und auf einem 600m² großen Grundstück ein Einfamilienhaus und sind aktuell mit dem Architekten zugange, um einen Entwurf für einen Bauantrag fertigzustellen.
Bebauungsplan/Einschränkungen
Größe des Grundstücks: ziemlich genau 600m²
Hang: Nein
Grundflächenzahl: 0,3
Geschossflächenzahl: 0,4
Baufenster, Baulinie und -grenze: offene Bauweise, Baugrenze
Randbebauung: -
Anzahl Stellplatz: -
Geschossigkeit: -
Dachform: -
Stilrichtung: -
Ausrichtung: -
Maximale Höhen/Begrenzungen: -
weitere Vorgaben: -
Anforderungen der Bauherren
Stilrichtung, Dachform, Gebäudetyp: modern, hell und offen, Satteldach flache Dachziegel, ohne dachüberstand, leicht rechteckig
Keller, Geschosse: kein Keller, 1,5 geschosse mit höherem Kniestock (Wunsch waren Vollgeschosse aber der Bebauungsplan macht uns einen Strich durch die Rechnung
Anzahl der Personen, Alter: 2 Erwachsene, 3 Kinder Planung
Raumbedarf im EG, OG:
Büro: Aktuell Home Office, mehr Arbeitszimmer als Familiennutzung
Schlafgäste pro Jahr: Nicht einschätzbar, durchschnittlich
offene oder geschlossene Architektur: Offene Architektur
konservativ oder moderne Bauweise: modene Bauweise
offene Küche, Kochinsel: Kochinsel von ca. 3 Metern
Anzahl Essplätze: offener Essbereich
Kamin: Kaminwand geplant
Musik/Stereowand: -
Balkon, Dachterrasse: -
Garage, Carport: Doppelgarage mit Geräteraum
Nutzgarten, Treibhaus: -
weitere Wünsche/Besonderheiten/Tagesablauf, gern auch Begründungen, warum dieses oder das nicht sein soll: Das Haus soll komplett mit einer Haussteuerung eingerichtet werden, es ist eine Geothermie Anlage gewünscht (Prüfung ob möglich muss stattfinden) und in der Garage soll ein Starkstromanschluss für zukünftige, elektrische Fahrzeuge eingebaut werden.
Hausentwurf
Von wem stammt die Planung: Architekt
Was gefällt besonders? Warum?
- Die Treppe aus dem Wohnbereich war ein besonderer Wunsch mit dem Gedanken aus einem Wohnbereich in einen Wohnbereich ins OG zu gehen und hineinzukommen. Bei klassischen Planungen muss der Wohnbereich verlassen und in den Flur gegangen werden, um ins OG zu kommen.
- Der Zugang von der Garage in den Hauswirtschaftsraum und von dort in die Küche und den Flur mögen wir sehr, weil der Hauswirtschaftsraum der mit am häufigsten genutzte Raum ist und dort zentral zugänglich ist. Vor allem aus der Küche direkt in den Vorratsraum unter der Treppe.
- Wir hoffen, dass unsere Planung aufgeht und wir es schaffen aus den beiden Badezimmern im OG jeweils Wäscheschächte umzusetzen, die zum Hauswirtschaftsraum im EG führen.
- Der separate Elternbereich mit eigenem Bad gefällt uns sehr, da wir uns dann nicht mit 5 Personen um ein Bad streiten müssen. Hier müssen wir schauen, wie wir die Ankleide/Kleiderschränke sinnvoll unterbekommen
- Im Wohn-/Essbereich ist eine 5 Meter Fensterfront mit Schiebetüren geplant und diese liegt meiner Frau sehr am Herzen, da dadurch der gesamte Bereich mit Licht versorgt werden soll, vor allem, wenn die Wand in der Küche komplett mit Schränken vorgesehen ist.
- Die Trennwand zum Wohnzimmer soll ein wenig länger aber der Kamin, der dort vorgesehen ist gefällt uns sehr gut, weil sowohl aus dem Essbereich als auch aus dem Wohnzimmer der Kamin gesehen und genossen werden kann.
- Mit 20m² ist das Wohnzimmer überschaubar aber an die Wand zum Büro soll eine Wohnwand mit einem großen TV und ein Surround System, weswegen der Abstand nicht allzu groß zur Wand sein sollte.
- Im Eingangsbereich ist es geplant, dass die Garderobe nach Rechts direkt an die WC Wand kommt und die WC Tür von der oberen Wand umgesetzt werden soll (Das WC sollte max. 2,5m² ohne Dusche sein, da wir bereits zwei Bäder haben und das vorgesehene Kinderbad von Gästen verwendet werden kann)
Wir mögen die offene Treppe besonders aber haben bisher unterschiedliche Meinungen dazu gehört, was ein wenig verunsichert.
Das Elternbad ist aktuell nicht so, wie wir es gerne hätten. Die Badewanne soll vor dem Fenster stehen und wie wir das WC, die Dusche und Waschbecken platzieren ist auch noch nicht ganz klar.
Preisschätzung lt Architekt/Planer: k.A.
Persönliches Preislimit fürs Haus, inkl Ausstattung: 390.000€
favorisierte Heiztechnik: Geothermie mit Tiefenbohrung
Wenn Ihr verzichten müsst, auf welche Details/Ausbauten
-könnt Ihr verzichten: -
-könnt Ihr nicht verzichten: Die 5 Meter Panorama Fensterfront muss laut meiner Frau bleiben.
Warum ist der Entwurf so geworden, wie er jetzt ist? ZB
Standardentwurf vom Planer? Nein
Entsprechende/Welche Wünsche wurden vom Architekten umgesetzt?
- Wir haben mit einem technischen Zeichner unsere Ideen (klassischerweise von Pinterest, Magazinen, Instagram usw.) als Entwurf vorbereitet und diese vom Architekten gemäß des Bebauungsplan umsetzen lassen und schrauben aktuell an einigen Stellschrauben.
- Die Fensterelemente sind noch nicht endgültig und müssen noch abgestimmt werden.
- Gleiches gilt für die Eingangstür, dort ist ein Sichtfenster an der Seite und oberhalb der Tür als Idee aktuell vorgesehen.
Wir haben uns viele Gedanken gemacht, dass das Haus so praktisch wie möglich ist, wir uns Wege sparen und es zugleich modern ist.
Was ist die wichtigste/grundlegende Frage zum Grundriss in 130 Zeichen zusammengefasst?
Was haltet ihr von unseren Ideen und welche Erfahrungen habt ihr vielleicht bei einigen Aspekten gemacht (Fenster, Hausssteuerung, Heiztechnik, Größe der Garage, Wege Hauswirtschaftsraum, Küche). Habt ihr Anregungen zum Elternbereich im OG? Wie würdet ihr das Zimmer umsetzen, um eine Ankleide oder die Kleiderschränke unterzubringen?
ypg 15.12.2020 14:28
In Kürze:
Ohne Kinder würde ich eine Treppe seitlich zum Sofa auch nicht anordnen. Gut, Du schreibst, dass der TV an die planuntere Wand kommt. Aber wie wilst Du jemals in Ruhe Fern schauen? Privatssphäre auf dem Sofa haben? Die Kinder werden doch älter und meist auch nerviger...
Den Bebauungsplan lese ich nicht durch. Da musst Du uns schon zuspielen und die Fragen ausfüllen!
Ruksson schrieb:Genauso würde ich es auch machen - ich hatte gerade die Idee und lese es. Super.
nach Rechts direkt an die WC Wand kommt und die WC Tür von der oberen Wand umgesetzt werden soll
Ruksson schrieb:da würde ich die Trennwand an der Schräge machen und planoben eine Durchgangstür. Damit bekommt Ihr bei 150er Kalksandstein gut Schränke unter und stört den Schlafenden nicht, wenn man sich fertig macht. Unterm Kalksandstein dann eine Kommode
Hier müssen wir schauen, wie wir die Ankleide/Kleiderschränke sinnvoll unterbekommen
Ruksson schrieb:da solltet Ihr mal gedanklich durchspielen, i welche Richtung die Küchentür öffnen soll. Meine Eltern haben es genau so und die Hauswirtschaftsraum-Tür geht aber in die andere Richtung, also Rtg Abstellkammer auf. Hinter der Tür ist bei denen der Gefrierschrank. Allerdings haben sie aus praktischer Sicht sogar die Abstellkammertür weggelassen. Sie gehen dort mehrmals am Tag hin, weil dort auch die Putzsachen gelagert werden.
Vor allem aus der Küche direkt in den Vorratsraum unter der Treppe.
Ruksson schrieb:Das haben wir ähnlich, auch eine Treppe vom Wohn/Essbereich nach oben. Wir haben keine Kinder. Mit Kindern, noch dazu 3!!! würde ich das definitiv nicht machen.
Die Treppe aus dem Wohnbereich war ein besonderer Wunsch mit dem Gedanken aus einem Wohnbereich in einen Wohnbereich ins OG zu gehen und hineinzukommen.
Ohne Kinder würde ich eine Treppe seitlich zum Sofa auch nicht anordnen. Gut, Du schreibst, dass der TV an die planuntere Wand kommt. Aber wie wilst Du jemals in Ruhe Fern schauen? Privatssphäre auf dem Sofa haben? Die Kinder werden doch älter und meist auch nerviger...
Ruksson schrieb:Genau dieser Umstand, dann aber letzteres.
Was macht ihn in Euren Augen besonders gut oder schlecht?
Den Bebauungsplan lese ich nicht durch. Da musst Du uns schon zuspielen und die Fragen ausfüllen!
Ruksson 15.12.2020 14:51
Danke für das Feedback YPG. 🙂
Zum Bebauungsplan, zumindest soweit ich ihn lesen kann folgende Informationen:
Bebauungsplan/Einschränkungen
Größe des Grundstücks: ziemlich genau 600m²
Hang: Nein
Grundflächenzahl: 0,3
Geschossflächenzahl: 0,4
Baufenster, Baulinie und -grenze: offene Bauweise, Baugrenze
Randbebauung: Keine Vorgaben
Anzahl Stellplatz: Keine Vorgaben
Geschossigkeit: 1 Vollgeschoss
Dachform: Dachflächen sind mit nichtglänzenden Dacheindeckungen zu versehen. Dies gilt nicht für Anlagen
zur Gewinnung von Solarenergie.
Stilrichtung: Keine Vorgaben
Ausrichtung: Keine Vorgaben
Maximale Höhen/Begrenzungen: -
weitere Vorgaben: Höchstzulässige 2 Wohnungen pro Wohngebäude
ypg schrieb:
Den Bebauungsplan lese ich nicht durch. Da musst Du uns schon zuspielen und die Fragen ausfüllen!
Zum Bebauungsplan, zumindest soweit ich ihn lesen kann folgende Informationen:
Bebauungsplan/Einschränkungen
Größe des Grundstücks: ziemlich genau 600m²
Hang: Nein
Grundflächenzahl: 0,3
Geschossflächenzahl: 0,4
Baufenster, Baulinie und -grenze: offene Bauweise, Baugrenze
Randbebauung: Keine Vorgaben
Anzahl Stellplatz: Keine Vorgaben
Geschossigkeit: 1 Vollgeschoss
Dachform: Dachflächen sind mit nichtglänzenden Dacheindeckungen zu versehen. Dies gilt nicht für Anlagen
zur Gewinnung von Solarenergie.
Stilrichtung: Keine Vorgaben
Ausrichtung: Keine Vorgaben
Maximale Höhen/Begrenzungen: -
weitere Vorgaben: Höchstzulässige 2 Wohnungen pro Wohngebäude
pagoni2020 15.12.2020 15:12
Mir gefällt die Situation beim Eingang zum Allraum nicht, auch weil die Tür direkt gegen die Treppe schlägt. Dazu läuft man direkt gegen den Raumteiler/TV bzw. nach rechts gegen die untere Kante der Treppenstufe. Diese Situation dort ist nicht geschmeidig mMn.
Wenn ihr einen Architekten beauftragt warum habt ihr diesen nicht ersteinmal frei planen lassen und habt ihr lediglich Eure textlichen Ideen vorgebracht; ich empfände das als vergebene Chance und schade, denn der hat das gelernt und kann anders denken.
Der Hauswirtschaftsraum hat drei Türen, was es schwieriger macht. Der kleine Flur ist somit voller Türen.
Wohl auch bedingt durch die so positionierte Treppe gefällt mir die Aufteilung Essen/Wohnen nicht so gut. Große Fenster toll, jedoch müsste mein Esstisch dann auch gerade vor dem Fenster stehen. Zudem würde ich, trotz großer Fenster, mir eine "normale" Tür ins Freie schaffen und nicht nur Hebe-Schiebetüren, da diese mMn schwergängiger sind/werden. Vom Bewegungsablauf her öffnet man eine normale Tür einfacher. Das Hausstil an sich trifft meinen Geschmack doch würde ich, wie oft erwähnt, mehr ins rechteckige gegen, weil sich damit sicher mehr Möglichkeiten ergeben.
Im OG verursacht wieder der Übeltäter Treppe 😉 unnötige Flurfläche; muss dieser Mini-Abstellraum sein?
Wenn da noch eine Tür reinkommt bringt der wohl nicht viel oder?
Vom Bett aus schaut man direkt auf die Badezimmertür, das Bad an sich braucht noch Planung, da das Waschbecken direkt hinter der Tür nicht so gut liegt; des Weiteren kollidieren die Tür mit der Duschtür.
Wir haben einen ähnlichen Grundriss im EG und haben den endlos hin und hergeschaukelt, daher glaube ich, dass Euch etwas mehr Breite besser täte als Tiefe im Raum. Die Treppe wurde bei uns letztlich auch nicht ganz gerade, obwohl so gewollt und sie hat sich anderen Gegebenheiten untergeordnet.
Wenn ihr einen Architekten beauftragt warum habt ihr diesen nicht ersteinmal frei planen lassen und habt ihr lediglich Eure textlichen Ideen vorgebracht; ich empfände das als vergebene Chance und schade, denn der hat das gelernt und kann anders denken.
Der Hauswirtschaftsraum hat drei Türen, was es schwieriger macht. Der kleine Flur ist somit voller Türen.
Wohl auch bedingt durch die so positionierte Treppe gefällt mir die Aufteilung Essen/Wohnen nicht so gut. Große Fenster toll, jedoch müsste mein Esstisch dann auch gerade vor dem Fenster stehen. Zudem würde ich, trotz großer Fenster, mir eine "normale" Tür ins Freie schaffen und nicht nur Hebe-Schiebetüren, da diese mMn schwergängiger sind/werden. Vom Bewegungsablauf her öffnet man eine normale Tür einfacher. Das Hausstil an sich trifft meinen Geschmack doch würde ich, wie oft erwähnt, mehr ins rechteckige gegen, weil sich damit sicher mehr Möglichkeiten ergeben.
Im OG verursacht wieder der Übeltäter Treppe 😉 unnötige Flurfläche; muss dieser Mini-Abstellraum sein?
Wenn da noch eine Tür reinkommt bringt der wohl nicht viel oder?
Vom Bett aus schaut man direkt auf die Badezimmertür, das Bad an sich braucht noch Planung, da das Waschbecken direkt hinter der Tür nicht so gut liegt; des Weiteren kollidieren die Tür mit der Duschtür.
Wir haben einen ähnlichen Grundriss im EG und haben den endlos hin und hergeschaukelt, daher glaube ich, dass Euch etwas mehr Breite besser täte als Tiefe im Raum. Die Treppe wurde bei uns letztlich auch nicht ganz gerade, obwohl so gewollt und sie hat sich anderen Gegebenheiten untergeordnet.
Ruksson schrieb:Große Fenster absolut Ja aber an einem bestimmten Maß festhalten bringt unnötige Einschränkungen. Sowohl in Küche aber auch im WZ habt ihr "unnötige" Tiefe und Leerraum, der woanders gebraucht würde.
Die 5 Meter Panorama Fensterfront muss laut meiner Frau bleiben.
11ant 15.12.2020 15:44
Ich sehe im Ansatz einige Parallelen zu einem Entwurf, dessen Zeichnungen hier leider von seinem TE wieder entfernt wurden (dessen Umsetzung aber im Hausbilderthread noch zu sehen ist, und der eigentliche Thread hier auch, nur eben leider weitgehend zeichnungenbereinigt) - mag vielleicht "ersatzweise" hier kommentierend beitragen ?
ypg 15.12.2020 18:10
Sofern ich weiß, sind die Zeichnungen auf seinem Wunsch (wenn nicht gar der ganze Thread) auf seinem Wunsch hin gelöscht worden. Also lassen wir das mal mit der Erwähnung alter Threads. Jeder hat da auch ein Recht auf Vergessen.
Ich würde versuchen, das WZ mehr abzugrenzen.
Mich wundert gerade, wo es anspricht, dass man 5 Meter als 2 Elemente einplant. Weißt, wie schwer 5qm Glas sind? Gibt es das überhaupt? Dass der Esstisch nun genau mittig muss, sehe ich nicht, aber man sollte Kücheninsel und Tisch schon mit Fenstern vermitteln, dass es auch gekonnt aussieht.
Ich würde aber auch der Küche eine einfache Terrassentür gönnen.
auch außen sollte die Terrassentür mit dem Fenster oben in einer Linie sein. Die Fassaden sehen mit den Fenstern eh etwas verschoben aus.
Ich würde wohl WZ abgrenzen mit einer Wand Richtung Außenwand, am Ende der Wand dann den Kamin, zw Außenwand und Kamin dann einen Durchgang. Ohne Zarge. Eventuell Schiebetür.
Auf Trennwand und Tür im Bereich Durchgang Flur/Essen/Treppe würde ich am Treppenansatz ganz verzichten. Im Gegensatz zu sehe ich den Grundriss eher schmaler: den Tisch quer, für die Küche unter 5 Meter Breite und den Versatz Büro/WZ raus.
Aber beide Änderungen, ob breiter oder schmaler versprechen Verbesserungen.
Grundsätzlich würde ich eine Drehung des Hauses gg den Uhrzeigersinn und dann eine Spiegelung sehen, dass Küche und Hauswirtschaftsraum vorne sind. Zumindest mal probieren. Dann hättet ihr aber den Zugang zur Garage nicht. Den wollt ihr ja unbedingt...
Ähnliche Themen