ᐅ Grundrissplan Obergeschoss optimieren, verwinkelten Wände WC und Bad
Erstellt am: 03.10.25 11:44
B
bau_mariaB
bau_maria03.10.25 11:44Hallo zusammen,
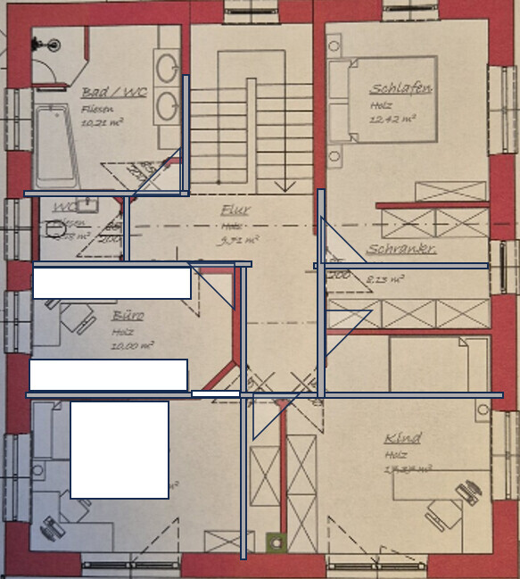
wir sind gerade bei der Grundrissplanung und haben noch einige offene Punkte..
einer davon ist der Grundriss im OG.
Die verwinkelten Wände beim WC und Bad.
und die Kinderzimmer Eingänge.
Was meint ihr, irgendwelche Ideen oder würdet ihr es so lassen mit den vielen Ecken?
Danke schon mal im voraus!

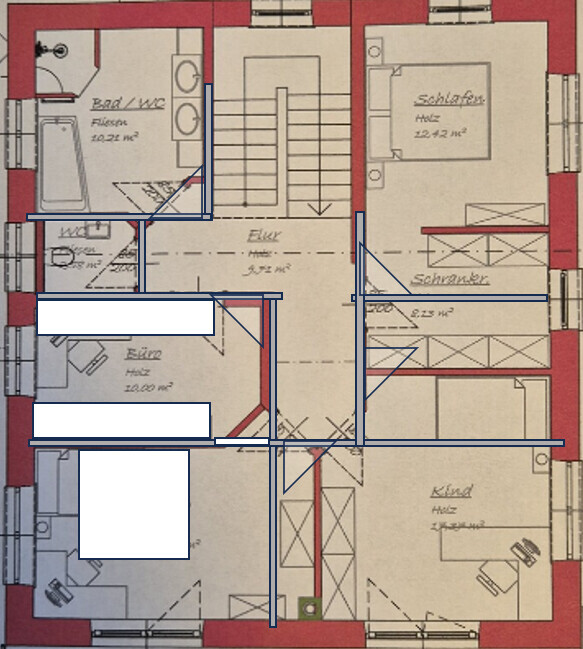
wir sind gerade bei der Grundrissplanung und haben noch einige offene Punkte..
einer davon ist der Grundriss im OG.
Die verwinkelten Wände beim WC und Bad.
und die Kinderzimmer Eingänge.
Was meint ihr, irgendwelche Ideen oder würdet ihr es so lassen mit den vielen Ecken?
Danke schon mal im voraus!
H
hanghaus202303.10.25 11:54Hallo Maria, kannst Du bitte auch die Anderen Etagen zeigen? Am besten Du füllst den Fragebogen aus.
https://www.hausbau-forum.de/threads/grundriss-planung-unbedingt-vor-beitrag-erstellung-lesen.11714/
https://www.hausbau-forum.de/threads/grundriss-planung-unbedingt-vor-beitrag-erstellung-lesen.11714/
bau_maria schrieb:
wir sind gerade bei der Grundrissplanung und haben noch einige offene Punkte..
einer davon ist der Grundriss im OG.Worum geht es denn überhaupt: Umbau eines Gebrauchthauses oder Neubau ?https://www.instagram.com/11antgmxde/
https://www.linkedin.com/company/bauen-jetzt/
H
hanghaus202303.10.25 12:49Ähnliche Themen