ᐅ Grundrissideen für ein modernes Einfamilienhaus mit ca. 150m², ohne Keller
Erstellt am: 26.06.19 20:55
T
Thorsten78Ich denke, nein. Das charakteristischste Übereinstimmungsmerkmal mit dem jüngsten Entwurf des hiesigen TE war die Komposition von Garage und Haus, auch mit etwa identischer Spreizung der beiden Baukörper.
https://www.instagram.com/11antgmxde/
https://www.linkedin.com/company/bauen-jetzt/
https://www.instagram.com/11antgmxde/
https://www.linkedin.com/company/bauen-jetzt/
T
Thorsten7826.10.19 23:53Hallo!!!
Nach sehr langer Zeit melde ich mich mit zwei neuen Entwürfen zurück und Stelle diese hier zur Diskussion.
Wir waren mit der Baufirma vom Juni leider nicht so zufrieden und haben nun zwei andere regionale Firmen in der Auswahl.
Die beiden Entwürfe sind nun aus verschiedenen Gesprächen, Internet und herumtüfteln entstanden.
Mir gefällt der Entwurf mit dem Erker und der überdachten Terrasse besser und meiner Frau eher der andere.
Wie findet ihr die neuen Entwürfe? Was würdet ihr anders machen?
Ich freue mich schon auf eure Meinungen/Anregungen








Nach sehr langer Zeit melde ich mich mit zwei neuen Entwürfen zurück und Stelle diese hier zur Diskussion.
Wir waren mit der Baufirma vom Juni leider nicht so zufrieden und haben nun zwei andere regionale Firmen in der Auswahl.
Die beiden Entwürfe sind nun aus verschiedenen Gesprächen, Internet und herumtüfteln entstanden.
Mir gefällt der Entwurf mit dem Erker und der überdachten Terrasse besser und meiner Frau eher der andere.
Wie findet ihr die neuen Entwürfe? Was würdet ihr anders machen?
Ich freue mich schon auf eure Meinungen/Anregungen
T
Thorsten7826.10.19 23:58Thorsten78 schrieb:
und haben nun zwei andere regionale Firmen in der Auswahl.
Die beiden Entwürfe... ähneln einander zu stark, als daß sie von zwei verschiedenen Unternehmen zu stammen scheinen (?)https://www.instagram.com/11antgmxde/
https://www.linkedin.com/company/bauen-jetzt/
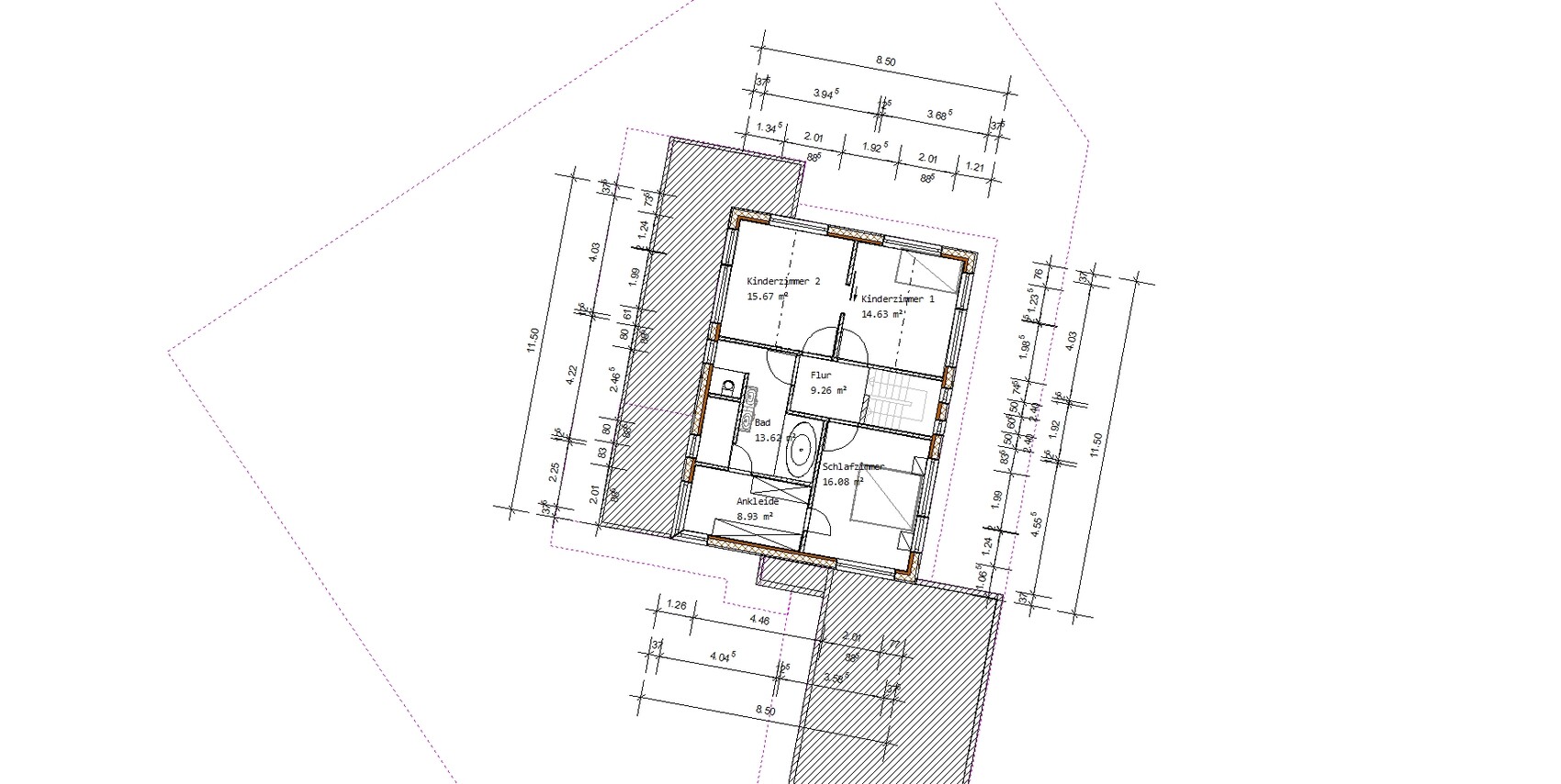
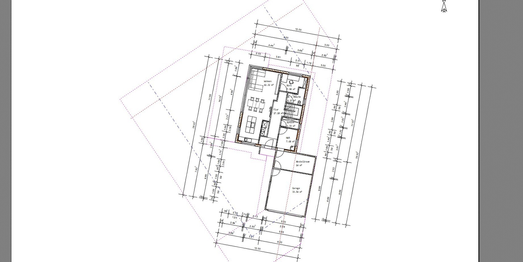
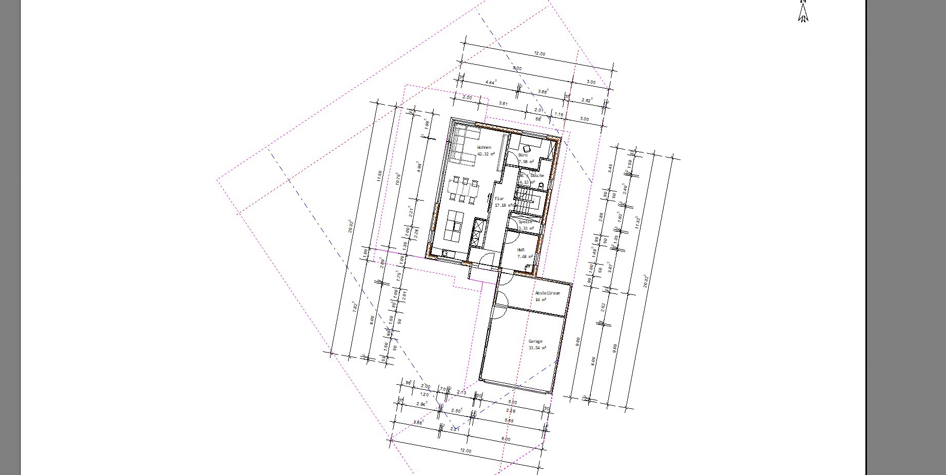
Wo wollt Ihr waschen und Wäsche trocknen?
Stauraum sehe ich nicht!
Der Flur unten ist von den qm riesig, aber auch sehr schlauchig ohne große Möglichkeiten, Stauraum zu schaffen.
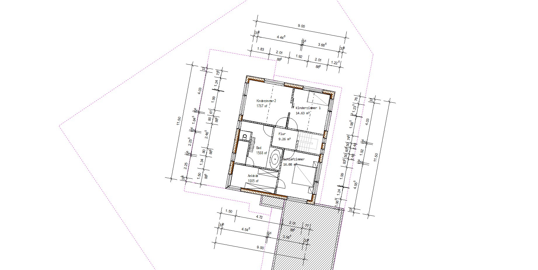
Das Obergeschoss finde ich von den Laufwegen und Anordnungen Mist. Es sieht immer so aus, als wenn alles krampfhaft an den beiden Kinderzimmer ausgerichtet ist und immer wird an einer T-Lösung für das Bad festgehalten (ob sinnig oder nicht).
Die Ostansicht vom Haus gefällt mir gar nicht, die anderen Ansichten finde ich gut. Aus Osten betrachtet finde ich mit diesen komischen schmalen, hohen Fenstern immer ein Gesicht, das mag ich nicht.
Da haben mir die alten Entwürfe besser gefallen (auch wenn die genauso das Wäsche- und Stauraum Problem hatten).
Stauraum sehe ich nicht!
Der Flur unten ist von den qm riesig, aber auch sehr schlauchig ohne große Möglichkeiten, Stauraum zu schaffen.
Das Obergeschoss finde ich von den Laufwegen und Anordnungen Mist. Es sieht immer so aus, als wenn alles krampfhaft an den beiden Kinderzimmer ausgerichtet ist und immer wird an einer T-Lösung für das Bad festgehalten (ob sinnig oder nicht).
Die Ostansicht vom Haus gefällt mir gar nicht, die anderen Ansichten finde ich gut. Aus Osten betrachtet finde ich mit diesen komischen schmalen, hohen Fenstern immer ein Gesicht, das mag ich nicht.
Da haben mir die alten Entwürfe besser gefallen (auch wenn die genauso das Wäsche- und Stauraum Problem hatten).
T
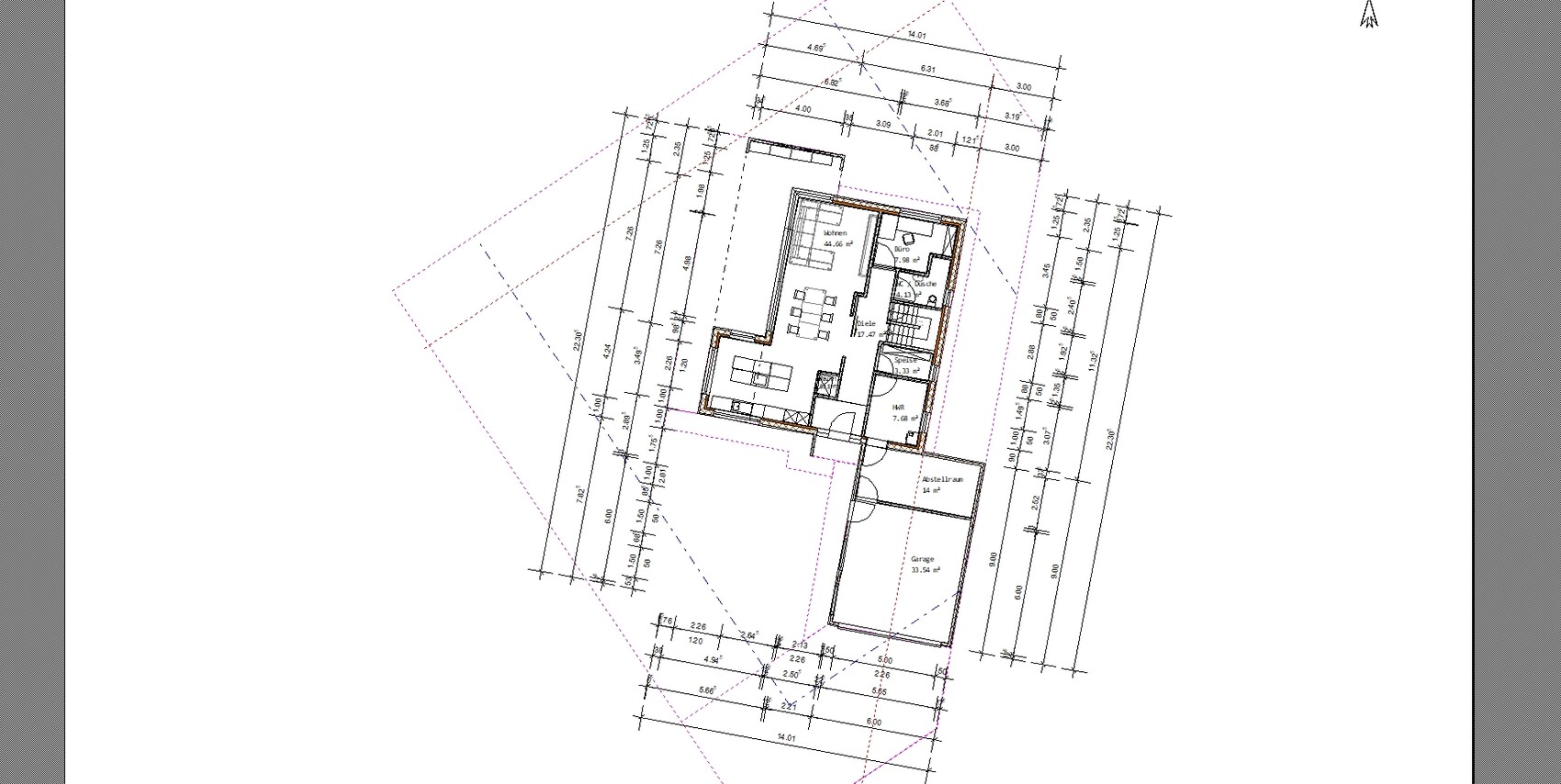
Thorsten7827.10.19 08:17Die beiden Entwürfe sind von uns und haben nichts mit den Bauunternehmen zu tun.
Sie sind natürlich fast komplett gleich, der Unterschied ist lediglich der Erker mit der Terrassenüberdachung. Wollte wissen welchen der beiden Vorschläge ihr bevorzugen würdet.
Die Ostseite ist definitiv die hässlichste, hat sich einfach von der Fensteranordnung so ergeben. Die beiden langen schmalen Fenster werden evtl. noch geändert.
Die Ansicht ist uns aber nicht so wichtig. Wenn der zukünftige Nachbar baut, wird die Ansicht fast keiner mehr sehen.
Der lange schmale Flur im EG ergibt sich natürlich durch die Anordnung des Wohnbereiches. Wir hätten gerne Küche/Essen/Wohnen in einer Flucht. Auch mit einer ursprünglich geplanten geraden Treppe, war es nicht besser.
Im OG war uns wichtig vom Schlafzimmer über die Ankleide ins Bad zu kommen. Und die Kinderzimmer sollten nebeneinander liegen, damit unser Kind beide nutzen kann.
Ich wäre für jeden weiteren Tipp/Vorschlag dankbar.
Noch kurz zum Thema Wäsche waschen.
Dieses sollte im Hauswirtschaftsraum geschehen und im Garten oder im Abstellraum getrocknet werden.
Sie sind natürlich fast komplett gleich, der Unterschied ist lediglich der Erker mit der Terrassenüberdachung. Wollte wissen welchen der beiden Vorschläge ihr bevorzugen würdet.
Die Ostseite ist definitiv die hässlichste, hat sich einfach von der Fensteranordnung so ergeben. Die beiden langen schmalen Fenster werden evtl. noch geändert.
Die Ansicht ist uns aber nicht so wichtig. Wenn der zukünftige Nachbar baut, wird die Ansicht fast keiner mehr sehen.
Der lange schmale Flur im EG ergibt sich natürlich durch die Anordnung des Wohnbereiches. Wir hätten gerne Küche/Essen/Wohnen in einer Flucht. Auch mit einer ursprünglich geplanten geraden Treppe, war es nicht besser.
Im OG war uns wichtig vom Schlafzimmer über die Ankleide ins Bad zu kommen. Und die Kinderzimmer sollten nebeneinander liegen, damit unser Kind beide nutzen kann.
Ich wäre für jeden weiteren Tipp/Vorschlag dankbar.
Noch kurz zum Thema Wäsche waschen.
Dieses sollte im Hauswirtschaftsraum geschehen und im Garten oder im Abstellraum getrocknet werden.
Ähnliche Themen