Grundrissfinalisierung Bungalow 130m² für 4 Personen

4,00 Stern(e) 17 Votes
Zuletzt aktualisiert 07.11.2025
Sie befinden sich auf der Seite 2 der Diskussion zum Thema: Grundrissfinalisierung Bungalow 130m² für 4 Personen
>> Zum 1. Beitrag <<

M

micric3

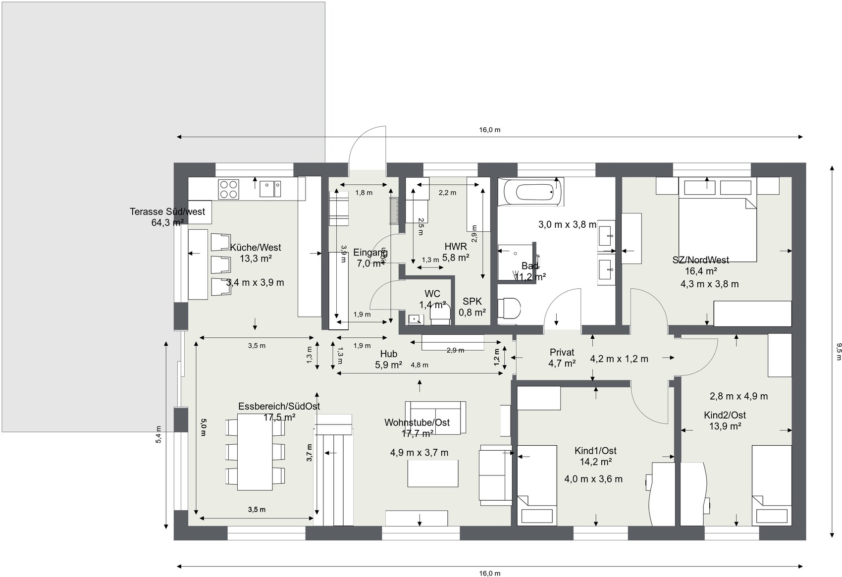
Wie gesagt, sehe ich dies nicht als Komfortverlust bzw. überwiegen für uns die positiven Aspekte des Grundriss, wenn wir den Eingang nach Ost legen. Im Anhang habe ich mal die gespiegelte Variante angefügt.

Positiv/Neutral:
- Eingang im Westen
- Kinderzimmer im Osten

Negativ:
- Räume die nicht zum Wohen/Freizeit genutzt werden sind Richtung Garten (West) ausgelegt [ Hauswirtschaftsraum, BAD, Schlafzimmer]
- Wohnräume schauen auf weisse Mauer vom Nachbarn [ja die wird begrünt, aber die Blicktiefe ist lediglich 2.50-3m]
- die Luft-Wasser-Wärmepumpe benötigt ein außen aufgestelltest Splitgerät, welches nun sichtbar und ggf. hörbar im Garten (westseite) aufgestellt wird
- die Terrasse umbaut nun nicht mehr das komplette Esszimmer sondern die komplette Küche

Wie gesagt, wäre

Grundriss eines Hauses: Küche, Essbereich, Wohnzimmer, Bad, WC, Schlafzimmer, Kinderzimmer, Terrasse
 
R

Reluctance

Wie gesagt, sehe ich dies nicht als Komfortverlust bzw. überwiegen für uns die positiven Aspekte des Grundriss, wenn wir den Eingang nach Ost legen. Im Anhang habe ich mal die gespiegelte Variante angefügt.

Positiv/Neutral:
- Eingang im Westen
- Kinderzimmer im Osten

Negativ:
- Räume die nicht zum Wohen/Freizeit genutzt werden sind Richtung Garten (West) ausgelegt [ Hauswirtschaftsraum, BAD, Schlafzimmer]
- Wohnräume schauen auf weisse Mauer vom Nachbarn [ja die wird begrünt, aber die Blicktiefe ist lediglich 2.50-3m]
- die Luft-Wasser-Wärmepumpe benötigt ein außen aufgestelltest Splitgerät, welches nun sichtbar und ggf. hörbar im Garten (westseite) aufgestellt wird
- die Terrasse umbaut nun nicht mehr das komplette Esszimmer sondern die komplette Küche

Wie gesagt, wäre

Und wenn du da jetzt Küche und Wohnzimmer tauschst? Dann ist die Küche der erste Raum, in den man kommt und somit das DGZ, das WZ liegt schön im Westen und ist etwas ruhiger... sofern euch das dann von der Raumgröße reicht.
 
Y

ypg

Und wenn du da jetzt Küche und Wohnzimmer tauschst? Dann ist die Küche der erste Raum, in den man kommt und somit das DGZ, das WZ liegt schön im Westen und ist etwas ruhiger... sofern euch das dann von der Raumgröße reicht.
Die Diskussion hatten wir zu Anfang, und damit scheint sich TE nicht zu identifizieren. Wenn, dann muss WZ gross sein und repräsentativ. Küche lieber versteckt etc... Auch besuchende Jugendliche schrecken nicht davor zurück
 
M

micric3

Hallo Yvonne, mit allen Respekt, aber das ist auf gut deutsch "stuss"!

Es geht uns um einen schönen offen Grundriss mit optimaler Raumgröße. Nur weil du dich evtl. in dein 'kleines' Wohnzimmer zurück ziehen möchtest, kannst du damit nicht autom. auf andere schliessen.

Ich habe mir viel angenommen und bin auch dankbar für die Tipps. Ja die Küche ist etwas kleiner geraten als gewünscht, dafür knüpft sie nahtlos an das Esszimmer an, somit ist diese als "Lebensmittelpunkt" ja nicht ausgeschlossen.

Wichtig ist uns, das wir nicht einfach ein rechteckigen Wohnzimmer/Küche Raum im Süden haben ( wie relativ häufig zu sehen )

@Reluctance: Idee an sich nicht verkehrt, aber in der Praxis nicht tauglich, da Küche überdimensioniert. (wären fast 35m² mit Essbereich zusammen ). Zudem Licht nur von West (Abends ) sollte Essbereich und Küche mit einer Wand getrennt sein.


Das die Grundrissplanung aufgrund der Vorgaben zu Ausrichtung, Zuwegung und Altbestand nicht einfach ist, ist mir bewusst, deswegen bin ich ja auch hier.
 
H

haydee

Warum mußt du 9 m von der Westgrenze weg sein?

Terrasse an der Küche ist doch praktischer als am Wohnzimmer
 
Zuletzt aktualisiert 07.11.2025
Im Forum Grundrissplanung / Grundstücksplanung gibt es 2526 Themen mit insgesamt 87665 Beiträgen


Ähnliche Themen zu Grundrissfinalisierung Bungalow 130m² für 4 Personen
Nr.ErgebnisBeiträge
1Erste Grundriss-Planung Einfamilienhaus 190m2 - Seite 664
2Grundriss Einfamilienhaus mit Doppelgarage und Terrasse - Seite 219
3Grundriss für 150qm Einfamilienhaus mit Wohnzimmer nach Norden 21
4Grundriss: Offenes Wohnzimmer inkl. Kamin - Feedback 11
5Platzierung der Möbel im Wohnzimmer im Grundriss 10
6Eure Meinung zum Grundriss für das EG - Seite 228
7Meinung zum Grundriss eines geplanten Bauhauses - Seite 323
8Grundriss mit KG auf Hanggrundstück 32
9Esstisch in einer kleinen Küche 49
10Quadratischer Grundriss für ein Doppelhaus gesucht - Ideen? - Seite 1187
11Grundriss für 200qm Stadtvilla - Wünsche umsetzbar? - Seite 498
12Bungalow Grundriss 3 Personen, 130qm, bitte Meinungen… - Seite 2167
13Grundriss-Tipps Einfamilienhaus mit Einliegerwohnung gewünscht 49
14Grundriss 9x11.30m, 4 Personen, 2 Büros 27
15Neubau Doppelhaus 155qm - Ausrichtung & Grundriss dementsprechend 59
16Pfeifengrundstück, Vorentwurf Einfamilienhaus 170 m² 59
17Grundriss Halboffene Küche mit großem Essbereich - Detailfragen - Seite 212
18Vorplanung mit dem Architekten - eigener Grundriss sinnvoll? 18
19Wohnen/Essen/Küche: Wie wohnt ihr oder werdet ihr wohnen? - Seite 752
20Grundriss für Familie. Hinweise, Kritik Verbesserungsvorschläge 22

Oben