kaho674 schrieb:
Ich glaub. das wollte TE auf keine Fall, dass die Treppe im WZ nach oben führt wegen Ruhe. Aber hast recht, Treppenrichtung anders herum wäre kellertechnisch die elegante Lösung. Aber ist eh nur Spielerei. Der neue Grundriss soll bald kommen. Bis dahin sammeln wir hier nur Ideen.Nein, "andersherum" habe ich nicht gesagt!
Ich habe gesagt, schön in _einem_ Raum belassen.
Pass auf, dass Du mit Deinen Ideen nicht irgendwann im Standardprogramm eines Sparhauses landest [emoji23]
R
R.Hotzenplotz25.07.17 20:57kaho674 schrieb:
Was ist denn ein Sparhaus?Wahrscheinlich solche komischen 08/15 Bauten wie Viebrockhaus.
R
R.Hotzenplotz26.07.17 21:18Ich habe heute neue Vorschläge erhalten.
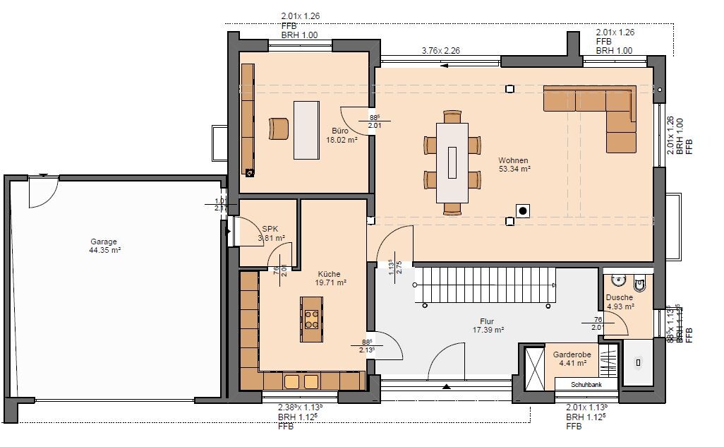
Zunächst der ursprüngliche Entwurf etwas geschrumpft. Die Problematik mit der Statik bleibt weiterhin. Nachfolgend drei Visualisierungen, wie man die Statik im Entwurf lösen könnte. Die Säulen könnten auch in runder Form ausgeführt werden. Bisher kann ich nur sicher sagen, dass die Trennwand überhaupt nicht gefällt. Das andere müssten wir uns überlegen, ob das ein oder andere ein Kompromiss wäre....
Im Grunde bringt die Verkleinerung nur leichte Budgetvorteile. Die Küche und die Speisekammer (eigentlich nur noch eine Schleuse) sind nun angenehmer dimensioniert und das Verhältnis Küche / Arbeitszimmer passt besser. Dass das Arbeitszimmer einen m² größer ist als gewünscht, ist denke ich zu vernachlässigen. Die Lösung WC / Garderobe finde ich auch besser als vorher. Wir sind nun auf 220m² für EG und OG.
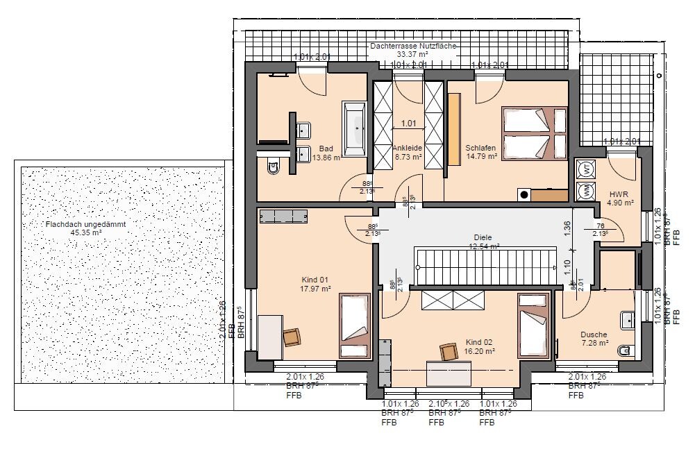
Im OG die leicht verkleinerten Räume finde ich auch Ok - bis auf den Hauswirtschaftsraum, der nun zum zweiten mal von zuletzt 4,9m² auf 5,64m² verkleinert wurde. Das ist vom Raumprogramm her der größte Gedankenpunkt, den ich da sehe.... wie seht ihr diese und die anderen Veränderungen innen und außen?
Leider fehlen wieder viele Maßangaben.
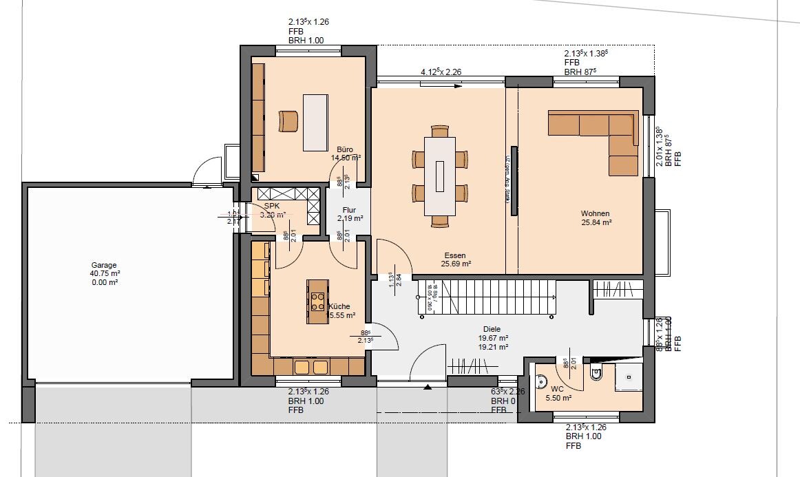
Der Vollständigkeit halber poste ich auch einen völlig neuen Entwurfsvorschlag, was die Außenoptik angeht mit noch stärker verkleinertem Raumprogramm. Der Entwurf geht aber von außen überhaupt nicht. Da habe ich mich echt einen Moment gefragt, wie sowas zustande kommen kann, wenn man so lange und intensiv gesprochen hat und der andere Entwurf so toll gefallen hat. Hier sind wir bei 213m² für EG und OG, haben aber einen größeren Hauswirtschaftsraum mit 6,76m². Kinderzimmer sind etwas kleiner. Das geht noch. Das ganze OG ist in Summe Ok. Unten die kleinere Küche wird schon grenzwertig mit der Kochinsel, oder? Das Arbeitszimmer geht auch noch gerade so, wenn man beide Augen zudrückt - eigentlich ist es mir zu klein. Und es ist keine Garderobe mehr vorhanden. Sehr viel Einschränkungen für 7m² weniger - und das bei nicht zusagender Außenoptik.
Also stehen wir jetzt nicht viel weiter als beim letzten Mal. Die statischen Herausforderungen bleiben. Nicht mal im neuen Entwurf kommt man ohne Unterzüge aus. Wir können nun also einen der beiden "angepassten" Entwürfe nehmen. Hauswirtschaftsraum wäre eben noch abzuklären. Und man müsste eben mit der überdimensionierten Dachterrasse leben. Die schreiben sie, bekommen sie nicht weg. Durch die Etablierung eines Teilkellers würden im Keller noch mal 30m² gespart werden können. Ich habe dazu aber noch keine Einsparquantifizierung.
Ebenfalls schreiben sie, dass der neue Entwurf aufgrund der Konstruktionsweise her günstiger ist. Aber das bringt uns nicht weiter, wenn er nicht gefällt.
Schaut euch mal die zwei verschiedenen Ansätze im EG Grundriss an, wie die Situation neben der Speis gelöst ist.
Ich überlege jetzt in Ruhe, wie wir weiter verfahren. Ich tendiere dazu, genau zu erfragen, welche Veränderungen notwendig wären, um auf den Unterzug zu verzichten. Es dreht sich eigentlich großenteils darum. Ansonsten mit einer der drei statischen Lösungn leben?










Zunächst der ursprüngliche Entwurf etwas geschrumpft. Die Problematik mit der Statik bleibt weiterhin. Nachfolgend drei Visualisierungen, wie man die Statik im Entwurf lösen könnte. Die Säulen könnten auch in runder Form ausgeführt werden. Bisher kann ich nur sicher sagen, dass die Trennwand überhaupt nicht gefällt. Das andere müssten wir uns überlegen, ob das ein oder andere ein Kompromiss wäre....
Im Grunde bringt die Verkleinerung nur leichte Budgetvorteile. Die Küche und die Speisekammer (eigentlich nur noch eine Schleuse) sind nun angenehmer dimensioniert und das Verhältnis Küche / Arbeitszimmer passt besser. Dass das Arbeitszimmer einen m² größer ist als gewünscht, ist denke ich zu vernachlässigen. Die Lösung WC / Garderobe finde ich auch besser als vorher. Wir sind nun auf 220m² für EG und OG.
Im OG die leicht verkleinerten Räume finde ich auch Ok - bis auf den Hauswirtschaftsraum, der nun zum zweiten mal von zuletzt 4,9m² auf 5,64m² verkleinert wurde. Das ist vom Raumprogramm her der größte Gedankenpunkt, den ich da sehe.... wie seht ihr diese und die anderen Veränderungen innen und außen?
Leider fehlen wieder viele Maßangaben.
Der Vollständigkeit halber poste ich auch einen völlig neuen Entwurfsvorschlag, was die Außenoptik angeht mit noch stärker verkleinertem Raumprogramm. Der Entwurf geht aber von außen überhaupt nicht. Da habe ich mich echt einen Moment gefragt, wie sowas zustande kommen kann, wenn man so lange und intensiv gesprochen hat und der andere Entwurf so toll gefallen hat. Hier sind wir bei 213m² für EG und OG, haben aber einen größeren Hauswirtschaftsraum mit 6,76m². Kinderzimmer sind etwas kleiner. Das geht noch. Das ganze OG ist in Summe Ok. Unten die kleinere Küche wird schon grenzwertig mit der Kochinsel, oder? Das Arbeitszimmer geht auch noch gerade so, wenn man beide Augen zudrückt - eigentlich ist es mir zu klein. Und es ist keine Garderobe mehr vorhanden. Sehr viel Einschränkungen für 7m² weniger - und das bei nicht zusagender Außenoptik.
Also stehen wir jetzt nicht viel weiter als beim letzten Mal. Die statischen Herausforderungen bleiben. Nicht mal im neuen Entwurf kommt man ohne Unterzüge aus. Wir können nun also einen der beiden "angepassten" Entwürfe nehmen. Hauswirtschaftsraum wäre eben noch abzuklären. Und man müsste eben mit der überdimensionierten Dachterrasse leben. Die schreiben sie, bekommen sie nicht weg. Durch die Etablierung eines Teilkellers würden im Keller noch mal 30m² gespart werden können. Ich habe dazu aber noch keine Einsparquantifizierung.
Ebenfalls schreiben sie, dass der neue Entwurf aufgrund der Konstruktionsweise her günstiger ist. Aber das bringt uns nicht weiter, wenn er nicht gefällt.
Schaut euch mal die zwei verschiedenen Ansätze im EG Grundriss an, wie die Situation neben der Speis gelöst ist.
Ich überlege jetzt in Ruhe, wie wir weiter verfahren. Ich tendiere dazu, genau zu erfragen, welche Veränderungen notwendig wären, um auf den Unterzug zu verzichten. Es dreht sich eigentlich großenteils darum. Ansonsten mit einer der drei statischen Lösungn leben?
Ähnliche Themen