ᐅ Einfamilienhaus, ~160m², Bauhausstil; Erster Entwurf nach unseren Wünschen
Erstellt am: 23.08.19 22:03
N
Notstromkaho674 schrieb:
Beim nächsten seid Ihr vorsichtiger mit der Beauftragung und auch genauer bei der Auswahl. Ich würde mal sagen, dass Ihr Euch zu Herzen nehmen solltet, dass ein Hausentwurf erst mal mit dem Grundgerüst anfängt. Und auf dem arbeitet man weiter.
Der Architekt hat Euch zwei zur Auswahl gegeben, wo Ihr Euch eine Basis aussuchen solltet, unter anderem war da ein Stil bei, der von ihm kam, der aber bei Euch Eure Augen zum Leuchten gebracht hat - beim näheren Hinsehen dann doch nicht das Wahre war.
Allerdings kann man auch sagen, dass er erst von Euch als schlecht betitelt wurde (von dem Ausdruck "sein Konzept durchdrücken" reden wir mal gar nicht), als hier die Feinheiten diskutiert wurden und nicht so gut abgeschnitten hat.
Dass ein Grobentwurf erst noch geschliffen werden muss, wie auch in dem anderen Entwurf zu sehen, hast Du nicht bedacht, sondern redest von Bugs. Sorry, aber Bugs sind in keinem drin.
Notstrom schrieb:
c) das die Grundrisse hier so massiv besser waren als die des Architekten.Waren sie ja gar nicht. Sie waren anders (im Entwurfsmodus gleich) und müssten auch noch angepasst werden. Natürlich stehen sie nach der ganzen Negativbewertung des Architekten besser da - und man darf eines nicht vergessen: wir Laien bewerten ohne Hintergrundwissen mit Abstandsflächen, Statik etc. Der Fachmann hat doch noch ganz andere Baustellen im Kopf, die der Entwurf gerecht werden muss.
Ohne denjenigen auf die Füße treten zu wollen (ich hoffe, @kaho674 und @ivenh0 wissen, wie ich es hier meine),
wäre in #37 die Küche viel zu versetzt, um gut arbeiten zu können, in #104 die Küche auch geschlossen (simuliert auch beim Architekt, dass man beiden haben kann: geschlossen und offen), in #117 wäre das WZ viel zu dunkel und überhaupt tauchte irgendwo bei Dir die Podesttreppe auf, die bei @ivenh0 auch keinen Platz hätte.
#46 (Dein absolute Favorit vor ein paar Tagen) fand ich als schon mal als Ausgangsbasis sehr gut: Küche öffnen, Treppe und Fenster wie auch Badeinrichtung (wie genannt) justieren, hier und da noch Zentimeterarbeit leisten, eben ein paar Wochen wirken lassen. @11ant fand das Schlafzimmer/Ankleide so richtig sch***, ich finde die Situation mit gedanklichen Änderungen (habe ich hier nicht genannt) super... endlich mal was anderes und ein wohliges Glück für die Frau, denn in der Fläche hätte man echt was mit Schminkecke etc, zaubern können. Und was machst Du? Du kündigst den Architekten
Notstrom schrieb:
Weitere Änderungswünsche von uns sind:
- Kamin wird im EG versetzt, angrenzend am Essen/Wohnen sodass wir einen Durchgang vom Flur ins Wohnzimmer haben können (Wand wird hier noch etwas justiert...)
- Die Wand in der Küche kommt weg damit wir die Inselküche realisieren können
- Die "Rundherum-Terrasse" noch verlängern bis zur Fensterfront am Wohnzimmer, damit dort ein Ausgang möglich ist (Schiebetür!)
- Südlich vom Esstisch würden wir dann die Schiebetür mit einer Glasfront ersetzen (inkl. ggf. Balkontür)
- Eventuell die Wendeltreppe ersetzen mit einer Podesttreppe. Hinweis Architekt: Da braucht er Platz dafür
- ggf. noch an der Fläche spielen (Derzeit sind es rund 148m²)
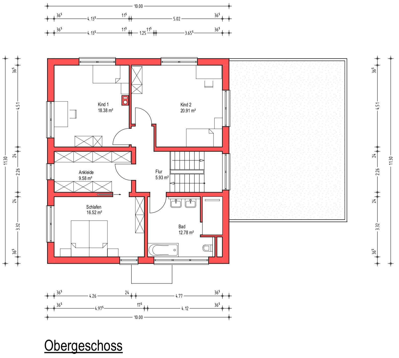
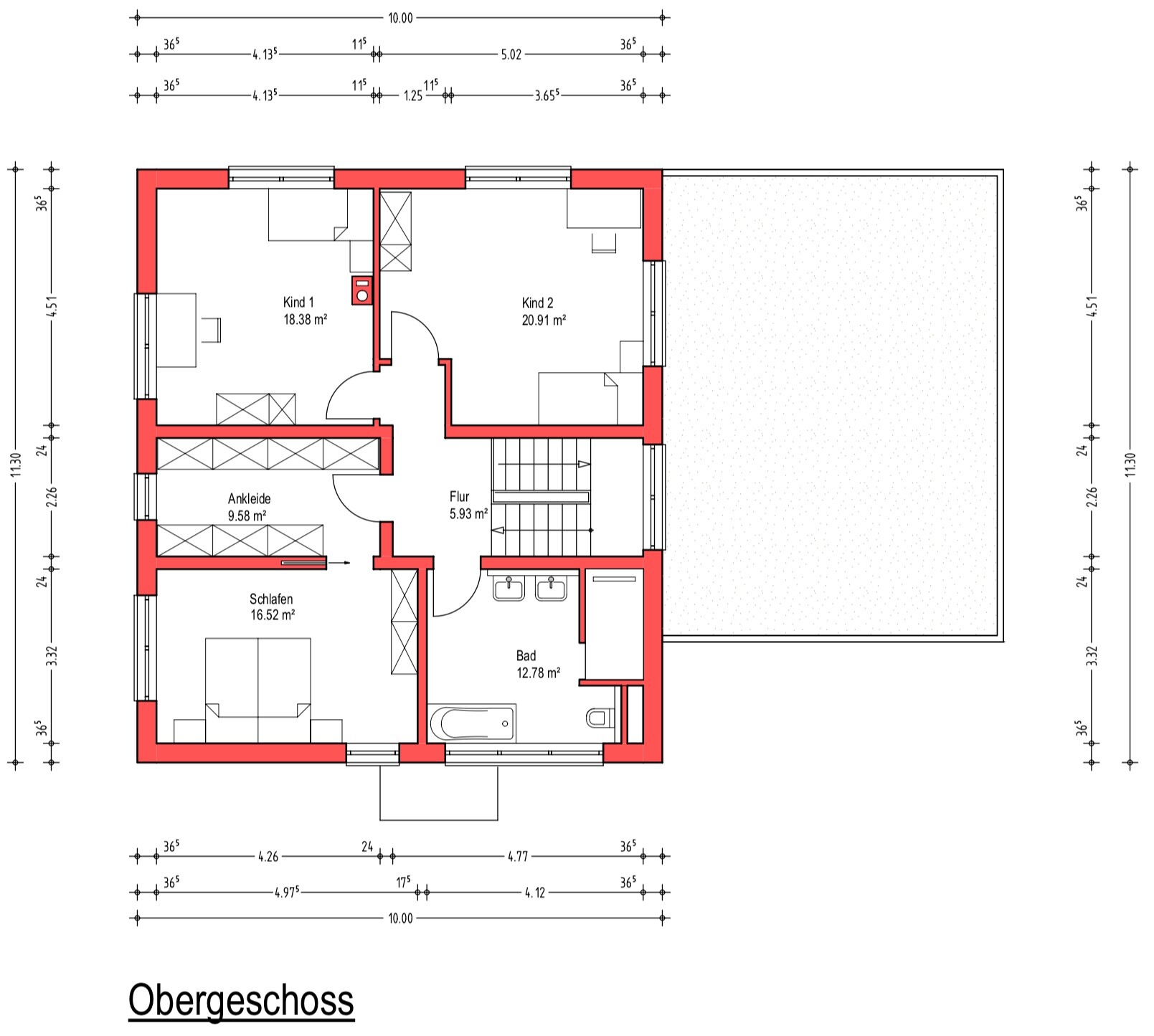
- OG Fenster am "Treppenhaus" vergrößern
Offen:
- Badgröße. Platz für einen Schrank o.ä. zu finden ist etwas schwierig durch die zwei Zugänge ins Bad, ggf. müssen wir das überdenken
- SImulation Walmdach auf dem gegegebenen Haus
- ggf. an der einen oder anderen Stelle noch mal an den Fenstern spielen (z.B. "Treppenhaus", siehe Nordansicht,, Kinderzimmer bodentief dito siehe Nordansicht, Lichtband in der Küche siehe Südansicht)
- Die Front des Hauses (Ostansicht) finden wir noch etwas fad, aber da kommen wir später hin, im Moment hat der Grundriss absolute PrioritätDiese genannten Änderungswünsche sind absolutes Feintuning....
Ich würde mal sagen: geht zu einem GU, wenn Ihr ein angepasstes Rensch-Haus haben wollt. Oder lasst einem freien Architekten auch freie Hand bzw Zeit, etwas zu entwickeln.
Oder nehmt den "#46, Rensch-Haus, ivenh0, Katja-Grundriss" und lasst daran arbeiten.
Notstrom schrieb:
Das war in Anspielung auf die übereinander gelegten Kürbisse.Ich sinniere gerade darüber, ob es für den Kuhbus wohl auch eine Monatskarte gibt Notstrom schrieb:
Das hat uns durch die Form so ziemlich komplett alles erschwert...Das war wohl ein typischer Fall von "Function follows Form" (oder wie es bei Aschenputtel heißt: "Blut ist im Schuh, die rechte Braut sitzt noch daheim").DASI90 schrieb:
Außerdem ist m.E. mit Architekten halt so, dass jeder so seinen Stil hat der dann logischerweise auch immer in den Entwürfen zu finden ist.Ab einem gewissen Maß mögen sich solche Architekten aber bitteschön für diejenigen Bauherren aufheben, die ausdrücklich den Drang haben, daß jeder sieht, in welcher Architekturkonditorei sie ihre Angeberhütte haben schneidern lassen. Dann meinetwegen gerne auch mit Gravur auf dem Haustür-Seitenteil "styled by Priv.-Doz. Dr.-Ing. h.c. von Soundso".Zaba12 schrieb:
Dabei geht es hier bei den Grundrissen noch "gesittet" zu. Die Baufinanzierung Themen sind da nen anderes Kaliber.Merkwürdig, gell ? - wo diese Rubrik doch zu 99% 11antenfrei ist ypg schrieb:
Ich würde mal sagen: geht zu einem GU, wenn Ihr ein angepasstes Rensch-Haus haben wollt. Oder lasst einem freien Architekten auch freie Hand bzw Zeit, etwas zu entwickeln.ypg schrieb:
Ich würde mal sagen, dass Ihr Euch zu Herzen nehmen solltet, dass ein Hausentwurf erst mal mit dem Grundgerüst anfängt. Und auf dem arbeitet man weiter.
Der Architekt hat Euch zwei zur Auswahl gegeben, wo Ihr Euch eine Basis aussuchen solltet,Meines Erachtens hat der Architekt hier eben nicht mit einem Grundgerüst angefangen, sondern gleich mit einem - für die Prinzipentscheidung zwischen zwei ganz unterschiedlichen Baukörperformen zu sehr - konkreten Entwurf. Andererseits muß ich seine Zunft da auch in Schutz nehmen: früher konnte ein Architekt noch so arbeiten, wie er es gelernt hat - der Kunde kam als Laie, maximal mit einer Kritzelei auf Millimeterpapier. Heute muß ein Architekt damit rechnen, daß der Kunde umfangreich informiert und mit prall voller Traumhausbildchenblase zu ihm kommt und dank eigener 3D-animierter Planungsversuche erwartet, daß auch beim Architekten simultan zum Gespräch auf seinem Laptop bunte Simulationen aufpoppen, wovon man gerade spricht. Da ist es naheliegend, daß die Architekten sich einen Frisurenvorschläge-Katalog zurecht legen, bei dem natürlich auch die Modelle aus der Architektenhausstyle-Range der marktrelevanten Hausanbieter eine Rolle spielen - obwohl sie natürlich wissen müßten, daß man damit beim Kunden auch fehlgeworfene Anker setzt, die man schwer wieder rausgezogen bekommt.https://www.instagram.com/11antgmxde/
https://www.linkedin.com/company/bauen-jetzt/
M
Matthew0313.09.19 12:45Wie gehts denn nun konkret weiter? Mediator? Anwalt? Vergleichsangebot?
Matthew03 schrieb:
Wie gehts denn nun konkret weiter? Mediator? Anwalt? Vergleichsangebot?Werde ihm Angebot unterbreiten wie auch gestern telefonisch besprochen. Habe vorhin mit der Architektenkammer telefoniert, er meinte ich solle das so versuchen, rund 100€/Stunde wären angemessen. Wie viel Aufwand drin ist? Keine Ahnung.
Notstrom schrieb:
Wie viel Aufwand drin ist? Keine Ahnung.Frag den neuen Architekt.
Liebe Forum-Mitglieder,
Disclaimer: Bitte nur zielführende, konstruktive Beiträge und keine weiteren Pro-Architekt / Pro-TE-Diskussionen. Wir wachsen gerade massiv an diesem Projekt, lernen draus, sammeln Erfahrungen und möchten gerne einfach nur was schönes auf die Beine stellen.
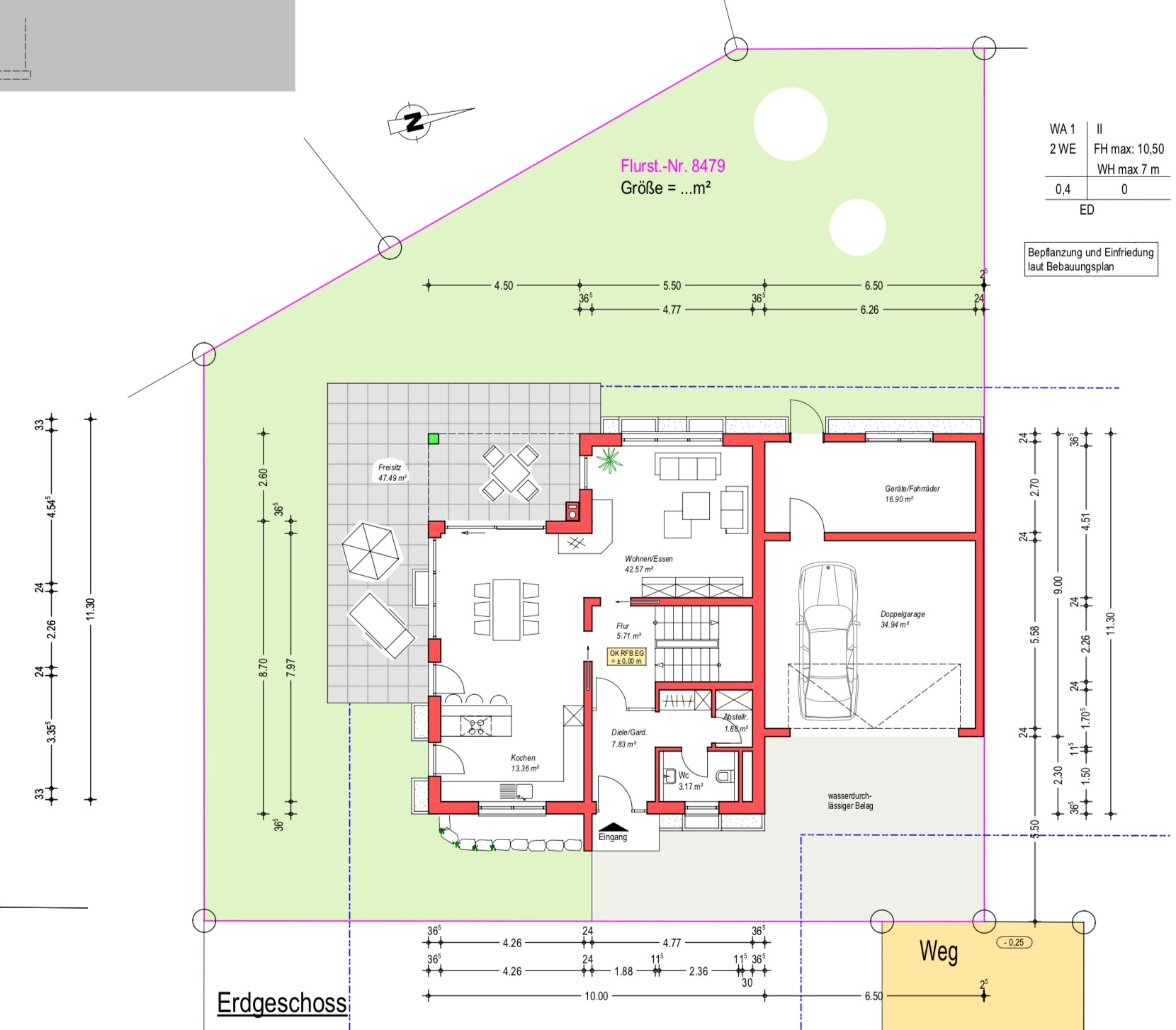
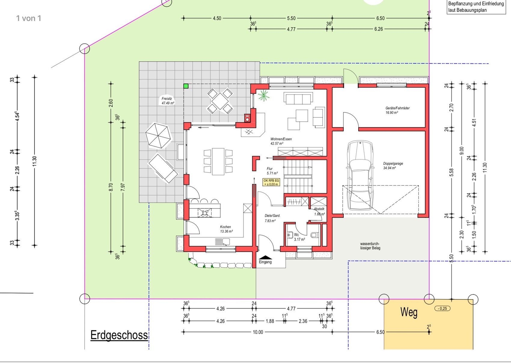
Anbei unser nächster Entwurf für unser Projekt Hausbau. Wenn jemand Parallelen zum bisherigen Stand entdeckt: Berechtigt. Warum? Nun, die Süd/West-Seiten geben automatisch die Terrasse vor, die Garage kommt dadurch zwingend an die Nordseite um für die Terrasse / den Garten aus den Vollen schöpfen zu können (Grenzbebauung)
Wir haben noch ein paar Ideen, sind aber gespannt auf eure Kommentare.
Anbei noch unsere Änderungswünsche / Ideen / Hinweise welche wir auch noch mal mit dem Architekten besprechen werden:








Disclaimer: Bitte nur zielführende, konstruktive Beiträge und keine weiteren Pro-Architekt / Pro-TE-Diskussionen. Wir wachsen gerade massiv an diesem Projekt, lernen draus, sammeln Erfahrungen und möchten gerne einfach nur was schönes auf die Beine stellen.
Anbei unser nächster Entwurf für unser Projekt Hausbau. Wenn jemand Parallelen zum bisherigen Stand entdeckt: Berechtigt. Warum? Nun, die Süd/West-Seiten geben automatisch die Terrasse vor, die Garage kommt dadurch zwingend an die Nordseite um für die Terrasse / den Garten aus den Vollen schöpfen zu können (Grenzbebauung)
Wir haben noch ein paar Ideen, sind aber gespannt auf eure Kommentare.
Anbei noch unsere Änderungswünsche / Ideen / Hinweise welche wir auch noch mal mit dem Architekten besprechen werden:
- Dusche im Gäste-WC fehlt
- Tür in der Diele / Garderobe raus
- Fensterfront bei Wohnen/Essen mit einem statt drei Elementen
- Breite der Garderobe? Ist das so „nutzbar“?
- Breite Durchgang Wohnen/Essen prüfen -> Ofen! Der scheint uns etwas zu schmal zu sein...
- Wand vom Esszimmer (nicht das Eckstück, sondern die Verlängerung aus der Diele zum Flur) in den Flur: Erforderlich?
- Inselküche freistehend?
- Küche: Möglichkeit schaffen für Einbauschränke
- Küche: Fenster optimieren (Entweder Spüle versetzen oder Fenster...)
- Fensterelement in Treppenhaus einplanen -> bisher nur ein Fenster, hätten wir gerne in die Länge nach unten gezogen
Ähnliche Themen