Grundrisse Einfamilienhaus mit Einliegerwohnung bitte Tipps und Feedback

4,90 Stern(e) 9 Votes
Zuletzt aktualisiert 19.11.2025
Sie befinden sich auf der Seite 9 der Diskussion zum Thema: Grundrisse Einfamilienhaus mit Einliegerwohnung bitte Tipps und Feedback
>> Zum 1. Beitrag <<

I

icandoit

Ich meinte eigentlich ein Foto von der Strasse aus aufs Grundstück, damit man den Giebel des Nachbarn sehen kann. An den willst doch anbauen? Wer schreibt es denn vor, dass Du Dach und Hausfronten identisch herstellen musst?

Deine Eltern sind doch auch recht dicht an der Strasse.

Sind die Bebauungen schon abgebrochen?
 
H

haydee

nimm einen Architekten der Erfahrung mit Baulücken hat.
Ohne Rechtsgrundlagen hätte ich das Haus spontan ganz anders gestellt und den Garten nicht zur Straße, sondern zu den Eltern ausgerichtet. Damit er größer wirkt, vielleicht auch ohne Zaun genutzt werden kann
 
11ant

11ant

Endlich, endlich auch mal Vorschläge :) Die letzten 3 Beiträge nehme ich dankend an! Ich habe schon aufgegeben, dass hier noch etwas konstruktives raus kommt!
Wenn Du als "konstruktive" Vorschläge nur die Bilder anderer ebenfalls im Winter nur mittags Licht bekommender Höfe dankenswert findest, gleichzeitig aber den mehrfach geäußerten konstruktiven Vorschlag "zu einem Architekten zu gehen" geflissentlich übergehst, dann gib bitte weiterhin auf, das Trauerspiel ist ja nicht mit anzusehen - ich bin dann ´mal raus. Die Bitte "weniger Bild, mehr Info" kam mehrfach, und dann kommst Du so en passant damit herüber, daß das Haus dem des Nachbarn profilgleich sein soll, nachdem Du vorher die ganze Zeit auf der "alles ist erlaubt" Schiene des populären Mißverständnisses "§34 = Carte blanche" gefahren bist :-(
 
I

icandoit

Vorschlag zur Guete kauf 10 und 11 und bau 4 Reihenhaeuser drauf. 2 verkaufst mit Gewinn und die beiden im Suedwesten kannst selber nach Deinen Wuenschen realisieren. Oder verhandel mit dem Nachbar, dass Ihr das gemeinsam realisiert. Ihr gewinnt beide die Abstandsfläche.
 
F

Freiburger2020

Diese Planungen gibt es alle schon, haben uns aber nicht so vom Hocker gehauen. (Hier allerdings mit 2 Giebel)

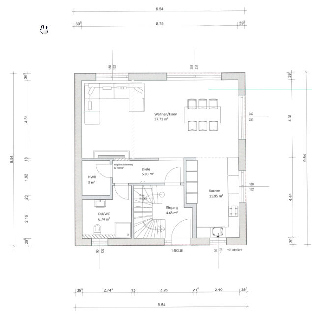
Grundriss eines Hauses: Wohn-/Essbereich, Küche, Diele, Eingang, HWR, Dusche/WC, Treppe.


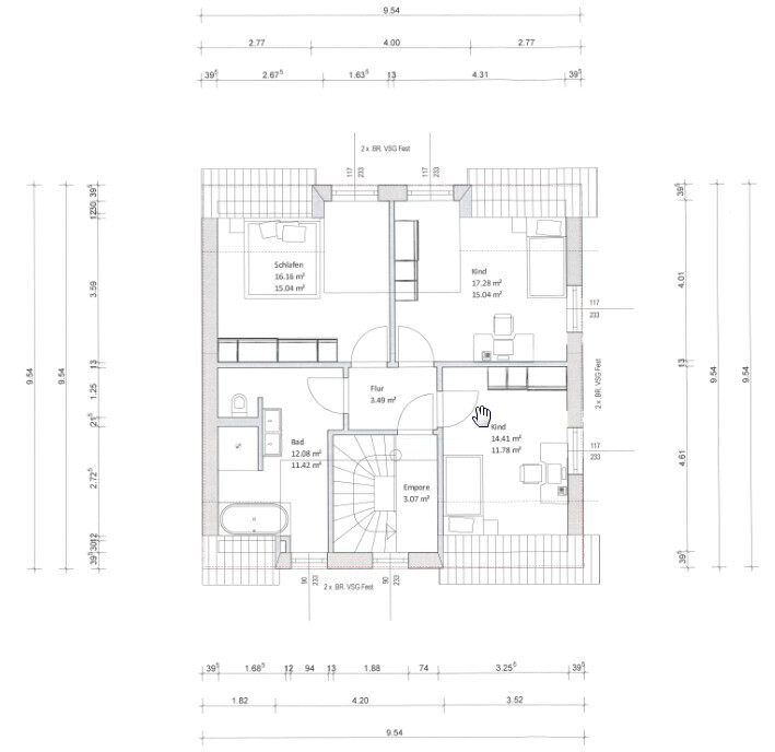
Grundriss eines Obergeschosses mit Flur, Bad, Empore, Schlafen und zwei Kinderzimmern.


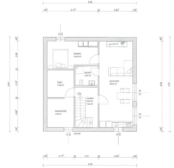
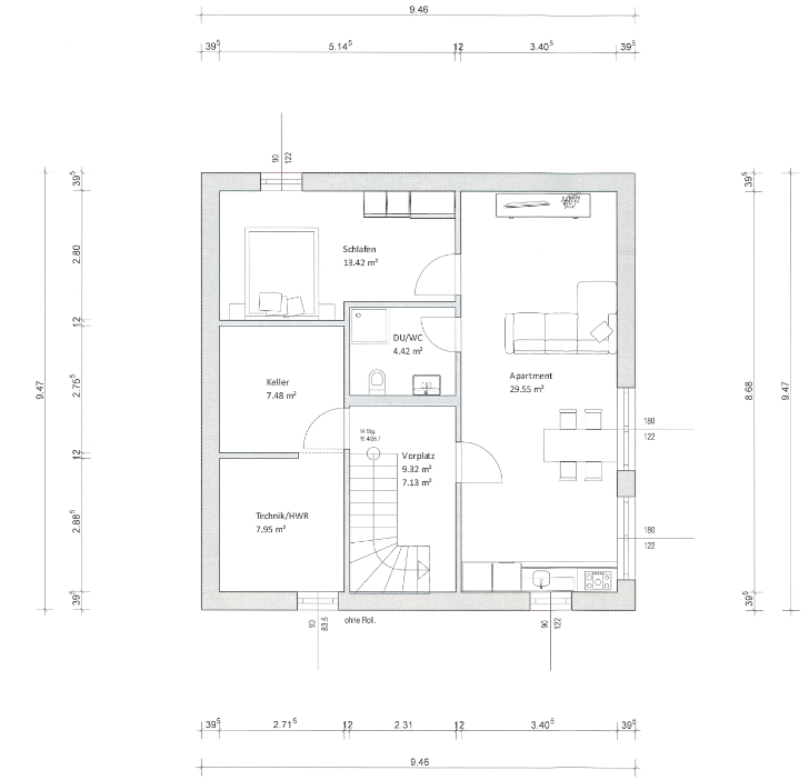
Grundriss eines Apartments: Wohnzimmer mit offener Küche, Schlafzimmer, Bad, Flur, Keller
 
Zuletzt aktualisiert 19.11.2025
Im Forum Grundrissplanung / Grundstücksplanung gibt es 2536 Themen mit insgesamt 87981 Beiträgen


Ähnliche Themen zu Grundrisse Einfamilienhaus mit Einliegerwohnung bitte Tipps und Feedback
Nr.ErgebnisBeiträge
1Grundrissplanung 4-Giebel Haus Herrengiebel Doppelgarage - Seite 212
2Fertigholzhaus Giebel Wetterschutzfarbe 21
3Wir brauchen einen Architekten - oder soll ich das selbst machen? - Seite 214
4Erfahrungen mit Architekten 15
5Schlüsselfertig oder mit Architekten bauen? 19
6Kostenschätzung zweier Architekten liegen weit auseinander! 10
7Braucht man unbedingt einen Architekten? 10
8Vorplanung mit dem Architekten - eigener Grundriss sinnvoll? 18
9Kostenschätzung des Architekten 15
10Baukosten bei Bau mit Architekten. Was sagt eure Erfahrung? 18
11Kostenplanung Einfamilienhaus inkl. Grundstück, Nebenkosten, Architekten 32
12Architekten finden - aber wie? - Seite 326
13Massivhaus vom Architekten, ungefähre Kosten? 16
14Pflichten des Architekten bei Ausschreibung 18
15Grundstückskauf an Architekten gebunden ist das Normal? 16
16Bauvorhaben mit Architekten 31
17Haus durch GU oder Architekten planen lassen? 30
18Bezahlung des Architekten 16
19Kosten Umbauter Raum. Erstentwurf mit Architekten besprochen 27
20Baubeschreibung von Architekten: Wer hat Erfahrung? 13

Oben