Hausbau - Ratgeber
Bauherrenhilfe
- Bauherrenhilfe vor Vertragsabschluss
-- Warum einen unabhängigen Baubetreuer?
-- Vertragsgrundlagen
-- Bausumme
-- Zahlungsplan zur Kostenkontrolle
-- Pflichten des Bauherren vor Vertragsabschluss
-- Unterlagen beim Hausbau vor Vertragsabschluss
- Bauherrenhilfe nach Vertragsabschluss
-- Bauantrag bei Behörden
-- Bau-Genehmigungsverfahren bei Baubehörden
-- Bauspezifische Versicherungen
-- Bauzeitenplan
-- Baubeginn - die Letzten Pflichten der Bauherrschaft
- Bauherrenhilfe während der Bauzeit
- Gewährleistungsansprüche
- Bauabnahme
Baufinanzierung
- Baufinanzierung - Allgemeine Fragen
- Kreditarten
- Kredit-Konditionen
- Bausparen
- Staatliche Förderungen
- Verkehrswert
- Haushaltsrechnung und Bonität
Hausbau Planung
- Haustypen
- Hausbau Vorbereitungsarbeiten
- Das Baugrundstück
- Baugrund beim Hausbau
- Baurecht
- Gebäudeschutz
- Erdarbeiten und Wasserhaltung
- Stützmauern
- Einfriedung
- Untergeschoss
- Kanalisation
- Tragende Elemente
- Nichttragende Innenwände
- Fundation / Fundament
- Deckenkonstruktionen
- Dächer
- Kaminanlagen
- Treppen Rampen Leitern
- Dachbeläge und Spengler
- Fenster
- Sonnen und Wetterschutz
- Aussenputze
- Einbauten, Küchen, Türen
- Bodenbeläge und Unterlagsböden
- Parkett
- Gips, Wand, Decke
Haustechnik und Energie
- Heiztechnik
- Lüftung und Klimatechnik
- Sanitärtechnik
- Elektrotechnik
- Erneuerbare Energie
Whirlpools / Jacuzzi
Hausbau Magazin
- Baufinanzierung trotz Krise?
- Das Blockhaus
- Moderne Dämmstoffe im Vergleich
- Erker Vor- und Nachteile
- Glasflächen beim Hausbau
- Günstig ein Haus Bauen
- Mediterraner Hausbaustil
- Mehrgenerationenhaus
- Moderne Architektur
- Gartengestaltung leicht gemacht
- Traditioneller Ziegelbau
- Villa als höchster Traum
- Im Eigenheim Ruhestand geniessen
- Altbau sanieren
- Kauf einer Holzgarage
- Immobilienmakler
- Arbeitshandschuhe für den Winter
- Zuhause verschönern
- Outdoor-Plissees
- Schlafzimmer planen
- Terrassenüberdachung
- Wohngebäudeversicherung
- Girokonto für Bauherren finden
- Hauseingang gestalten
- Zaunarten und Eigenschaften
- Der perfekte Grundriss
- Sparsamer heizen im Altbau
- Einfamilienhaus smart finanzieren
- Planung einer PV-Anlage
- Neues Haus
- Immobilienfinanzierung
- Installation einer Photovoltaikanlage
- Asbest erkennen und entfernen
- Gartenpflege im Frühling – worauf achten
- Sauna im Fokus - Wellness zuhause
- Erfolgreich vermieten
- Die perfekte Winterbekleidung
- Das Niedrigenergiehaus
- Der April und seine Stürme
- Architektonische Vielfalt
- Ökologisch und nachhaltig bauen
- Das perfekte Schlafzimmer
- Nachhaltige Energieversorgung
- Zukunftsorientiert bauen
- Nachhaltigkeit beim Hausbau
- Tiny Houses
- Wärmepumpen als nachhaltige Heizvariante
- Maßgeschneiderten Kleiderschrank
- Der richtige Baukredit
- Ratgeber für erfolgreichen Hausbau
- Haus als Altersvorsorge
Do-it-yourself Anleitungen
- Verlegeanleitung für Bodenbeläge und Parkett
- Bodenbeläge und Parkett reinigen und pflegen
- Malerarbeiten am Haus
- Garten Tipps
- Umzug und Reinigung

ᐅ Grundriss Zweifamilienhaus Wohnung EG und DG

Erstellt am: 09.08.17 07:39
F
fortuneflake
Hallo,

wir planen gerade ein Zweifamilienhaus mit jeweils einer Wohnung im EG und einer
Wohnung im DG.

Was haltet ihr von unserem Entwurf?

Wir hatten folgende Gedanken:
- rechteckiges Haus mit Satteldach und 2 Vollgeschossen
- Grundstück nur 20 breit, Doppelgarage muss daneben passen (ca. 6 x 7 m)
- Haus 9,5 m x 13 m
- Hauswirtschaftsraum nach vorn geplant zur Straße hin, somit kurze Leitungen
- Eingang vorne bzw nicht weit weg von der Garage, hier später evtl. mal Überdachung
- Doppelgarage (Fertig, nicht massiv) auf der Grundstücksgrenze, somit 1,50 m Gang zwischen Haus und Garage
- kein Keller aus Kostengründen

Den Grundriss vom EG muss ich nachträglich noch reinstellen.

Macht unsere Planung Sinn?
kaho67411.08.17 07:43
ypg schrieb:
Kerstin, das Grundstück ist 20 Meter breit. Wie ist denn bei Dir die Ausrichtung?
Gruß, Yvonne
Planlinks ist Norden - ergibt sich eigentlich aus der Straßenzufahrt der Garage. Sagte Sie nicht irgendwas von Randbebauung? Das ist alles bissel verwirrend, die Infos kommen immer so häppchenweise.
Ich wollt eigentlich auch nur die Idee in den Raum werfen, die Garage zu überbauen.
kaho67411.08.17 10:06
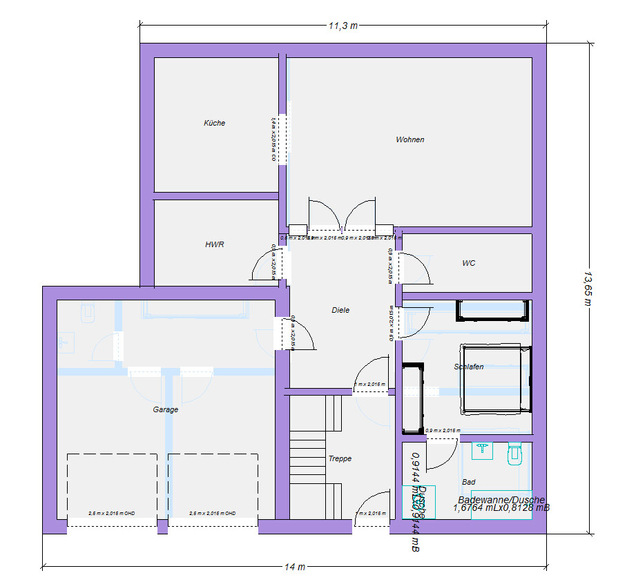
Andere Variante.
14m breit - keine Randbebauung. Fahrräder müssen allerdings in eine Holzhütte, wo auch die Gartengeräte stehen. 😉


Detaillierter Grundrissplan eines Hauses mit Küche, Wohnen, Diele, Bad, WC, Schlafzimmer und Garage

2D-Grundriss eines Hauses mit Küche, Wohnen, Bad, Diele, HWR und Schlafzimmer
F
fortuneflake
14.08.17 11:10

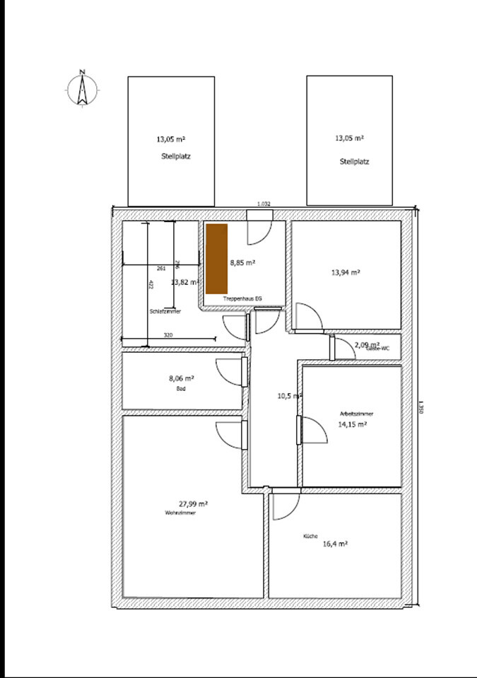
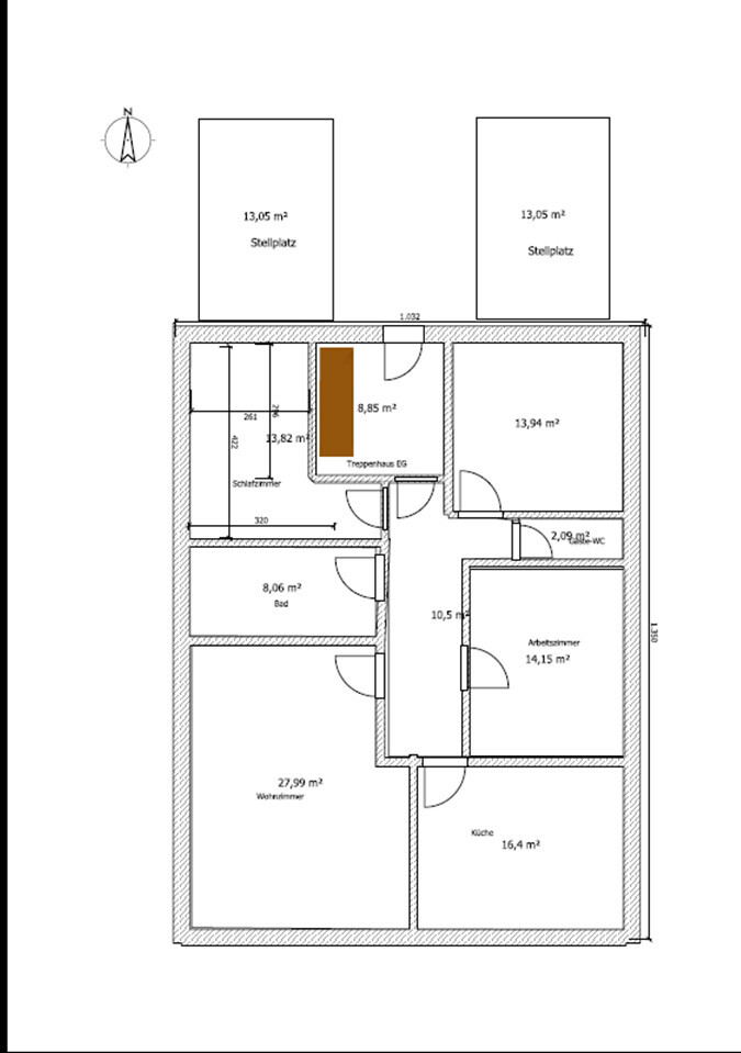
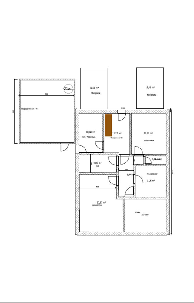
Detaillierter Grundriss eines Hauses mit mehreren Zimmern, Treppenhaus und Eingang



Grundriss eines Einfamilienhauses mit Zimmern, Wohnzimmer, Küche, Schlafzimmer und Bad
F
fortuneflake
14.08.17 11:16
So hier der neue Versuch.
10,32 x 13,50
Größer sollte es nicht werden, das wäre unser Limit
Die Garage soll eine Fertiggarage werden und kann daher nicht ins Haus integriert werden.
Zur Orientierung: Garage liegt Richtung Süden und Stellplätze im Westen (vor dem Haus)
Auf beiden Seiten müssen wir 3 m einhalten zum Nachbarn hin.
Raumprogramm soll wie im Grundriss sein, sprich unten 1 zus. Zimmer und Gäste-WC.
Und oben 2 Zimmer + Gäste-WC. Somit wäre theoretisch mal Platz für 2 Kids, die aber noch nicht vorhanden sind.
kaho67414.08.17 12:21
Mmh. Ist halt ein Versuch. Nur mal so ein paar Denkanstöße:
- Zeichne mal in die WCs Klo und Waschbecken ein. Kann man da noch laufen oder muss man auf's Klo jumpen?
- Zeichne mal ins Schlafzimmer OG ein 2m x 2m Bette ein. Auch ein Jump-Bett?
- Wie genau funktioniert die Treppe? Soll sicher 1/2 gewendelt sein? Einfach mal ein Maß dran, dann weiß man etwa, ob es klappt.
- Wie bekommst Du einen größeren Schrank durch die Tür ins Schlafzimmer EG oder ins unbenannte Zimmer OG?
- Die Sonnenseite willst Du mit der Garage verdecken. Schade drum.
- Du betrittst die Wohnungen und landest immer in einem dunklen, langen, schmalen Flur. Nicht sehr einladend.
- Wo werfe ich meine Garderobe ab - unten wie oben?
- mal das Bad möblieren. Wird im wahrsten Sinne eng.
K
kbt09
14.08.17 12:34
... und, wähle doch mal eine größere Schrift oder minimiere den Ausschnitt auf die tatsächliche Zeichnung und stelle nicht so viel weißen Rand rundherum mit rein. Man kann gar nichts von deiner Beschriftung und den wenigen Maßen lesen.

Einfach einen Nordpfeil mit auf die Zeichnung, dann muss man sich die Infos nicht immer erst im Text suchen 😉

Ansonsten schließe ich mich @kaho674 an.
gäste-wcgarageschlafzimmerrandbebauungklozeichnung