Hausbau - Ratgeber
Bauherrenhilfe
- Bauherrenhilfe vor Vertragsabschluss
-- Warum einen unabhängigen Baubetreuer?
-- Vertragsgrundlagen
-- Bausumme
-- Zahlungsplan zur Kostenkontrolle
-- Pflichten des Bauherren vor Vertragsabschluss
-- Unterlagen beim Hausbau vor Vertragsabschluss
- Bauherrenhilfe nach Vertragsabschluss
-- Bauantrag bei Behörden
-- Bau-Genehmigungsverfahren bei Baubehörden
-- Bauspezifische Versicherungen
-- Bauzeitenplan
-- Baubeginn - die Letzten Pflichten der Bauherrschaft
- Bauherrenhilfe während der Bauzeit
- Gewährleistungsansprüche
- Bauabnahme
Baufinanzierung
- Baufinanzierung - Allgemeine Fragen
- Kreditarten
- Kredit-Konditionen
- Bausparen
- Staatliche Förderungen
- Verkehrswert
- Haushaltsrechnung und Bonität
Hausbau Planung
- Haustypen
- Hausbau Vorbereitungsarbeiten
- Das Baugrundstück
- Baugrund beim Hausbau
- Baurecht
- Gebäudeschutz
- Erdarbeiten und Wasserhaltung
- Stützmauern
- Einfriedung
- Untergeschoss
- Kanalisation
- Tragende Elemente
- Nichttragende Innenwände
- Fundation / Fundament
- Deckenkonstruktionen
- Dächer
- Kaminanlagen
- Treppen Rampen Leitern
- Dachbeläge und Spengler
- Fenster
- Sonnen und Wetterschutz
- Aussenputze
- Einbauten, Küchen, Türen
- Bodenbeläge und Unterlagsböden
- Parkett
- Gips, Wand, Decke
Haustechnik und Energie
- Heiztechnik
- Lüftung und Klimatechnik
- Sanitärtechnik
- Elektrotechnik
- Erneuerbare Energie
Whirlpools / Jacuzzi
Hausbau Magazin
- Baufinanzierung trotz Krise?
- Das Blockhaus
- Moderne Dämmstoffe im Vergleich
- Erker Vor- und Nachteile
- Glasflächen beim Hausbau
- Günstig ein Haus Bauen
- Mediterraner Hausbaustil
- Mehrgenerationenhaus
- Moderne Architektur
- Gartengestaltung leicht gemacht
- Traditioneller Ziegelbau
- Villa als höchster Traum
- Im Eigenheim Ruhestand geniessen
- Altbau sanieren
- Kauf einer Holzgarage
- Immobilienmakler
- Arbeitshandschuhe für den Winter
- Zuhause verschönern
- Outdoor-Plissees
- Schlafzimmer planen
- Terrassenüberdachung
- Wohngebäudeversicherung
- Girokonto für Bauherren finden
- Hauseingang gestalten
- Zaunarten und Eigenschaften
- Der perfekte Grundriss
- Sparsamer heizen im Altbau
- Einfamilienhaus smart finanzieren
- Planung einer PV-Anlage
- Neues Haus
- Immobilienfinanzierung
- Installation einer Photovoltaikanlage
- Asbest erkennen und entfernen
- Gartenpflege im Frühling – worauf achten
- Sauna im Fokus - Wellness zuhause
- Erfolgreich vermieten
- Die perfekte Winterbekleidung
- Das Niedrigenergiehaus
- Der April und seine Stürme
- Architektonische Vielfalt
- Ökologisch und nachhaltig bauen
- Das perfekte Schlafzimmer
- Nachhaltige Energieversorgung
- Zukunftsorientiert bauen
- Nachhaltigkeit beim Hausbau
- Tiny Houses
- Wärmepumpen als nachhaltige Heizvariante
- Maßgeschneiderten Kleiderschrank
- Der richtige Baukredit
- Ratgeber für erfolgreichen Hausbau
- Haus als Altersvorsorge
Do-it-yourself Anleitungen
- Verlegeanleitung für Bodenbeläge und Parkett
- Bodenbeläge und Parkett reinigen und pflegen
- Malerarbeiten am Haus
- Garten Tipps
- Umzug und Reinigung

ᐅ Grundriss Zweifamilienhaus Wohnung EG und DG

Erstellt am: 09.08.17 07:39
F
fortuneflake
Hallo,

wir planen gerade ein Zweifamilienhaus mit jeweils einer Wohnung im EG und einer
Wohnung im DG.

Was haltet ihr von unserem Entwurf?

Wir hatten folgende Gedanken:
- rechteckiges Haus mit Satteldach und 2 Vollgeschossen
- Grundstück nur 20 breit, Doppelgarage muss daneben passen (ca. 6 x 7 m)
- Haus 9,5 m x 13 m
- Hauswirtschaftsraum nach vorn geplant zur Straße hin, somit kurze Leitungen
- Eingang vorne bzw nicht weit weg von der Garage, hier später evtl. mal Überdachung
- Doppelgarage (Fertig, nicht massiv) auf der Grundstücksgrenze, somit 1,50 m Gang zwischen Haus und Garage
- kein Keller aus Kostengründen

Den Grundriss vom EG muss ich nachträglich noch reinstellen.

Macht unsere Planung Sinn?
kaho67414.08.17 12:49
kbt09 schrieb:
..
Einfach einen Nordpfeil mit auf die Zeichnung, dann muss man sich die Infos nicht immer erst im Text suchen 😉
Nordpfeile sind da - allerdings zeigen sie jedes mal in eine andere Richtung. 🙂
F
fortuneflake
04.12.17 20:17
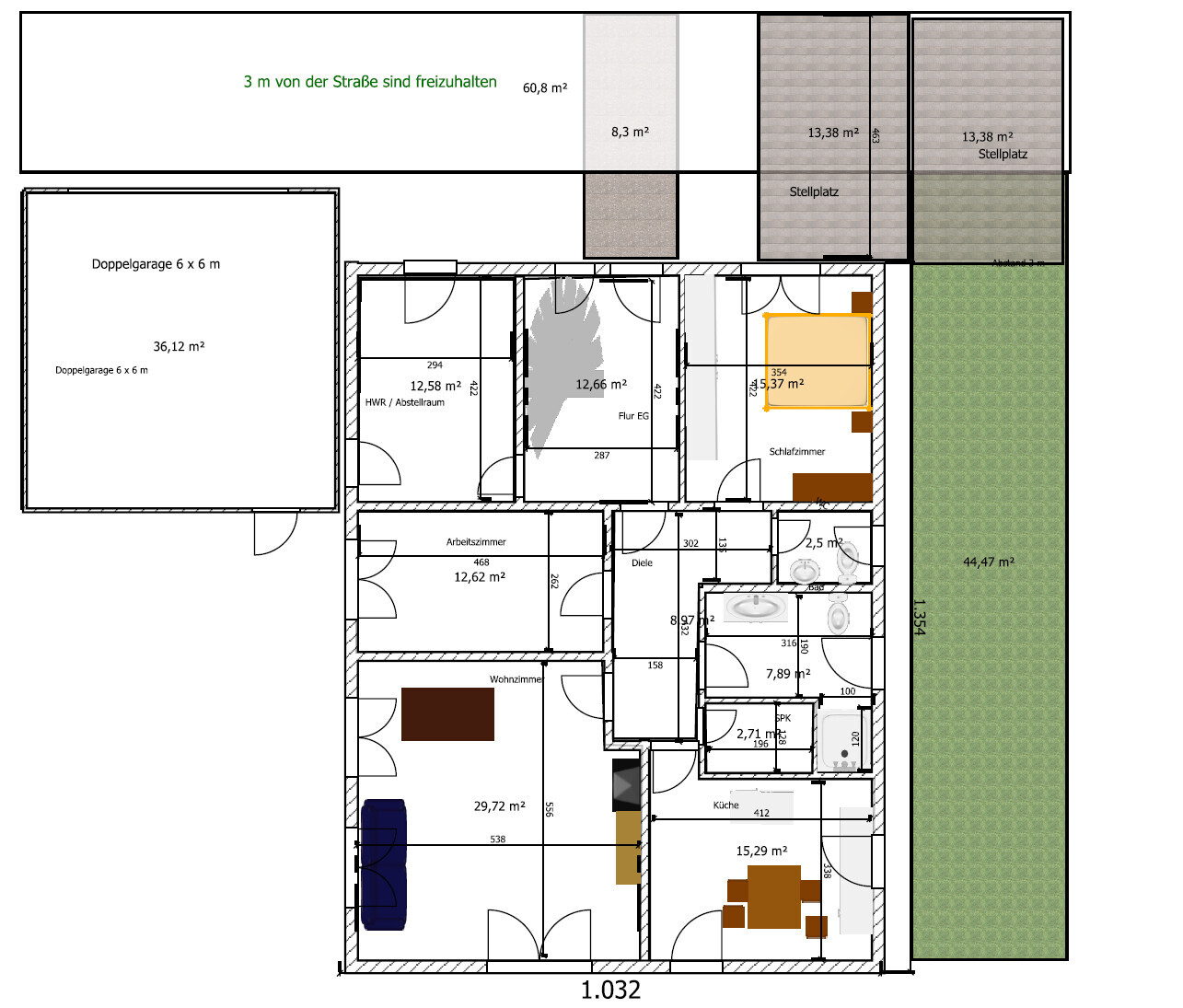
Hier nochmal mein neuer Entwurf:

EG

2D-Hausgrundriss mit Doppelgarage, Schlafzimmer, Küche, Wohnzimmer und Gartenbereich


und OG


Detaillierter 2D-Grundriss eines Hauses mit Schlafzimmern Wohnzimmer Küche und Bad


Die Anordnung der Garage ist bewusst so gewollt. und die Verbindung ins Haus auch gewünscht.

Bitte um Meinungen dazu. Bin für neue Anregungen immer offen.

Grundriss eines Hauses mit Küche, Wohnzimmer, Schlafzimmer, Bad und Doppelgarage.