Hallo,
wir planen nun seit einem 3/4 Jahr unser Haus. Einige Planungen hatte ich vor einiger Zeit auch schon mal zur Diskussion gestellt.
Das Haus haben wir nun mit einer Architektin geplant. Wir waren mit der Planung nun schon so weit, dass wir kurz vor Vertragsunterzeichnung mit der Architektin und auch vor Beurkundung beim Notar standen. Nun haben wir allerdings noch mal ein alternatives Grundstück gefunden und werden wohl noch mal umschwenken.
Das alte Grundstück war 825qm groß und war in Richtung Süden ausgerichtet. Nachteil an dem Grundstück war/ist, dass es an einem Kreisel liegt und das Grundstück daher in einem West- und Südgarten aufgeteilt ist (vgl. ALT_Ansicht_3D). Das Baugebiet selber liegt in einer Sackgasse, von daher dürfte man hier nicht so viel Verkehr erwarten. Weiterer Nachteil ist, dass wir im Südosten ein Leitungsrecht für den örtl. Wasserverband eintragen lassen müssen. Außerdem sind die örtl. Bauvorschriften sehr streng gewesen, was z.Bsp. die Höhe der Hecke anbelangt.
Das neue Grundstück hat nun folgende Eckdaten:
Größe des Grundstücks: 912qm
Grundflächenzahl 0,3
1 Vollgeschoss
Im Westen freier Blick auf's Feld, wobei nicht ausgeschlossen ist dass irgendwann das Baugebiet in Richtung Westen erweitert wird. Im Norden ein Nachbargrundstück. Eckgrundstück, wobei die Straße im Süden im Feld "endet" also keine Durchfahrtsstraße ist.
Dachform: Satteldach
Stilrichtung: Landhaus
Ausrichtung: Grundstück in Südwest Ausrichtung.
Nun haben wir unser ursprüngliches Haus gedreht und gespiegelt und auf das neue Grundstück ausgerichtet in Ost-West-Ausrichtung. Uns gefällt es sehr gut. Seht ihr denn irgendwelche Nachteile im Vergleich zur alten Planung oder habt vllt. noch Vorschläge auf die wir noch nicht gekommen sind?
Kurz noch ein paar Hinweise: Der Technikraum (Hauswirtschaftsraum) soll nur für Heizung, Waschmaschine, Trockner und wenn es noch passt für den Stromverteiler verwendet werden. Die Speis war zum Einen als Speisekammer, zum Anderen auch als eine Art Schleuse gedacht durch die man schnell aus dem Garten gehen kann ohne durch Wohnzimmer oder Küche gehen zu müssen.
In der neuen Planung hätten wir den Vorteil, den Technikraum als Durchgang zur Garage zu verwenden.
Viele Grüße






wir planen nun seit einem 3/4 Jahr unser Haus. Einige Planungen hatte ich vor einiger Zeit auch schon mal zur Diskussion gestellt.
Das Haus haben wir nun mit einer Architektin geplant. Wir waren mit der Planung nun schon so weit, dass wir kurz vor Vertragsunterzeichnung mit der Architektin und auch vor Beurkundung beim Notar standen. Nun haben wir allerdings noch mal ein alternatives Grundstück gefunden und werden wohl noch mal umschwenken.
Das alte Grundstück war 825qm groß und war in Richtung Süden ausgerichtet. Nachteil an dem Grundstück war/ist, dass es an einem Kreisel liegt und das Grundstück daher in einem West- und Südgarten aufgeteilt ist (vgl. ALT_Ansicht_3D). Das Baugebiet selber liegt in einer Sackgasse, von daher dürfte man hier nicht so viel Verkehr erwarten. Weiterer Nachteil ist, dass wir im Südosten ein Leitungsrecht für den örtl. Wasserverband eintragen lassen müssen. Außerdem sind die örtl. Bauvorschriften sehr streng gewesen, was z.Bsp. die Höhe der Hecke anbelangt.
Das neue Grundstück hat nun folgende Eckdaten:
Größe des Grundstücks: 912qm
Grundflächenzahl 0,3
1 Vollgeschoss
Im Westen freier Blick auf's Feld, wobei nicht ausgeschlossen ist dass irgendwann das Baugebiet in Richtung Westen erweitert wird. Im Norden ein Nachbargrundstück. Eckgrundstück, wobei die Straße im Süden im Feld "endet" also keine Durchfahrtsstraße ist.
Dachform: Satteldach
Stilrichtung: Landhaus
Ausrichtung: Grundstück in Südwest Ausrichtung.
Nun haben wir unser ursprüngliches Haus gedreht und gespiegelt und auf das neue Grundstück ausgerichtet in Ost-West-Ausrichtung. Uns gefällt es sehr gut. Seht ihr denn irgendwelche Nachteile im Vergleich zur alten Planung oder habt vllt. noch Vorschläge auf die wir noch nicht gekommen sind?
Kurz noch ein paar Hinweise: Der Technikraum (Hauswirtschaftsraum) soll nur für Heizung, Waschmaschine, Trockner und wenn es noch passt für den Stromverteiler verwendet werden. Die Speis war zum Einen als Speisekammer, zum Anderen auch als eine Art Schleuse gedacht durch die man schnell aus dem Garten gehen kann ohne durch Wohnzimmer oder Küche gehen zu müssen.
In der neuen Planung hätten wir den Vorteil, den Technikraum als Durchgang zur Garage zu verwenden.
Viele Grüße
Grym schrieb:
ypg, jetzt hast du doch glatt vergessen zu kritisieren, dass es vom Flur keinen direkten Zugang zur Küche gibt?
Damit ist das Haus jetzt nahezu unbewohnbar... oder so...Nein!
Nein, weil a) ich bin hier nicht angestellt, um Euch mit Antworten vorzugreifen oder überhaupt etwas zum Thema zu posten.
Nein, weil b) ich habe nichts vergessen!
Nein, weil c) es geht nicht grundsätzlich um ein Muss eines direkten Zugangs von Flur zur Küche
Nein, weil d) es ist ein kurzer Weg von Flur/Hauswirtschaftsraum/Küche vorhanden
Für Dich noch mal: e) Man muss einen Entwurf immer im Ganzen betrachten. Man kann nicht mit einer Auflistung oder Tabelle abhaken, dass etwas im Haus geplant wird oder nicht. Das gilt auch für Planungen, die auf Vergleiche mit anderen Wohnungen (dort muss der Schrank hin/ da braucht es nichts, das haben wir jetzt auch nicht) basieren.
Leider haben wir schon zu oft von Dir gelesen und es Dir auch zu verstehen gegeben - nur fruchtet es bei Dir nicht. So werden auch Deine Versuche sehr wahrscheinlich immer der berechtigten Kritik ausgesetzt sein, als wie hier zu sehen: ein gelungener Entwurf, der freundlich wirkt und nach mehreren Wochen gewachsen ist.
Ich sehe gerade noch: Spitzboden ausbauen? Da nur ein Vollgeschoss erlaubt ist, dürft ihr vermutlich nicht zu viel Drempel bauen, oder? Je nach Dachneigung entsteht dann auch kein großer Spitzboden mehr. Habt ihr das schon mal genauer rechnen lassen?
Die Ankleide ist tendenziell ein paar cm zu klein in der Breite.
Die Ankleide ist tendenziell ein paar cm zu klein in der Breite.
Also den Drempel haben wir mit 1m geplant (Dachneigung 45°)...mehr ist dann aufgrund der einzuhaltenden Eingeschossigkeit nicht drin.
Wir wollten den Spitzboden aufteilen in ein kleines Arbeitszimmer (PC+evtl. kleine Gästecouch) und den Rest als Abstellraum.
Den Zugang zum Schlafzimmer haben wir nun über die Ankleide geändert.
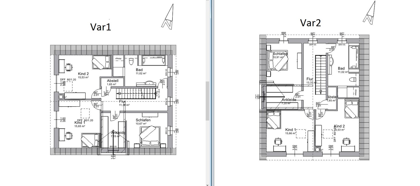
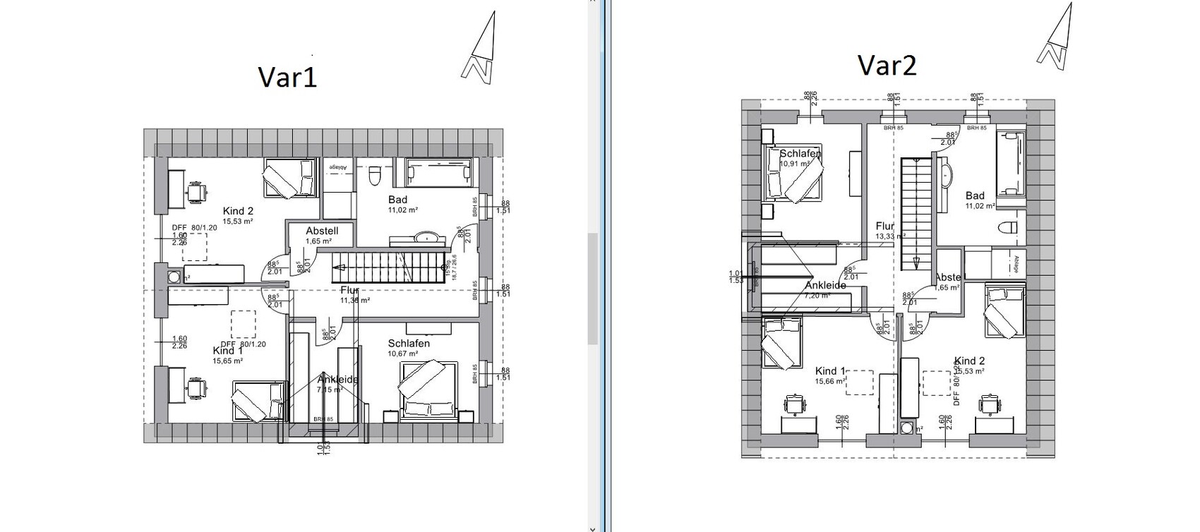
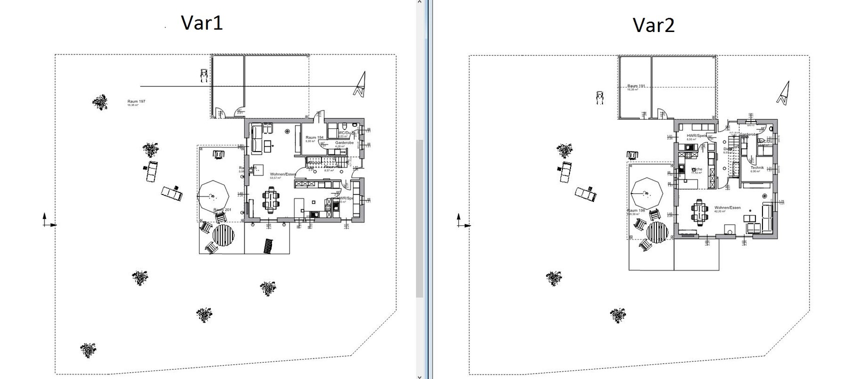
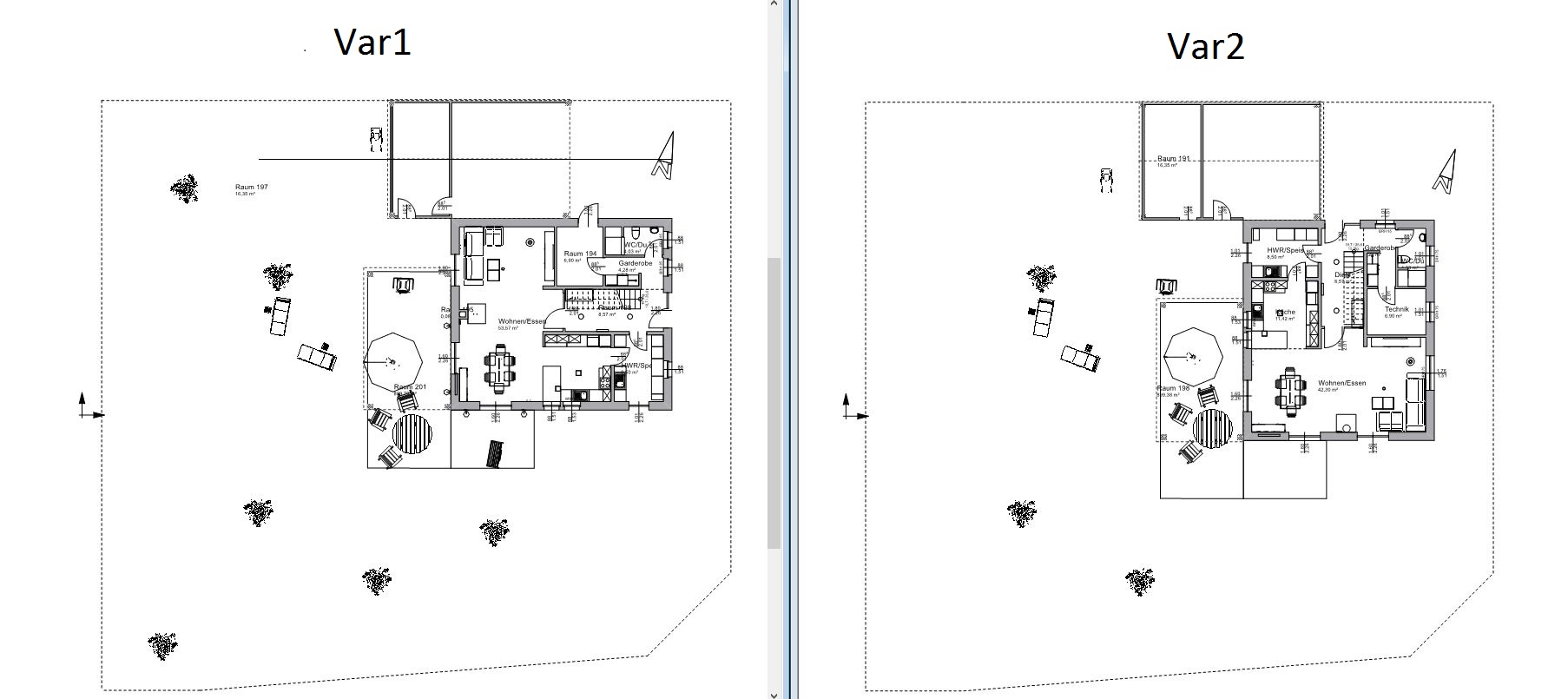
Wir schwanken jetzt zwischen 2 Varianten wie wir das Haus auf dem Grundstück stellen könnten (Anmerkung: Straße im Süden nur ein Rad/Fußweg)
Vor-und Nachteile die wir sehen:
Var1 (Giebel in Ost-West-Richtung):
- Dachfläche gen Süden für später mögliche Photovoltaikanlage
- separat gestaltbarer Eingangsbereich/Zufahrt Garage
- überdachter Nebeneingang über Carport
- Wohn-Essbereich in Richtung Feldrandlage (Westen)
Var2 (Giebel ind Nord-Süd-Richtung):
- Ausrichtung lange Hausfront an Straße (Ost) wirkt harmonischer
- Gartengestaltung --> "größere Schutzecke" durch Haus-Carport-Position
- kurzer Weg Carport in Speis bzw. Küche --> Einkauf
- Kinderzimmer gen Süden (Helligkeit)
Habt ihr noch Hinweise die wir noch nicht beachtet haben?
Wo seht ihr Vor-/Nachteile und welche Variante würdet ihr wählen?
Danke schon mal vorab.

Wir wollten den Spitzboden aufteilen in ein kleines Arbeitszimmer (PC+evtl. kleine Gästecouch) und den Rest als Abstellraum.
Den Zugang zum Schlafzimmer haben wir nun über die Ankleide geändert.
Wir schwanken jetzt zwischen 2 Varianten wie wir das Haus auf dem Grundstück stellen könnten (Anmerkung: Straße im Süden nur ein Rad/Fußweg)
Vor-und Nachteile die wir sehen:
Var1 (Giebel in Ost-West-Richtung):
- Dachfläche gen Süden für später mögliche Photovoltaikanlage
- separat gestaltbarer Eingangsbereich/Zufahrt Garage
- überdachter Nebeneingang über Carport
- Wohn-Essbereich in Richtung Feldrandlage (Westen)
Var2 (Giebel ind Nord-Süd-Richtung):
- Ausrichtung lange Hausfront an Straße (Ost) wirkt harmonischer
- Gartengestaltung --> "größere Schutzecke" durch Haus-Carport-Position
- kurzer Weg Carport in Speis bzw. Küche --> Einkauf
- Kinderzimmer gen Süden (Helligkeit)
Habt ihr noch Hinweise die wir noch nicht beachtet haben?
Wo seht ihr Vor-/Nachteile und welche Variante würdet ihr wählen?
Danke schon mal vorab.
Ähnliche Themen