OWLer schrieb:
Bei #21 eventuell nicht, aber mit diesem Design kann ich mich echt gut anfreunden. Gibt's eigentlich noch mehr Stimmberechtigte?So, es gibt endlich wieder Neuigkeiten. Erstens ist GU2 aufgrund seiner Preisvorstellungen nun raus. Ein abgespeckter Entwurf passte dann so halbwegs ins Budget, allerdings war das dann nicht mehr "unser Haus".
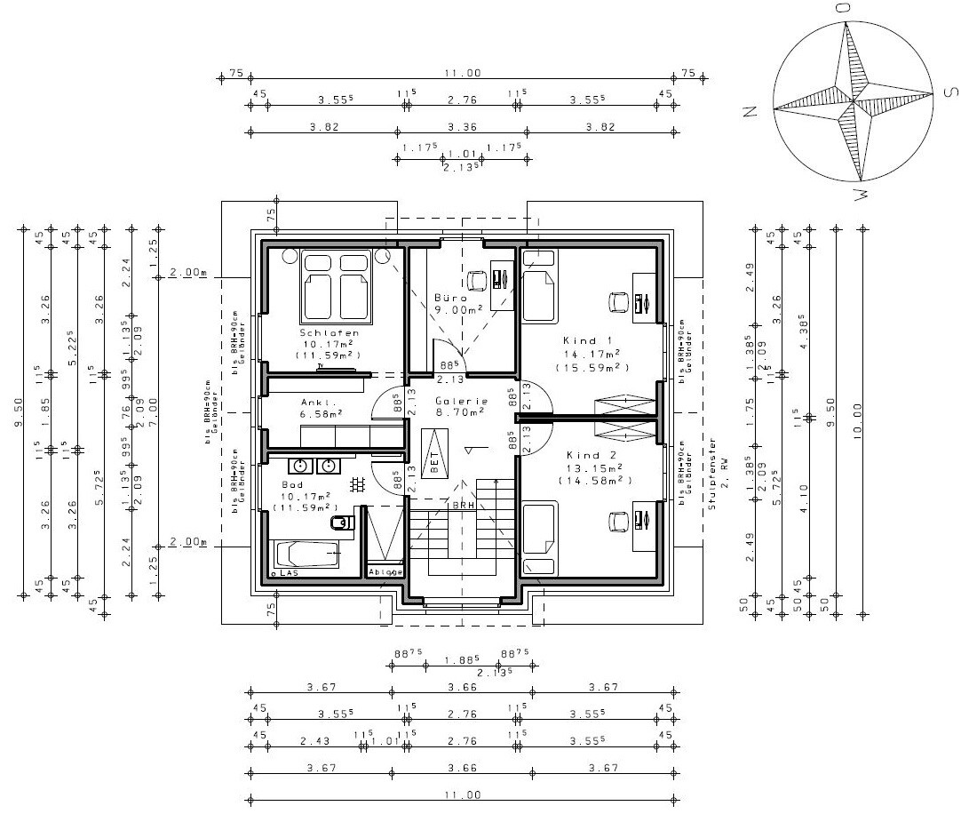
GU1 haben wir allerdings die hier von @kaho674 erarbeiteten Entwürfe als Handskizze zugeschickt. Das ist dabei herausgekommen:
EG:

OG:

Achtung: Fenster, Außenansicht etc. lagen erst mal nicht im Fokus. Planer vom Unternehmen hatte nach Rücksprache mit dem GU nur wenig Zeit, da er parallel wohl ein großes Projekt für die Baugenehmigung fertig machen musste. Daher hat er wohl lediglich schnell den Grundriss gezeichnet und Maße und Flächen gezogen.
Das würden wir noch anpassen wollen, wenn uns von Seiten den Forums keine grundsätzliche Klopper aufgedeckt werden.

Problem:
Wo wir uns allerdings überhaupt nicht sicher sind, ist die Bürogröße von 9m² im Rohbau. In der Theorie sollte es ausreichen, in der Praxis? Ich hätte mir vorgestellt, an eine Wand den Schreibtisch im rechten Winkel zum Fenster zu stellen und auf der anderen Seite die ganze Wand mit Schrank/Regal zu füllen.
Ah, darauf hatte ich gar nicht mehr geantwortet. Sorry! Eingang ist in unseren gedanklichen Entwürfen eh nie unter dem Carport eingeplant gewesen. Das Carport soll nach hinten verschoben werden, dass wir am Wohnzimmer eine ruhige, Sicht- und windgeschützte Ecke haben.
GU1 haben wir allerdings die hier von @kaho674 erarbeiteten Entwürfe als Handskizze zugeschickt. Das ist dabei herausgekommen:
EG:
OG:
Achtung: Fenster, Außenansicht etc. lagen erst mal nicht im Fokus. Planer vom Unternehmen hatte nach Rücksprache mit dem GU nur wenig Zeit, da er parallel wohl ein großes Projekt für die Baugenehmigung fertig machen musste. Daher hat er wohl lediglich schnell den Grundriss gezeichnet und Maße und Flächen gezogen.
Das würden wir noch anpassen wollen, wenn uns von Seiten den Forums keine grundsätzliche Klopper aufgedeckt werden.
- Wir würden auf jeden Fall die Fensterflächen in den Garten anpassen und versuchen, 3 große bodentiefe Doppelfenster (Wohnen, Essen, Giebel mit Schiebetür) ergänzen.
- Dachüberstände würden wir noch einkürzen für eine modernere Optik.
- Dann konnte ich wegen Flur/Treppe noch nicht mit dem GU telefonieren. Ich vermute, dass der 70cm Freiraum zwischen den beiden Treppenläufen der Symmetrie/Drittelung geschuldet ist. Die Außenansicht wäre uns durchaus auch wichtig, wenn der Erker vorne zu schmal wird, siehts auch doof aus. Ich stelle mir vor, die Außenmauern bleiben zu lassen und mit einer zusätzlichen Reihe Steinen im Inneren dann mehr Raum in den angrenzenden Räumen zu haben (Küche, Bad, K2).
- Ankleide einen Stein in Richtung Schlafen, um somit ca. 25cm zu gewinnen. Ein Meter zwischen Bett und Wand sollte uns eigentlich reichen. Haben wir jetzt auch und gerade mit einer separaten Ankleide sollte es ja entspannter im Schlafzimmer zugehen.
- WC im EG um 90° gedreht und dann größerer Eingangsbereich bzw. kein separater Abstellraum und Garderobe/sitzbank in den dann sehr offenen Bereich.
Problem:
Wo wir uns allerdings überhaupt nicht sicher sind, ist die Bürogröße von 9m² im Rohbau. In der Theorie sollte es ausreichen, in der Praxis? Ich hätte mir vorgestellt, an eine Wand den Schreibtisch im rechten Winkel zum Fenster zu stellen und auf der anderen Seite die ganze Wand mit Schrank/Regal zu füllen.
ypg schrieb:
Bei dem Entwurf von #77 würde ich den Eingang nicht unter den Carport setzen. Aber es sollte nach Belieben das Versetzen des Einganges bzw Tausch Garderobe/ Eingang kein Problem sein.
Ah, darauf hatte ich gar nicht mehr geantwortet. Sorry! Eingang ist in unseren gedanklichen Entwürfen eh nie unter dem Carport eingeplant gewesen. Das Carport soll nach hinten verschoben werden, dass wir am Wohnzimmer eine ruhige, Sicht- und windgeschützte Ecke haben.
Ist eine offene Treppe für euch Pflicht?
Sonst könntet ihr die Treppe schließen und darunter noch einmal gut 2,5-3m² Abstellraum/Garderobe
oder auch Speisekammer gewinnen (vom Flur begehbar oder von der Küche aus wenn ihr da auf einen Schrank verzichtet)
Sonst könntet ihr die Treppe schließen und darunter noch einmal gut 2,5-3m² Abstellraum/Garderobe
oder auch Speisekammer gewinnen (vom Flur begehbar oder von der Küche aus wenn ihr da auf einen Schrank verzichtet)
Ähnliche Themen