Hallo,
wir planen nun seit einem 3/4 Jahr unser Haus. Einige Planungen hatte ich vor einiger Zeit auch schon mal zur Diskussion gestellt.
Das Haus haben wir nun mit einer Architektin geplant. Wir waren mit der Planung nun schon so weit, dass wir kurz vor Vertragsunterzeichnung mit der Architektin und auch vor Beurkundung beim Notar standen. Nun haben wir allerdings noch mal ein alternatives Grundstück gefunden und werden wohl noch mal umschwenken.
Das alte Grundstück war 825qm groß und war in Richtung Süden ausgerichtet. Nachteil an dem Grundstück war/ist, dass es an einem Kreisel liegt und das Grundstück daher in einem West- und Südgarten aufgeteilt ist (vgl. ALT_Ansicht_3D). Das Baugebiet selber liegt in einer Sackgasse, von daher dürfte man hier nicht so viel Verkehr erwarten. Weiterer Nachteil ist, dass wir im Südosten ein Leitungsrecht für den örtl. Wasserverband eintragen lassen müssen. Außerdem sind die örtl. Bauvorschriften sehr streng gewesen, was z.Bsp. die Höhe der Hecke anbelangt.
Das neue Grundstück hat nun folgende Eckdaten:
Größe des Grundstücks: 912qm
Grundflächenzahl 0,3
1 Vollgeschoss
Im Westen freier Blick auf's Feld, wobei nicht ausgeschlossen ist dass irgendwann das Baugebiet in Richtung Westen erweitert wird. Im Norden ein Nachbargrundstück. Eckgrundstück, wobei die Straße im Süden im Feld "endet" also keine Durchfahrtsstraße ist.
Dachform: Satteldach
Stilrichtung: Landhaus
Ausrichtung: Grundstück in Südwest Ausrichtung.
Nun haben wir unser ursprüngliches Haus gedreht und gespiegelt und auf das neue Grundstück ausgerichtet in Ost-West-Ausrichtung. Uns gefällt es sehr gut. Seht ihr denn irgendwelche Nachteile im Vergleich zur alten Planung oder habt vllt. noch Vorschläge auf die wir noch nicht gekommen sind?
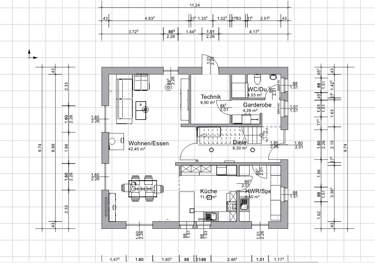
Kurz noch ein paar Hinweise: Der Technikraum (Hauswirtschaftsraum) soll nur für Heizung, Waschmaschine, Trockner und wenn es noch passt für den Stromverteiler verwendet werden. Die Speis war zum Einen als Speisekammer, zum Anderen auch als eine Art Schleuse gedacht durch die man schnell aus dem Garten gehen kann ohne durch Wohnzimmer oder Küche gehen zu müssen.
In der neuen Planung hätten wir den Vorteil, den Technikraum als Durchgang zur Garage zu verwenden.
Viele Grüße







wir planen nun seit einem 3/4 Jahr unser Haus. Einige Planungen hatte ich vor einiger Zeit auch schon mal zur Diskussion gestellt.
Das Haus haben wir nun mit einer Architektin geplant. Wir waren mit der Planung nun schon so weit, dass wir kurz vor Vertragsunterzeichnung mit der Architektin und auch vor Beurkundung beim Notar standen. Nun haben wir allerdings noch mal ein alternatives Grundstück gefunden und werden wohl noch mal umschwenken.
Das alte Grundstück war 825qm groß und war in Richtung Süden ausgerichtet. Nachteil an dem Grundstück war/ist, dass es an einem Kreisel liegt und das Grundstück daher in einem West- und Südgarten aufgeteilt ist (vgl. ALT_Ansicht_3D). Das Baugebiet selber liegt in einer Sackgasse, von daher dürfte man hier nicht so viel Verkehr erwarten. Weiterer Nachteil ist, dass wir im Südosten ein Leitungsrecht für den örtl. Wasserverband eintragen lassen müssen. Außerdem sind die örtl. Bauvorschriften sehr streng gewesen, was z.Bsp. die Höhe der Hecke anbelangt.
Das neue Grundstück hat nun folgende Eckdaten:
Größe des Grundstücks: 912qm
Grundflächenzahl 0,3
1 Vollgeschoss
Im Westen freier Blick auf's Feld, wobei nicht ausgeschlossen ist dass irgendwann das Baugebiet in Richtung Westen erweitert wird. Im Norden ein Nachbargrundstück. Eckgrundstück, wobei die Straße im Süden im Feld "endet" also keine Durchfahrtsstraße ist.
Dachform: Satteldach
Stilrichtung: Landhaus
Ausrichtung: Grundstück in Südwest Ausrichtung.
Nun haben wir unser ursprüngliches Haus gedreht und gespiegelt und auf das neue Grundstück ausgerichtet in Ost-West-Ausrichtung. Uns gefällt es sehr gut. Seht ihr denn irgendwelche Nachteile im Vergleich zur alten Planung oder habt vllt. noch Vorschläge auf die wir noch nicht gekommen sind?
Kurz noch ein paar Hinweise: Der Technikraum (Hauswirtschaftsraum) soll nur für Heizung, Waschmaschine, Trockner und wenn es noch passt für den Stromverteiler verwendet werden. Die Speis war zum Einen als Speisekammer, zum Anderen auch als eine Art Schleuse gedacht durch die man schnell aus dem Garten gehen kann ohne durch Wohnzimmer oder Küche gehen zu müssen.
In der neuen Planung hätten wir den Vorteil, den Technikraum als Durchgang zur Garage zu verwenden.
Viele Grüße
J
j.bautsch18.11.15 08:03Hallo, also ich finde den Grundriss so ganz gut, fand aber die Ankleide im alten Grundriss besser Positioniert.
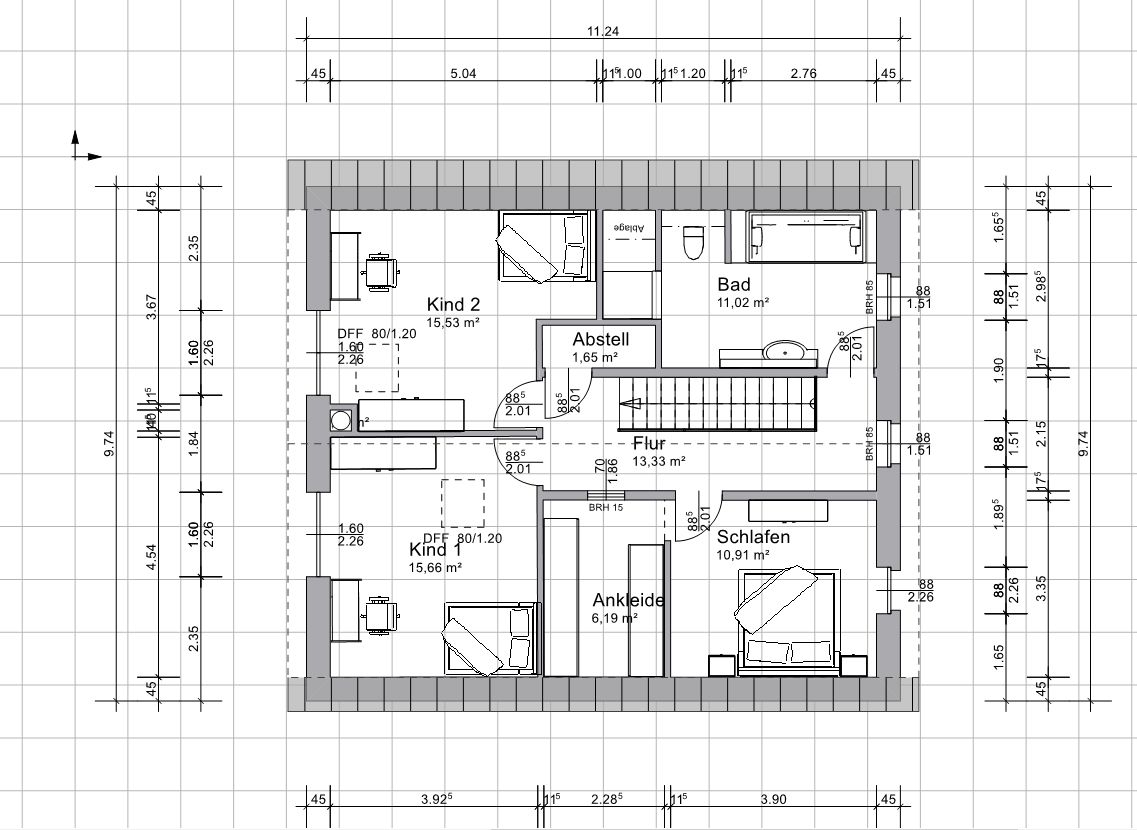
Geh mal den Morgendlichen Ablauf durch. Man steht auf und schleicht sich zur Ankleide um den Partner nicht zu wecken, dann musst du aber von der Ankleide wieder durchs Schlafzimmer um ins Bad zu gehen, dann hast du vielleicht doch noch das paar Socken vergessen und musst wieder durchs Schlafzimmer in die Ankleide und wieder zurück durchs Schlafzimmer....Das Problem ist natürlich persönliches Empfinden und hängt von euren Gewohnheiten ab
Meinst du ihr habt genug Abstellfläche im Hauswirtschaftsraum? Ihr Baut doch ohne Keller? Oder wollt ihr einen Großteil auf dem Dach verstauen (bei uns sammelt sich seltsamer weise immer ziemlich viel Kram an ) denn im OG ist der kleine Abstell-Raum ja doch eher nur für Putzsachen gedacht oder?
Wo möchtest du denn deine Wäsche aufhängen? Im Technik Raum und im Hauswirtschaftsraum ist dafür kein Platz und draußen geht nur bei gutem Wetter. Möchtest du deine Wäsche wirklich im Wohn/Ess- Bereich stehen haben?
Ich weis nicht wie ihr bei der Größe ( Budget?) eingeschränkt seid aber mir würde auch ein Zimmer für einen PC und unterlagen fehlen.
Geh mal den Morgendlichen Ablauf durch. Man steht auf und schleicht sich zur Ankleide um den Partner nicht zu wecken, dann musst du aber von der Ankleide wieder durchs Schlafzimmer um ins Bad zu gehen, dann hast du vielleicht doch noch das paar Socken vergessen und musst wieder durchs Schlafzimmer in die Ankleide und wieder zurück durchs Schlafzimmer....Das Problem ist natürlich persönliches Empfinden und hängt von euren Gewohnheiten ab
Meinst du ihr habt genug Abstellfläche im Hauswirtschaftsraum? Ihr Baut doch ohne Keller? Oder wollt ihr einen Großteil auf dem Dach verstauen (bei uns sammelt sich seltsamer weise immer ziemlich viel Kram an ) denn im OG ist der kleine Abstell-Raum ja doch eher nur für Putzsachen gedacht oder?
Wo möchtest du denn deine Wäsche aufhängen? Im Technik Raum und im Hauswirtschaftsraum ist dafür kein Platz und draußen geht nur bei gutem Wetter. Möchtest du deine Wäsche wirklich im Wohn/Ess- Bereich stehen haben?
Ich weis nicht wie ihr bei der Größe ( Budget?) eingeschränkt seid aber mir würde auch ein Zimmer für einen PC und unterlagen fehlen.
Das freut mich, dass doch noch einer Antwort. Danke
Bzgl. der Tür zu Ankleide gebe ich dir recht. Wenn man sie allerdings direkt zur Ankleide macht, verliert man eine Wand an der potenziell auch noch ein Schrank gestellt werden könnte. Da müssen wir uns noch mal Gedanken machen was uns hier wichtiger ist.
Ja, wir bauen ohne Keller. Wir wollten in dem Technikraum nur die Heizung, Waschmine und Trockner stellen. Ein Wäscheständer müsste dann noch reinpassen, das müsste ich vielleicht auch noch mal ausmessen. Allerdings dürfte man sich dann in dem Technikraum auch nicht mehr bewegen können.
In den Hauswirtschaftsraum/Speis soll zum Einen Vorräte gelagert werden können und eben noch anderes Haushaltsgeraffel. Außerdem soll es mit einer kleinen Spüle auch eine Art Schleuse sein, wenn man aus dem Garten kommt. Man muss den Dreck nicht durch das ganze Wohnzimmer tragen.
Da das zweite Kind noch nicht da ist, werden wir das zweite Kinderzimmer erst mal als Arbeits- und Gästezimmer nutzen. Plan ist, auf längere Sicht den Spitzboden auszubauen.
Bzgl. Unseres Budget haben wir schon eine Grenze, an der wir auch so ziemlich angekommen sind. Prinzipiell hätte ich auch nichts gegen ein größeres Haus es ist halt irgendwo immer ein Kompromiss.
Bzgl. der Tür zu Ankleide gebe ich dir recht. Wenn man sie allerdings direkt zur Ankleide macht, verliert man eine Wand an der potenziell auch noch ein Schrank gestellt werden könnte. Da müssen wir uns noch mal Gedanken machen was uns hier wichtiger ist.
Ja, wir bauen ohne Keller. Wir wollten in dem Technikraum nur die Heizung, Waschmine und Trockner stellen. Ein Wäscheständer müsste dann noch reinpassen, das müsste ich vielleicht auch noch mal ausmessen. Allerdings dürfte man sich dann in dem Technikraum auch nicht mehr bewegen können.
In den Hauswirtschaftsraum/Speis soll zum Einen Vorräte gelagert werden können und eben noch anderes Haushaltsgeraffel. Außerdem soll es mit einer kleinen Spüle auch eine Art Schleuse sein, wenn man aus dem Garten kommt. Man muss den Dreck nicht durch das ganze Wohnzimmer tragen.
Da das zweite Kind noch nicht da ist, werden wir das zweite Kinderzimmer erst mal als Arbeits- und Gästezimmer nutzen. Plan ist, auf längere Sicht den Spitzboden auszubauen.
Bzgl. Unseres Budget haben wir schon eine Grenze, an der wir auch so ziemlich angekommen sind. Prinzipiell hätte ich auch nichts gegen ein größeres Haus es ist halt irgendwo immer ein Kompromiss.
Mir gefällt die Garderobe nicht so sehr - wenn du mit mehren Leuten dich tummelst wird es ggf. eng.
Ansonsten eine Frage: sind da Säulen eingezeichnet neben der Treppe?
Zugang Ankleide OG finde ich nicht gut - auch hinterfrage ich das Fenster zum Flur (ggf. möchte man nicht, dass der Freund des Sohns einen sieht, wie man grad was zum anziehen anprobiert)
Ansonsten: wie hoch ist der Drempel? Wie hoch sind die lichten Raumhöhen? Treppensteigung? Ansichten wären ggf. noch interessant.
Ansonsten eine Frage: sind da Säulen eingezeichnet neben der Treppe?
Zugang Ankleide OG finde ich nicht gut - auch hinterfrage ich das Fenster zum Flur (ggf. möchte man nicht, dass der Freund des Sohns einen sieht, wie man grad was zum anziehen anprobiert)
Ansonsten: wie hoch ist der Drempel? Wie hoch sind die lichten Raumhöhen? Treppensteigung? Ansichten wären ggf. noch interessant.
Ähnliche Themen