Hausbau - Ratgeber
Bauherrenhilfe
- Bauherrenhilfe vor Vertragsabschluss
-- Warum einen unabhängigen Baubetreuer?
-- Vertragsgrundlagen
-- Bausumme
-- Zahlungsplan zur Kostenkontrolle
-- Pflichten des Bauherren vor Vertragsabschluss
-- Unterlagen beim Hausbau vor Vertragsabschluss
- Bauherrenhilfe nach Vertragsabschluss
-- Bauantrag bei Behörden
-- Bau-Genehmigungsverfahren bei Baubehörden
-- Bauspezifische Versicherungen
-- Bauzeitenplan
-- Baubeginn - die Letzten Pflichten der Bauherrschaft
- Bauherrenhilfe während der Bauzeit
- Gewährleistungsansprüche
- Bauabnahme
Baufinanzierung
- Baufinanzierung - Allgemeine Fragen
- Kreditarten
- Kredit-Konditionen
- Bausparen
- Staatliche Förderungen
- Verkehrswert
- Haushaltsrechnung und Bonität
Hausbau Planung
- Haustypen
- Hausbau Vorbereitungsarbeiten
- Das Baugrundstück
- Baugrund beim Hausbau
- Baurecht
- Gebäudeschutz
- Erdarbeiten und Wasserhaltung
- Stützmauern
- Einfriedung
- Untergeschoss
- Kanalisation
- Tragende Elemente
- Nichttragende Innenwände
- Fundation / Fundament
- Deckenkonstruktionen
- Dächer
- Kaminanlagen
- Treppen Rampen Leitern
- Dachbeläge und Spengler
- Fenster
- Sonnen und Wetterschutz
- Aussenputze
- Einbauten, Küchen, Türen
- Bodenbeläge und Unterlagsböden
- Parkett
- Gips, Wand, Decke
Haustechnik und Energie
- Heiztechnik
- Lüftung und Klimatechnik
- Sanitärtechnik
- Elektrotechnik
- Erneuerbare Energie
Whirlpools / Jacuzzi
Hausbau Magazin
- Baufinanzierung trotz Krise?
- Das Blockhaus
- Moderne Dämmstoffe im Vergleich
- Erker Vor- und Nachteile
- Glasflächen beim Hausbau
- Günstig ein Haus Bauen
- Mediterraner Hausbaustil
- Mehrgenerationenhaus
- Moderne Architektur
- Gartengestaltung leicht gemacht
- Traditioneller Ziegelbau
- Villa als höchster Traum
- Im Eigenheim Ruhestand geniessen
- Altbau sanieren
- Kauf einer Holzgarage
- Immobilienmakler
- Arbeitshandschuhe für den Winter
- Zuhause verschönern
- Outdoor-Plissees
- Schlafzimmer planen
- Terrassenüberdachung
- Wohngebäudeversicherung
- Zaunarten und Eigenschaften
- Hauseingang gestalten
- Der perfekte Grundriss
- Sparsamer heizen im Altbau
- Einfamilienhaus smart finanzieren
- Planung einer PV-Anlage
- Neues Haus
- Immobilienfinanzierung
- Installation einer Photovoltaikanlage
- Asbest erkennen und entfernen
- Gartenpflege im Frühling – worauf achten
- Sauna im Fokus - Wellness zuhause
- Erfolgreich vermieten
- Die perfekte Winterbekleidung
- Das Niedrigenergiehaus
- Der April und seine Stürme
- Architektonische Vielfalt
- Ökologisch und nachhaltig bauen
- Das perfekte Schlafzimmer
- Nachhaltige Energieversorgung
- Zukunftsorientiert bauen
- Nachhaltigkeit beim Hausbau
- Tiny Houses
- Wärmepumpen als nachhaltige Heizvariante
- Maßgeschneiderten Kleiderschrank
- Der richtige Baukredit
- Ratgeber für erfolgreichen Hausbau
- Haus als Altersvorsorge
Do-it-yourself Anleitungen
- Verlegeanleitung für Bodenbeläge und Parkett
- Bodenbeläge und Parkett reinigen und pflegen
- Malerarbeiten am Haus
- Garten Tipps
- Umzug und Reinigung

ᐅ Grundriss und Ansichten zu Einfamilienhaus mit ca. 160 m² in Hanglage

Erstellt am: 06.12.22 21:01
K
Karl-Jupp
S
Sunshine387
07.12.22 21:11
Ich persönlich würde immer eine ebenerdige Terrasse zum Garten hin präferieren und dann lieber nach 8m Rasenfläche den Rest mit 2,3 Reihen von L-Steinen abfangen, um nicht den Mietwohnungsflair sondern den Hausflair zu haben, da stört eine Treppe zum Garten doch sehr stark aus meiner Sicht (auch wenn es nur 1m ist).
Y
ypg
07.12.22 21:20
Karl-Jupp schrieb:

Dann stellen wir uns vor, dass das Gelände seitlich neben dem Haus mit den Kellerfenster etwas steiler abfällt… Aber vielleicht sagt ihr auch schonmal, was ihr denkt?
Du müsstest dann mal den Lageplan oder eine Skizze zur Verfügung stellen. Das Haus sollte sich dem Hang bzw Grundstück fügen. Wenn Du „da seitlich“ einen Hang hast, fügt sich das Haus dem, indem Du den Garten nicht betreten kannst.
Lese Dir nochmal langsam @K a t j a s #41 durch und versuche es zu verstehen.
Karl-Jupp schrieb:

Wir planen aktuell mit einem Fertighaus und haben uns mit unseren (grundsätzlichen) Wünschen bisher zwei Angebote für schlüsselfertige Häuser eingeholt.

Darf ich mal fragen, bei wem Ihr Eurer Gebot eingeholt habt und was Du unter schlüsselfertig verstehst und die Firma als schlüsselfertig betitelt?
Karl-Jupp schrieb:

Keller als Wohnraumnutzbar
Denn das bedeutet nicht unbedingt, dass der Keller ausgebaut wird, sondern als Wohnraum ausgebaut werden kann. Der GU bietet die Deckenhöhe und die Fenster. Bauleistungsbeschreibungen sind meistens sehr tückisch!
H
hanghaus2023
07.12.22 22:19
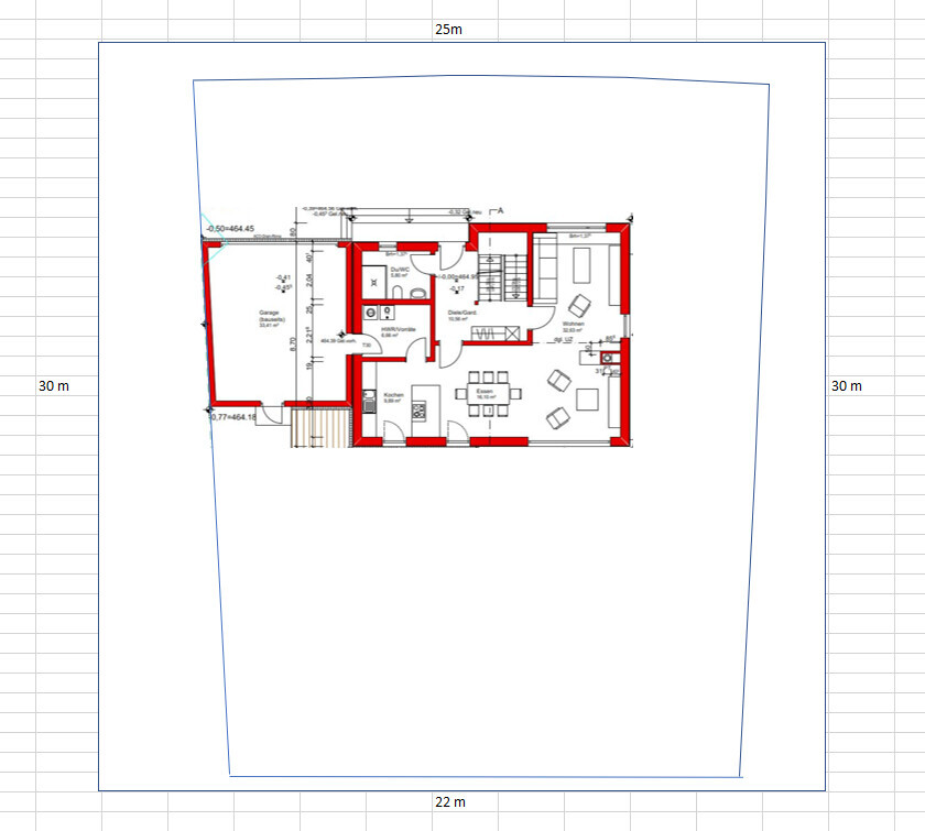
Hallo @K a t j a

Das Grundstück sollte so aehnlich sein.


Grundriss eines Hauses mit roten Innenwänden, Küche, Essbereich und Wohnzimmer.
H
hanghaus2023
07.12.22 22:32
Mir wird es jetzt klarer. Wenn Garage bauseits steht ist das kein freier Architekt. Ein Erfüllungsgehilfe vom Fertighausbauer (man sagt hier auch Zeichenknecht)

Nun wundert mich auch nicht warum Gefälle zur Garage geplant wird, die Terrasse aufgeständert wird, das Haus zu hoch gesetzt wird usw? Das ist ja nicht wirklich ein Hang im Baufenster. Ein Architekt hätte hier wohl etwas mit Split Level zumindest im EG angedacht.
Y
ypg
07.12.22 22:34
hanghaus2023 schrieb:

Das Grundstück sollte so aehnlich sein.
Ähnlich reicht nicht aus, wenn es um den Hangverlauf geht.
K
Karl-Jupp
07.12.22 22:39
ypg schrieb:

Du müsstest dann mal den Lageplan oder eine Skizze zur Verfügung stellen. Das Haus sollte sich dem Hang bzw Grundstück fügen. Wenn Du „da seitlich“ einen Hang hast, fügt sich das Haus dem, indem Du den Garten nicht betreten kannst.
Lese Dir nochmal langsam @K a t j a s #41 durch und versuche es zu verstehen.


Darf ich mal fragen, bei wem Ihr Eurer Gebot eingeholt habt und was Du unter schlüsselfertig verstehst und die Firma als schlüsselfertig betitelt?

Denn das bedeutet nicht unbedingt, dass der Keller ausgebaut wird, sondern als Wohnraum ausgebaut werden kann. Der GU bietet die Deckenhöhe und die Fenster. Bauleistungsbeschreibungen sind meistens sehr tückisch!

Ich füge hier mal dass Nivellement an. Ich hoffe dann wird es klar. Die Darstellung von @hanghaus2023 passt schon sehr gut, wie ihr seht. östlich neben dem Haus würde ich das Gelände nur minimal anpassen. Ab Hinterkante Haus könnte man z.B. eine mittlere Höhe des Geländes von 463,60 anstreben. Die Terrasse und das EG liegen dann vielleicht so bei ca. 464,80. Wie gesagt, alles aktuell nur erste Gedanken. Vielleicht beides auch 20 cm höher.

Die Angebote sind von namhaften Herstellern. Ich will hier gar keine Diskussion über die einzelnen Anbieter lostreten. Schlüsselfertig heißt tatsächlich schlüsselfertig. Ich bekomme den Schlüssel und räume meine Möbel ein. Das Haus ist innen komplett fertig. Wegen dem Keller mussten wir ein wenig diskutieren, bis auch dort Fußbodenheizung und so weiter komplett drin waren. Aber auch hier habe ich Wert drauf gelegt, dass dieser fertig ist.

Vermessungsplan: Zwei pink markierte Rechteckbereiche auf dem Grundriss mit Maßangaben.
schlüsselfertigterrassegartenhanggrundstückkellergaragearchitekt