ᐅ Grundriss Stadtvilla mit Walmdach - Feintuning
Erstellt am: 08.01.18 12:54
K
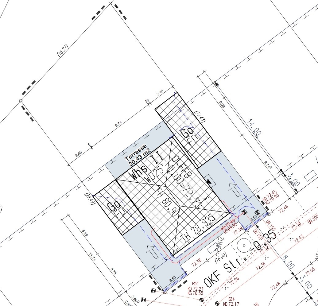
king_2000108.01.18 12:54Bebauungsplan/Einschränkungen: Max. Hausbreite 10m
Größe des Grundstücks: 495m²
Hang: nein
Grundflächenzahl: 0,4
Geschossflächenzahl: 0,8
Baufenster: 10m x 14m
Randbebauung: Neubaugebiet
Anzahl Stellplatz: 2
Geschossigkeit: min. 2 volle
Dachform: alles erlaub
Maximale Höhen/Begrenzungen: FH 10m
Anforderungen der Bauherren
Stilrichtung: Stadtvilla
Dachform: Walmdach
Keller: nein
Geschosse: 2 Vollgeschosse
Anzahl der Personen, Alter: 4 Personen, 30,30,2,1
Raumbedarf im:
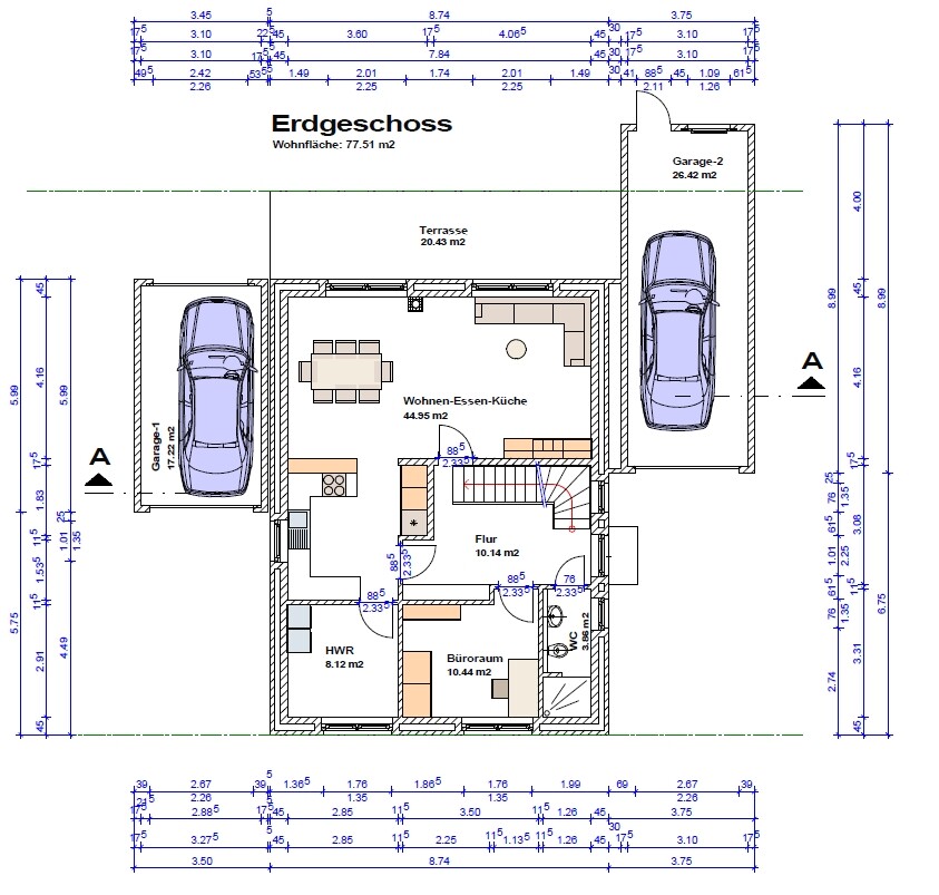
EG: Wohn-, Arbeitszimmer, Küche, Essbereich, Hauswirtschaftsraum
OG: 2 Kinderzimmer, Schlafzimmer, Bad
Büro: Homeoffice
Schlafgäste pro Jahr: 10
offene oder geschlossene Architektur: Die Küche soll nicht mit Wohnzimmer in einer Flucht liegen
Küche mit Kochinsel
Anzahl Essplätze : 4
Kamin: ja
Garage: 2 Fertiggaragen
Hausentwurf
Von wem stammt die Planung:
-Architekt
Was gefällt nicht?
Die Laufrichtung der Treppe
Warum?
Weil ich der Meinung bin, dass der Schmutz, welcher sich vor der Eingangstreppe befindet, in die obere Etage transportiert wird.
favorisierte Heiztechnik:
Erdwärme
Wenn Ihr verzichten müsst, auf welche Details/Ausbauten
-könnt Ihr verzichten:
-könnt Ihr nicht verzichten:
Warum ist der Entwurf so geworden, wie er jetzt ist?
Ein Gemisch aus vielen Beispielen aus div. Magazinen...





Größe des Grundstücks: 495m²
Hang: nein
Grundflächenzahl: 0,4
Geschossflächenzahl: 0,8
Baufenster: 10m x 14m
Randbebauung: Neubaugebiet
Anzahl Stellplatz: 2
Geschossigkeit: min. 2 volle
Dachform: alles erlaub
Maximale Höhen/Begrenzungen: FH 10m
Anforderungen der Bauherren
Stilrichtung: Stadtvilla
Dachform: Walmdach
Keller: nein
Geschosse: 2 Vollgeschosse
Anzahl der Personen, Alter: 4 Personen, 30,30,2,1
Raumbedarf im:
EG: Wohn-, Arbeitszimmer, Küche, Essbereich, Hauswirtschaftsraum
OG: 2 Kinderzimmer, Schlafzimmer, Bad
Büro: Homeoffice
Schlafgäste pro Jahr: 10
offene oder geschlossene Architektur: Die Küche soll nicht mit Wohnzimmer in einer Flucht liegen
Küche mit Kochinsel
Anzahl Essplätze : 4
Kamin: ja
Garage: 2 Fertiggaragen
Hausentwurf
Von wem stammt die Planung:
-Architekt
Was gefällt nicht?
Die Laufrichtung der Treppe
Warum?
Weil ich der Meinung bin, dass der Schmutz, welcher sich vor der Eingangstreppe befindet, in die obere Etage transportiert wird.
favorisierte Heiztechnik:
Erdwärme
Wenn Ihr verzichten müsst, auf welche Details/Ausbauten
-könnt Ihr verzichten:
-könnt Ihr nicht verzichten:
Warum ist der Entwurf so geworden, wie er jetzt ist?
Ein Gemisch aus vielen Beispielen aus div. Magazinen...
Mich würde viel eher stören, dass ich mit der Wäsche durchs ganze Haus und durch die Küche muss. Auch die Dusche in diesem WC ist sehr fragwürdig. Da muss man ja fast über das Klo hüpfen.
Und das allerblödeste sind ja die Garagen gleich links und rechts. Licht nur noch von vorne möglich. Warum das denn?
Und das allerblödeste sind ja die Garagen gleich links und rechts. Licht nur noch von vorne möglich. Warum das denn?
Ich finde, das Haus sieht durch die versetzten Fenster rechts schief aus. Die beiden Garagen (irgendeiner hat hier mal Elefantenohren dazu gesagt) ist auch nicht meins. Die Ausrichtung finde ich auch nicht gut. Statt der Mini-Fenster im Süden und Garage im Westen Hätte ich das ganze Haus trotz blöder Ausrichtung zur Sonne geöffnet.
Der Grundriss ist ansonsten eher Standard. Dass mit dem Hauswirtschaftsraum-Tür würde mich auch stören
Und sorry: mir fehlt der Nordpfeil in den Zeichnungen, hab da wohl noch am Süden oder so gedreht
Der Grundriss ist ansonsten eher Standard. Dass mit dem Hauswirtschaftsraum-Tür würde mich auch stören
Und sorry: mir fehlt der Nordpfeil in den Zeichnungen, hab da wohl noch am Süden oder so gedreht
Ja und warum sind die denn dann auch noch so weit zurück gesetzt? Da verdirbt man sich ja das Wohnzimmer. Vorne beim Technikraum wäre dann noch das kleinere Übel.
Sorry, das tät ich so nicht bauen. Wenn da zwingend links und rechts ein Auto stehen muss, dann maximal unterm offenem Carport weiter vorn.
Sorry, das tät ich so nicht bauen. Wenn da zwingend links und rechts ein Auto stehen muss, dann maximal unterm offenem Carport weiter vorn.
Was ist der Sinn des ominösen Kastens zwischen Wohnzimmer und langer Garage ?
https://www.instagram.com/11antgmxde/
https://www.linkedin.com/company/bauen-jetzt/
https://www.instagram.com/11antgmxde/
https://www.linkedin.com/company/bauen-jetzt/
Ähnliche Themen