ᐅ Grundriss – Stadtvilla 160 qm
Erstellt am: 09.10.16 19:17
Wir bitten um Eure Meinungen zum vorgelegten Grundriss.
Wir sind mit der Ausarbeitung zufrieden, dennoch dankbar für gute Anregungen.
Vielen Dank!
Bebauungsplan/Einschränkungen
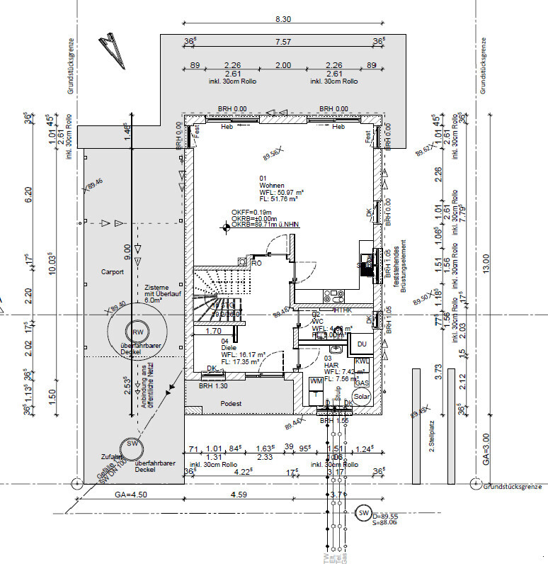
Größe des Grundstücks: 476 qm (16,75 m x 28,43 m)
Hang: nein
Anzahl Stellplatz: 2
Geschossigkeit: 2 Vollgeschosse
Dachform: Walmdach
Stilrichtung: Stadtvilla
Anforderungen der Bauherren
Geschossigkeit: 2 Vollgeschosse
Dachform: Walmdach - 30 Grad
Stilrichtung: Stadtvilla
Keller: nein
Anzahl der Personen: noch 3
Wohnfläche: ca. 160 qm
offene Küche: ja - Kochinsel: nein
Kamin: ja
Carport: ja
Was gefällt uns gut?: Garderobenbereich in der Diele
Fensteranordnung in allen Zimmern
Waschmaschine & Trockner im OG separater Raum
Alle notwendigen Räume berücksichtigt
Was ist nicht optimal?: eventuell enger Hauswirtschaftsraum
Bad OG
Hausentwurf
Von wem stammt die Planung: Architekt – RESTA mit vielen eigenen Ideen
favorisierte Heiztechnik: Gasbrennwerttherme und Solar für WW, Kontrollierte-Wohnraumlüftung mit Wärmerückgewinnung





Wir sind mit der Ausarbeitung zufrieden, dennoch dankbar für gute Anregungen.
Vielen Dank!
Bebauungsplan/Einschränkungen
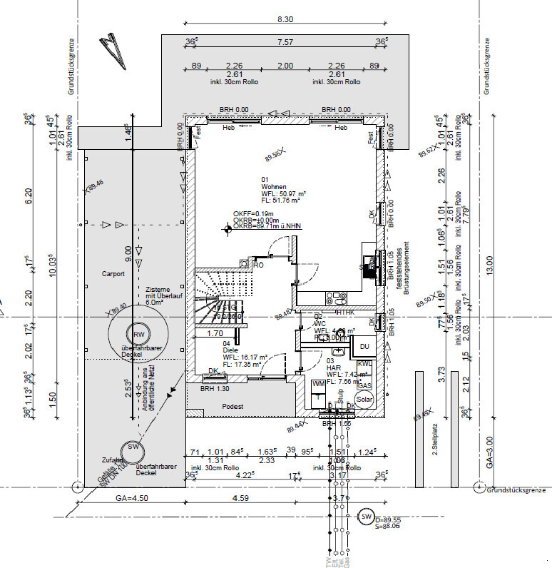
Größe des Grundstücks: 476 qm (16,75 m x 28,43 m)
Hang: nein
Anzahl Stellplatz: 2
Geschossigkeit: 2 Vollgeschosse
Dachform: Walmdach
Stilrichtung: Stadtvilla
Anforderungen der Bauherren
Geschossigkeit: 2 Vollgeschosse
Dachform: Walmdach - 30 Grad
Stilrichtung: Stadtvilla
Keller: nein
Anzahl der Personen: noch 3
Wohnfläche: ca. 160 qm
offene Küche: ja - Kochinsel: nein
Kamin: ja
Carport: ja
Was gefällt uns gut?: Garderobenbereich in der Diele
Fensteranordnung in allen Zimmern
Waschmaschine & Trockner im OG separater Raum
Alle notwendigen Räume berücksichtigt
Was ist nicht optimal?: eventuell enger Hauswirtschaftsraum
Bad OG
Hausentwurf
Von wem stammt die Planung: Architekt – RESTA mit vielen eigenen Ideen
favorisierte Heiztechnik: Gasbrennwerttherme und Solar für WW, Kontrollierte-Wohnraumlüftung mit Wärmerückgewinnung
lastdrop schrieb:
Wohin entwässern Toilette und Waschbecken im OG?In den Abwasserschacht?!
@BeHaElJa
Das ist die erste Stadtvilla, die ich hier sehe, die mir von den Außenansichten gefällt!
Die Anlehnung an eine Kaffeemühle ist nicht übersehbar
@TE: wer ist denn bei Euch der Po-Fetischist, der dem Kochenden ständig auf den Allerwertesten schauen möchte?
Wenn offene Küche, dann zumindest geschützter Bereich
Grüsse
B
Bauexperte09.10.16 20:12ypg schrieb:
In den Abwasserschacht?!Die Frage von @lastdrop ist so unberechtigt nicht Grüße, Bauexperte
Bauexperte schrieb:
Die Frage von @lastdrop ist so unberechtigt nicht
Grüße, BauexperteJa, ich sehe die Haustür!!!
Grüsse
Ähnliche Themen