Hallo,
Wollte euch mal unseren ersten Grundriss Vorstellen und würden uns über eure Meinungen dazu freuen.
Bebauungsplan/Einschränkungen
Größe des Grundstücks: 495m2
Hang: nein
Dachform: Walmdach
Anforderungen der Bauherren
Keller, Geschosse 2 + Keller
Anzahl der Personen, Alter 2 31+28 geplant 1-2 kinder
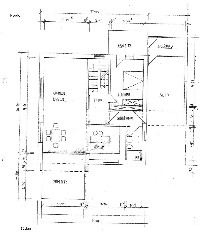
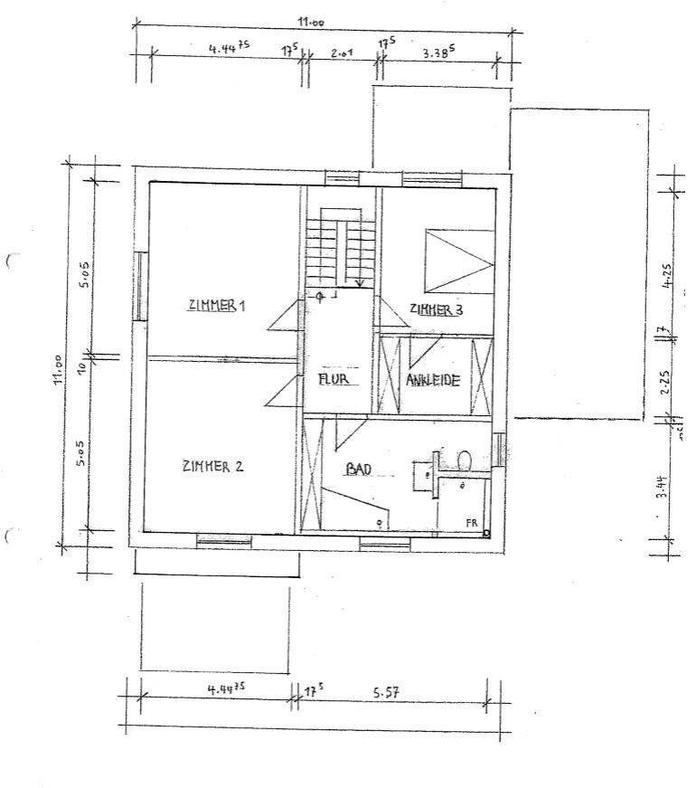
Raumbedarf im EG, OG ca 90m2 pro stockwerk
Büro: Familiennutzung
Schlafgäste pro Jahr 3-5 schlaf gäste im Jahr
offene oder geschlossene Architektur offener Wohn-, Küchen-, Essbereich
moderne Bauweise
offene Küche, Kochinsel ja
Kamin ja
Carport
weitere Wünsche/Besonderheiten/Tagesablauf, gern auch Begründungen, warum dieses oder das nicht sein soll
Hausentwurf
Was gefällt besonders? Warum? Die Raumaufteilung und die größe der Räume.
Was gefällt nicht? Warum? Küche könnte etwas breiter sein. Treppe eventuell nicht breit genug.
favorisierte Heiztechnik: Gas






Wollte euch mal unseren ersten Grundriss Vorstellen und würden uns über eure Meinungen dazu freuen.
Bebauungsplan/Einschränkungen
Größe des Grundstücks: 495m2
Hang: nein
Dachform: Walmdach
Anforderungen der Bauherren
Keller, Geschosse 2 + Keller
Anzahl der Personen, Alter 2 31+28 geplant 1-2 kinder
Raumbedarf im EG, OG ca 90m2 pro stockwerk
Büro: Familiennutzung
Schlafgäste pro Jahr 3-5 schlaf gäste im Jahr
offene oder geschlossene Architektur offener Wohn-, Küchen-, Essbereich
moderne Bauweise
offene Küche, Kochinsel ja
Kamin ja
Carport
weitere Wünsche/Besonderheiten/Tagesablauf, gern auch Begründungen, warum dieses oder das nicht sein soll
Hausentwurf
Was gefällt besonders? Warum? Die Raumaufteilung und die größe der Räume.
Was gefällt nicht? Warum? Küche könnte etwas breiter sein. Treppe eventuell nicht breit genug.
favorisierte Heiztechnik: Gas
J
j.bautsch14.12.16 07:12ich würde wenn irgend möglich die ankleide auf mind. 2,4m verbreitern und den zugang über den flur realisieren. so kann man einen schönen zweizeiler mit ordentlich schrank stellen. außerdem muss man nicht morgens wenn eventuell der eine partner noch schläft 2 mal durchs schlafzimmer turnen und eventuell licht anmachen und den partner wecken. wenn es vom platz nicht ganz reicht könntet ihr den zugang des schlafzimmers auch über die ankleide realisieren.
da kommt es aber auch auf gewohnheiten an. wenn ihr sicher wisst das ihr immer zusammen aufsteht dürfte es ja kein problem werden 😉
bei einer breite von 3,44m Küche wird das mit der insel aber eine recht enge angelegenheit. wenn man den putz abzieht bleiben noch ca 3,4m, weniger 60cm zeile und minimum 100cm für die insel. dann bleiben noch insgesamt 1,8m für 2 zeilenabstände. das scheint mir recht eng.
bei der treppe bin ich auch bei ypg
wie wollt ihr den wohn/ess bereich möblieren. mir schient da würde viel freiraum über bleiben (stichwort platzverschwendung, platz der geputzt werden will 😉 )
da kommt es aber auch auf gewohnheiten an. wenn ihr sicher wisst das ihr immer zusammen aufsteht dürfte es ja kein problem werden 😉
bei einer breite von 3,44m Küche wird das mit der insel aber eine recht enge angelegenheit. wenn man den putz abzieht bleiben noch ca 3,4m, weniger 60cm zeile und minimum 100cm für die insel. dann bleiben noch insgesamt 1,8m für 2 zeilenabstände. das scheint mir recht eng.
bei der treppe bin ich auch bei ypg
wie wollt ihr den wohn/ess bereich möblieren. mir schient da würde viel freiraum über bleiben (stichwort platzverschwendung, platz der geputzt werden will 😉 )
Hallo,
ich finde den Platz in der Küche für eine Kochinsel zu knapp. Es sollte schon mind. 1m Platz sein, zwischen Insel und Wand bzw. Küchenzeile. Den Zugang zur Ankleide würde ich vom Flur aus machen (wie eben schon geschrieben) und dann von dort aus eine Tür zum Schlafzimmer. So bekommt ihr auch ein Fenster in die Ankleide. Die Kinderzimmer würde ich nicht so groß planen und auf jeden Fall lieber ein zusätzliches Kinderbad einplanen. Wir planen jetzt bei unserem neuen Haus auch ein Kinderbad, da es mit einem Bad ständig zu Engpässen kommt, natürlich will auch niemand das Bad im EG benutzen...
Übrigens habt ihr auf euren Zeichnungen ein Zeltdach, kein Walmdach.
LG
Sabine
ich finde den Platz in der Küche für eine Kochinsel zu knapp. Es sollte schon mind. 1m Platz sein, zwischen Insel und Wand bzw. Küchenzeile. Den Zugang zur Ankleide würde ich vom Flur aus machen (wie eben schon geschrieben) und dann von dort aus eine Tür zum Schlafzimmer. So bekommt ihr auch ein Fenster in die Ankleide. Die Kinderzimmer würde ich nicht so groß planen und auf jeden Fall lieber ein zusätzliches Kinderbad einplanen. Wir planen jetzt bei unserem neuen Haus auch ein Kinderbad, da es mit einem Bad ständig zu Engpässen kommt, natürlich will auch niemand das Bad im EG benutzen...
Übrigens habt ihr auf euren Zeichnungen ein Zeltdach, kein Walmdach.
LG
Sabine
T
toxicmolotof14.12.16 09:58Hmm, wo ist denn die Stadtvilla? Ich sehe da ein freistehendes Einfamilienhaus mit Zeltdach und Garage.
Von (Stadt-)Villa hat das m.E. gar nichts.
Von (Stadt-)Villa hat das m.E. gar nichts.
naja unter stadtvilla verstehen die meisten halt diesen haustyp. immerhin weis so jeder was gemeint ist 🙂
die treppe ist eindeutig zu schmal, man muss mindestens den pfosten bei der umlenkung abziehen (bzw 2x handlauf) und muss bedenken, das bei der umlenkung Platz gebraucht wird für größere möbel. mit dann 80-85 trittbreite könnte es passieren, das man keine großen möbel (zb kleiderschrank) hochbekommt.
das wohnzimmer ist viel zu lang im verhältnis zur breite.
wenn in der küche das freistehende eine herdplatte werden soll ich sit küchenbreite etwas zu schmal. Idee: keine insel sondern halbinsel von der wand kommend.
insgesamt wenig fenster und überhaupt nicht symethrisch oder ähnliches.
die treppe ist eindeutig zu schmal, man muss mindestens den pfosten bei der umlenkung abziehen (bzw 2x handlauf) und muss bedenken, das bei der umlenkung Platz gebraucht wird für größere möbel. mit dann 80-85 trittbreite könnte es passieren, das man keine großen möbel (zb kleiderschrank) hochbekommt.
das wohnzimmer ist viel zu lang im verhältnis zur breite.
wenn in der küche das freistehende eine herdplatte werden soll ich sit küchenbreite etwas zu schmal. Idee: keine insel sondern halbinsel von der wand kommend.
insgesamt wenig fenster und überhaupt nicht symethrisch oder ähnliches.
Ähnliche Themen