Hallo zusammen,
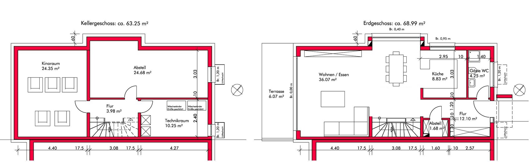
da in unserem Thread zur Dusche (https://www.hausbau-forum.de/threads/badplanung-spritzschutzwand-der-walk-in-dusche-lang-genug.41665/) auch einige Kommentare zum generellen Grundriss kamen und ich diese als wertvoll empfand, um nochmal über das ein oder andere Thema nachzudenken, wollte ich hier noch die übrigen Geschossen einstellen.
Schon mal vorwegnehmen kann ich, dass ich auf Basis der Anregungen von ypg gerade nochmal eine Alternative vom OG bzw. Bad gezeichnet habe, uns diese jedoch insgesamt nicht so gut gefallen hat und wir die unten angehängte Variante eigentlich als insgesamt am passendsten für uns erachten.
Da der Bebauungsplan und die Kubatur leider nur wenig Spielraum bieten, beschränke ich mich auf die Innengrundrisse. Prinzipiell könnten wir lediglich kleiner bauen, im Entwurf ist das Baufenster maximal ausgereizt zzgl. dem Erker planoben, dessen Genehmigung noch aussteht.
Anforderungen der Bauherren
Stilrichtung, Dachform, Gebäudetyp: Flachdach
Keller, Geschosse: 2 Geschosse + Staffelgeschoss + Keller
Anzahl der Personen, Alter: 2 Erwachsene Anfang 30 + geplante Kinder
Raumbedarf im EG, OG: 2 Kinderzimmer mit ca. 15 m2, Gästezimmer/"Multifunktionszimmer" zum Basteln etc - bis auf die Speisekammer, die nicht unbedingt nötig ist, entspricht die Planung unseren Anforderungen
Büro: Familiennutzung oder Homeoffice?: beides: abendliche Familiennutzung und tagsüber Homeoffice
Schlafgäste pro Jahr: selten
offene oder geschlossene Architektur: offen
konservativ oder moderne Bauweise: modern
offene Küche, Kochinsel: offene Küche optisch gewünscht, von einer Abtrennnug wg. Gerüchen sind wir aus optischen Gründen abgekommen
Anzahl Essplätze: 6-8
Kamin: nein
Musik/Stereowand: im separaten Kinozimmer im UG, muss jedoch nicht Teil dieser Planung sein
Balkon, Dachterrasse: Dachterrasse ist vom Bebauungsplan vorgegeben
Hausentwurf
Von wem stammt die Planung: Architekt
Was gefällt besonders? Warum?: alle Anforderungen wurden erfüllt (z.B. großer Eingangsbereich)
Was gefällt nicht? Warum?:
-Elternschlafzimmer hätte kleiner werden können, hätte jedoch bei den Grundrissen keinen Vorteil gebracht und dann hätte es
-eigentlich hätten wir gerne beide Kinderzimmer im OG gehabt und im DG Büro + Gast/Multifunktion, was jedoch aufgrund der Raumgrößen nicht möglich war
-bei der Küchenplanung wird es wahrscheinlich gerade so klappen, alles unterzubringen, die Küche dürfte etwas großzügiger sein
favorisierte Heiztechnik: Wärmepumpe fix
Wenn Ihr verzichten müsst, auf welche Details/Ausbauten
-könnt Ihr verzichten: Speisekammer
-könnt Ihr nicht verzichten: die übrigen Räume entsprechen den Anforderungen
Warum ist der Entwurf so geworden, wie er jetzt ist?
Es wurden vom Architekten auf Basis unserer Vorgaben und Ideen mehrere Varianten ausgearbeitet und die favorisierte in mehreren Iterationen ausgearbeitet.
Was ist die wichtigste/grundlegende Frage zum Grundriss in 130 Zeichen zusammengefasst?
Wir sind bis auf kleine Details schon sehr zufrieden, möchten jedoch bevor wir uns final festlegen nochmal ein paar andere Meinungen hören bzw. etwaige Fehler finden, die uns bislang nicht aufgefallen sind.


Vielen Dank schonmal an alle, die es sich anschauen!
da in unserem Thread zur Dusche (https://www.hausbau-forum.de/threads/badplanung-spritzschutzwand-der-walk-in-dusche-lang-genug.41665/) auch einige Kommentare zum generellen Grundriss kamen und ich diese als wertvoll empfand, um nochmal über das ein oder andere Thema nachzudenken, wollte ich hier noch die übrigen Geschossen einstellen.
Schon mal vorwegnehmen kann ich, dass ich auf Basis der Anregungen von ypg gerade nochmal eine Alternative vom OG bzw. Bad gezeichnet habe, uns diese jedoch insgesamt nicht so gut gefallen hat und wir die unten angehängte Variante eigentlich als insgesamt am passendsten für uns erachten.
Da der Bebauungsplan und die Kubatur leider nur wenig Spielraum bieten, beschränke ich mich auf die Innengrundrisse. Prinzipiell könnten wir lediglich kleiner bauen, im Entwurf ist das Baufenster maximal ausgereizt zzgl. dem Erker planoben, dessen Genehmigung noch aussteht.
Anforderungen der Bauherren
Stilrichtung, Dachform, Gebäudetyp: Flachdach
Keller, Geschosse: 2 Geschosse + Staffelgeschoss + Keller
Anzahl der Personen, Alter: 2 Erwachsene Anfang 30 + geplante Kinder
Raumbedarf im EG, OG: 2 Kinderzimmer mit ca. 15 m2, Gästezimmer/"Multifunktionszimmer" zum Basteln etc - bis auf die Speisekammer, die nicht unbedingt nötig ist, entspricht die Planung unseren Anforderungen
Büro: Familiennutzung oder Homeoffice?: beides: abendliche Familiennutzung und tagsüber Homeoffice
Schlafgäste pro Jahr: selten
offene oder geschlossene Architektur: offen
konservativ oder moderne Bauweise: modern
offene Küche, Kochinsel: offene Küche optisch gewünscht, von einer Abtrennnug wg. Gerüchen sind wir aus optischen Gründen abgekommen
Anzahl Essplätze: 6-8
Kamin: nein
Musik/Stereowand: im separaten Kinozimmer im UG, muss jedoch nicht Teil dieser Planung sein
Balkon, Dachterrasse: Dachterrasse ist vom Bebauungsplan vorgegeben
Hausentwurf
Von wem stammt die Planung: Architekt
Was gefällt besonders? Warum?: alle Anforderungen wurden erfüllt (z.B. großer Eingangsbereich)
Was gefällt nicht? Warum?:
-Elternschlafzimmer hätte kleiner werden können, hätte jedoch bei den Grundrissen keinen Vorteil gebracht und dann hätte es
-eigentlich hätten wir gerne beide Kinderzimmer im OG gehabt und im DG Büro + Gast/Multifunktion, was jedoch aufgrund der Raumgrößen nicht möglich war
-bei der Küchenplanung wird es wahrscheinlich gerade so klappen, alles unterzubringen, die Küche dürfte etwas großzügiger sein
favorisierte Heiztechnik: Wärmepumpe fix
Wenn Ihr verzichten müsst, auf welche Details/Ausbauten
-könnt Ihr verzichten: Speisekammer
-könnt Ihr nicht verzichten: die übrigen Räume entsprechen den Anforderungen
Warum ist der Entwurf so geworden, wie er jetzt ist?
Es wurden vom Architekten auf Basis unserer Vorgaben und Ideen mehrere Varianten ausgearbeitet und die favorisierte in mehreren Iterationen ausgearbeitet.
Was ist die wichtigste/grundlegende Frage zum Grundriss in 130 Zeichen zusammengefasst?
Wir sind bis auf kleine Details schon sehr zufrieden, möchten jedoch bevor wir uns final festlegen nochmal ein paar andere Meinungen hören bzw. etwaige Fehler finden, die uns bislang nicht aufgefallen sind.
Vielen Dank schonmal an alle, die es sich anschauen!
nocotool schrieb:
-eigentlich hätten wir gerne beide Kinderzimmer im OG gehabt und im DG Büro + Gast/Multifunktion, was jedoch aufgrund der Raumgrößen nicht möglich warMacht Euch mal Gedanken darüber, ob eine Zerstreuung der Kinderzimmer so sinnvoll ist.
Wenn Ihr schon ein schönes Dachgeschoss mit Terrasse habt, dann würde ich dort mittelfristig Büro/Galerie plus Schlafzimmer Eltern unterbringen. Das OG gehört dann den Kindern und Gast/Hobby, wenn sie denn da sind. Zwei gleich große Zimmer plus TV-/Bastel-/Hobbyraum, wo auch Gäste schlafen können.
Außerdem im OG das Familienbad.
Vielleicht kann man der Dachterrasse noch 2-3 Qm klauen, damit ganz oben ein Dusch-WC für Euch Platz hat.
Die Dusche im EG könnte dann wegfallen.
Ist nur ein Vorschlag. Ich sehe bei der OG/DG-Planung zur Zeit, dass die Räume dort hingeplant worden sind, wo der Platz am besten verteilt wird. Für das Familienleben selbst wäre eine Zonierung günstiger. Platz und Geschosse habt ihr ja.
nocotool schrieb:
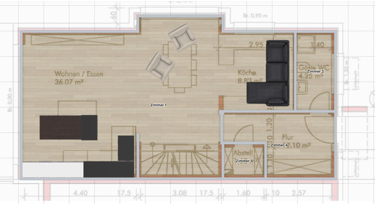
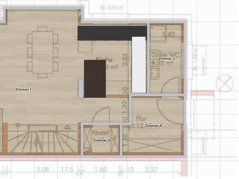
-bei der Küchenplanung wird es wahrscheinlich gerade so klappen, alles unterzubringen, die Küche dürfte etwas großzügiger seinWenn es so bleibt von der Einteilung, würde ich es so machen:
Aber auch hier könnte man den Vorschlag machen, die Küche an die Terrasse zu setzen. Quasi Küche und Essbereich schön in den Garten, Sofa- und Chillounge dort, wo das Tageslicht in der dunklen Jahreszeit weniger hin kommt.
Warum? Natürliches Licht in der Küche und Essbereich das ganze Jahr über. Küche und Lebensmittel nahe der Terrasse (Grillen, spielende Kinder, usw) Man ist ja doch im Tageswerk mehr in Küche und Terrasse zugange, wenn es draußen schön ist. Eine Verbindung zum Sofa sehe ich nicht. Dafür stehen ja Liegen im Garten.
Sehe ich es recht, daß in den Ecken des "Erkers" die Außenwand keine Konstruktions-Mauerschale hat, sondern vor den Installationsschächten quasi ausschließlich aus der Dämmschicht besteht ?
Seid Ihr Käufer eines Reihenendhauses in einer Bauträger-Häuserzeile oder baut Ihr als Bauherren an eine bestehende Reihenhauszeile an ?
Zeige doch mal das Grundstück dazu !
https://www.instagram.com/11antgmxde/
https://www.linkedin.com/company/bauen-jetzt/
Seid Ihr Käufer eines Reihenendhauses in einer Bauträger-Häuserzeile oder baut Ihr als Bauherren an eine bestehende Reihenhauszeile an ?
Zeige doch mal das Grundstück dazu !
https://www.instagram.com/11antgmxde/
https://www.linkedin.com/company/bauen-jetzt/
Ja sorry, war etwas im Urlaubsheimkehrstress 🙂
Die Küche Richtung Garten legen sagt uns nicht so zu, aber die Idee mit der L-Küche plus Kochinsel hat uns sehr gut gefallen und wir haben schon fleißig gezeichnet. Ich denke mit dieser und unserer bisherigen Planung werden wir demnächst in die Küchenläden gehen und uns dann für eine der Varianten entscheiden.
Bzgl. der sonstigen Aufteilung (Schlafzimmer im DG, beide Kinderzimmer im OG usw.) hatten wir auch lange mit uns gehadert und überlegt. Leider lässt das Baufenster nicht mehr Platz im DG zu und wir wollten das Schlafzimmer beim Familienbad haben und gerade perspektivisch gesehen ins Schlafzimmer nicht noch eine Treppe gehen müssen, weshalb diese Lösung dabei herausgekommen ist. Aber wie gesagt, deine Küchenidee hat uns schon sehr geholfen!


Die Küche Richtung Garten legen sagt uns nicht so zu, aber die Idee mit der L-Küche plus Kochinsel hat uns sehr gut gefallen und wir haben schon fleißig gezeichnet. Ich denke mit dieser und unserer bisherigen Planung werden wir demnächst in die Küchenläden gehen und uns dann für eine der Varianten entscheiden.
Bzgl. der sonstigen Aufteilung (Schlafzimmer im DG, beide Kinderzimmer im OG usw.) hatten wir auch lange mit uns gehadert und überlegt. Leider lässt das Baufenster nicht mehr Platz im DG zu und wir wollten das Schlafzimmer beim Familienbad haben und gerade perspektivisch gesehen ins Schlafzimmer nicht noch eine Treppe gehen müssen, weshalb diese Lösung dabei herausgekommen ist. Aber wie gesagt, deine Küchenidee hat uns schon sehr geholfen!
Ähnliche Themen