
11ant
Maße sollten schon stimmen.Mir gehts es generell eher um die grundlegende Einteilung des Raums.
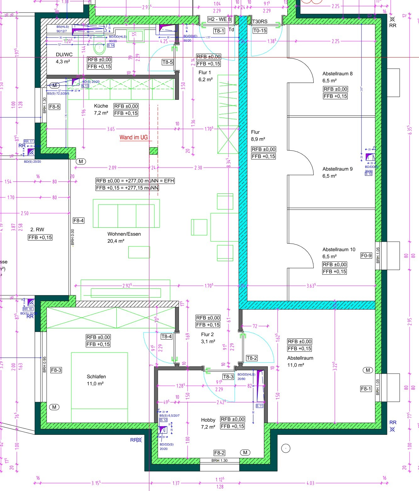
Wieso nimmst Du nicht den Originalplan, fotografierst den (für das "Rohzustand"-Bild für uns) und kopierst ihn Dir maßstäblich vergrößert, um dann ausgeschnittene Möbel darauf hin und her zu schieben ?Habe noch keine Software um es richtig zu planen (Hast du ein Tipp für eine Software?).
So wie Du es stattdessen gemacht hast, schlägst Du zwei Fliegen mit einer Klappe: Du hast vermutlich einige Informationen, die hier mehrere Leute zu lesen verstünden, nicht mit abgemalt. Und Dir selbst nötigst Du einen Lernprozeß für ein an der Aufgabe gemessen überkandideltes Werkzeug ab.