ᐅ Grundriss-Planung Einfamilienhaus ca. 170m² + DG als modernes Klinkerhaus
Erstellt am: 03.01.22 18:41
V
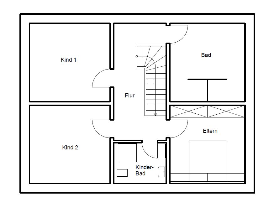
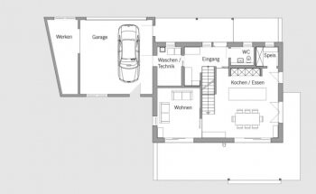
VarraderTja, egal wie man sich dreht und wendet, die gerade Treppe holt einen immer wieder ein, wenn man das OG plant. Die gerade Treppe zerschneidet das OG immer. Wenn man sich mal das Schneider von Baufritz im Anhang ansieht fällt da das Kinderbad weg wenn man aufs DG möchte. 🙁
Hat da jemand eine Idee zu?
Das Problem ist bei einer Podesttreppe nicht vorhanden, hier mal das (unserer Meinung nach) Optimum was Flurgröße, Laufwege und Raumnutzung angeht.
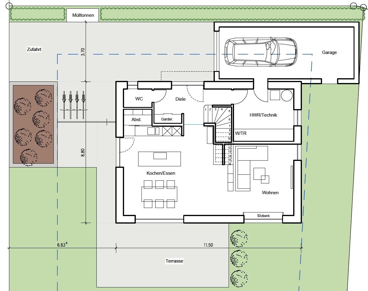
Da fehlt uns wiederum ein wenig die Fantasie, wie mit der Treppe ein EG ohne Arbeitszimmer aussehen könnte, eine Idee ebenfalls im Anhang.
Die im Nachbarthread von @K a t j a genannten Grundrisse gehen ja in eine ähnliche Richtung, allerdings alle mit Arbeitszimmer im Erdgeschoss.



Hat da jemand eine Idee zu?
Das Problem ist bei einer Podesttreppe nicht vorhanden, hier mal das (unserer Meinung nach) Optimum was Flurgröße, Laufwege und Raumnutzung angeht.
Da fehlt uns wiederum ein wenig die Fantasie, wie mit der Treppe ein EG ohne Arbeitszimmer aussehen könnte, eine Idee ebenfalls im Anhang.
Die im Nachbarthread von @K a t j a genannten Grundrisse gehen ja in eine ähnliche Richtung, allerdings alle mit Arbeitszimmer im Erdgeschoss.
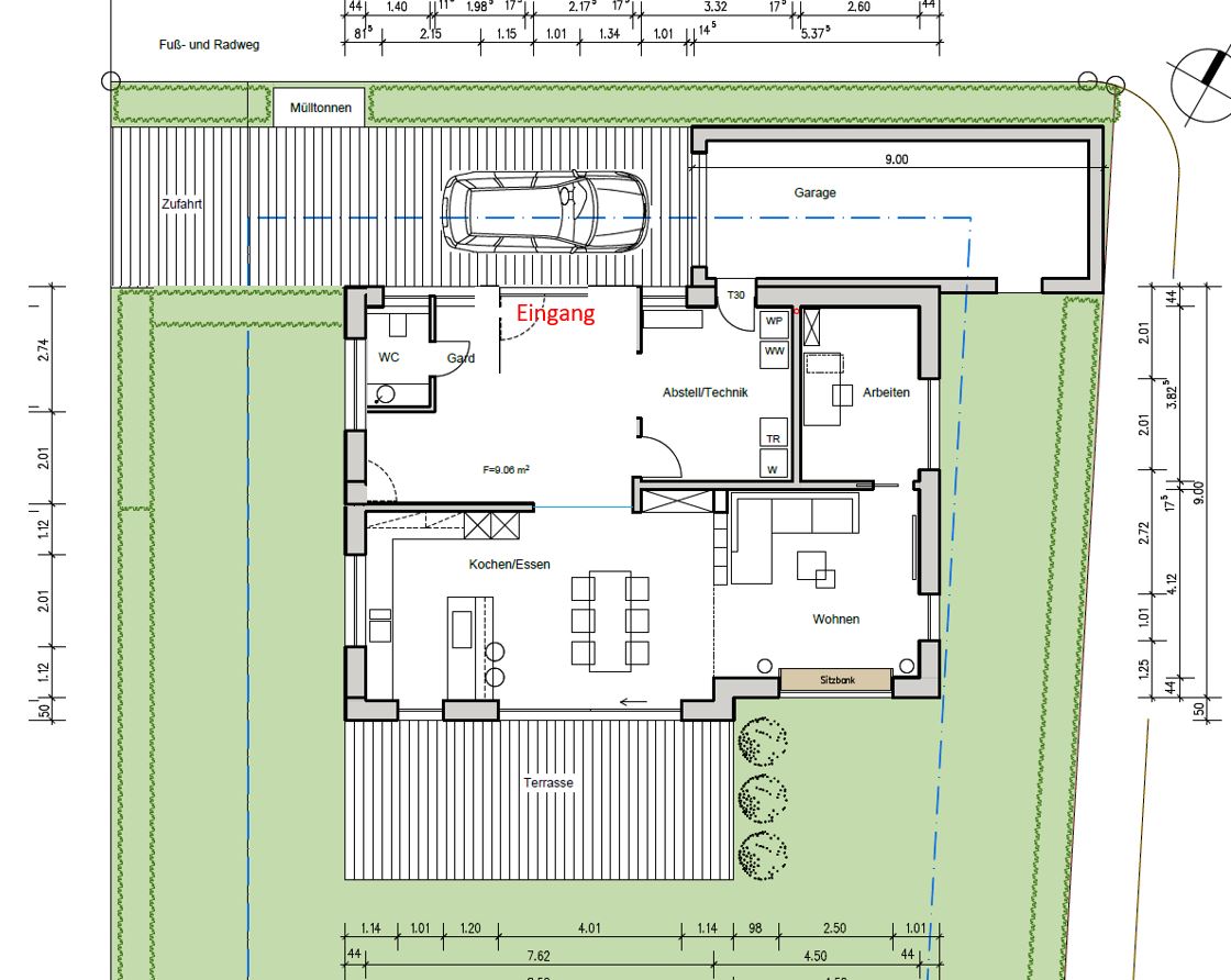
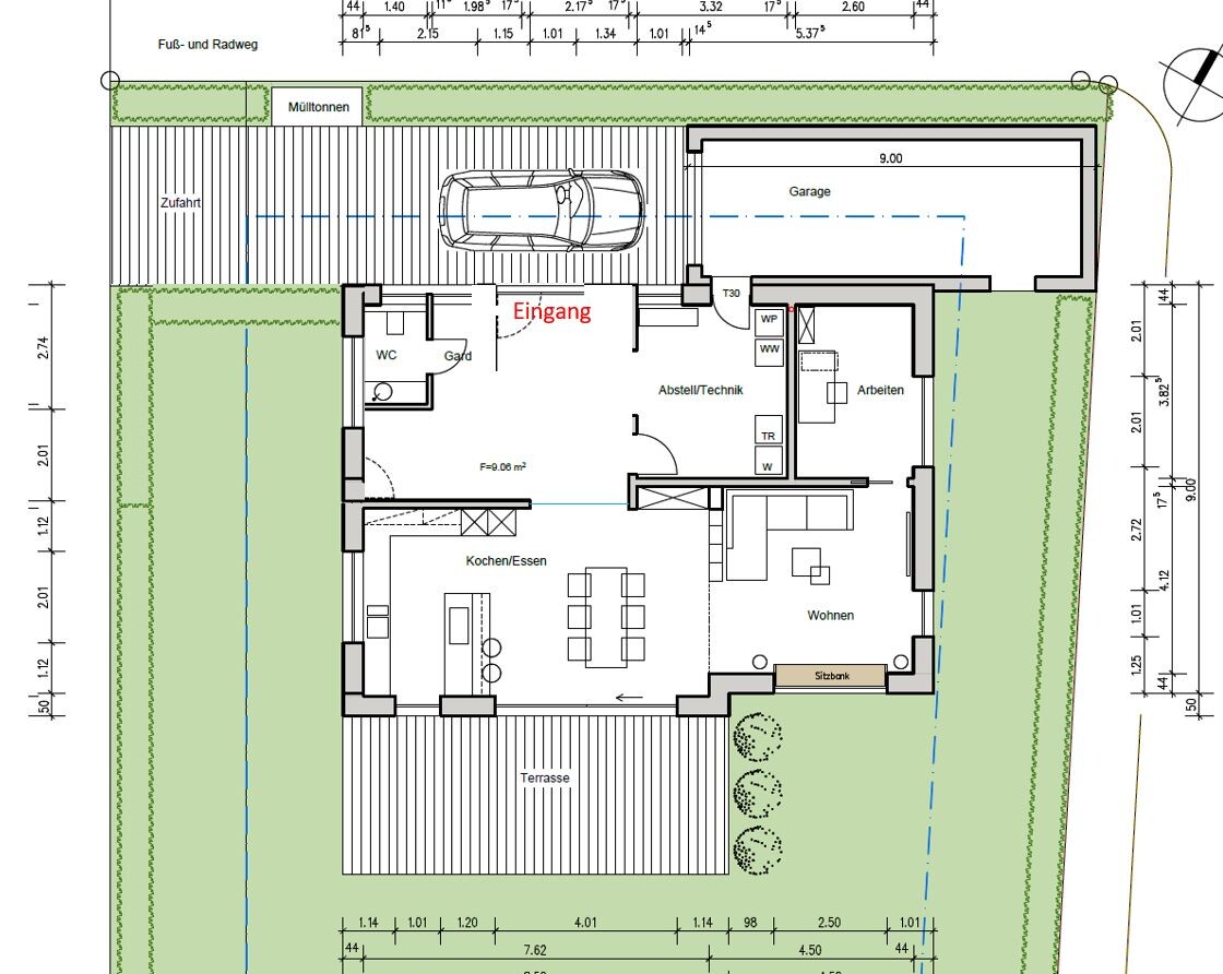
Guter Punkt, hier mal ein Zwischenstand. Anordnung WC/Speisekammer im OG finden wir nicht so pralle, da gefällt uns die geradlinigkeit bei dem Baufritzentwurf besser. OG hat jetzt das Kinderbad über dem Wohnzimmer, Badezimmer ist dafür gigantisch.
Vielleicht könnte man das Kinder- und Hauptbadezimmer oben links in das Kinderzimmer legen und dafür das Kinderzimmer oben rechts platzieren.
Grundfläche ist jetzt 8,8x11,5m (vorher waren es 13x9m +0,5m Erker).



Vielleicht könnte man das Kinder- und Hauptbadezimmer oben links in das Kinderzimmer legen und dafür das Kinderzimmer oben rechts platzieren.
Grundfläche ist jetzt 8,8x11,5m (vorher waren es 13x9m +0,5m Erker).
Ähnliche Themen