ᐅ Grundriss-Planung Einfamilienhaus ca. 170m² + DG als modernes Klinkerhaus
Erstellt am: 03.01.22 18:41
V
VarraderDas klingt ja nicht so schön. Das Dachgeschoss - was macht das preislich aus? Ich seh das in den Plänen nicht einmal. Kannst Du die letzten Entwürfe vielleicht noch mal einstellen mit allen Etagen?
3000 ist schon - naja nicht billig. Ist der die einzige Option? Hast Du alternative Anbieter gefragt?
3000 ist schon - naja nicht billig. Ist der die einzige Option? Hast Du alternative Anbieter gefragt?
Bislang haben wir keine alternativen Anbieter angefragt. Unser Plan war, eher erst den Grundriss nochmal zu verkleinern und dann breiter anzufragen. Ich denke es ist besser direkt einen angepassten Grundriss anzufragen als hinterher versuchen mit einer Verkleinerung den Preis zu drücken.
Außerdem haben wir ja noch ein wenig Zeit. Das mit dem jetzigen Anbieter "hat sich so ergeben", dass bereits jetzt anzufragen.
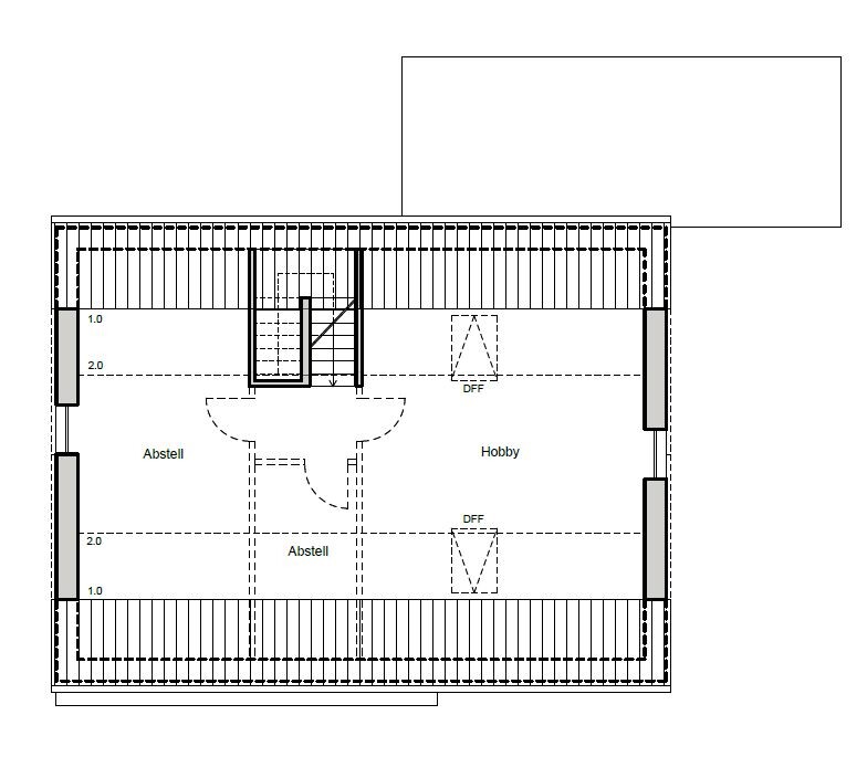
Eine genaue einzelne Bewertung des DG gibt es so nicht. Die Treppe für OG und DG sind 20.000€. Teppichboden und Trockenbauwände + Türen sind im DG mit kalkuliert, sowie 3 Dachflächenfenster auf der Nordseite des Daches.
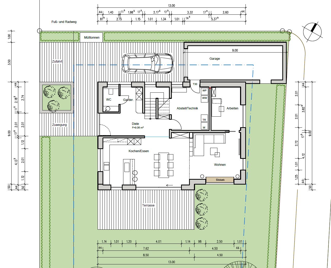
Anbei noch mal der aktuelle Grundriss.



Außerdem haben wir ja noch ein wenig Zeit. Das mit dem jetzigen Anbieter "hat sich so ergeben", dass bereits jetzt anzufragen.
Eine genaue einzelne Bewertung des DG gibt es so nicht. Die Treppe für OG und DG sind 20.000€. Teppichboden und Trockenbauwände + Türen sind im DG mit kalkuliert, sowie 3 Dachflächenfenster auf der Nordseite des Daches.
Anbei noch mal der aktuelle Grundriss.
Varrader schrieb:
Eine genaue einzelne Bewertung des DG gibt es so nicht. Die Treppe für OG und DG sind 20.000€. Teppichboden und Trockenbauwände + Türen sind im DG mit kalkuliert, sowie 3 Dachflächenfenster auf der Nordseite des Daches.
Hier steckt natürlich viel Potential. Das Dach ist komplett ausgebaut und Ihr wollt es lediglich als Abstellfläche und Hobby nutzen. Das ist imho Käse. Was war das noch für ein Hobby? Oder steht das da nur als Platzhalter? Ich denke, Ihr kommt schnell auf Euer Budget, wenn das da oben komplett gestrichen wird. Das heißt ja nicht, dass man es nicht nutzen kann. Es ist dann eben ein Kaltdachboden mit Bodenklappe. Ansonsten kann man natürlich auch nochmal alle Zimmer in den anderen Etagen verkleinern. Aber wenn ich wählen müsste, ob meine Kinder ein kleineres Zimmer bekommen, oder die Weihnachtsdeko - da wüsste ich wer verliert.
Idee:
Wenn Du das Haus um einen Meter verkürzt, wird das eine Kinderzimmer statt 18 ca. 15qm, das andere leidet, könnte aber durch Versetzten der Trennwand noch etwas von dem erst genannten Kinderzimmer abbekommen. Wäre auch noch tolerabel und ok.
Eingangsbereich statt Garderobennische quer einen Schrank vor dem WC… Essbereich etwas verschlanken.
Wenn Du das Haus um einen Meter verkürzt, wird das eine Kinderzimmer statt 18 ca. 15qm, das andere leidet, könnte aber durch Versetzten der Trennwand noch etwas von dem erst genannten Kinderzimmer abbekommen. Wäre auch noch tolerabel und ok.
Eingangsbereich statt Garderobennische quer einen Schrank vor dem WC… Essbereich etwas verschlanken.
Es kommt nicht nur Weihnachtsdeko nach oben 🙂
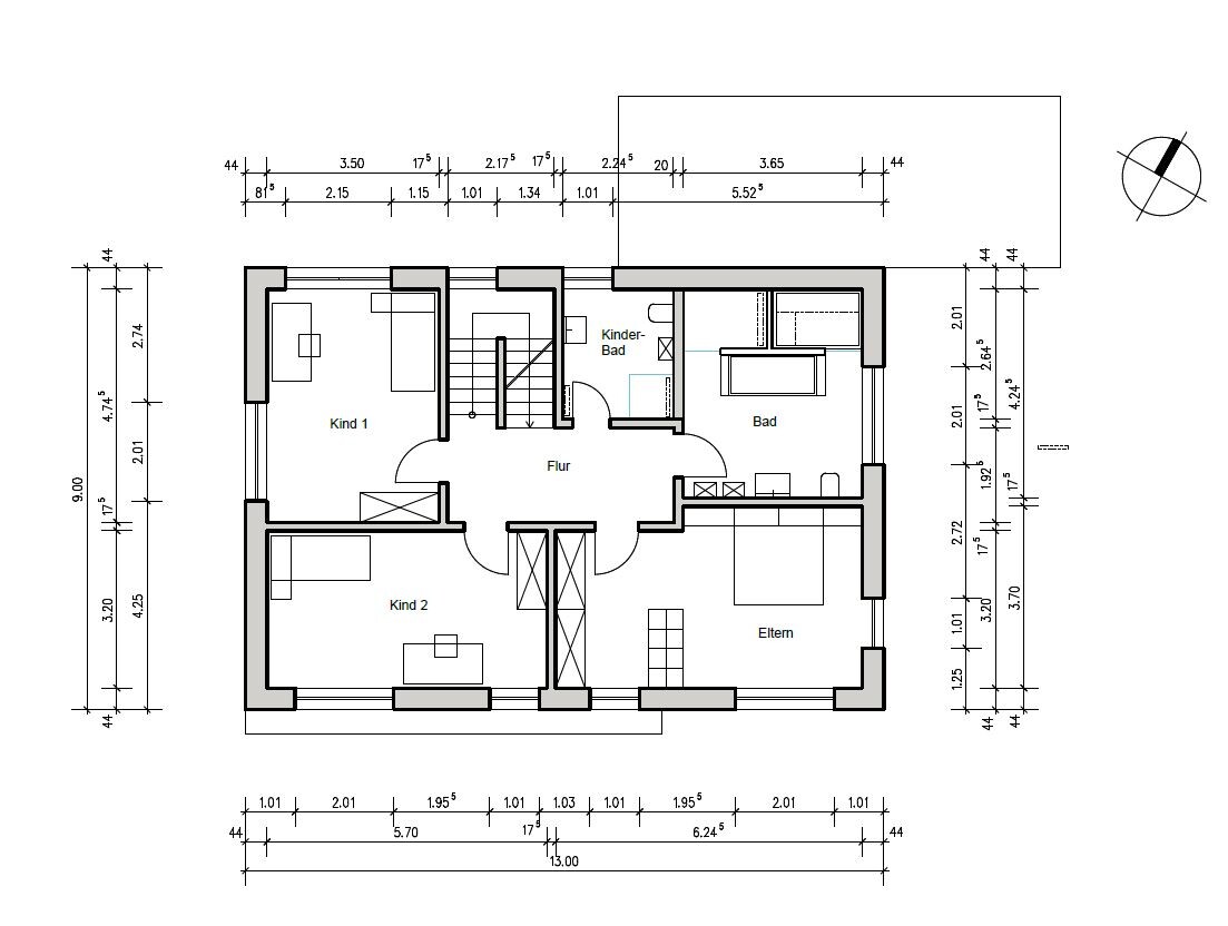
Im DG soll auf der linken Seite Kinderzimmer Nr. 3 sein, rechts Lagerfläche und Arbeitszimmer/Hobbyzimmer, das kleine Zimmer soll ebenfalls Stellfläche und die Lüftungsanlage beinhalten.
Da Kind Nr.3 aber noch erst in Planung ist, könnte hier also der Ausbau auch nach Einzug erfolgen.
Wir haben ja bereits im EG ein kleines Arbeitszimmer, für 2 Personen ist es aber zu klein. Wir hätten auch gerne einfach ein wenig Platz für unsere Hobbys.
@ypg Hatten wir auch schon angedacht. Wie gesagt, OG kann deutlich kleiner sein. Insbesondere Schlafzimmer und Elternbad.
Im DG soll auf der linken Seite Kinderzimmer Nr. 3 sein, rechts Lagerfläche und Arbeitszimmer/Hobbyzimmer, das kleine Zimmer soll ebenfalls Stellfläche und die Lüftungsanlage beinhalten.
Da Kind Nr.3 aber noch erst in Planung ist, könnte hier also der Ausbau auch nach Einzug erfolgen.
Wir haben ja bereits im EG ein kleines Arbeitszimmer, für 2 Personen ist es aber zu klein. Wir hätten auch gerne einfach ein wenig Platz für unsere Hobbys.
@ypg Hatten wir auch schon angedacht. Wie gesagt, OG kann deutlich kleiner sein. Insbesondere Schlafzimmer und Elternbad.
So wie ich das sehe, müsst Ihr mind. 100K runter. Da ist der 1m zwar ein Anfang aber Du kannst es ja selbst ganz einfach ausrechnen:
550K / 3000 €/qm = 183qm
218 qm - 183 qm = 35qm Einsparung nötig. Und da hast Du noch keine Wände gestrichen und es ist vermutlich ohne Reserve gerechnet.
Auf 183qm dieses Raumprogramm, das wird spannend. Ich würde sagen: byebye Dachboden. Aber vielleicht geht ja noch mehr an anderer Stelle, mal gucken. 🙂
550K / 3000 €/qm = 183qm
218 qm - 183 qm = 35qm Einsparung nötig. Und da hast Du noch keine Wände gestrichen und es ist vermutlich ohne Reserve gerechnet.
Auf 183qm dieses Raumprogramm, das wird spannend. Ich würde sagen: byebye Dachboden. Aber vielleicht geht ja noch mehr an anderer Stelle, mal gucken. 🙂
Ähnliche Themen