Grundriss Penthouse Wohnung anders planen

4,70 Stern(e) 7 Votes
Zuletzt aktualisiert 18.11.2025
Sie befinden sich auf der Seite 3 der Diskussion zum Thema: Grundriss Penthouse Wohnung anders planen
>> Zum 1. Beitrag <<

M

mayor333

Hallo,

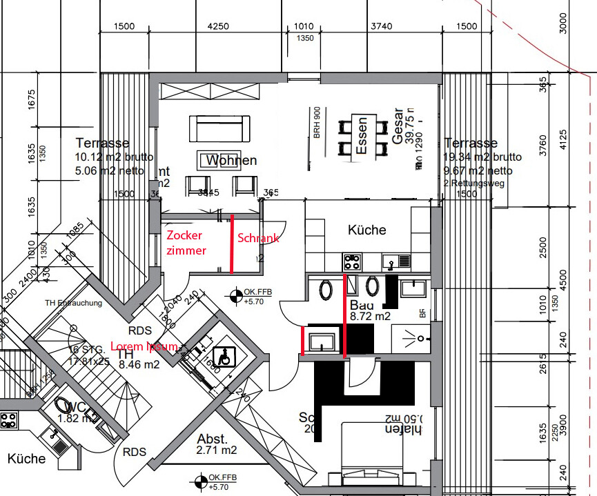
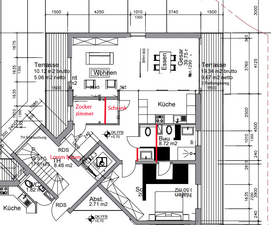
Tatsächlich wäre die Option Büro im Schlafzimmer nicht umsetzbar, es wurde schon bewusst die Wand gelassen. Neben Arbeit ist auch abends das zocken am PC bei mir vorhanden.

Meine Frau möchte hierbei ungestört auch mal Fernseh schauen oder hat Besuch. Demnach sollte es bei einer richtigen Trennung bleiben.

Das die Bad Tür zum Wohnzimmer geht, war wohl mein Fehler. Diese könnte auch bleiben wie im ursprünglichen Gäste-WC, zur Südseite hin bzw Flur.

Wir mögen eine große Couch haben, deswegen war eben die Überlegung den Raum größer zu bekommen. Gäste-WC kann defintiv wegfallen
 
M

mayor333

Dann vielleicht so?
Wobei der Wiederverkaufswert sicher etwas sinken wird.
Hey danke für den Vorschlag.
Wenn die nördliche Wand des zocker Zimmers nach oben verschoben werden kann, wäre das eine Möglichkeit. Aktuell wären das ca. 3 qm ... da passt nicht mal ein kleiner schreibtisch rein :-(
Meine Absicht die Grundrisse zu ändern sind heute morgen mal zur Architektin überführt worden. Mal sehen was hierbei zurück kommt.
Melde mich zurück bei mehr Infos
 
Zuletzt aktualisiert 18.11.2025
Im Forum Grundrissplanung / Grundstücksplanung gibt es 2536 Themen mit insgesamt 87966 Beiträgen


Ähnliche Themen zu Grundriss Penthouse Wohnung anders planen
Nr.ErgebnisBeiträge
1WC-Fenster Gäste-WC neben der Eingangstür - inzwischen nogo? - Seite 244
2Beispiel Kaltwasserhahn für Gäste-WC 12
3Rollladen im Gäste-WC ja oder nein? - Seite 335
4Lage Gäste-WC - Eingangsbereich? 28
5Entwürfe Gestaltung Fliesen Bad / Gäste-WC - Seite 319
6Planung Gäste-WC im Neubau - Wie groß muss es sein? (DIN?) - Seite 5107
7Gäste-WC Anordnung - Tipps? 19
8Planung Gäste-WC, brauche eure Tipps 17
9Fenster im Gäste-WC/Gästezimmer trotz Garage möglich? - Seite 333
10Gäste-WC: Decke abhängen oder Rohr verkleiden? - Seite 216
11Gäste-WC (1,65qm) und Bad (4,88qm) Sanierung - Seite 221
12Lichtanschluss falsche Stelle Gäste-WC 29
13Traumhaus AG Erfahrungen Heinrich Hildmann, Bauvorhaben Neuwied-Block - Seite 5200
14Einfamilienhaus 160m2 mit Keller, 500m2 Grundstück - Seite 11108
15Welchen Fertighaus-Anbieter - Preise, Erfahrungen? - Seite 21212
16Grundriss Einfamilienhaus auf schmalem Grundstück - Seite 224
17Einfamilienhaus mit Einliegerwohnung auf 450qm Hanggrundstück 69
18Grundrissplanung Einfamilienhaus ohne Keller / 4 Personen - Seite 657
19Stadtvilla mit gerader Treppe, offene moderne Bauweise, 140m² 18
20Stadtvilla mit Büro - Feedback & kluge Optimierungsideen gefragt - Seite 645

Oben