HaseUndIgel schrieb:
Kritik trotzdem ausdrücklich weiter erwünschtIch möchte natürlich nicht sämtliche Diskussionen wiederholen. Wenn Dir aber auffällt, dass jeder neue Leser die gleichen Dinge bemängelt, sollte das zum Nachdenken anregen.HaseUndIgel schrieb:
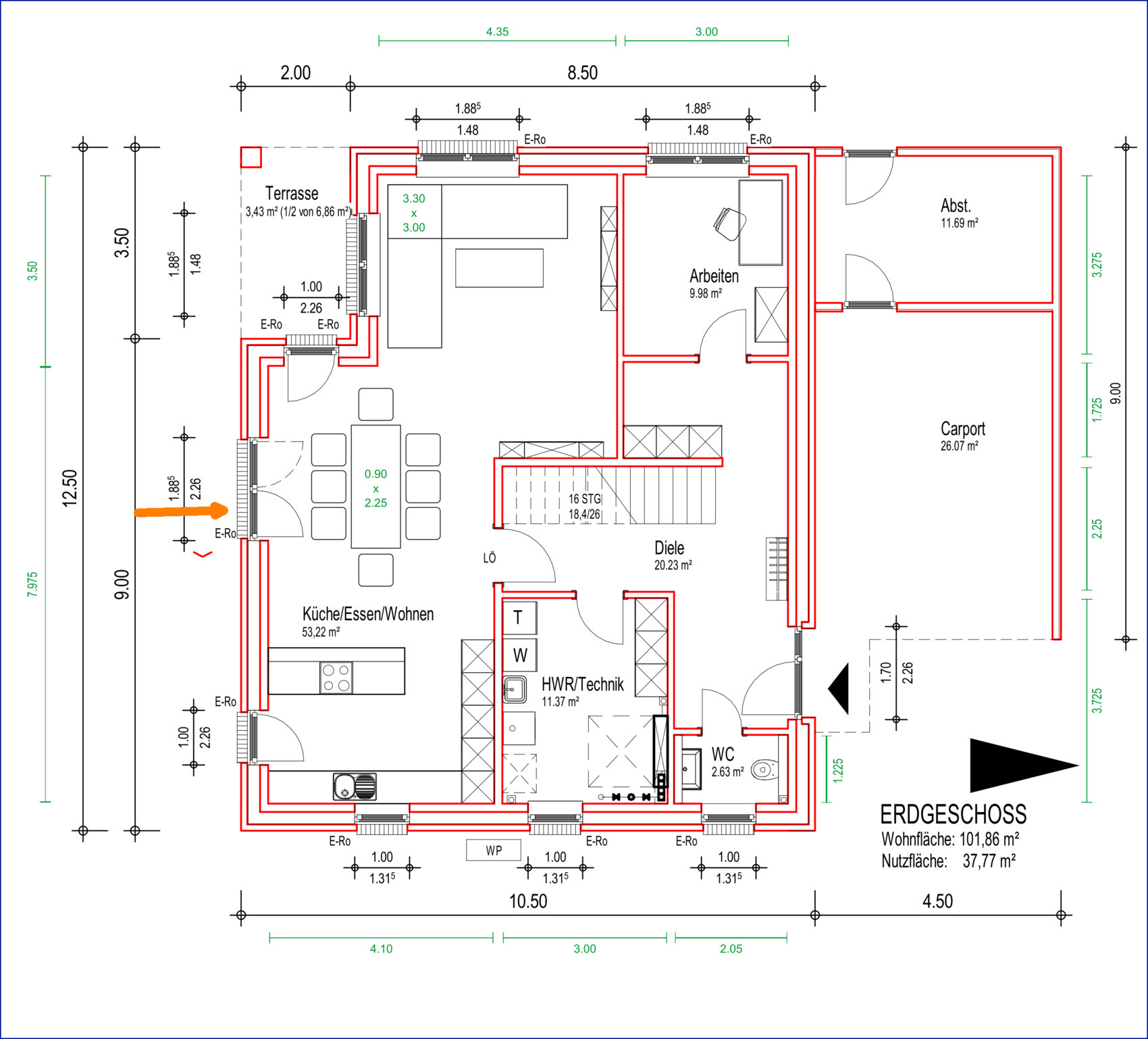
Wir wollen vom Eingang keine Sichtachse durch die gesamte Diele und finden diese Anordnung schön, auch wenn sie Platz kostet.Vor allem kostet sie auch Licht. Das wird ein finsterer Langer Tunnel. Wolltest Du nicht extra eine gerade Treppe, um nicht zu stürzen? Ohne Licht stürzt man m.E. noch viel schneller.HaseUndIgel schrieb:
Der Bebauungsplan schließt auch explizit Nebenanlagen wie Carports/Geräteräume/Gartenlauben außerhalb der Bebauungsgrenzen aus.Das hätte man gern in #1 bei den Vorgaben des B-Plans gelesen.HaseUndIgel schrieb:
Das ist tatsächlich schon unser aktueller FavoritIch überlege gerade, was schlimmer ist. Der dunkle Flur im EG oder dieses Bad. Das ist für mich ein Zeichen, dass Ihr den Plan gar nicht nachempfinden könnt. Ich würde zur 3D Hausanimation raten am besten mit Alternativen, um ein Gefühl dafür zu bekommen. HaseUndIgel schrieb:
Wobei ich denke, dass 40 Tiefe (eventuell beidseitig) den Zweck erfüllen wird, 60 brauchen wir da eigentlich nicht.Du baust einen Raum mit dem Zweck, etwas abzustellen. Dafür gibst Du zig tausende Euro aus. Dann sollte er auch den Zweck erfüllen. Ein solcher schrank ist nun mal mindestens 60 tief. Wenn Du lieber 40 stellen willst, ist das okay. Aber deswegen verbaut man sich nicht die Option auf eine ordentliche Nutzung. HaseUndIgel schrieb:
Nur als Vorwarnung: Ich schaffe es die nächsten Tage vermutlich nicht, ausführlich zu antworten, falls weiter so viele Beiträge kommen. Ich versuche das dann nachzuholen 🙂Danke für den Hinweis. 🙂HaseUndIgel schrieb:
Da muss ich widersprechen. Der Essbereich ist wie im Plan zu sehen (diesmal habe ich ja bemaßt) 4,10 m breit, das empfinden wir schon als fast zu groß. Der eingezeichnete Esstisch und vor allem die Stühle (eher Sessel) sind tatsächlich riesig, deswegen täuscht vielleicht die Relation, aber da ist massenhaft Platz, auch wenn man berücksichtigt, dass da der zentrale Durchgang durch den Wohn-/Koch-/Essbereich erfolgt.Ich muss da auch mal widersprechen. Ja, der Bereich ist für einen Essplatz ausreichend. Das Problem ist aber, dass dieser in den Laufzonen zum Wohnzimmer und (Achtung!) zur Terrasse liegt. Das heißt, Ihr braucht davor und dahinter zusätzlich Platz, um bei geöffneten Türen auf die Terrasse zu kommen. Dafür ist er eher knapp. Die Terrassentüren sind anscheinend auch nicht nach Laufwegen angeordnet, sondern nach Ästhetik. Entsprechend braucht Ihr dort jeden Zentimeter. Ich sage nicht, dass es nicht geht. Es ist nur eben sehr beengt.HaseUndIgel schrieb:
Das ist tatsächlich schon unser aktueller Favorit, bis auf ein bisschen Optimierung. Ich denke die Positionierung der Elemente werden wir aber so machen.Da kann ich den bisherigen Kritikern nur zustimmen, maximal schmaler Waschtisch und absolute Engstelle zwischen Waschtisch und Wanne um dort in das Bad zu kommen.Und der Abstellraum verschlingt 5,5 qm. Insgesamt könnte ich mir eine Aufteilung grob eher so vorstellen. Fenster/Türen müsste man noch etwas besser anpassen. Orange = Abstellraum ohne Fenster, gelb = Dusche, Blau = Waschtisch, der bei noch besserer Türposition an der gesamten Wand langgezogen sein könnte und planoben auch mit einem hohen Schrank enden könnte.
K a t j a schrieb:
Ich muss da auch mal widersprechen. Ja, der Bereich ist für einen Essplatz ausreichend. Das Problem ist aber, dass dieser in den Laufzonen zum Wohnzimmer und (Achtung!) zur Terrasse liegt. Das heißt, Ihr braucht davor und dahinter zusätzlich Platz, um bei geöffneten Türen auf die Terrasse zu kommen. Dafür ist er eher knapp. Die Terrassentüren sind anscheinend auch nicht nach Laufwegen angeordnet, sondern nach Ästhetik. Entsprechend braucht Ihr dort jeden Zentimeter. Ich sage nicht, dass es nicht geht. Es ist nur eben sehr beengt.Zumal auch noch der planuntere Terrassentürflügel als erst zu öffnender gekennzeichnet istDer Weg aus der Küche also irgendwie versperrt.
HaseUndIgel schrieb:
Wenn irgendjemand Interesse hat, würde ich den Thread auch gerne weiterführen und den Fortschritt bei Planung und Bau dokumentierenDie aktuelle Geschichte des Hausbaus ist doch auch sehr interessant. Bitte weitermachen!HaseUndIgel schrieb:
sind Anmerkungen und Kritik trotzdem ausdrücklich weiter erwünscht.Um Gottes Willen: Gut gemeinte Ratschläge und Tipps, die von Dir/Euch nicht aufgegriffen werden, weil der Sinn dahinter von Euch nicht ergriffen werden kann oder ihr beratungsresistent seid, sind lauwarm nicht besser. Im Prinzip kann man doch nur wieder einiges wiederholen. Aber Endlosschleifen wie täglich grüßt das Murmeltier sind sowas von schrecklich. Dann ist es halt so! Die Terrassenzugangsgeschichte werdet ihr merken, aber wegreden.Heute gibt es das erste richtige Status-Update von der Baustelle, denn gestern morgen haben die Erdarbeiten begonnen.
Da der Boden tiefer ausgehoben werden muss, als zuerst erwartet, brauchen wir wohl noch mal 100 m³ Sand zusätzlich (250 m³ insgesamt). Ein Teil des Aushubs kann aber zumindest nach Vermischung und Verdichtung wiederverwendet werden.
Wir sind gerade noch dabei die Angebote für Sanitär und Elektro abzustimmen, aber ansonsten ist in der Planung so ziemlich alles fertig. Spätestens Ende Januar 2026 sollte das Haus dann bezugsfertig sein.

Da der Boden tiefer ausgehoben werden muss, als zuerst erwartet, brauchen wir wohl noch mal 100 m³ Sand zusätzlich (250 m³ insgesamt). Ein Teil des Aushubs kann aber zumindest nach Vermischung und Verdichtung wiederverwendet werden.
Wir sind gerade noch dabei die Angebote für Sanitär und Elektro abzustimmen, aber ansonsten ist in der Planung so ziemlich alles fertig. Spätestens Ende Januar 2026 sollte das Haus dann bezugsfertig sein.
Ähnliche Themen