Das ist ja die Sache auch im Allgemeinen, "gehen" tut immer Alles bzw. Vieles. Es sollte sich eben jeder die Frage stellen, ob einem die Konsequenzen gefallen. Es gibt sicher auch Menschen, denen so etwas wurscht ist, dann passt es ja auch. Daher kam ja mein Hinweis auch mit dem Spritzschutz, bei dem es dann auch wieder unterschiedliche Ansichten hinsichtlich der Mindestbreite gibt. Ebenso kann es sein, dass man die Grenze nicht zentimetergenau trifft (bei mir wurde das völlig verhunzt aber leider zu spät bemerkt) und wenn das auf beiden Seiten passiert fehlen halt schon wieder ein paar Zentimeter an einer ohnehin schon engen Stelle.
HaseUndIgel schrieb:
Ich finde das spannend, dass es hier auch viele alte Gebäude ohne gibt, wo in meinen Augen der Klinker noch voll in Ordnung ist. Aber vielleicht wird da auch immer aufwendig gereinigt.Wofür der Klinker ja auch durchgefärbt sein sollte.https://www.instagram.com/11antgmxde/
https://www.linkedin.com/company/bauen-jetzt/
Arauki11 schrieb:
Ebenso kann es sein, dass man die Grenze nicht zentimetergenau trifft (bei mir wurde das völlig verhunzt aber leider zu spät bemerkt) und wenn das auf beiden Seiten passiert fehlen halt schon wieder ein paar Zentimeter an einer ohnehin schon engen Stelle.Ja, vollkommen richtig. In der aktuellen Planung schieben wir das Haus ein Stück weiter Richtung Süden um die Situation im Norden zu entschärfen. Dann gibt es ein Podest vor dem Eingang, das gleichzeitig auch das Ende des Spritzschutzes in der Richtung darstellt. Unter dem Carport-Dach wird der ja nicht gebraucht.
Wir sind noch nicht sicher ob wie die Idee von ypg bezüglich der Ausrichtung des Fahrradschuppens auch so umsetzen, aber ansonsten gefällt uns der Eingang jetzt schon besser.
11ant schrieb:
Primär bin ich inhaltlich auf die Frage gespannt.Zu den Fenstern:
Im Angebot des GU sind aktuell Kunststoff-Fenster von Kneer Süd Fenster enthalten, und zwar die KF 700.
Kenndaten KF 700:
- WÄRMEDÄMMUNG BIS 0,68 W/m²K
- SCHALLDÄMMUNG BIS KLASSE 4
- EINBRUCHSCHUTZ BIS RC 2
Kenndaten KF 734 S:
- WÄRMEDÄMMUNG BIS 0,73 W/m²K
- SCHALLDÄMMUNG BIS KLASSE 5
- EINBRUCHSCHUTZ BIS RC 3
Im Angebot steht zu den Fenstern noch:
Sämtliche Fenster aus vollarmiertem weißem Kunststoff System KF 700 mit:
- 3-Scheiben-Wärmeschutzverglasung mit Ug-Wert = 0,5 W/m K
- Mitteldichtungssystem mit 3 Dichtungen
- Bautiefe: 80 mm
- Kammeranzahl: 6 Kammer
- Material: Faserverbundwerkstoff aus dem Hightech Werkstoff RAU-FIPRO®, umlaufende coextrudierte Außenschicht aus hochwertigem RAU-PVC für beste Oberflächenqualität
- Nach RAL und CE geprüfte Fenster
- Uw des Fenster 0,68 W/(m°K) nach DIN EN ISO 10077-1:2006 für die Referenzgröße 1230*1480mm
- Extra leichtes Dreifach-Iso
- CLIMATOP XN Extra Light
- Glasgewicht: 22,5 kg/m
- Schalldämmwert Fenster von 37dB mit Standardglas und asymmetrischem Glasaufbau.
Ein paar einfache Überschlagsrechnungen lassen vermuten, dass auch die KF 700 mit ihren 37dB Schalldämmung auch bei starkem Verkehrsaufkommen ausreichen sollten, damit man drinnen nichts hört. Aber ich hätte da gerne eure Meinung zu.
Außerdem steht im Angebot noch, dass pro Fenster folgendes hinzukommt (das Betrifft dann natürlich nicht den Schallschutz):
Sicherheitsbeschlag RC 2 N
- Mind. 6 Stahlpilzkopfverriegelungen
- Flügelheber mit integr. Fehlbedienungssperre
- Anbohrschutz
- Ecklager mit Drehbremse
- Zuschlagsicherung
- abschließbare Olive nach DIN
- Aushebelsicherung
- (Ausgenommen sind Sonderformen (Rund/Schräg) und bei Unterschreiten der Minimalgröße sowie bei Kippfenstern)
HaseUndIgel schrieb:
Die Frage ist, reicht sowas aus oder sollte man lieber auf die KF 734 S hochgehen, vielleicht auch nur in den Schlafräumen.Wenn sie eine bessere Schalldämmung bringen, im Prinzip ja. Aber Schlafräume nutzt man im meist nachts, wo dann noch Rollladen hinzukommen.HaseUndIgel schrieb:
Oder sind diese Fenster vielleicht sowieso Mist und man nimmt lieber was ganz anderes?
[...] Material: Faserverbundwerkstoff aus dem Hightech Werkstoff RAU-FIPRO®, umlaufende coextrudierte Außenschicht aus hochwertigem RAU-PVC für beste OberflächenqualitätDas klingt nicht nach Mist, und beim Bau mit GU würde ich die Fenster ausnahmsweise über diesen statt den Einbauer besorgen.HaseUndIgel schrieb:
Mitteldichtungssystem mit 3 Dichtungen # Bautiefe: 80 mm # Kammeranzahl: 6 KammerDazu siehe "Wie viele Kammern braucht ein Fenster?". MD nähme ich grundsätzlich, und die Bautiefe sagt wie die Kammeranzahl nichts aus.HaseUndIgel schrieb:
Schalldämmwert Fenster von 37dB mit Standardglas und asymmetrischem Glasaufbau.Dazu finden sich auf der Website des Herstellers keine Erläuterungen.https://www.instagram.com/11antgmxde/
https://www.linkedin.com/company/bauen-jetzt/
Hallo zusammen,
nach ziemlich genau einem Monat Funkstille wollte ich einmal ein Status-Update zu dem Projekt geben.
Wir haben Anfang Januar eine kleine Pause eingelegt und dann etwas reflektiert und auch noch mal bisherige Annahmen in Frage gestellt.
Dabei haben auch überlegt, welche Gründe es gäbe, noch Mal mit einer neuen Planung anzufangen, bei der wir uns direkt von einigen Ideen (z.B. der geraden Treppe) verabschieden, um vor allem effizienter bei der Flächennutzung zu werden.
Letztlich haben wir uns aber dafür entschieden, die aktuelle Planung weiterzutreiben und stehen jetzt kurz vor Vertragsabschluss mit dem GU.
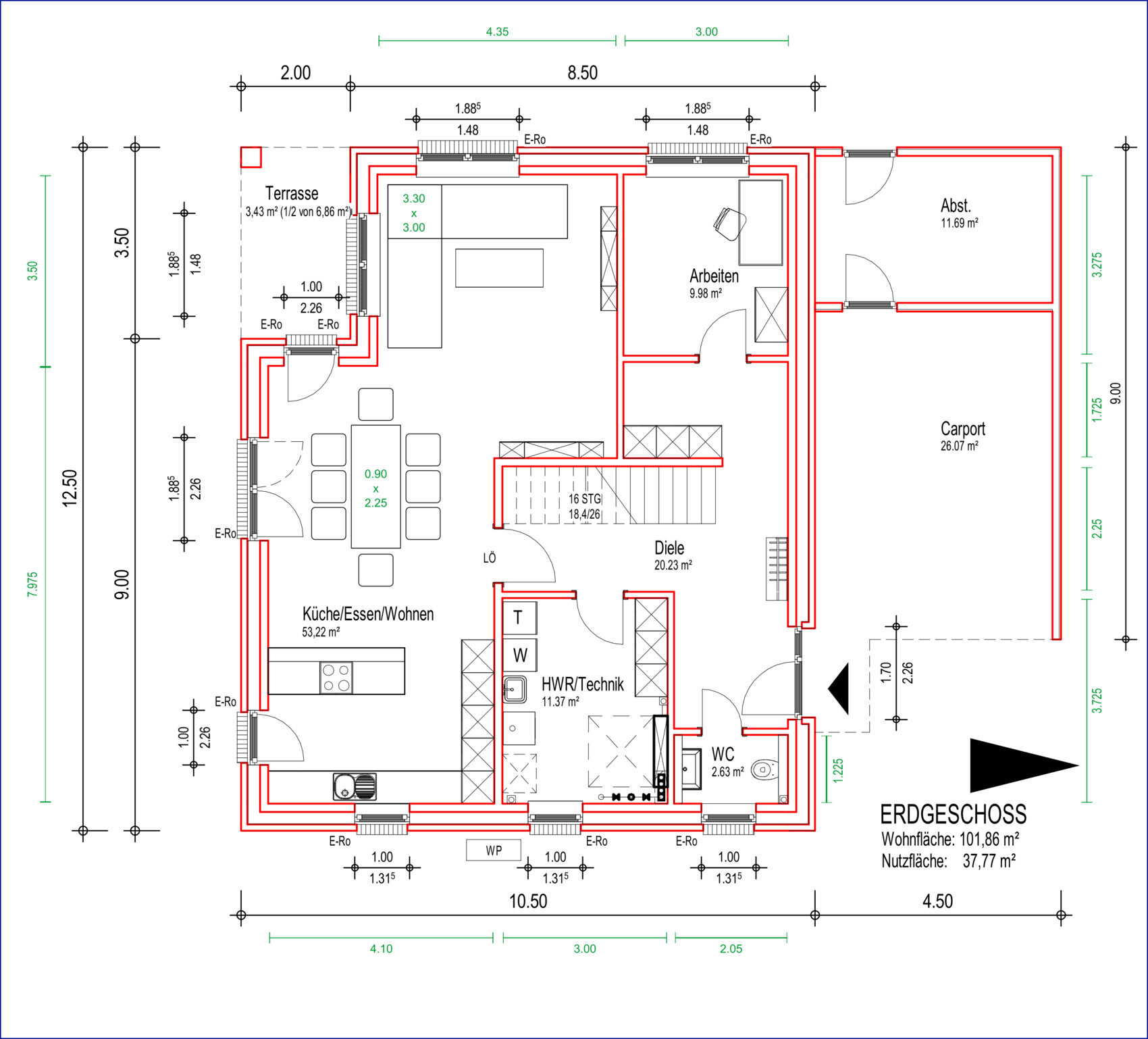
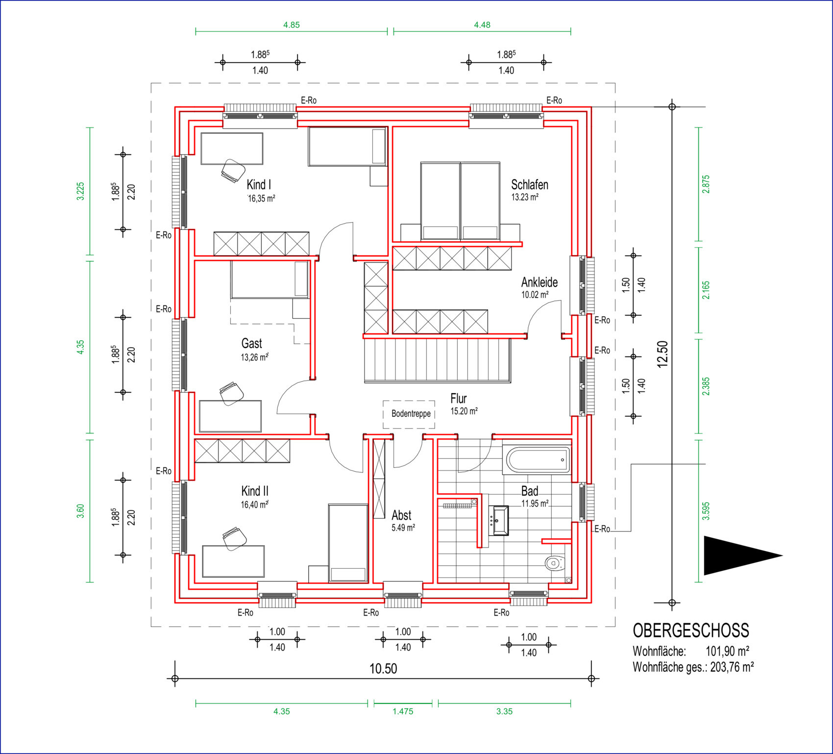
Den aktuellen Stand der Planung hänge ich hier einmal an.
Am Grundriss wird sich nichts nichts Wesentliches mehr ändern. Vielleicht rutschen Wände noch ein paar Zentimeter und die detaillierte Bad- und Küchenplanung steht noch aus. Außerdem fehlen noch andere Aspekte der Detailplanung, so müssen wir noch festlegen, wo die Rohre für die zentrale Zu- und Abluft laufen sollen usw.
Damit hat dieser Thread seine Kernaufgabe für uns erfüllt, danke noch einmal an alle Beteiligten!
Wenn irgendjemand Interesse hat, würde ich den Thread auch gerne weiterführen und den Fortschritt bei Planung und Bau dokumentieren und sicher auch noch in Zukunft die eine oder andere Frage stellen.





nach ziemlich genau einem Monat Funkstille wollte ich einmal ein Status-Update zu dem Projekt geben.
Wir haben Anfang Januar eine kleine Pause eingelegt und dann etwas reflektiert und auch noch mal bisherige Annahmen in Frage gestellt.
Dabei haben auch überlegt, welche Gründe es gäbe, noch Mal mit einer neuen Planung anzufangen, bei der wir uns direkt von einigen Ideen (z.B. der geraden Treppe) verabschieden, um vor allem effizienter bei der Flächennutzung zu werden.
Letztlich haben wir uns aber dafür entschieden, die aktuelle Planung weiterzutreiben und stehen jetzt kurz vor Vertragsabschluss mit dem GU.
Den aktuellen Stand der Planung hänge ich hier einmal an.
Am Grundriss wird sich nichts nichts Wesentliches mehr ändern. Vielleicht rutschen Wände noch ein paar Zentimeter und die detaillierte Bad- und Küchenplanung steht noch aus. Außerdem fehlen noch andere Aspekte der Detailplanung, so müssen wir noch festlegen, wo die Rohre für die zentrale Zu- und Abluft laufen sollen usw.
Damit hat dieser Thread seine Kernaufgabe für uns erfüllt, danke noch einmal an alle Beteiligten!
Wenn irgendjemand Interesse hat, würde ich den Thread auch gerne weiterführen und den Fortschritt bei Planung und Bau dokumentieren und sicher auch noch in Zukunft die eine oder andere Frage stellen.
Ähnliche Themen