Hausbau - Ratgeber
Bauherrenhilfe
- Bauherrenhilfe vor Vertragsabschluss
-- Warum einen unabhängigen Baubetreuer?
-- Vertragsgrundlagen
-- Bausumme
-- Zahlungsplan zur Kostenkontrolle
-- Pflichten des Bauherren vor Vertragsabschluss
-- Unterlagen beim Hausbau vor Vertragsabschluss
- Bauherrenhilfe nach Vertragsabschluss
-- Bauantrag bei Behörden
-- Bau-Genehmigungsverfahren bei Baubehörden
-- Bauspezifische Versicherungen
-- Bauzeitenplan
-- Baubeginn - die Letzten Pflichten der Bauherrschaft
- Bauherrenhilfe während der Bauzeit
- Gewährleistungsansprüche
- Bauabnahme
Baufinanzierung
- Baufinanzierung - Allgemeine Fragen
- Kreditarten
- Kredit-Konditionen
- Bausparen
- Staatliche Förderungen
- Verkehrswert
- Haushaltsrechnung und Bonität
Hausbau Planung
- Haustypen
- Hausbau Vorbereitungsarbeiten
- Das Baugrundstück
- Baugrund beim Hausbau
- Baurecht
- Gebäudeschutz
- Erdarbeiten und Wasserhaltung
- Stützmauern
- Einfriedung
- Untergeschoss
- Kanalisation
- Tragende Elemente
- Nichttragende Innenwände
- Fundation / Fundament
- Deckenkonstruktionen
- Dächer
- Kaminanlagen
- Treppen Rampen Leitern
- Dachbeläge und Spengler
- Fenster
- Sonnen und Wetterschutz
- Aussenputze
- Einbauten, Küchen, Türen
- Bodenbeläge und Unterlagsböden
- Parkett
- Gips, Wand, Decke
Haustechnik und Energie
- Heiztechnik
- Lüftung und Klimatechnik
- Sanitärtechnik
- Elektrotechnik
- Erneuerbare Energie
Whirlpools / Jacuzzi
Hausbau Magazin
- Baufinanzierung trotz Krise?
- Das Blockhaus
- Moderne Dämmstoffe im Vergleich
- Erker Vor- und Nachteile
- Glasflächen beim Hausbau
- Günstig ein Haus Bauen
- Mediterraner Hausbaustil
- Mehrgenerationenhaus
- Moderne Architektur
- Gartengestaltung leicht gemacht
- Traditioneller Ziegelbau
- Villa als höchster Traum
- Im Eigenheim Ruhestand geniessen
- Altbau sanieren
- Kauf einer Holzgarage
- Immobilienmakler
- Arbeitshandschuhe für den Winter
- Zuhause verschönern
- Outdoor-Plissees
- Schlafzimmer planen
- Terrassenüberdachung
- Wohngebäudeversicherung
- Zaunarten und Eigenschaften
- Hauseingang gestalten
- Der perfekte Grundriss
- Sparsamer heizen im Altbau
- Einfamilienhaus smart finanzieren
- Planung einer PV-Anlage
- Neues Haus
- Immobilienfinanzierung
- Installation einer Photovoltaikanlage
- Asbest erkennen und entfernen
- Gartenpflege im Frühling – worauf achten
- Sauna im Fokus - Wellness zuhause
- Erfolgreich vermieten
- Die perfekte Winterbekleidung
- Das Niedrigenergiehaus
- Der April und seine Stürme
- Architektonische Vielfalt
- Ökologisch und nachhaltig bauen
- Das perfekte Schlafzimmer
- Nachhaltige Energieversorgung
- Zukunftsorientiert bauen
- Nachhaltigkeit beim Hausbau
- Tiny Houses
- Wärmepumpen als nachhaltige Heizvariante
- Maßgeschneiderten Kleiderschrank
- Der richtige Baukredit
- Ratgeber für erfolgreichen Hausbau
- Haus als Altersvorsorge
Do-it-yourself Anleitungen
- Verlegeanleitung für Bodenbeläge und Parkett
- Bodenbeläge und Parkett reinigen und pflegen
- Malerarbeiten am Haus
- Garten Tipps
- Umzug und Reinigung

ᐅ Grundriss - Meinungen erwünscht

Erstellt am: 09.08.16 21:49
L
Loads
Y
ypg
09.08.16 23:12
Kinder sind nicht geplant?
kbt0909.08.16 23:29
Sieht nicht so aus.
L
Loads
10.08.16 07:27
Guten Morgen!

Schon so viele Antworten; toll!
kbt09 schrieb:
Nur auf die Schnelle:
  • Ganz schlimm ... die Küchenfenster .. Bauhöhe nur 50 cm, das wird in der Küche aussehen, als wenn man im Keller steht
  • Garderobe/Schuhe/Handtaschen/Mützen/Schals usw. im Eingangsbereich .. wo sollen die hin?
  • Warum kein kleiner Hauswirtschaftsraum im OG? Mit Waschmaschine/Trockner usw?
  • Schlafen Richtung Süden? Würde ich wohl eher unters Norddach packen
  • 270cm Schrank ... aber ein Riesenraum für ein Bett
  • es fehlt eine realistische Möblierung im Wohnbereich. Das Sofa hat z. B. Schenkellängen von 215*150 cm. Der Esstisch ist mit 135x82 cm eingezeichnet.
  • Das mit den Küchenfenster haben wir bei Bekannten gesehen.
  • Die haben dort noch Oberschränke drüber hängen.
    Wir fanden das eigentlich ne ganz gute Idee.
  • Garderobe ist uns auch schon aufgefallen. Muss auf jeden Fall größer werden.
  • das mit dem Hauswirtschaftsraum im OG ist eine prima Idee! Dann brauchen wir auch keinen Wäscheschacht.
  • Richtig: Ankleide ist zu klein und Schlafzimmer zu groß. Wand entsprechend verschieben.
  • Merkt man denn unter einem 24cm gedämmten Dach ohne Fenster einen Unterschied zwischen Nord und Süd?
  • Danke für den Tipp mit den Möbeln. Wäre mir jetzt gar nicht aufgefallen.

ypg schrieb:
Sollen die Geschosse später geteilt werden in zwei Wohneinheiten?
Ich würde ansonsten immer noch WZ und Küche tauschen, sodass man dort bequem aus der Terrasse gehen kann. WZ braucht keinen Ausgang.
WC noch abteilen und Garderobe bedenken.
Ich glaube zur Zeit doch nicht an Trennung von 2 Wohneinheiten, warum also diese Abschottung der Treppe? Ich finde es immer so befremdlich, mit Socken am Abend mal eben schnell im Bad was zu machen, um dann wieder gemütlich zum Sofa zu gehen. Auch für die Kinder ist das OG dadurch zu separiert. Ist das so durchdacht und gewollt?

  • Eine Aufteilung in 2 Wohneinheiten ist nicht vorgesehen.
  • Das mit der Küche habe ich noch nicht so richtig verstanden. Die wäre dann ja eigentlich total im Mittelpunkt der Wohnung?
  • WC abteilen ist notiert. Denke das kann man gut mit der Garderobenvergrößerung kombinieren.
  • Kinder sind aktuell keine geplant, aber man weiß ja nie was noch kommt.
  • Das mit dem Treppenhaus stimmt. Also Treppe eher in die Hausmitte der Nordseite?
Maria16 schrieb:
was mir auf Anhieb auffällt:

- ihr habt keine Garderobe - dafür aber eine eingerückte Terrasse direkt neben der Haustür; könnte etwas zu gut einsehbar sein...
  • Einsehbarkeit der Terrasse ist kein Problem. Auf dieser Seite des Hauses kommt sonst nichts mehr.
  • Hier ist dann direkt ein großer Grünstreifen von einem Friedhof.
Y
ypg
10.08.16 23:04
Loads schrieb:
Das mit dem Treppenhaus stimmt. Also Treppe eher in die Hausmitte der Nordseite?

Nun ja, Du musst wissen, was Ihr wollt. Die schlechteste Lage einer Treppe ist eigentlich direkt an der Eingangstür, (weil man immer durch die Erdkrümel läuft) - ausser Ihr plant mal irgendwann eine räumliche Aufteilung, wo dann die Wohntreppe zum Treppenhaus umfunktioniert wird.
Die vorgelagerte Treppe ist somit eher Standard in Häusern mit zwei Wohneinheiten.
Aber es teilen sich die Geister: für den einen ist die Treppe ein stylisches Wohnelement, dem anderen zuwider.
Loads schrieb:
Das mit der Küche habe ich noch nicht so richtig verstanden. Die wäre dann ja eigentlich total im Mittelpunkt der Wohnung?

Zur Zeit wäre sie das - natürlich muss mal wieder einige Veränderungen treffen. Für mich ist die Lage der Küche oder des Freibereiches davor (Essbereich oder sonstwo) immer mit der Terrasse verbunden. Man deckt schliesslich draußen den Tisch, holt sich von draußen etwas zu trinken oder grillt - da möchte man kurze Wege zur Küche. Eine Terrasse ist wie der Esstisch, wo das Tagesgeschehen passiert.

Mich sollte wundern, wenn man vom sofa zur Liege und umgekehrt wandert.

Auch ist der Bereich vor der Terrasse ja nicht gerade der sauberste (Grasschnitt, Sand, etc), das möchte man ungern im abendlichen Tete-a-tete neben dem Sofa haben. Eine Küche wird öfter mal gefegt. Das WZ dient somit zum Relaxen, wenn auf der Terrasse mal nichts los ist (Sonnenfinsternis, Winter, Nacht oder Regen)

Wie kommt man denn eigentlich zur Eingangstür? Im Schnitt sieht es so aus, als wenn dort Gefälle ist?!
Für mich wäre der nicht einladende Gang im Keller ein Nogo. Ihr werdet ihn als Eingang benutzen, das wäre mir etwas zu unheimlich. Aber wenn die Treppe in die Mitte des Hauses verlegt wird, könnte es etwas auflockern. Es ergibt sich dann ja eine andere Aufteilung hinsichtlich Büro und Hobbyraum.
L
Loads
10.08.16 23:12
So habe ich das Ganze noch gar nicht bedacht. Klingt aber logisch!
Zum Eingang kommt eine Außentreppe von der Straße.
Wir werden aber oftmals tatsächlich von der Garage über den Keller ins Haus gehen, ja.
L
Loads
04.09.16 18:13
Hallo,

wir haben nun noch mal fast alles umgeworfen und uns auch an den Tipps hier aus dem Forum orientiert. Anbei die neue Planung.
Küche ist zwar immer noch im Norden, aber da werden wir noch mal mit dem Planer sprechen ob sich das nicht doch irgendwie Richtung Terrasse ändern lässt.

Zweistöckiges Haus mit dunklem Dach, Fenstern, Tür und Garage; Person mit Wagen vor dem Haus.


Zweistöckiges Einfamilienhaus mit Satteldach, Fenstern, Baum links, Busch rechts, Einfahrt vorne.


Zweistöckiges Haus mit dunklem Dach, Glasfronten und zwei Personen auf der Veranda.


Zweistöckiges Haus mit Satteldach, mehreren Fenstern; links großer Baum, rechts Baum.


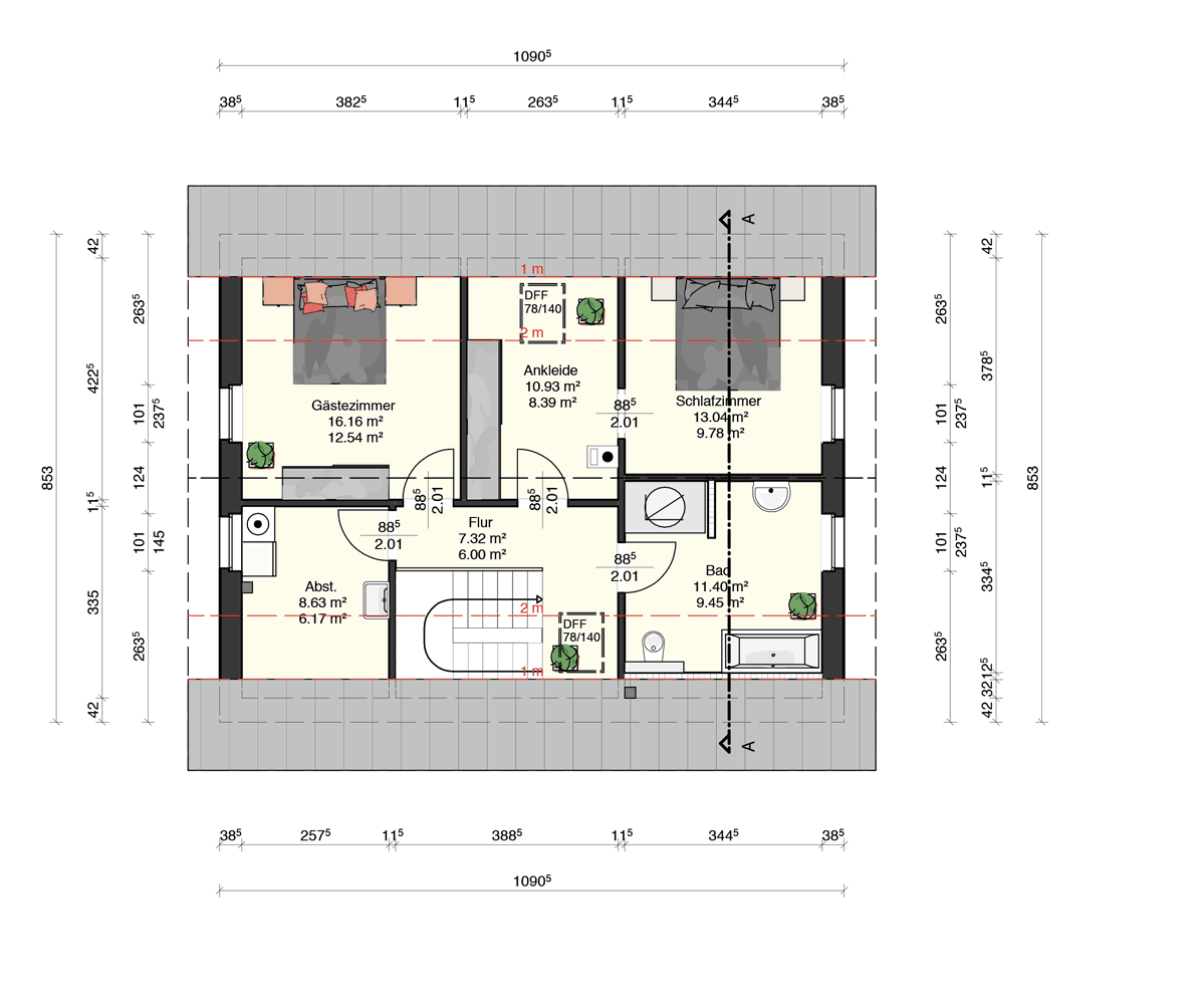
Dachgeschoss-Grundriss: Schlafzimmer, Gästezimmer, Ankleide, Bad, Flur, Abstellraum.


Grundriss eines Hauses: Wohn-/Esszimmer, Küche, Flur, WC, Abstellraum, Treppe.


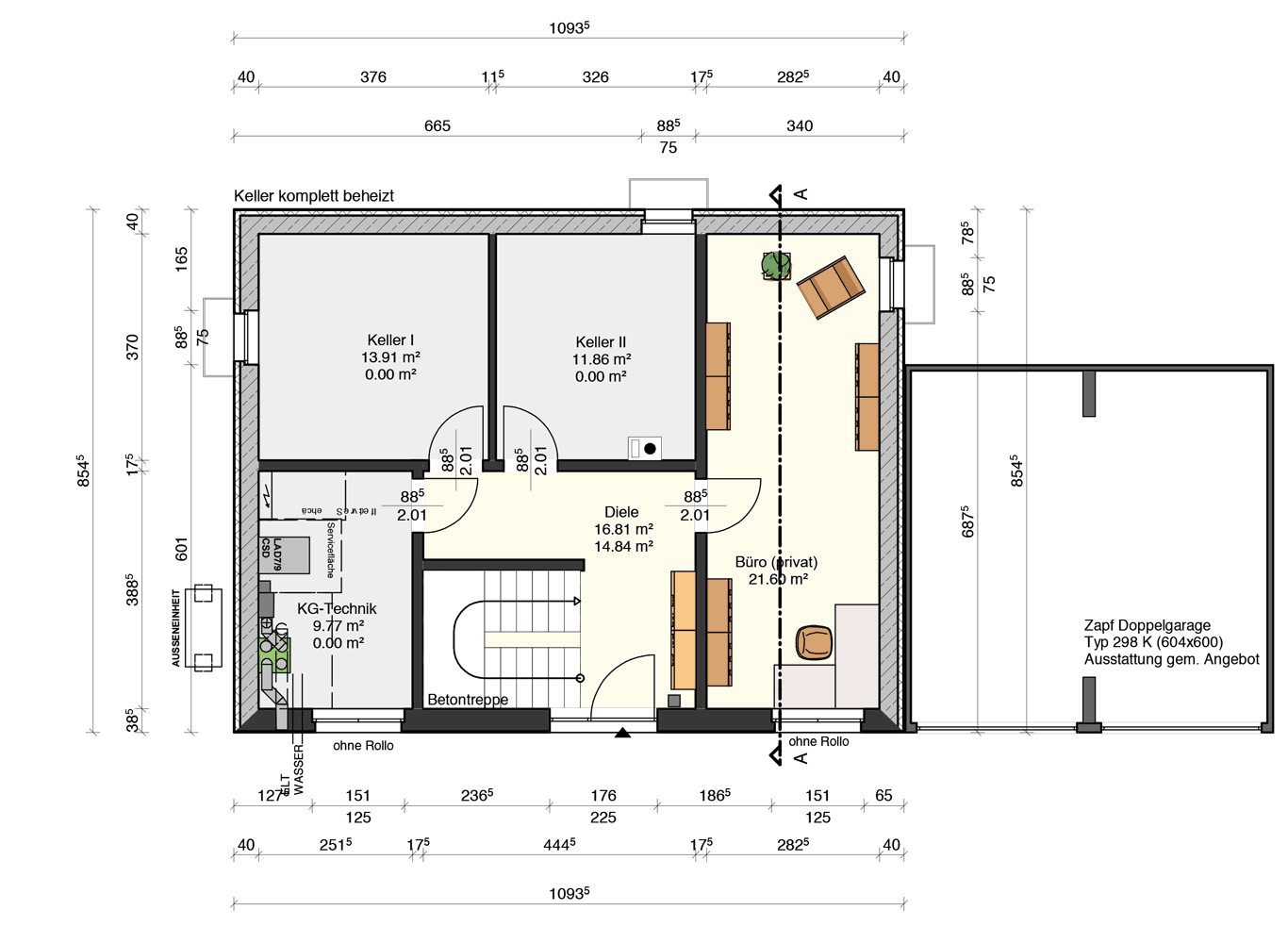
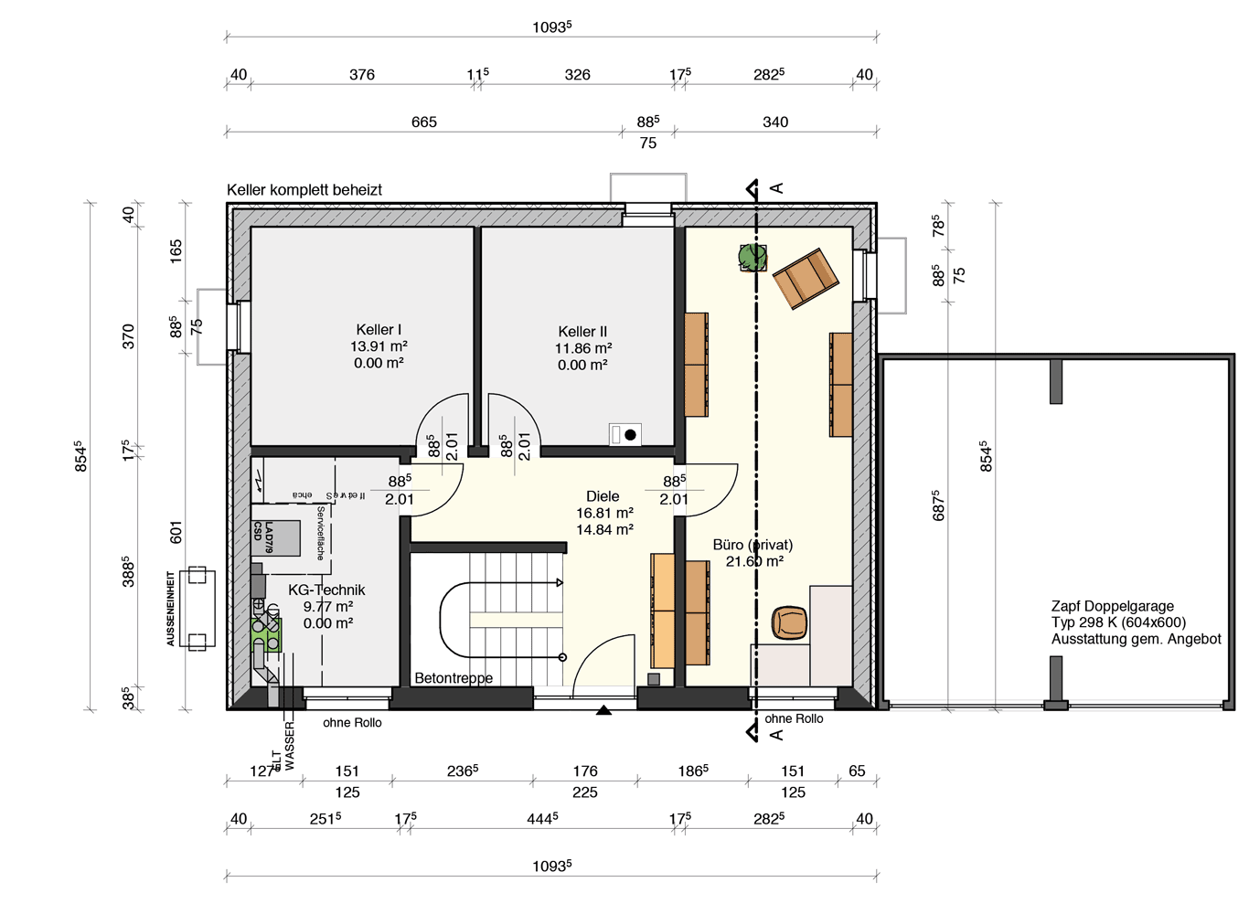
Grundriss Kellergeschoss: Keller I & II, Diele, Büro privat, KG-Technik, Treppenhaus, Garage


Querschnitt eines mehrstöckigen Hauses mit Dachkonstruktion, Maßangaben.
treppenhausterrassekücheeingangstürwohneinheitensofakeller