ᐅ Grundriss kleiner Bungalow mit Holzfassade
Erstellt am: 06.05.25 16:28
Patrick.06.05.25 16:28
Hallo zusammen,
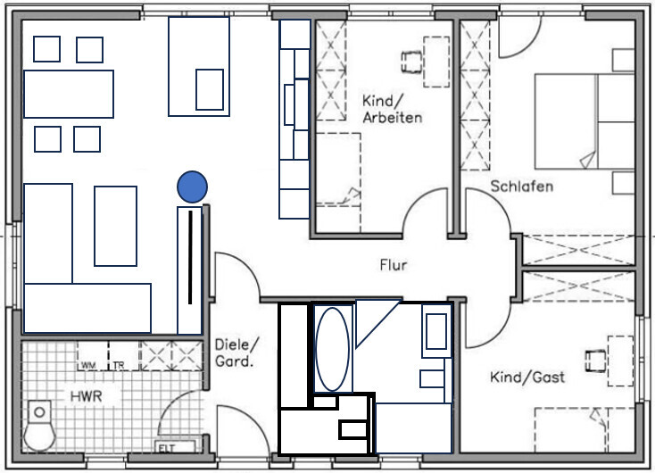
nachdem wir uns einige Zeit damit gelassen haben unser Grundstück provisorisch zu nutzen, wollen wir nun ein Haus darauf bauen. Es soll als Zweitwohnsitz dienen solange die Kinder klein sind und später als Hauptwohnsitz für uns Eltern. Das Grundstück steigt ab der Straße die ersten 19m um 3m an, siehe Lageplan. Danach ist es flach. Dort soll das Haus stehen. An der nördlichen Grenze soll eine Großraumgarage in den Hang gebaut werden.
Gern möchte ich auf mögliche Fehler und Optimierungen hingewiesen werden. Insbesondere gängige Rastermaße für die Küchenzeilen (gegenüberliegend). Die Verbindung zum Garten möchte ich optimieren. Die Fassade ist aus Lärche, die Decke im Wohnzimmer geöffnet.
Bebauungsplan/Einschränkungen
Größe des Grundstücks: 1200 m²
Hang, ja
Baufenster, Baulinie und -grenze: ca. 19m
weitere Vorgaben: §34
Anforderungen der Bauherren
Anzahl der Personen, Alter: 4 Personen
Raumbedarf im EG, OG
Büro: Familiennutzung oder Homeoffice? Beides
offene oder geschlossene Architektur: offen
konservativ oder moderne Bauweise: modern
offene Küche, Kochinsel: nein
Anzahl Essplätze: 6 oder mehr
Kamin: ja
Musik/Stereowand: gern
Balkon, Dachterrasse: nein
Garage, Carport: ja
Nutzgarten, Treibhaus
weitere Wünsche/Besonderheiten/Tagesablauf, gern auch Begründungen, warum dieses oder das nicht sein soll
Hausentwurf
Von wem stammt die Planung:
-Planer eines Bauunternehmens
Was gefällt besonders? Warum? Offenes Wohnzimmer ohne Decke.
Was gefällt nicht? Warum?
Persönliches Preislimit fürs Haus, inkl. Ausstattung: 280 T€
Wenn Ihr verzichten müsst, auf welche Details/Ausbauten
-könnt Ihr verzichten: zweites Bad
-könnt Ihr nicht verzichten: Kamin
Warum ist der Entwurf so geworden, wie er jetzt ist? ZB
Standardentwurf vom Planer? ja, inkl. eigener Anpassungen




nachdem wir uns einige Zeit damit gelassen haben unser Grundstück provisorisch zu nutzen, wollen wir nun ein Haus darauf bauen. Es soll als Zweitwohnsitz dienen solange die Kinder klein sind und später als Hauptwohnsitz für uns Eltern. Das Grundstück steigt ab der Straße die ersten 19m um 3m an, siehe Lageplan. Danach ist es flach. Dort soll das Haus stehen. An der nördlichen Grenze soll eine Großraumgarage in den Hang gebaut werden.
Gern möchte ich auf mögliche Fehler und Optimierungen hingewiesen werden. Insbesondere gängige Rastermaße für die Küchenzeilen (gegenüberliegend). Die Verbindung zum Garten möchte ich optimieren. Die Fassade ist aus Lärche, die Decke im Wohnzimmer geöffnet.
Bebauungsplan/Einschränkungen
Größe des Grundstücks: 1200 m²
Hang, ja
Baufenster, Baulinie und -grenze: ca. 19m
weitere Vorgaben: §34
Anforderungen der Bauherren
Anzahl der Personen, Alter: 4 Personen
Raumbedarf im EG, OG
Büro: Familiennutzung oder Homeoffice? Beides
offene oder geschlossene Architektur: offen
konservativ oder moderne Bauweise: modern
offene Küche, Kochinsel: nein
Anzahl Essplätze: 6 oder mehr
Kamin: ja
Musik/Stereowand: gern
Balkon, Dachterrasse: nein
Garage, Carport: ja
Nutzgarten, Treibhaus
weitere Wünsche/Besonderheiten/Tagesablauf, gern auch Begründungen, warum dieses oder das nicht sein soll
Hausentwurf
Von wem stammt die Planung:
-Planer eines Bauunternehmens
Was gefällt besonders? Warum? Offenes Wohnzimmer ohne Decke.
Was gefällt nicht? Warum?
Persönliches Preislimit fürs Haus, inkl. Ausstattung: 280 T€
Wenn Ihr verzichten müsst, auf welche Details/Ausbauten
-könnt Ihr verzichten: zweites Bad
-könnt Ihr nicht verzichten: Kamin
Warum ist der Entwurf so geworden, wie er jetzt ist? ZB
Standardentwurf vom Planer? ja, inkl. eigener Anpassungen
11ant06.05.25 17:47
Patrick. schrieb:
Welche Möglichkeiten seht ihr möglichst günstig Wohnraum zu schaffen? Es widerstrebt mir ein Fertighaus für ~250 - 300 k€ nur für die Wochenenden zu finanzieren.QUOTE="Patrick., post: 687337, member: 57422"]nachdem wir uns einige Zeit damit gelassen haben unser Grundstück provisorisch zu nutzen, wollen wir nun ein Haus darauf bauen. Es soll als Zweitwohnsitz dienen solange die Kinder klein sind und später als Hauptwohnsitz für uns Eltern.
[/QUOTE]
Das nenne ich mal einen interessanten Sinneswandel und gratuliere mit Neid ohne Mißgunst zum Grundstück und dem Sichleistenkönnen eines Wochenendhauses mit Doppelgarage. Im Alter neben den Friedhof zu ziehen trifft auch voll meinen Humor - den Bungalow als "klein" zu bezeichnen eher nicht. Mit Kindern (welchen Alters ?) ist der Eingangsbereich "mit ohne Garderobe" schlecht geplant. Bei "Wochenendhaus" denke ich zu allerletzt an "viel putzen müssen".
Patrick.06.05.25 20:03
Hallo, schön wieder von dir zu hören! Es war tatsächlich ein langer Prozess, das will ich nicht verneinen. Ich sehe es ebenfalls nicht als klein an. Ich dachte im Maßstab anderer Bauvorhaben hier wäre es klein.
Ziel der Planung war es unter anderem Verkehrswege zu minimieren. Daher gibt es praktisch keine Flure. Ist es unpraktisch den HAR als Garderobe nutzen zu wollen? Die Kinder sind unter 10 Jahre. Ich habe das noch nie im Alltag ausprobieren können. In der Diele kann man tatsächlich nichts unterbringen.
Ziel der Planung war es unter anderem Verkehrswege zu minimieren. Daher gibt es praktisch keine Flure. Ist es unpraktisch den HAR als Garderobe nutzen zu wollen? Die Kinder sind unter 10 Jahre. Ich habe das noch nie im Alltag ausprobieren können. In der Diele kann man tatsächlich nichts unterbringen.
ypg06.05.25 20:57
Patrick. schrieb:
Ist es unpraktisch den HAR als Garderobe nutzen zu wollen?Naja, Du wirst gar keinen Platz finden, denn da muss ja die Technik rein, dafür ist er schon recht klein. Eine Multi-Nutzung sehe ich da nicht.Arauki1106.05.25 21:27
Ich finde es nicht leicht, diesen Grundriss angemessen zu kommentieren. Du wohnst jetzt im Haus mit Kindern und dieses neue, kleinere Haus soll letztendlich fürs Alter sein aber eben doch auch für Kinder. Zu zweit könnte ihr ja viel offener wohnen und müsstet nur Euer Beider Bedürfnisse und Eigenheiten abbilden. So aber muss es als Ferienhaus funktionieren und für dann Jugendliche oder junge Erwachsene, von denen man nicht weiß, wie sie sein werden oder das eigene Leben mit ihnen überhaupt sein wird.
Ich könnte mir eher eine Lösung vorstellen, wo Jugendzimmer bzw. Besucherzimmer sogar einen direkten Außenzugang haben und ich mein Privates mit Ehefrau im Alter nicht mehr auf noch engerem Raum als vorher teilen muss und deren berechtigten Eigenheiten aushalten. Ein heim im Alter sollte für mich und Partner passen und evtl. kann auch Platz für Besuch (Kinder, Bekannte....) sein.
Dieser Grundriss muss als mMn zu viele Bedürfnisse abdecken und bekommt auch daher schon Probleme bei einfachen Dingen wie z.B. einer Garderobe, einem vlt. großzügigeren HAR o.ä.
Ich könnte mir eher eine Lösung vorstellen, wo Jugendzimmer bzw. Besucherzimmer sogar einen direkten Außenzugang haben und ich mein Privates mit Ehefrau im Alter nicht mehr auf noch engerem Raum als vorher teilen muss und deren berechtigten Eigenheiten aushalten. Ein heim im Alter sollte für mich und Partner passen und evtl. kann auch Platz für Besuch (Kinder, Bekannte....) sein.
Dieser Grundriss muss als mMn zu viele Bedürfnisse abdecken und bekommt auch daher schon Probleme bei einfachen Dingen wie z.B. einer Garderobe, einem vlt. großzügigeren HAR o.ä.
ypg06.05.25 22:11
Hast Du schon mal den Allraum möbliert? Ein quadratischer Raum ist schlecht zu zonieren in TV-Bereich und Essecke.
Ich würde wohl spontan das Haus drehen. Ansonsten denke ich, dass die planuntere Symmetrie und die mangelnde Privatsphäre der Eltern dem Entwurf nicht gut tut.
Ich würde wohl spontan das Haus drehen. Ansonsten denke ich, dass die planuntere Symmetrie und die mangelnde Privatsphäre der Eltern dem Entwurf nicht gut tut.
Ähnliche Themen