Grundriss kleiner Bungalow mit Holzfassade

4,30 Stern(e) 6 Votes
Zuletzt aktualisiert 10.01.2026
Sie befinden sich auf der Seite 4 der Diskussion zum Thema: Grundriss kleiner Bungalow mit Holzfassade
>> Zum 1. Beitrag <<

P

Patrick.

Das oder ein Problem ist, dass Du etwas planst, in dem Du in x Jahren dann wirklich wohnen möchtest. Dazwischen ist es irgendetwas, z.B. ein Ferienhaus.
Jetzt bist u selbst offenbar noch recht weit weg vom "Alter" und kennst Deine Interessen,m Bedürfbnisse etc. davon daher nicht. Wir haben uns z.B. hier ein Haus für uns Zwei gebaut, wäre das 20 Jahre vorher geschehen, würde es nun sicher nicht mehr zu unserem Lebensstil und den -umständen passen. Ich habe mich verändert, genauso meine Empfindung bzgl. Privatspäre, Lautstärke, Ruhebdürfnis, allg. Miteinander uvm. Wie hätte ich das vor 10 oder 20 Jahren vorausahnen klönnen? Ein Haus für die ferne Zukunft zu bauen halte ich eher für keine gute Idee und wenn, dann würde ich das ohne Kinder planen, die dann ja keine mehr sein werden bzw. Erwachsene und sofern man dann noch unter einem Dach wohnen wöllte, sollte man das völlig anders planen wie z.B. mit eigenen Eingängen etc.
Wenn Du nun nach einem "guten" Grundriss fragst wunderst mich das, den was für Dich in 10-20 Jahren "gut" ist kann Dir Niemand sagen.
Natürlich kannst Dun irgendein Haus bauen, das dann vlt. auch halbwegs passt aber so würde ich niemals bauen.
Privatsphäre braucht man (irgendwann vielleicht) auchn zwischen den Ehepartnern, mit erwachsenen Kindern sowieso.

Wenn Du hier schreibst, dass die Holhzart Lärche sein soll ist das ganz nett zeigt aber insbesondere, dass Du den 2. Schritt vor dem ersten machst und dabei stolpert man dann oft; auch hast Du einen Haustyp gewählt und versuchst nun, irgendwelche Zimmr mit unklaren Nutzungsprofilen da reinzuquetschen.....das wird nicht gut befürchte ich.
In welchem Jahr wollt ihr denn dann dort als Erstwohnsitz wohnen bzw. in welchem Alter seid ihr und die Kinder dann?
Wasrum baut ihr kein Haus für Euch als Ehepaar, in dem ihr bis dahin auch als Familie sein könne; da können z.B. Kinder auch in einem Zimmer übernachten, so wird es die Suche nach der eierlegenden Wollmilchsau.
Wie @ypg schon sagt, solltest Du auf alle Nachfragen eingehen UND Möbel, Fenster, Türen etc. allesamt mit echten Maßen eintragen.
Das ist das Grundproblem, ganz klar! Deshalb bitte ich auch um Hilfe der Community, daher übliche Planer hier kaum helfen. Ein paar Gedanken warum wir heute stehen, wo wir stehen:

  • Später bauen bedeutet bis dahin kein Haus zu haben und demnach das bestehende Grundstück schlechter nutzen zu können. Preiswerter wird es bis dahin sicher auch nicht.
  • Es besteht die Notwendigkeit bis Ende Juni einen Bauantrag einzureichen. Deshalb müssen wir nicht bauen, aber es wäre Schade die Planung nur für das Amt gemacht zu haben.
  • Trifft es nicht auf jedes Bauvorhaben von Menschen <40 Jahren zu, dass man langfristig Kompromisse eingehen muss? Kein Haus passt sich an die Nutzung an und man dürfte nie bauen. Ich kenne kaum jemandem, der im Alter nochmal neu baut. Alle bleiben in ihren Häusern.
  • Der Worst-Case, wie ein Verkauf des Hauses oder die Not dort vorzeitig einziehen zu müssen, kann nie ganz ausgeschlossen werden. Daher bisher notgedrungen eher 4 Zimmer. Ich gebe Recht, dass das für die Planung nur Kompromisse bedeutet.
  • 1. Wohnsitz könnte es werden, wenn die Kinder unsere Wohnung übernehmen. Wir wären dann 50 Jahre und die Kinder 20

Zu den dann älteren Kindern/jungen Erwachsenen und genaujso zwischen den Ehepartnern. Gesundheitliche Umstände sind im Alter ja nicht selten und da kann es gut sein, dass man auch untereinander Privatspähre pflegt. Bei Bekannten hört er schlecht und hat sein Radio/TV immer laut bzw. telefonierg er daher laut. Sie stört das umgemein oder Thema schnarchen, Bettlägrigkeit etc.

Sofern Du ein schönes Haus baust mit einem durchdachnten Grundriss sehe ich da kein Problem. Keinesfalls würde ich gegen meine Bedürfnisse ein Haus anders bauen, nur weil ich es dann vlt. besser verkaufen könnte. Zudem ist es so, dass Du dann vlt. eine größere Zielgruppe damit ansprechen würdest, ob es dann aber auch besser (teurer) zu verlaufen ist glaube ich nicht unbedingt. Dann hast Du eben keine 50 Interessenten, sondern vlt. drei. Mein jetziges Haus wäre auch nicht unbedigt für eine Familie geeignet bzw. müsste etwas angepasst werden, es soll doch aber für uns jetzt schön sein und ich bin mir sicher, dass ich es bei Bedarf auch gut verkaufen könnte. Solche Aussagen sind mir immer zu platt und würden mich in meiner Planung nicht beeinflussen.
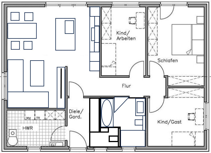
Zeige doch mal Deine ursprüngliche Idee mit 3 Räumen und beantworte die Fragen hier, damit man Deine Umstände näher kennt.
Danke, das beruhigt mich wieder etwas! Zu zweit hätte man aus meiner Sicht in dem Entwurf sowieso viel Privatsphäre bei 4 Zimmern.
 
P

Patrick.

Danke für die Ideen. Ich nehme das für den Termin mit der Firma morgen mit. Grundsätzlich fehlt dort noch ein Ort für den Kamin. Der hat mir bei kleinen Grundrissen am meisten Probleme bereitet.
 
Zuletzt aktualisiert 10.01.2026
Im Forum Grundrissplanung / Grundstücksplanung gibt es 2565 Themen mit insgesamt 88791 Beiträgen
Oben