Wir möchten hier die Pläne für unseren "Alterssitz" vorstellen.
Nachdem die Kinder jetzt fast alle aus dem Haus sind, wollten wir jetzt nochmal ein Haus nur für uns beide ohne viele Kompromisse.
Er wird sicherlich sehr kontroverse Kommentare ernten, aber gerade das macht es ja interessant.
Bebauungsplan/Einschränkungen
Größe des Grundstücks 660m2
Hang ohne
In Dorfkern, kein Bebauungsplan
Dreifachgarage
2 Vollgeschosse
Dachform Sattel
Stilrichtung klassisch
Ausrichtung Süd
Maximale Höhen/Begrenzungen keine Vorgaben "An das Umfeld angepasst"
Anforderungen der Bauherren
Stilrichtung, Dachform, Gebäudetyp
Ohne Keller
Anzahl der Personen, Alter: 2 Personen 50+
Wichtig waren
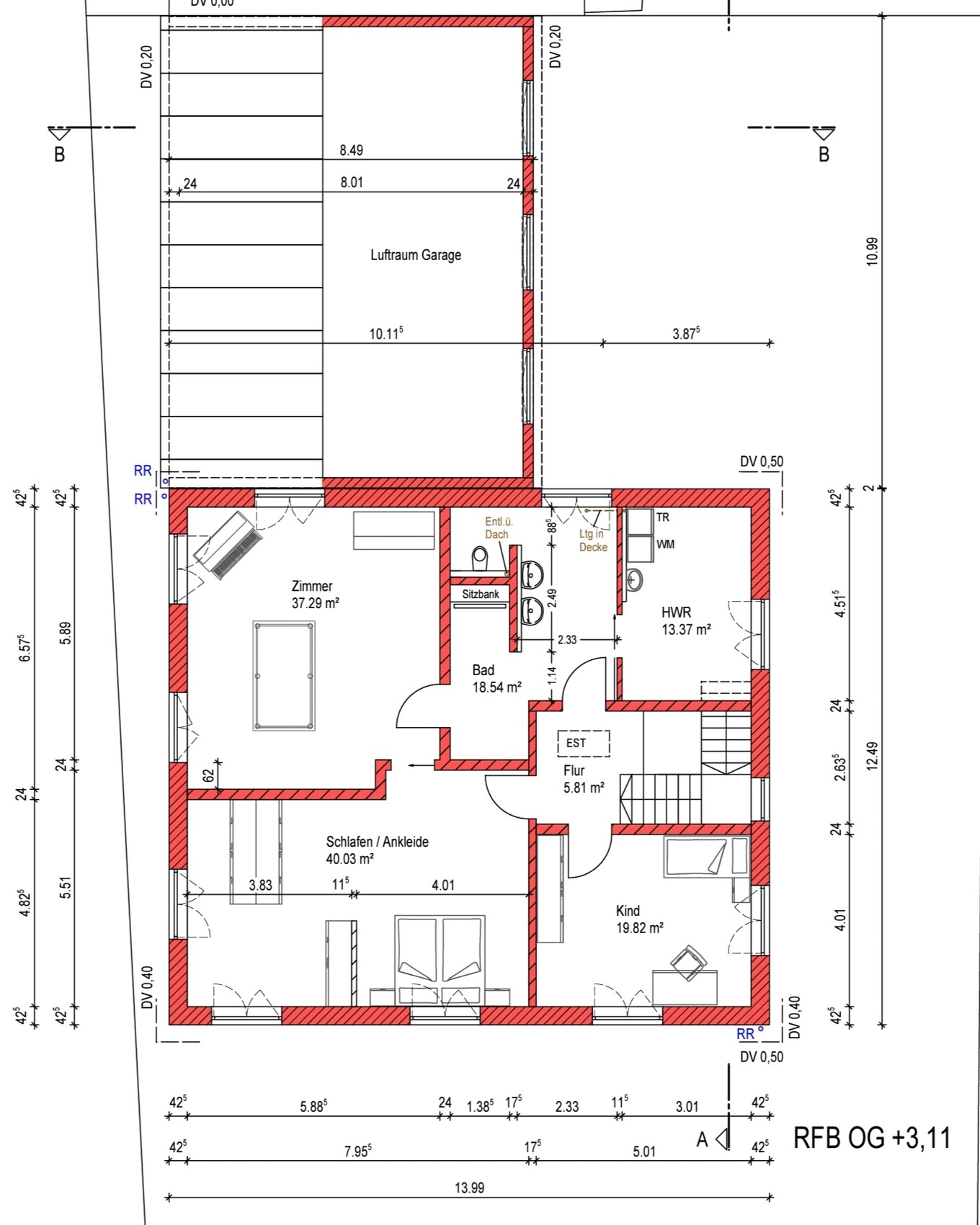
-ein großer Wellness-Raum im OG
-großzügige Küche und Speis
-großzügiges Schlafzimmer/Ankleide
-allgemein große, großzügige Räume
-Barrierearmut (man wird ja nicht jünger)
Hausentwurf
Von wem stammt die Planung:
-90% Do-it-Yourself



Nachdem die Kinder jetzt fast alle aus dem Haus sind, wollten wir jetzt nochmal ein Haus nur für uns beide ohne viele Kompromisse.
Er wird sicherlich sehr kontroverse Kommentare ernten, aber gerade das macht es ja interessant.
Bebauungsplan/Einschränkungen
Größe des Grundstücks 660m2
Hang ohne
In Dorfkern, kein Bebauungsplan
Dreifachgarage
2 Vollgeschosse
Dachform Sattel
Stilrichtung klassisch
Ausrichtung Süd
Maximale Höhen/Begrenzungen keine Vorgaben "An das Umfeld angepasst"
Anforderungen der Bauherren
Stilrichtung, Dachform, Gebäudetyp
Ohne Keller
Anzahl der Personen, Alter: 2 Personen 50+
Wichtig waren
-ein großer Wellness-Raum im OG
-großzügige Küche und Speis
-großzügiges Schlafzimmer/Ankleide
-allgemein große, großzügige Räume
-Barrierearmut (man wird ja nicht jünger)
Hausentwurf
Von wem stammt die Planung:
-90% Do-it-Yourself
S
Schorsch_baut30.06.24 19:35Großzügig? Joah. Sinnvoll? Eher nein. Nur ein Beispiel: Haustechnikzugang vom Wohnzimmer?
M
motorradsilke30.06.24 19:44Du willst Barrierearmut. Warum dann nicht einen Bungalow bauen?
Nur mal erste Gedanken, die mir sofort einfallen:
Mir wäre Diele und Garderobe zu eng. Vielleicht kommen mal die Enkel zu Besuch, dann braucht man da Platz.
Und das Wohnzimmer zu sehr in der Mitte als Durchgangsraum.
Der Slalom, den man in der Nacht zur Toi gehen muss, würde mir auch nicht gefallen.
Nur mal erste Gedanken, die mir sofort einfallen:
Mir wäre Diele und Garderobe zu eng. Vielleicht kommen mal die Enkel zu Besuch, dann braucht man da Platz.
Und das Wohnzimmer zu sehr in der Mitte als Durchgangsraum.
Der Slalom, den man in der Nacht zur Toi gehen muss, würde mir auch nicht gefallen.
N
nordanney30.06.24 20:03Altersgerecht ist das Haus so gar nicht...
Sehe ich wie meine Vorschreiber.
Details wo ist denn die Straße, die Zufahrt und wo ist Gartenbereich etc.? Ich finde, das kann man auf dem Lageplan mehr als schlecht erkennen.
Küche - Terrasse ziemlich weit
Wohnen - Sofa/TV irre weit
Schlafen unter dem Fenster mit Blick in einen Durchgangsbereich alles unnötig groß, dafür Ankleidebereich immer nur durch den Ruhebereich zu erreichen und dann Richtung Süden
Wellness-Raum was soll da alles drin sein?
Bad OG barrierefrei ist das aber nicht, siehe Zugang WC und Begrenzung Dusche
Was bedeutet "Kind" Gästezimmer und dann gemeinsames Betreten des Bades über den Flur?
OG ca. 136 qm
EG ca. 125 qm
Garage 83 qm plus Luftraum gibt es so viele Autos?
Wenn man schon die Gelegenheit hat, neu zu bauen und das angepasst, dann lässt sich das vielleicht auch etwas bewußter machen. Und, statt 90% DIY einen Fachmann hinzuziehen, der sich vielleicht auch mit Raumabläufen etc. gut auskennt. Scheinbar kennt euer Budget keine Grenzen.
Details wo ist denn die Straße, die Zufahrt und wo ist Gartenbereich etc.? Ich finde, das kann man auf dem Lageplan mehr als schlecht erkennen.
Küche - Terrasse ziemlich weit
Wohnen - Sofa/TV irre weit
Schlafen unter dem Fenster mit Blick in einen Durchgangsbereich alles unnötig groß, dafür Ankleidebereich immer nur durch den Ruhebereich zu erreichen und dann Richtung Süden
Wellness-Raum was soll da alles drin sein?
Bad OG barrierefrei ist das aber nicht, siehe Zugang WC und Begrenzung Dusche
Was bedeutet "Kind" Gästezimmer und dann gemeinsames Betreten des Bades über den Flur?
OG ca. 136 qm
EG ca. 125 qm
Garage 83 qm plus Luftraum gibt es so viele Autos?
Wenn man schon die Gelegenheit hat, neu zu bauen und das angepasst, dann lässt sich das vielleicht auch etwas bewußter machen. Und, statt 90% DIY einen Fachmann hinzuziehen, der sich vielleicht auch mit Raumabläufen etc. gut auskennt. Scheinbar kennt euer Budget keine Grenzen.
Schorsch_baut schrieb:
Großzügig? Joah. Sinnvoll? Eher nein. Nur ein Beispiel: Haustechnikzugang vom Wohnzimmer?Was spricht dagegen?motorradsilke schrieb:
Du willst Barrierearmut. Warum dann nicht einen Bungalow bauen?Gefällt ins einfach nicht und Fläche ist da doch etwas eingeschränktkbt09 schrieb:
Schlafen .. unter dem Fenster mit Blick in einen Durchgangsbereich, alles unnötig groß, dafür Ankleidebereich immer nur durch den Ruhebereich zu erreichen und dann Richtung Süden
Bad OG barrierefrei ist das aber nicht, siehe Zugang WC und Begrenzung Dusche
Was bedeutet "Kind" Gästezimmer und dann gemeinsames Betreten des Bades über den Flur?
Garage 83 qm plus Luftraum - gibt es so viele Autos?Das Bett wird nicht unter dem Fenster stehen sondern rechts an der Wand.Was du mit Durchgangsbereich meinst ist mir nicht ganz klar. Im Schlafzimmer und Wellness gibt es keinen Durchgangsverkehr.
Unnötig groß = Ansichtssache
Barrierefrei ist es nicht, aber auch nicht zwingend erfordert. Wenn Barrierefreiheit in einigen Jahren erforderlich ist , dann sollten die notwendigen Anpassungen wie zB Etagenlift ohne größeren Aufband durchführbar sein.
Betreten des Bads über den Flur sehe ich als völlig unkritisch an. Wer bei uns übernachten darf, kann uns auch mal über den Flur huschen sehen und umgekehrt.
Und es gäbe ja noch den Zugang über den Wellnessraum.
3 Autos und der Luftraum ergibt sich einfach aus der Dachform.
Ähnliche Themen