ᐅ Grundriss Entwurfspläne - Was meint ihr dazu?
Erstellt am: 18.11.15 23:19
Hallo zusammen,
wir sind nun schon länger dabei an den Plänen für unser Haus zu feilen und mittlerweile an einem Punkt angelangt, an dem wir meinen alles berücksichtigt zu haben. Wir wollten nun auch von euch die Meinung hören was eventuell noch angepasst werden könnte?
Ich habe die Entwurfspläne angefügt
Vielen Dank vor ab für eure Ratschläge!



wir sind nun schon länger dabei an den Plänen für unser Haus zu feilen und mittlerweile an einem Punkt angelangt, an dem wir meinen alles berücksichtigt zu haben. Wir wollten nun auch von euch die Meinung hören was eventuell noch angepasst werden könnte?
Ich habe die Entwurfspläne angefügt
Vielen Dank vor ab für eure Ratschläge!
Zum Beurteilen fehlen etliche Angaben: mal den angepinnten Post in dieser Rubrik lesen und die Fragen beantworten.
Ohne jegliche Infos: sieht auf den ersten Blick sehr schön aus.
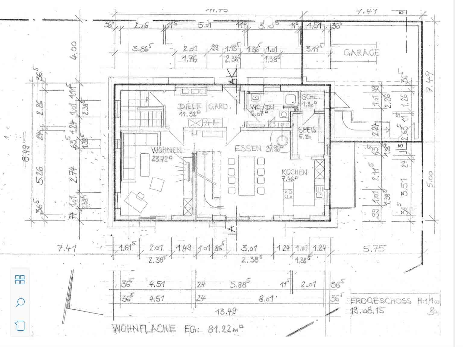
Aber: Küche wird dem Haus nicht gerecht. Speis würde ich radikal verkleinern, Schleuse viel zu klein und hat keinen Nutzen.
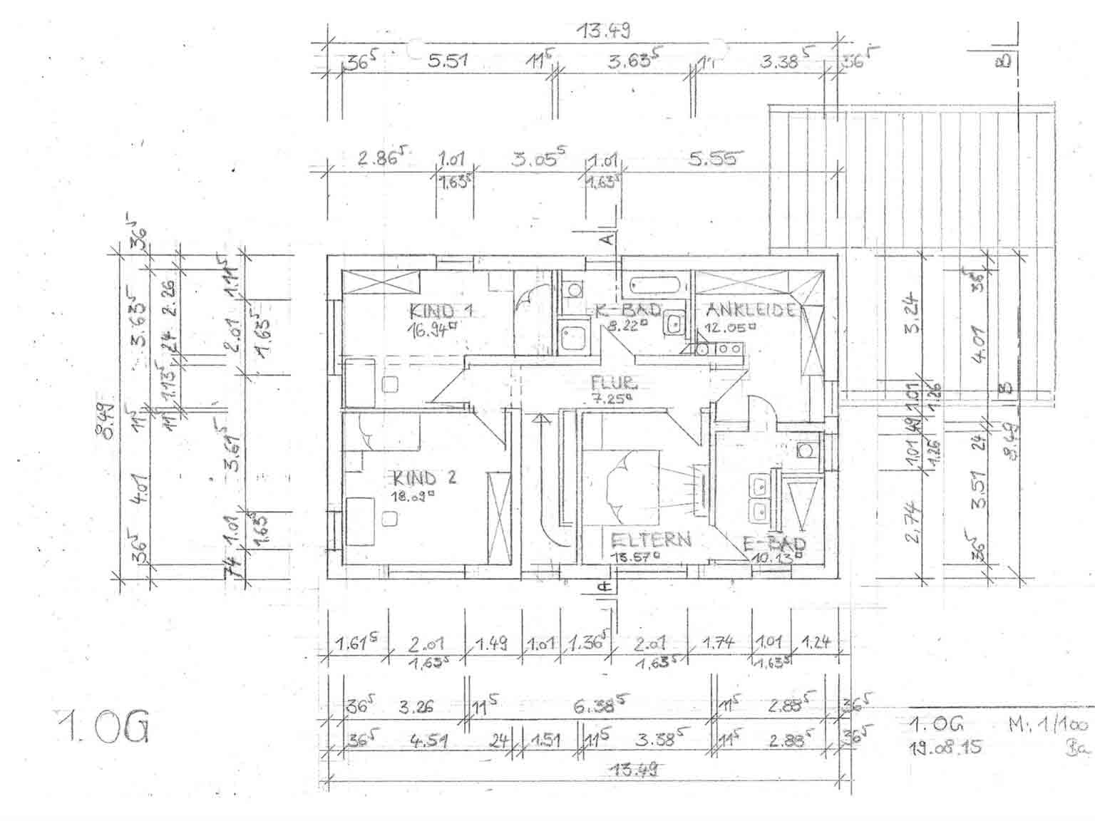
Flur im OG ist eine Ansage bezüglich guter Raumwirkung.
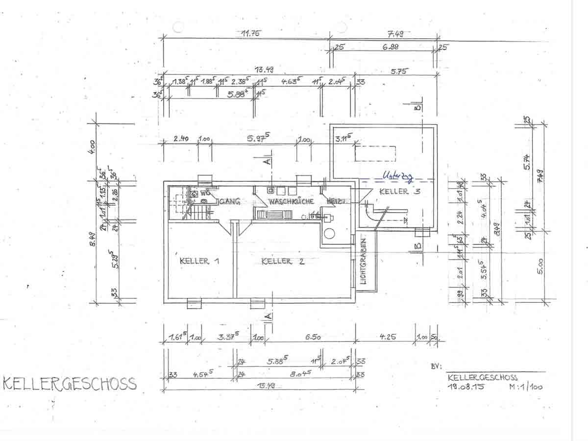
WC im UG würde ich zwischen Technik und Hauswirtschaftsraum setzen.
Ohne jegliche Infos: sieht auf den ersten Blick sehr schön aus.
Aber: Küche wird dem Haus nicht gerecht. Speis würde ich radikal verkleinern, Schleuse viel zu klein und hat keinen Nutzen.
Flur im OG ist eine Ansage bezüglich guter Raumwirkung.
WC im UG würde ich zwischen Technik und Hauswirtschaftsraum setzen.
Bebauungsplan/Einschränkungen:
Größe des Grundstücks: 589 m² in Oberbayern
Im Grundriss des EG stellt die äußere Strichpunktlinie die Grundstückskanten dar.
Grenzbebauung mit der Garage
Hang: nein
Anzahl Stellplatz: 1
Gemauerte Einzelgarage am Haus angebaut mit Sichtdachstuhl
Dachform: Satteldach 18°
Ausrichtung: S/W
Anforderungen der Bauherren:
36,5 Ziegel mit WLZ0,9
3-fach verglaste Fenster Kunststoff/Aluminium
Gasbrennwert Therme (Viessmann Vitodens 200) mit 400l Solar-Warmwasserboiler
Offene Treppe im Wohnbereich (Treppenmeister "Loft")
Raffstoren an der S/W-Seiten des Hauses, elektrisch mit Einzel- und einem Masterschalter
Keller 2 mit Tageslichtkeller und Fußbodenheizung
Toilette im KG
Hausentwurf:
Von wem stammt die Planung: Planer eines Bauunternehmens / Do-it-Yourself
Preisschätzung lt Planer: 400T (wobei die Garage dann nicht unterkellert ist) für schlüßelfertiges Bauen ohne Eigenleistung
Persönliches Preislimit fürs Haus, inkl Ausstattung: 460T (ohne Außenanlagen)
Findet ihr den Angebotswert eigentlich angemeßen?




Größe des Grundstücks: 589 m² in Oberbayern
Im Grundriss des EG stellt die äußere Strichpunktlinie die Grundstückskanten dar.
Grenzbebauung mit der Garage
Hang: nein
Anzahl Stellplatz: 1
Gemauerte Einzelgarage am Haus angebaut mit Sichtdachstuhl
Dachform: Satteldach 18°
Ausrichtung: S/W
Anforderungen der Bauherren:
36,5 Ziegel mit WLZ0,9
3-fach verglaste Fenster Kunststoff/Aluminium
Gasbrennwert Therme (Viessmann Vitodens 200) mit 400l Solar-Warmwasserboiler
Offene Treppe im Wohnbereich (Treppenmeister "Loft")
Raffstoren an der S/W-Seiten des Hauses, elektrisch mit Einzel- und einem Masterschalter
Keller 2 mit Tageslichtkeller und Fußbodenheizung
Toilette im KG
Hausentwurf:
Von wem stammt die Planung: Planer eines Bauunternehmens / Do-it-Yourself
Preisschätzung lt Planer: 400T (wobei die Garage dann nicht unterkellert ist) für schlüßelfertiges Bauen ohne Eigenleistung
Persönliches Preislimit fürs Haus, inkl Ausstattung: 460T (ohne Außenanlagen)
Findet ihr den Angebotswert eigentlich angemeßen?
ypg schrieb:
Flur im OG ist eine Ansage bezüglich guter Raumwirkung.Sorry, aber wie ist das gemeint?
Geieran schrieb:
Sorry, aber wie ist das gemeint?Ich denke das war als Lob gemeint; 5 Räume + Treppe mit nur 7,25 qm Flurgröße zu erschließen ist optimal ausgenutzt. ;-)
Hallo Geieran,
sieht auf den ersten Blick wirklich gut aus. Was mir nicht gefällt bzw. noch Fragen aufwirft:
Warum plant ihr eine Dusche im EG obwohl ihr schon 2 Bäder im OG habt? Für 4 Personen sollten die zwei Bäder doch reichen. Ein Gästezimmer seh ich nicht im EG.
Bei Kind 1 ist die Nische für das Bett zwar schön, aber direkt an der Wand mit WC und Dusche zum Kinderbad ist ungünstig. Selbst bei guter Schallisolierung hört Kind 1 es, wenn Kind 2 nachts auf die Toilette geht oder früher aufsteht und duscht.
Die Platzierung des Ofens (wenn das ein Ofen ist zwischen Küche und Esszimmer) ist meiner Meinung nach etwas ungewöhnlich. Ich kenn es eher, dass man am Abend einen Ofen anwirft und dann im Wohnzimmer sitzt. Hängt aber auch von euren Gewohnheiten ab.
Treppe im Esszimmer wäre nicht meins, kann aber schön gestaltet werden. Da ihr eine Tür zum Wohnzimmer plant, ist ein Rückzugsbereich ja trotzdem gegeben, wenn die Kinder mehrmals am Tag oder halt mit reiferem Alter am Abend mit Freunden in ihre Zimmer wollen.
Wie schon erwähnt: Schleuse ist viel zu klein. Ich würde deshalb das Dusch/WC und die Speisekammer verkleinern, falls diese Schleuse tatsächlich öfters benutzt werden soll. Und der Flur im OG wirkt sehr eng und dunkel. Das würde mir wohl nicht gefallen.
Waren nun nur meine ersten Gedanken als ehemalige Bauherrin.
Viele Grüße, U.
sieht auf den ersten Blick wirklich gut aus. Was mir nicht gefällt bzw. noch Fragen aufwirft:
Warum plant ihr eine Dusche im EG obwohl ihr schon 2 Bäder im OG habt? Für 4 Personen sollten die zwei Bäder doch reichen. Ein Gästezimmer seh ich nicht im EG.
Bei Kind 1 ist die Nische für das Bett zwar schön, aber direkt an der Wand mit WC und Dusche zum Kinderbad ist ungünstig. Selbst bei guter Schallisolierung hört Kind 1 es, wenn Kind 2 nachts auf die Toilette geht oder früher aufsteht und duscht.
Die Platzierung des Ofens (wenn das ein Ofen ist zwischen Küche und Esszimmer) ist meiner Meinung nach etwas ungewöhnlich. Ich kenn es eher, dass man am Abend einen Ofen anwirft und dann im Wohnzimmer sitzt. Hängt aber auch von euren Gewohnheiten ab.
Treppe im Esszimmer wäre nicht meins, kann aber schön gestaltet werden. Da ihr eine Tür zum Wohnzimmer plant, ist ein Rückzugsbereich ja trotzdem gegeben, wenn die Kinder mehrmals am Tag oder halt mit reiferem Alter am Abend mit Freunden in ihre Zimmer wollen.
Wie schon erwähnt: Schleuse ist viel zu klein. Ich würde deshalb das Dusch/WC und die Speisekammer verkleinern, falls diese Schleuse tatsächlich öfters benutzt werden soll. Und der Flur im OG wirkt sehr eng und dunkel. Das würde mir wohl nicht gefallen.
Waren nun nur meine ersten Gedanken als ehemalige Bauherrin.
Viele Grüße, U.
Ähnliche Themen