ᐅ Grundriss-Entwurf: Einfamilienhaus mit 4 Schlafzimmern und Büro, 160qm
Erstellt am: 09.03.24 21:55
J
JKL_2024Bertram100 schrieb:
Ich kann kein Beispiel geben, ich kann nicht planen.Einfach aus dem Netz kopieren?Ich glaube nicht, dass die Treppen in anderen Ländern weniger Platz brauchen.
S
Schorsch_baut07.06.24 08:14Oh doch, aber die gehen sich echt übel. Ich habe in Utrecht und Amsterdam gearbeitet und ich habe die Treppen in den Häusern dort gefürchtet. Zwei Grad steiler und ein cm kürzer und es wären Leitern gewesen.
haydee schrieb:
@ypg und mit Krücke, Wäschekorb, Backblech wird es eng. Meine Eltern verfluchen seit fast 40 Jahren die einzige 75 cm TürJa, mit Wäschekorb oder Backblech gehe ich auch in keinen Abstellraum. Deshalb zb würde ich diese Küchendurchgänge durch Schränke in die Speis verfluchen.Schorsch_baut schrieb:
Oh doch, aber die gehen sich echt übel. Ich habe in Utrecht und Amsterdam gearbeitet und ich habe die Treppen in den Häusern dort gefürchtet. Zwei Grad steiler und ein cm kürzer und es wären Leitern gewesen.Ja, extrem platzsparende Bauweise bewährt sich heutzutage nicht. Deshalb versucht man ja, der Treppe in einem Neubau etwas mehr als Mindestmaß zu geben. Die alten Häuser in London, Amsterdam oder anderen engen Innenstädten muss man jetzt nicht zum Vorbild nehmen, wenn es auch anders geht.S
Schorsch_baut07.06.24 11:02Von den alten Häusern kann man aber auch viel lernen, wenn es um Platzmanagement geht. Gerade sieht man ja viel, dass man versucht, Grundrisse aus der Niedrigzinsphase in deutlich kleinere Grundrisse zu pressen, ohne Abstriche machen zu wollen.
S
Schorsch_baut07.06.24 11:04K a t j a schrieb:
Kann ich mir gerade nicht vorstellen, wie das aussehen soll.
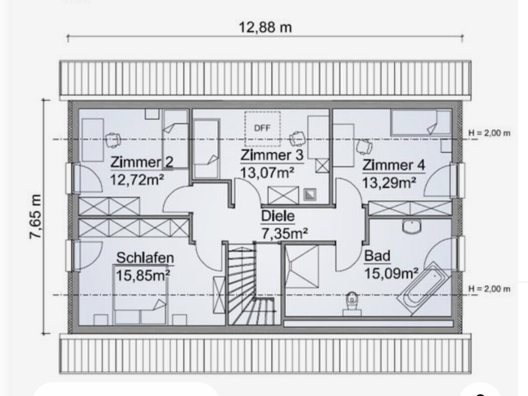
150qm mit 4 Schlafzimmern, Gast / Büro, Gäste-WC mit Dusche und großem Hauswirtschaftsraum, 2 Homeoffice-Plätze - ehrlich, mich wundert, dass Ihr nicht auch noch ne Speisekammer und ne Sauna auf dem Wunschzettel habt. Diese 8qm Küche - reicht Euch das auf Dauer? Den Schlafzimmerschrank - kann man da überhaupt davor stehen und den öffnen?
Also ich habe die Grundidee mal aufgenommen und etwas sortiert. Trotzdem ich auf 8,70m Tiefe gegangen bin, passt nur ein 50er Garderobenschrank. Hauswirtschaftsraum 7,7 dürfte Euch vermutlich zu klein sein, aber die 3m Küche finde ich noch schlechter.
Da stell ich mir wirklich die Frage: Ist das noch sinnvoll oder lässt man das lieber?

Erstmal danke für die Mühe einen Entwurf zu zeichnen. Wäre auch nicht schlecht. Ich dachte immer es macht Sinn das Bad im OG über den Hauswirtschaftsraum zu planen?Zu dem tauchen von WC und Treppe, hier eine schnelle nicht vollständige Skizze. Treppe ist an der selben Stelle, damit kein umplanen des OG.
Zum den restlichen Einwänden. Klar versuchen wir einiges auf möglichst wenig QM unter zu bekommen. Aber dabei aber halt nur notwendige Räume. Eine Zimmer für jedes Kind und ein Büro halte ich jetzt nicht für übertrieben. Baupreise sind halt hoch, aber heißt das man sollte es dann komplett lassen? Was ist dir Alternative? Eine Wohnung in der Größe findet man heutzutage auch kaum und preislich gibt es auch kaum Unterschied.
Ähnliche Themen