ᐅ Grundriss Einfamilienhaus mit Aufstockung und Dachterrasse (115qm zu 200 qm)
Erstellt am: 13.01.25 22:26
B
belladonnaB
belladonna13.01.25 22:26Hallo Zusammen,
wir haben ein Einfamilienhaus mit beigefügten Eckdaten erworben und planen den Ausbau des Objekts, um eine Erweiterung im bestehenden 1. OG (Ausbau der Terrasse über der Garage zu Wohnfläche) und eine Aufstockung eines Dachgeschosses mit Dachterrasse vorzunehmen.
Wir fragen uns nun, ob wir mit unserer Planung eine sinnvolle Raumaufteilung für das 1.OG erreichen oder es ggf. weitere sinnvolle Raumaufteilungen gibt. Auch für weitere Inspiration zu unserem Dachgeschoss würden wir uns freuen.
Bebauungsplan/Einschränkungen
Objekttyp: Einfamilienhaus Wohnfläche: 118,93qm Nutzfläche: 57,57qm Gesamtfläche: 176,50qm Grundstücksgröße: 390qm Baujahr: 1970 Energieträger: Öl Heizungsart: Zentralheizung Etagenanzahl: 2
Stellplätze: Garage und Stellplatz im freien Unterkellert: ja, voll unterkellert
Maximale Höhen/Begrenzungen -> 2 Vollgeschosse, maximale Höhe nicht bekannt
Es gibt keinen Bebauungsplan, weswegen gem. § 34 Baugesetzbuch Nachbarschaftsbebauung gilt. Hier haben wir erfahren, dass wir 2/3 des 1. OG aufstocken dürfen.
Raumaufteilung EG (keine Veränderungen geplant)

Raumaufteilung 1. OG ALT

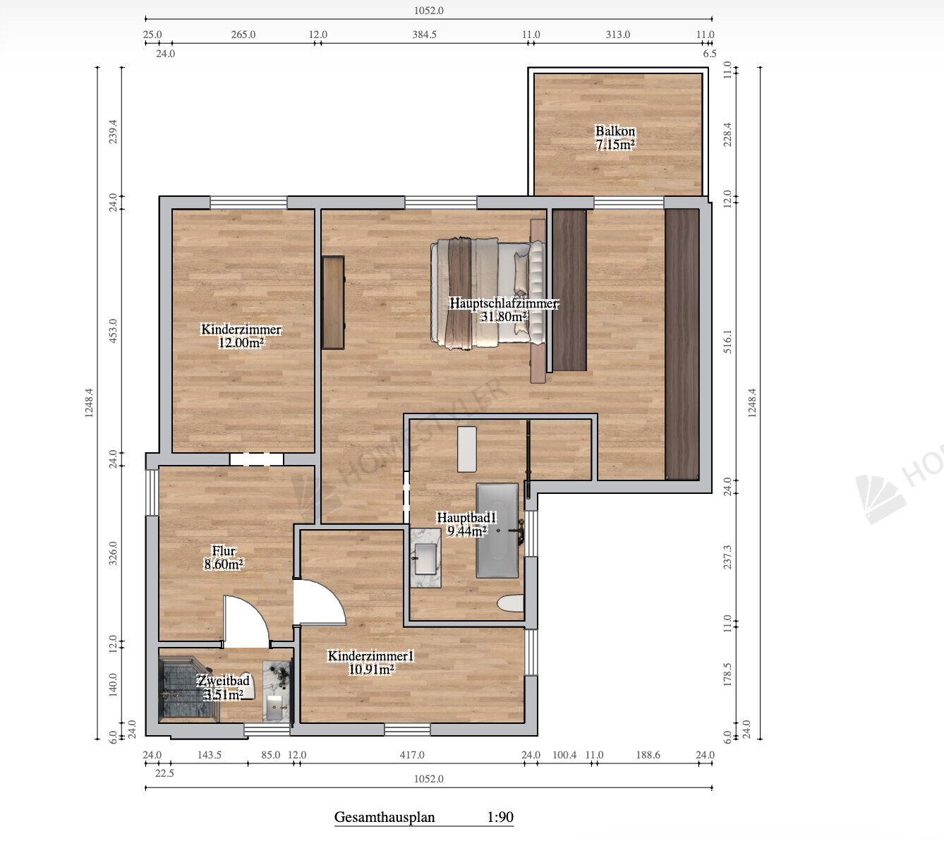
Raumaufteilung 1. OG NEU: Umwidmung Terrasse über Garage zu Wohnfläche und neuer Treppenaufgang zu 2. OG bzw. Dachgeschoss

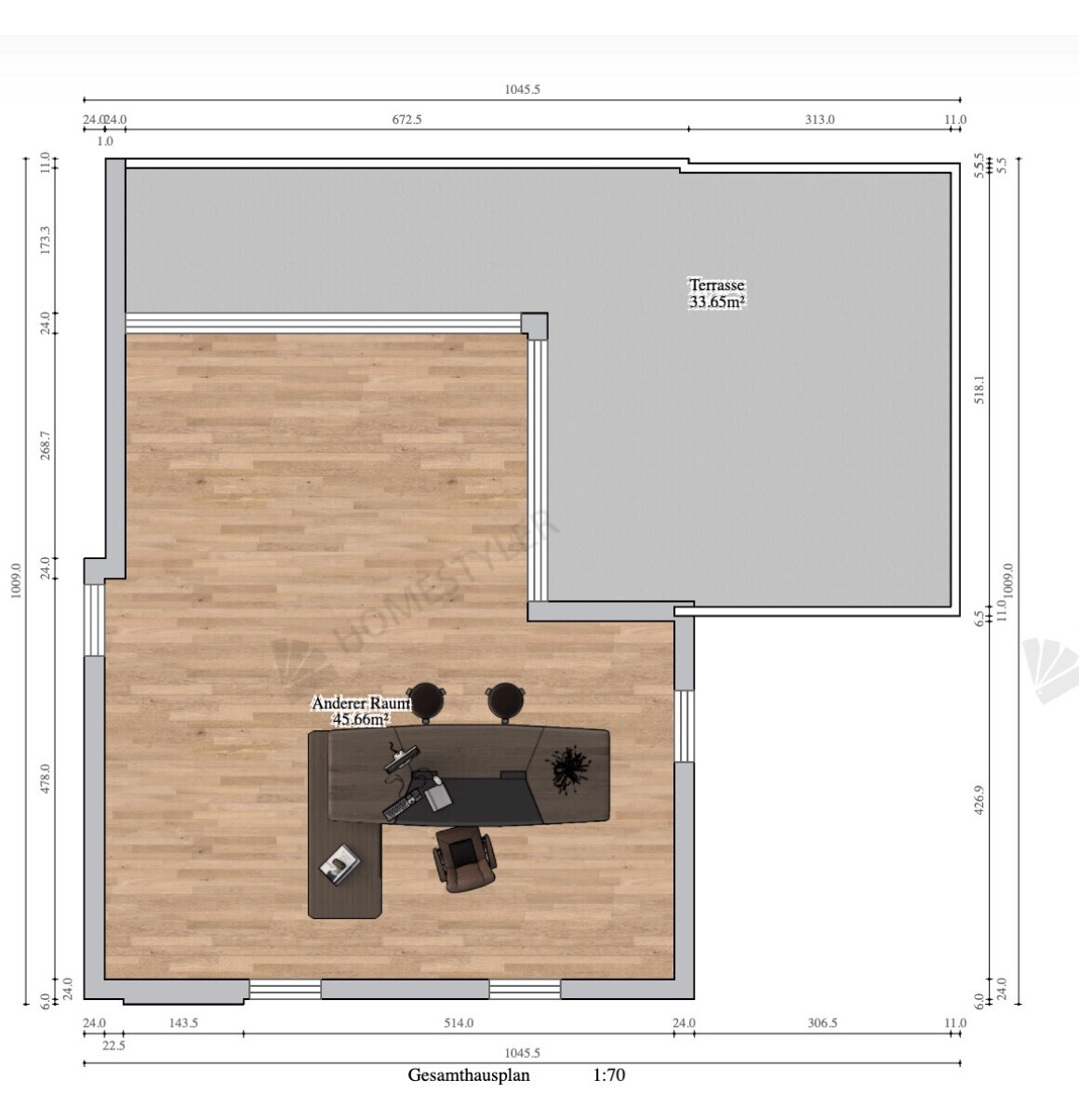
Raumaufteilung Dachgeschoss bzw 2. OG

Vielen Dank und beste Grüße!
wir haben ein Einfamilienhaus mit beigefügten Eckdaten erworben und planen den Ausbau des Objekts, um eine Erweiterung im bestehenden 1. OG (Ausbau der Terrasse über der Garage zu Wohnfläche) und eine Aufstockung eines Dachgeschosses mit Dachterrasse vorzunehmen.
Wir fragen uns nun, ob wir mit unserer Planung eine sinnvolle Raumaufteilung für das 1.OG erreichen oder es ggf. weitere sinnvolle Raumaufteilungen gibt. Auch für weitere Inspiration zu unserem Dachgeschoss würden wir uns freuen.
Bebauungsplan/Einschränkungen
Objekttyp: Einfamilienhaus Wohnfläche: 118,93qm Nutzfläche: 57,57qm Gesamtfläche: 176,50qm Grundstücksgröße: 390qm Baujahr: 1970 Energieträger: Öl Heizungsart: Zentralheizung Etagenanzahl: 2
Stellplätze: Garage und Stellplatz im freien Unterkellert: ja, voll unterkellert
Maximale Höhen/Begrenzungen -> 2 Vollgeschosse, maximale Höhe nicht bekannt
Es gibt keinen Bebauungsplan, weswegen gem. § 34 Baugesetzbuch Nachbarschaftsbebauung gilt. Hier haben wir erfahren, dass wir 2/3 des 1. OG aufstocken dürfen.
Raumaufteilung EG (keine Veränderungen geplant)
Raumaufteilung 1. OG ALT
Raumaufteilung 1. OG NEU: Umwidmung Terrasse über Garage zu Wohnfläche und neuer Treppenaufgang zu 2. OG bzw. Dachgeschoss
Raumaufteilung Dachgeschoss bzw 2. OG
Vielen Dank und beste Grüße!
N
nordanney13.01.25 22:55Kurze Frage. Habt Ihr auch ein Bild / eine Zeichnung mit den Grundstücksgrenzen. Frage wegen der Grenzabstände.
Wenn das gezeigte Bild auch das Grundstück abbildet, wird es mit der Aufstockung auf der Garage schon schwieriger wegen der Grenzabstände.
Davon abgesehen finde ich das OG eine Katastrophe. Eigentlich bin ich eher der Finanzierer als der Planer, aber ein paar Anmerkungen habe ich trotzdem.
- Schlafzimmer monströs groß - gerade auch im Vergleich zu den Kinderzimmern
==> wohnt Ihr im Schlafzimmer?
- Balkon am Schlafzimmer ist vergeudetes Geld, wenn man einen Garten hat
- verwinkeltes unteres Kinderzimmer praktisch nicht nutzbar
- Zweitbad ist ein zweites Gäste-WC? Welches Bad nutzen die Kinder?
Für die zu kleinen Zimmer im OG gibt es zum Ausgleich einen "Anderen Raum" als Tanzsaal im DG mit riesiger Terrasse?
Zusammengefasst: Ich verstehe die Planung nicht.
Für die Raumplanung und Hilfen solltet Ihr mal den Fragebogen ausfüllen. Das hilft alles Beteiligten.
Wenn das gezeigte Bild auch das Grundstück abbildet, wird es mit der Aufstockung auf der Garage schon schwieriger wegen der Grenzabstände.
Davon abgesehen finde ich das OG eine Katastrophe. Eigentlich bin ich eher der Finanzierer als der Planer, aber ein paar Anmerkungen habe ich trotzdem.
- Schlafzimmer monströs groß - gerade auch im Vergleich zu den Kinderzimmern
==> wohnt Ihr im Schlafzimmer?
- Balkon am Schlafzimmer ist vergeudetes Geld, wenn man einen Garten hat
- verwinkeltes unteres Kinderzimmer praktisch nicht nutzbar
- Zweitbad ist ein zweites Gäste-WC? Welches Bad nutzen die Kinder?
Für die zu kleinen Zimmer im OG gibt es zum Ausgleich einen "Anderen Raum" als Tanzsaal im DG mit riesiger Terrasse?
Zusammengefasst: Ich verstehe die Planung nicht.
Für die Raumplanung und Hilfen solltet Ihr mal den Fragebogen ausfüllen. Das hilft alles Beteiligten.
Ich kann mich nur anschließen ... Kinderzimmer mit einem Schlauch-Fortsatz, der keine 180 cm breit ist ... was soll da passieren? Und ich denke auch, dass wg. Grenzbebauungsrichtlinien die Aufstockung auf der Garage nicht sein darf. Vermutlich ist die aktuelle komplette Nutzung als Terrasse schon nicht ganz zulässig.
Ist ein Architekt eingebunden?
Ist ein Architekt eingebunden?
Ähnliche Themen