D
DoctorDre10.12.24 15:36Guten Tag oder lieber Moin!
Wir Kernsanieren ein Einfamilienhaus von 1972 und sind dabei das bereits ausgebaute Dachgeschoss auf unsere Bedürfnisse umzubauen. Allerdings finden wir den Grundriss für das DG noch nicht optimal und sind gespannt auf euer Schwarmwissen.
Wir haben einen Architekten der uns bei der Sanierung als auch bei der Grundriss Erstellung hilft.
IST Zustand
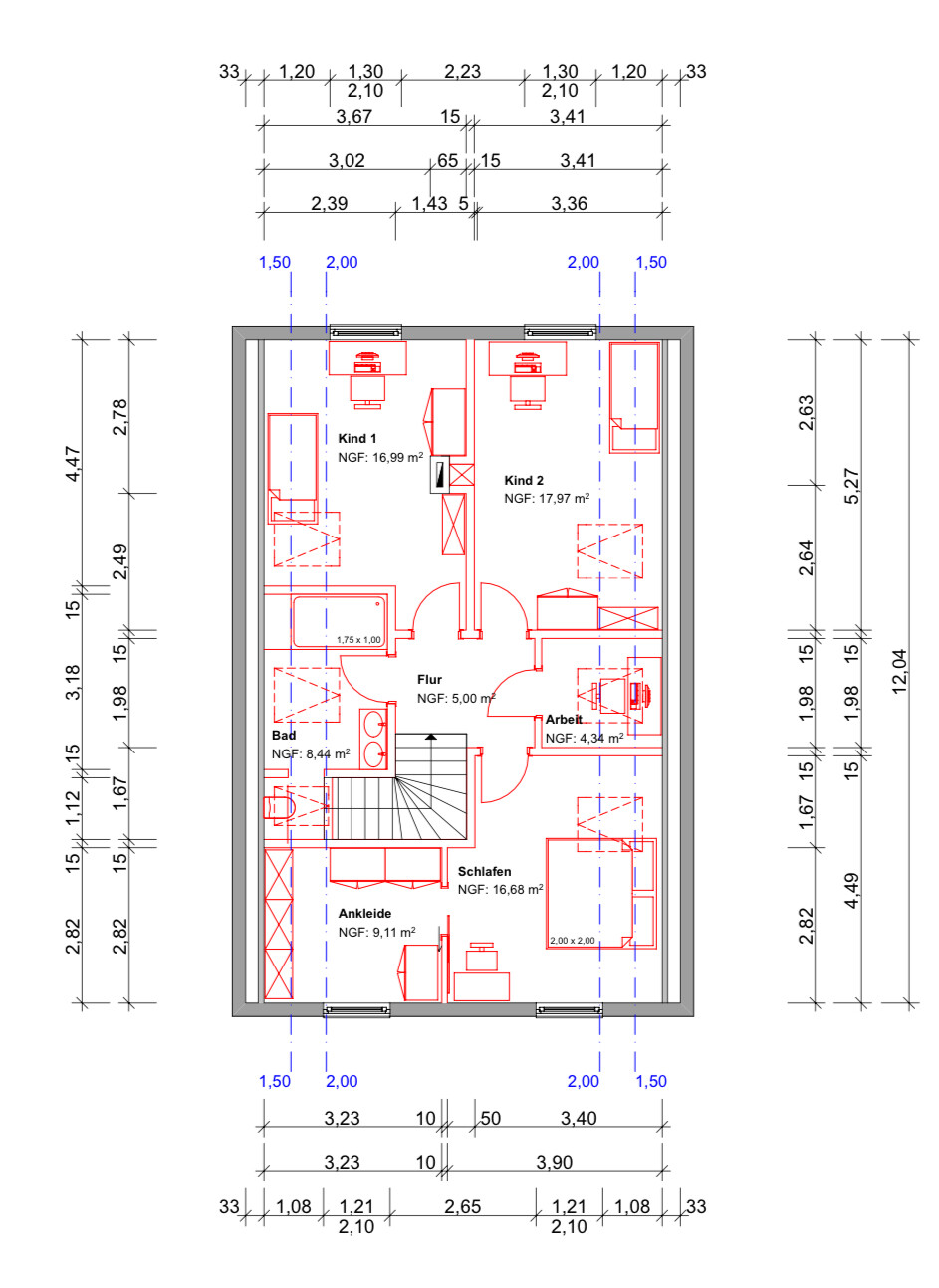
Im Dachgeschoss sind vier Zimmer, vier kleine Bäder und eine Pantryküche. Das DG wurde in den letzten Jahren als Ferienwohnung-/Zimmer vermietet.
ungedämmtes Kehlbalken 38 Grad-Satteldach mit Betonpfannen
Klinkerfassade
Zweifach Verglasung
Einrohrheizung mit Heizkörpern
Elektrik aus dem BJ
SOLL Zustand nach BAFA Kriterien
Energetische Sanierung inkl. WDVS und Klinkerriemchen
Neue Fenster
Neues Dach inkl Dämmung
Wärmepumpe inkl Fußbodenheizung im gesamten Haus
Sanitär neu
Ich denke das sind die wichtigsten Eckdaten. Finanzierung und Ablauf ist alles geklärt, es geht nur um den Grundriss im DG.
alle Innenwände sind entfernt worden, Estrich sowie Heizung und Wasser entfernt. Wir befinden uns auf der nackten Betondecke.
Im DG soll entstehen.
- 2 ähnlich große Kinderzimmer
- ein Bad mit Badewanne, großer Duschkabine, Doppelwaschbecken und WC
- großzügiges Schlafzimmer für Doppelbett mit begehbaren Kleiderschrank
Folgende Einschränkungen:
- Frisch- und Abwasser müssen sich “links” im Haus (wenn man auf den Grundriss schaut) befinden da dort der Hauptstrang ist
- Treppe und Kamin kann nicht versetzt werden
eigentlich erfüllt der Grundriss also fast alle Kriterien - außer die fehlende Badewanne und die Größe des Bads.
wir haben nun folgende Idee und JETZT kommt ihr ins Spiel. Wir spielen mit dem Gedanken, das Badezimmer im Grundriss so bestehen zu lassen und nach unten zur Ankleide zu erweitern. Das bedeutet das WC fällt weg und bietet einen Durchgang nach “unten” (auf dem Grundriss) wo sich in der aktuellen Ankleide die Badewanne und Dusche befindet. Man geht sozusagen um die Treppe herum.
damit fällt die Ankleide Größe teils weg, aber wir haben unsere Badewanne und das großzügige, etwas verwinkelte Bad.
Problem dabei - die Durchgangshöhe vom WC Bad zum Badewannen Bad. Lösungsidee - Veluxraumsparfenster oder Gaube einbauen. Kostet natürlich entsprechend.
Habt ihr noch eine Idee wie man das lösen kann? Eine Gaube wäre absolut klasse aber auch entsprechend teuer. Zudem können wir den Treppenauf-/Abgang nicht weiter schließen da wir dann keine 2m durchgangshöhe haben
habt ihr noch Einen ganz anderen Grundriss oder Idee? Bin gespannt was ihr sagt.

Wir Kernsanieren ein Einfamilienhaus von 1972 und sind dabei das bereits ausgebaute Dachgeschoss auf unsere Bedürfnisse umzubauen. Allerdings finden wir den Grundriss für das DG noch nicht optimal und sind gespannt auf euer Schwarmwissen.
Wir haben einen Architekten der uns bei der Sanierung als auch bei der Grundriss Erstellung hilft.
IST Zustand
Im Dachgeschoss sind vier Zimmer, vier kleine Bäder und eine Pantryküche. Das DG wurde in den letzten Jahren als Ferienwohnung-/Zimmer vermietet.
ungedämmtes Kehlbalken 38 Grad-Satteldach mit Betonpfannen
Klinkerfassade
Zweifach Verglasung
Einrohrheizung mit Heizkörpern
Elektrik aus dem BJ
SOLL Zustand nach BAFA Kriterien
Energetische Sanierung inkl. WDVS und Klinkerriemchen
Neue Fenster
Neues Dach inkl Dämmung
Wärmepumpe inkl Fußbodenheizung im gesamten Haus
Sanitär neu
Ich denke das sind die wichtigsten Eckdaten. Finanzierung und Ablauf ist alles geklärt, es geht nur um den Grundriss im DG.
alle Innenwände sind entfernt worden, Estrich sowie Heizung und Wasser entfernt. Wir befinden uns auf der nackten Betondecke.
Im DG soll entstehen.
- 2 ähnlich große Kinderzimmer
- ein Bad mit Badewanne, großer Duschkabine, Doppelwaschbecken und WC
- großzügiges Schlafzimmer für Doppelbett mit begehbaren Kleiderschrank
Folgende Einschränkungen:
- Frisch- und Abwasser müssen sich “links” im Haus (wenn man auf den Grundriss schaut) befinden da dort der Hauptstrang ist
- Treppe und Kamin kann nicht versetzt werden
eigentlich erfüllt der Grundriss also fast alle Kriterien - außer die fehlende Badewanne und die Größe des Bads.
wir haben nun folgende Idee und JETZT kommt ihr ins Spiel. Wir spielen mit dem Gedanken, das Badezimmer im Grundriss so bestehen zu lassen und nach unten zur Ankleide zu erweitern. Das bedeutet das WC fällt weg und bietet einen Durchgang nach “unten” (auf dem Grundriss) wo sich in der aktuellen Ankleide die Badewanne und Dusche befindet. Man geht sozusagen um die Treppe herum.
damit fällt die Ankleide Größe teils weg, aber wir haben unsere Badewanne und das großzügige, etwas verwinkelte Bad.
Problem dabei - die Durchgangshöhe vom WC Bad zum Badewannen Bad. Lösungsidee - Veluxraumsparfenster oder Gaube einbauen. Kostet natürlich entsprechend.
Habt ihr noch eine Idee wie man das lösen kann? Eine Gaube wäre absolut klasse aber auch entsprechend teuer. Zudem können wir den Treppenauf-/Abgang nicht weiter schließen da wir dann keine 2m durchgangshöhe haben
habt ihr noch Einen ganz anderen Grundriss oder Idee? Bin gespannt was ihr sagt.
DoctorDre schrieb:
Wir Kernsanieren ein Einfamilienhaus von 1972 und sind dabei das bereits ausgebaute Dachgeschoss auf unsere Bedürfnisse umzubauen. [...]
IST Zustand
Im Dachgeschoss sind vier Zimmer, vier kleine Bäder und eine Pantryküche. Das DG wurde in den letzten Jahren als Ferienwohnung-/Zimmer vermietet.Der Grundriss zeigt aber nicht dasselbe; füge bitte außerdem auch das EG hinzu.DoctorDre schrieb:
alle Innenwände sind entfernt worden, Estrich sowie Heizung und Wasser entfernt. Wir befinden uns auf der nackten Betondecke.Betondecke ? - alle Maße / Wandstärken lesen sich eher nach "Fertig"haus.https://www.instagram.com/11antgmxde/
https://www.linkedin.com/company/bauen-jetzt/
R
roteweste10.12.24 18:14Grundstück und Himmelsrichtung sind sicher auch nötig.
K
K a t j a10.12.24 18:52roteweste schrieb:
Grundstück und Himmelsrichtung sind sicher auch nötig.Nunja, so relevant ist das hier imho nicht. Ich finde den Entwurf schon nah am Optimum und wüsste jetzt auf Anhieb nicht, wo man da noch mehr raus holen könnte. Die Treppe ist wie sie ist und verhindert, dass man hier viele Möglichkeiten hätte.Ich sehe auch keine Notwendigkeit von weiteren zusätzlichen Informationen.
DG ist entkernt, nix steht mehr, und der Architekt hat einen guten Entwurf gezeichnet.
Ich hätte wohl überhaupt kein Problem, aus der geplanten Dusche eine schöne Wanne zu machen und eben dort drin zu duschen.
Das wäre mein Vorschlag.
Wenn Du an einer Gaube festhältst, dann bitte über das ganze Bad, denn der Zugang zur Toi ist auch nicht gerade kopfschonend.
DG ist entkernt, nix steht mehr, und der Architekt hat einen guten Entwurf gezeichnet.
Ich hätte wohl überhaupt kein Problem, aus der geplanten Dusche eine schöne Wanne zu machen und eben dort drin zu duschen.
Das wäre mein Vorschlag.
Wenn Du an einer Gaube festhältst, dann bitte über das ganze Bad, denn der Zugang zur Toi ist auch nicht gerade kopfschonend.
D
DoctorDre10.12.24 21:43Wow, vielen Dank für eure schnellen Antworten.
Richtig, das DG ist bis auf die Betondecke entkernt. Die Wände werden in 15er trockenbauweise neu erstellt, daher vlt der Gedanke an Fertighaus. Ansonsten steht das Haus recht großzügig dimensioniert (für ‘72) da 😉 Mir wurde mehrfach von neuen Steinwänden abgeraten. Selbst mein Onkel, Maurermeister seit 32 Jahren sagt das man heutzutage eher Trockenbau macht. Vor allen wenn er gut und kräftig gebaut wird.
EG, Himmelsrichtungen und weitere Infos habe ich ebenso als irrelavant angesehen. Sollte das jemanden benötigen um noch genauer den Grundriss des DG zu beurteilen dann gerne Bescheid geben.
Richtig, das DG ist bis auf die Betondecke entkernt. Die Wände werden in 15er trockenbauweise neu erstellt, daher vlt der Gedanke an Fertighaus. Ansonsten steht das Haus recht großzügig dimensioniert (für ‘72) da 😉 Mir wurde mehrfach von neuen Steinwänden abgeraten. Selbst mein Onkel, Maurermeister seit 32 Jahren sagt das man heutzutage eher Trockenbau macht. Vor allen wenn er gut und kräftig gebaut wird.
EG, Himmelsrichtungen und weitere Infos habe ich ebenso als irrelavant angesehen. Sollte das jemanden benötigen um noch genauer den Grundriss des DG zu beurteilen dann gerne Bescheid geben.
Ähnliche Themen