ᐅ Immobilie aus einer ZVG + Sanierung, Einschätzung.
Erstellt am: 16.07.19 19:21
Guten Tag geehrte Erfahrene.
Ich, mittleren Alters (niedrige 30 ) Angestellter mit normalem Verdienst im Schichtdienst 25xx - 3xxx Netto überlege mir eine Immobilie aus einer Teilungsversteigerung zur Auflösung einer Erbgemeinschaft zu zu legen.
Finanziell würde ich die Sicherheitsleistung als Eigenkapital nutzen und den Rest über die Bank finanzieren wollen.
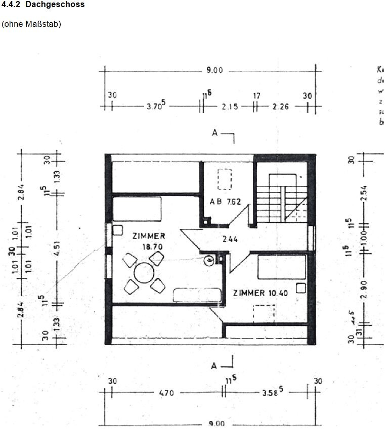
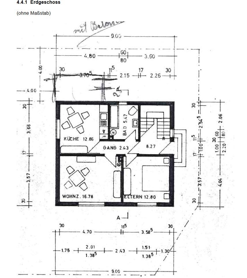
Es handelt sich hierbei um ein Siedlungshaus mit ~95qm Wohnfläche(4 Zimmer + 2 Bäder) auf 1,5 Etagen (EG+DG) aus dem Baujahr 1968 mit einem lt.- Gutachten veranschlagten Verkehrswert von 70t €, das Grundstück ist mit 249qm recht klein und überschaubar, jedoch muss das Haus Kern-saniert werden.
Wo fange ich am besten an... das Gutachten wurde im Februar 2019 erstellt und das Haus wurde von Innen wie auch von Außen besichtigt.
Es lt. dem Gutachten keine Anhaltspunkte für das vorliegen eines Hausschwammbefalls festgestellt.
Ebenso sind keine baubehördlichen Beschränkungen oder Beanstandungen festgestellt worden.
Es bestehen keine Miet- oder Pachtverträge, ein Energieausweis ist nicht vorhanden.
Versorgungsanschlüsse Strom & Wasser aus öffentlicher Versorgung, sowie Kanalanschluss.
Keine bekannten Altlasten lauf dem Katasterauszug.
Fassade - Putzfassade
Konstruktionsart - Massivbauweise
Fundamente - vermutlich Streifenfundamente
Kellerwände - Massivkeller
Umfassungswände - vermutlich Mauerwerkswände
Geschossdecken - Massivdecken über dem Kellergeschoss, vermutlich Holzbalkendecke über dem Erdgeschoss
Treppen - Massiv, Treppe mit Tritt- und Setzstufenbelag aus Teppichboden, bodeneinschubtreppe zum Spitzboden
Dachkonstruktion - Satteldach ohne Aufbauten
Dachdeckung - Betondachsteine ohne Unterspannbahn
Fenster - überwiegend Holzfenster mit Zwei-Scheiben-Verbundverglasung oder Einfachverglasung, überwiegend Rollläden mit Gurtzug
Dachflächenfenster als Metall-Einfachfenster
Türen - Hauseingangstür als bauzeittypisches Metalltürelement mit Glas-einsätzen in Einfachverglasung
Innentüren als bauzeittypische furnierte Standardtüren, teilweise mit Glaseinsatz
Außenanlagen - Versorgungs- und Entwässerungsanlagen vom Hausanschluss bisan das öffentliche Netz, Einfriedung, Freisitz mit einfacher Überdachung
Wände/Decken - in Wohnräumen überwiegend Verputz / Tapete, Decken Verputz mit Anstrich
Heizung - keine Zentralheizung, Ölbefeuerte Einzelöfen ohne zentrale Ölversorgung, ein Zimmer im Erdgeschoss und die Räume im Dachgeschoss
ohne Beheizungsmöglichkeit
Warmwasservers. - dezentral über Elektro-Warmwasserbereiter, keine Warmwasserversorgung für die Badewanne im Erdgeschoss
Bad, Warmwasserversorgung der Badewanne im Dachgeschoss über Feststoffbefeuerten Warmwasserbereite
Elektroinstallation - normale bauzeittypische Ausstattung, Elektro-Hausanschluss über Dachständer
Die Gutachterin hat folgende Unterhaltungsrückstände festegestellt:
Erdgeschoss - Bad– Badewanne mit defektem Abfluss und ohne Warmwasserbereiter
1 Zimmer ohne Beheizung
Dachgeschoss - 2 Zimmer ohne Beheizung
Kellergeschoss - an den Außenwänden Durchfeuchtungen mit Putzabplatzungen
Bodenbelag aus PVC-Fliesen mit Beschädigungen
Garage - starke Rissbildung in Wänden und Boden
Undichtigkeiten im Dachbereich
Dacheindeckung aus Faserzementwellplatten
Ich hoffe das war nicht zu viel Text... ich habe versucht das wichtigste aus dem Gutachten zu entnehmen.
Ich glaube der Knackpunkt ist wohl klar die Sanierung und irgendwo auch meine Ratlosigkeit, da mir keine Firma / Berater auch nur im geringsten mit einer groben Kostenübersicht helfen mag, bitte ich euch hier quasi um Unterstützung.
Ich würde an diesem Haus gerne folgende Sanierungsmaßnahmen durchführen:
- Dämmung des Dachs inkl. neuer Eindeckung + (sofern finanziell im Rahmen Installation) einer Photovoltaikanlage + Batterie (Dachschrägen -> Ost/West)
- Erneuerung der Wasserleitungen inkl. der Abwasserleitungen.
- Installation einer Zentralheizung, gewünscht wäre hier eine Fußbodenheizung aufgrund des generell geringen Wohnraums.
Hier wäre die Installation einer Gastherme möglich jedoch müsste der Gasanschluss erst gelegt werden.(Verfügbarkeit besteht)
Gewünscht wäre eine Wärmepumpe jedoch habe ich da nicht geringsten Kostenüberblick.
- Austausch aller Fenster durch 2 Fach-verglaste Kunststofffenster
- Dämmung der Kellerdecke
- Erneuerung der Elektroinstallation + LAN & SAT Dosen in den Zimmern.
- Badsanierung EG+OG mit begehbarer Dusche, WC und Waschbecken.
- Warmwasserversorung durch die Zentralheizung + Solarthermie(wäre gewünscht)
Da ich recht unbeholfen bin schätze ich mal, dass mein geplantes Budget von 150t € für die Sanierung wohl nicht reichen wird.
Von der Fassadendämmung oder Kellertrockenlegung würde ich gerne absehen. (Der Keller wird nicht bewohnt werden)
Ich habe mal ein Paar Bilder hochgeladen, ich hoffe die geben etwas Aufschluss.
Das Haus ist momentan noch bewohnt, auch ist die Bewohnerin bekannt, jedoch besteht keine Besichtigungsmöglichkeit und somit leider auch keine Möglichkeit einen Gutachter/Berater hinzu zu ziehen.
Ich hatte bzgl. der Finanzierung mit meiner Bank bereits Rücksprache gehalten, da das ganze Thema ersteigern und dann sanieren ja zeitlich weit auseinander liegt.
Ich muss hier anmerken, dass ich das Haus ggf. nicht allein Bewohnen werde, ich werde quasi eine WG "eröffnen?" und somit die Finanzierungsrate beschneiden.
Laut der Hausbank wäre das kein Problem, da sofern ich den Zuschlag erhalte ich dadurch die Finanzierung des EFHs einleiten könne und man die Sanierungskosten dann später in Verbindung mit einem Energieberater inkl. KFW Förderungen an die Finanzierung anhängen könnte.
Ich würde auch gerne möglichst wenig Eigenkapital einbringen(bis auf die Sicherheitsleistung), da das vorhandene Eigenkapital zur Pufferung für "Eventualitäten" ansetzen möchte hierzu wären 25k direkt Abrufbar und im Notfall wären noch ca 30k aus Fonds auslösbar (sollte vermieden werden). Des Weiteren müssen in so einem Haus ja auch Malerarbeiten und Bodenbeläge vorhanden sein
Ich hoffe ich habe euch nicht mit zu viel Text erschlagen bzw. ich hoffe ich habe nicht gegen irgendeine Regel verstossen.
Ich danke euch für eure Zeit & euren Rat.







Ich, mittleren Alters (niedrige 30 ) Angestellter mit normalem Verdienst im Schichtdienst 25xx - 3xxx Netto überlege mir eine Immobilie aus einer Teilungsversteigerung zur Auflösung einer Erbgemeinschaft zu zu legen.
Finanziell würde ich die Sicherheitsleistung als Eigenkapital nutzen und den Rest über die Bank finanzieren wollen.
Es handelt sich hierbei um ein Siedlungshaus mit ~95qm Wohnfläche(4 Zimmer + 2 Bäder) auf 1,5 Etagen (EG+DG) aus dem Baujahr 1968 mit einem lt.- Gutachten veranschlagten Verkehrswert von 70t €, das Grundstück ist mit 249qm recht klein und überschaubar, jedoch muss das Haus Kern-saniert werden.
Wo fange ich am besten an... das Gutachten wurde im Februar 2019 erstellt und das Haus wurde von Innen wie auch von Außen besichtigt.
Es lt. dem Gutachten keine Anhaltspunkte für das vorliegen eines Hausschwammbefalls festgestellt.
Ebenso sind keine baubehördlichen Beschränkungen oder Beanstandungen festgestellt worden.
Es bestehen keine Miet- oder Pachtverträge, ein Energieausweis ist nicht vorhanden.
Versorgungsanschlüsse Strom & Wasser aus öffentlicher Versorgung, sowie Kanalanschluss.
Keine bekannten Altlasten lauf dem Katasterauszug.
Fassade - Putzfassade
Konstruktionsart - Massivbauweise
Fundamente - vermutlich Streifenfundamente
Kellerwände - Massivkeller
Umfassungswände - vermutlich Mauerwerkswände
Geschossdecken - Massivdecken über dem Kellergeschoss, vermutlich Holzbalkendecke über dem Erdgeschoss
Treppen - Massiv, Treppe mit Tritt- und Setzstufenbelag aus Teppichboden, bodeneinschubtreppe zum Spitzboden
Dachkonstruktion - Satteldach ohne Aufbauten
Dachdeckung - Betondachsteine ohne Unterspannbahn
Fenster - überwiegend Holzfenster mit Zwei-Scheiben-Verbundverglasung oder Einfachverglasung, überwiegend Rollläden mit Gurtzug
Dachflächenfenster als Metall-Einfachfenster
Türen - Hauseingangstür als bauzeittypisches Metalltürelement mit Glas-einsätzen in Einfachverglasung
Innentüren als bauzeittypische furnierte Standardtüren, teilweise mit Glaseinsatz
Außenanlagen - Versorgungs- und Entwässerungsanlagen vom Hausanschluss bisan das öffentliche Netz, Einfriedung, Freisitz mit einfacher Überdachung
Wände/Decken - in Wohnräumen überwiegend Verputz / Tapete, Decken Verputz mit Anstrich
Heizung - keine Zentralheizung, Ölbefeuerte Einzelöfen ohne zentrale Ölversorgung, ein Zimmer im Erdgeschoss und die Räume im Dachgeschoss
ohne Beheizungsmöglichkeit
Warmwasservers. - dezentral über Elektro-Warmwasserbereiter, keine Warmwasserversorgung für die Badewanne im Erdgeschoss
Bad, Warmwasserversorgung der Badewanne im Dachgeschoss über Feststoffbefeuerten Warmwasserbereite
Elektroinstallation - normale bauzeittypische Ausstattung, Elektro-Hausanschluss über Dachständer
Die Gutachterin hat folgende Unterhaltungsrückstände festegestellt:
Erdgeschoss - Bad– Badewanne mit defektem Abfluss und ohne Warmwasserbereiter
1 Zimmer ohne Beheizung
Dachgeschoss - 2 Zimmer ohne Beheizung
Kellergeschoss - an den Außenwänden Durchfeuchtungen mit Putzabplatzungen
Bodenbelag aus PVC-Fliesen mit Beschädigungen
Garage - starke Rissbildung in Wänden und Boden
Undichtigkeiten im Dachbereich
Dacheindeckung aus Faserzementwellplatten
Ich hoffe das war nicht zu viel Text... ich habe versucht das wichtigste aus dem Gutachten zu entnehmen.
Ich glaube der Knackpunkt ist wohl klar die Sanierung und irgendwo auch meine Ratlosigkeit, da mir keine Firma / Berater auch nur im geringsten mit einer groben Kostenübersicht helfen mag, bitte ich euch hier quasi um Unterstützung.
Ich würde an diesem Haus gerne folgende Sanierungsmaßnahmen durchführen:
- Dämmung des Dachs inkl. neuer Eindeckung + (sofern finanziell im Rahmen Installation) einer Photovoltaikanlage + Batterie (Dachschrägen -> Ost/West)
- Erneuerung der Wasserleitungen inkl. der Abwasserleitungen.
- Installation einer Zentralheizung, gewünscht wäre hier eine Fußbodenheizung aufgrund des generell geringen Wohnraums.
Hier wäre die Installation einer Gastherme möglich jedoch müsste der Gasanschluss erst gelegt werden.(Verfügbarkeit besteht)
Gewünscht wäre eine Wärmepumpe jedoch habe ich da nicht geringsten Kostenüberblick.
- Austausch aller Fenster durch 2 Fach-verglaste Kunststofffenster
- Dämmung der Kellerdecke
- Erneuerung der Elektroinstallation + LAN & SAT Dosen in den Zimmern.
- Badsanierung EG+OG mit begehbarer Dusche, WC und Waschbecken.
- Warmwasserversorung durch die Zentralheizung + Solarthermie(wäre gewünscht)
Da ich recht unbeholfen bin schätze ich mal, dass mein geplantes Budget von 150t € für die Sanierung wohl nicht reichen wird.
Von der Fassadendämmung oder Kellertrockenlegung würde ich gerne absehen. (Der Keller wird nicht bewohnt werden)
Ich habe mal ein Paar Bilder hochgeladen, ich hoffe die geben etwas Aufschluss.
Das Haus ist momentan noch bewohnt, auch ist die Bewohnerin bekannt, jedoch besteht keine Besichtigungsmöglichkeit und somit leider auch keine Möglichkeit einen Gutachter/Berater hinzu zu ziehen.
Ich hatte bzgl. der Finanzierung mit meiner Bank bereits Rücksprache gehalten, da das ganze Thema ersteigern und dann sanieren ja zeitlich weit auseinander liegt.
Ich muss hier anmerken, dass ich das Haus ggf. nicht allein Bewohnen werde, ich werde quasi eine WG "eröffnen?" und somit die Finanzierungsrate beschneiden.
Laut der Hausbank wäre das kein Problem, da sofern ich den Zuschlag erhalte ich dadurch die Finanzierung des EFHs einleiten könne und man die Sanierungskosten dann später in Verbindung mit einem Energieberater inkl. KFW Förderungen an die Finanzierung anhängen könnte.
Ich würde auch gerne möglichst wenig Eigenkapital einbringen(bis auf die Sicherheitsleistung), da das vorhandene Eigenkapital zur Pufferung für "Eventualitäten" ansetzen möchte hierzu wären 25k direkt Abrufbar und im Notfall wären noch ca 30k aus Fonds auslösbar (sollte vermieden werden). Des Weiteren müssen in so einem Haus ja auch Malerarbeiten und Bodenbeläge vorhanden sein
Ich hoffe ich habe euch nicht mit zu viel Text erschlagen bzw. ich hoffe ich habe nicht gegen irgendeine Regel verstossen.
Ich danke euch für eure Zeit & euren Rat.
H
HilfeHilfe16.07.19 20:2270k Kaufpreis und 150k Sanierung in top ? Das heißt in deiner Region gibt es nichts für 220k ? Kannst du vor der ZV eine Einigung erzielen ? Grundsätzlich solltest du mit deiner Bank sprechen 200% Renovierung über dem Kaufpreis macht nicht jede mit
Also ich hatte mit der Baufinanzierung meiner Hausbank (ING) telefoniert und auch exakt meine Schätzungen bzgl. der Sanierungsarbeiten (Kernsanierung) angegeben.
Der Meinte das, dass kein Problem wäre, da man dort auch recht viel mit der KFW machen würde, er sagte auch gleich das da ein Energieberater sinnvoll wäre.
Schriftlich habe ich da halt nichts...
Und naja es ist hier relativ selten was für 220k drin was nicht mindestens renoviert wenn nicht gar saniert werden müsste.
Ich werde an diesem Donnerstag mal zum Amtsgericht fahren und mir so einer Versteigerung anschauen.
Der Meinte das, dass kein Problem wäre, da man dort auch recht viel mit der KFW machen würde, er sagte auch gleich das da ein Energieberater sinnvoll wäre.
Schriftlich habe ich da halt nichts...
Und naja es ist hier relativ selten was für 220k drin was nicht mindestens renoviert wenn nicht gar saniert werden müsste.
Ich werde an diesem Donnerstag mal zum Amtsgericht fahren und mir so einer Versteigerung anschauen.
Darf ich Dir ehrlich was dazu sagen? Wenn Du das alles machen lassen musst wird es zu teuer. Deine 150, das können leicht 200 werden. Dazu 70 Erwerb plus Nebenkosten.
Das Haus ist interessant für Handwerker. Oder für ganz abgewixte Typen, die da fast gar nichts machen und es an Rumänen oder so vermieten. Oder da nen Puff drin einrichten oder oder.
Das Haus ist interessant für Handwerker. Oder für ganz abgewixte Typen, die da fast gar nichts machen und es an Rumänen oder so vermieten. Oder da nen Puff drin einrichten oder oder.
H
HilfeHilfe16.07.19 22:51Nordlys schrieb:
Darf ich Dir ehrlich was dazu sagen? Wenn Du das alles machen lassen musst wird es zu teuer. Deine 150, das können leicht 200 werden. Dazu 70 Erwerb plus Nebenkosten.
Das Haus ist interessant für Handwerker. Oder für ganz abgewixte Typen, die da fast gar nichts machen und es an Rumänen oder so vermieten. Oder da nen Puff drin einrichten oder oder.Das heißt Freudenhaus ...BeoMauz schrieb:
aus dem Baujahr 1968 [...] Heizung - keine Zentralheizung, Ölbefeuerte Einzelöfen ohne zentrale Ölversorgung,In diesem Zusammenhang sehe ichBeoMauz schrieb:
Elektroinstallation - normale bauzeittypische Ausstattungsich tatsächlich maximal auf die Elektrik begrenzen.BeoMauz schrieb:
Ich muss hier anmerken, dass ich das Haus ggf. nicht allein Bewohnen werde, ich werde quasi eine WG "eröffnen?"Da sehe ich im DG eine Gaube für ein zweites Bad nötig werden, sonst wird das wirklich eine WG im Kommunen-Sinne des Baujahres BeoMauz schrieb:
Da ich recht unbeholfen bin schätze ich mal, dass mein geplantes Budget von 150t € für die Sanierung wohl nicht reichen wird.Unter diesen Umständen sehe ich Dich nicht dem Objektzustand angemessen befähigt, bei der "Muskelhypothek" ordentlich hinzulangen.Mir scheint, Du gehst naiv an den Wert dessen heran, was da auf dem geduldigen Papier durchaus noch wie ein Haus aussehen mag. Deine Beschreibung liest sich aber eher so, daß 1. nach der Entsorgung mehr (gemischter, entsprechend teuer zu entsorgender) Schutt angefallen sein wird, als den Keller bis über beide Ohren verfüllen könnte; 2. was übrig bliebe, ein Gebrauchtrohbau wäre, dessen Preisabstand zu einem Neu-Rohbau gleicher Größe den Aufwand für die Behutsamkeit beim Abriss nicht lohnen wird.
Selbst wenn Du ein Ritter ohne Furcht und Tadel bist und schon in der Schule den Spitznamen "Raboti" getragen haben solltest: vergiß´ dieses Kamikaze-Projekt !
https://www.instagram.com/11antgmxde/
https://www.linkedin.com/company/bauen-jetzt/
Ähnliche Themen