Grundriss Einfamilienhaus ca. 190m² und Platzierung auf Grundstück

4,80 Stern(e) 6 Votes
Zuletzt aktualisiert 19.11.2025
Sie befinden sich auf der Seite 3 der Diskussion zum Thema: Grundriss Einfamilienhaus ca. 190m² und Platzierung auf Grundstück
>> Zum 1. Beitrag <<

B

BimBamBaba

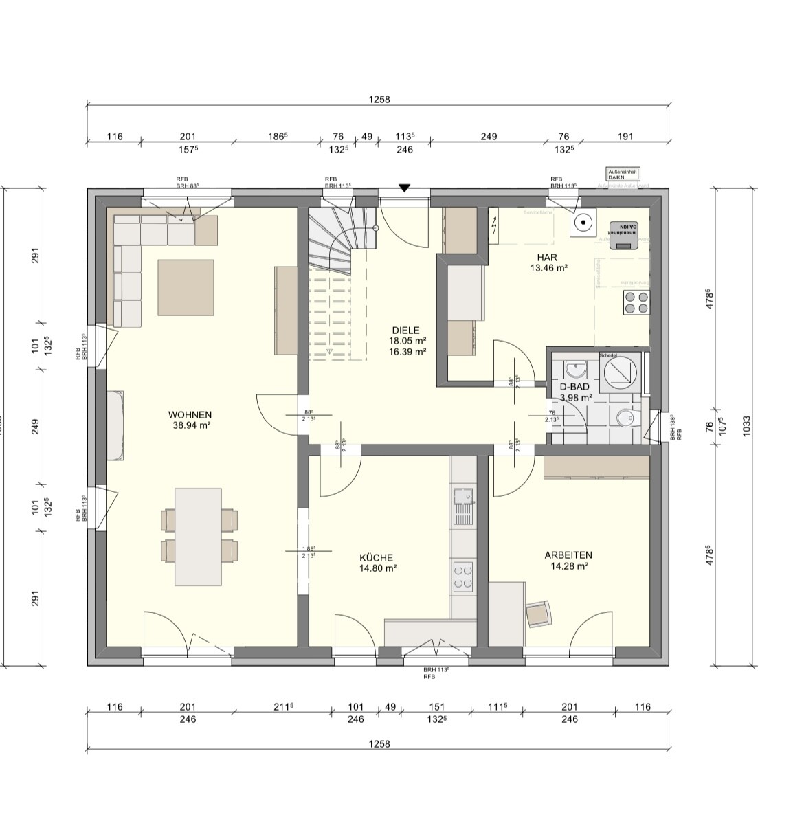
Zum Entwurf: Schrägstellung Tisch zeigt auf, dass eine Geradestellung mit Bestuhlung mit der Sitzecke knapp sein könnte. Kann man aber so natürlich machen.
An den WW-Speicher muss natürlich auch mal ein Techniker mit seiner Wasserrohrzange (oder womit er rangeht) ran.
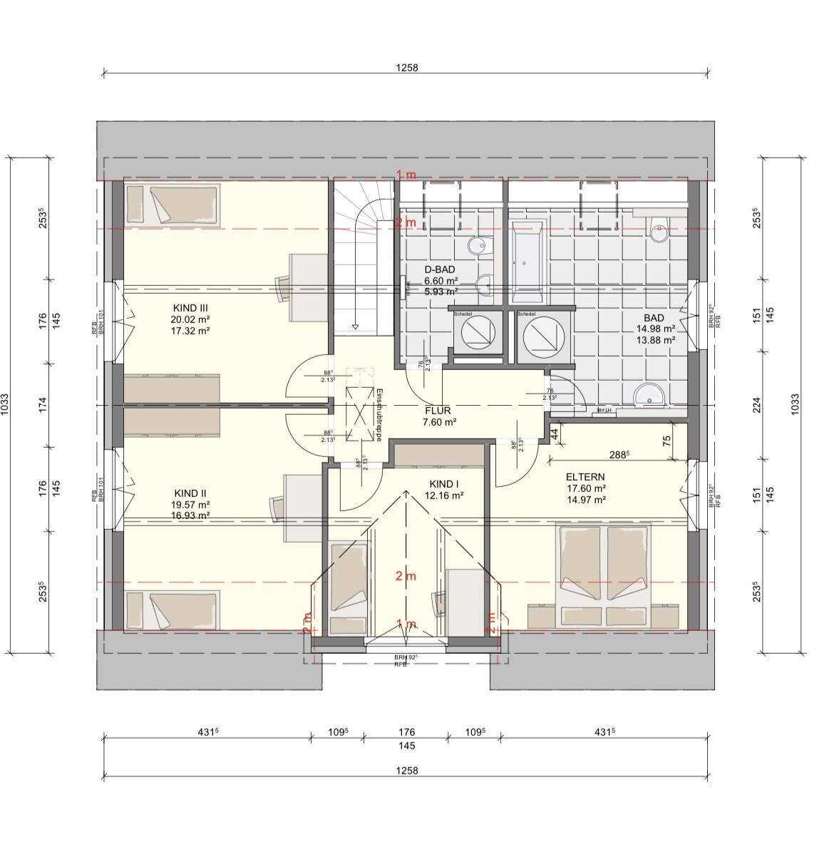
Abstellfläche habt ihr keine, das Mal festgestellt. Außer unter der Treppe. Für Koffer und Deko muss der Dachboden herhalten.
Küche: einfach mal eine normal gängige Insel, 90 spritzt nichts dahinter, einzeichnen. Dann fallen die Sitzplatzhalter aber schon weg, oder?
Die Küche ist die Version, die der Hausverkäufer so einzeichnet. Das hat mit unserer Planung Noch nix gemeinsam.
Wir habe eine weitere Planung, die etwas größer ist.
Hier gefällt mir aber die Bädersituation im OG nicht so ganz.
Das „Gelumpe“ muss aber leider zu 90% warm und trocken liegen. Ansitzsack, Schlafsäcke, dicken Hosen usw.

Grundriss des Obergeschosses mit Elternschlafzimmer, drei Kinderzimmern, Flur, Bad, D-Bad und Treppe.


Grundriss eines Hauses: Wohnzimmer, Küche, Arbeitszimmer, Diele, Bad und HAR.
 
K a t j a

K a t j a

Bei uns musste damals das Grundstück gleich groß geteilt werden. Also ein kleines und ein großes Grundstück ging nicht.
Ich halte eine Grundrissdiskussion auch für verfrüht. Erstmal die Teilung klären und die bebaubare Fläche ermitteln. Eine Bauvoranfrage wäre evtl. sinnvoll.
 
Y

ypg

mein Vater bekommt die anderen 242qm.
Es scheint mir, dass nach Par 34 das Grundstück für das Bestandshaus zu klein ist.
Ich sehe das alles noch nicht so und rate auch zu einer Bauvoranfrage.
Mündlich am Telefon ohne Plan vergisst man gern mal Fakten, die das Bauamt dann unverbindlich absegnet, da die bei Fragen davon ausgehen, dass die Fakten für sich ausgelotet und konform sind.
 
B

BimBamBaba

Es scheint mir, dass nach Par 34 das Grundstück für das Bestandshaus zu klein ist.
Ich sehe das alles noch nicht so und rate auch zu einer Bauvoranfrage.
Mündlich am Telefon ohne Plan vergisst man gern mal Fakten, die das Bauamt dann unverbindlich absegnet, da die bei Fragen davon ausgehen, dass die Fakten für sich ausgelotet und konform sind.
Hallo,
Danke für deine Antwort, ich verstehe nicht so ganz was du damit meinst.
Mein Vater hat das Flurstück 1051 und 1114 aktuell. Hier wurde damals verpasst ein Flurstück zu machen, wird jetzt nachgeholt.
Vom Grundstück 1100 bekommt er dann noch die Teilfläche dazu, sodass sein Grundstück ziemlich groß sein wird.

Meintest du das?
Grüße

Ausschnitt einer Katasterkarte: Parzellen 1051, 1114, 1100; graue Gebäude auf pinken Flächen.
 
Y

ypg

Danke für deine Antwort, ich verstehe nicht so ganz was du damit meinst.
Vielleicht solltest Du bedenken, dass wir die Situation nicht kennen.
Wenn ich frage, wie groß das Grundstück wird, und Du sagst, dass das Grundstück Deines Vaters 200irgendwas hat, dann muss man das hier glauben.
Entsprechend bauen wir hier die Antworten auf. Mit falschen oder nicht genannten Fakten können wir Dir zu nichts raten.
 
B

BimBamBaba

Vielleicht solltest Du bedenken, dass wir die Situation nicht kennen.
Wenn ich frage, wie groß das Grundstück wird, und Du sagst, dass das Grundstück Deines Vaters 200irgendwas hat, dann muss man das hier glauben.
Entsprechend bauen wir hier die Antworten auf. Mit falschen oder nicht genannten Fakten können wir Dir zu nichts raten.
Sorry, deshalb habe ich mich ja korrigiert.
Für mich ist das natürlich selbstverständlich aber ihr konntet es nicht wissen.
Aber unter der neuen Information sollte sich deine Bedenken erledigt haben, oder?
 
Zuletzt aktualisiert 19.11.2025
Im Forum Grundrissplanung / Grundstücksplanung gibt es 2536 Themen mit insgesamt 87971 Beiträgen


Ähnliche Themen zu Grundriss Einfamilienhaus ca. 190m² und Platzierung auf Grundstück
Nr.ErgebnisBeiträge
1Kaufvertrag für Grundstück - Baufenster - Bauvoranfrage 12
2Einschätzung zu Grundstück gesucht - Artikel 34 Umbebauung 11
3Grundstück mit Altbestand, Neubau nicht möglich 11
4Bestimmung Grundstückswert von Grundstück mit Altbestand - Seite 425
5Bauvoranfrage vor Grundstückskauf ok, dieser Auskunft vertrauen? 15
6Weiteres Vorgehen bei Ablehnung Bauvoranfrage - Seite 235
7Bungalow - macht das auf einem solchen Grundstück Sinn? - Seite 421
8Finanzierung des Hausbaus auf einem Grundstück nach Nachbarschaft - Seite 333
9Bauvoranfrage Grundstückskauf: Was gilt es zu beachten? - Seite 424
10Grundstückskauf Überschwemmungsgebiet + Aufteilung Grundstück 15
11Bauantrag für ein erschlossenes Grundstück im Außenbereich 23
12Einschätzung Bebaubarkeit großes Grundstück nach §34 - Seite 217
13Bauvoranfrage - Was ist relevant? 12
14Flurstück Rechtsfrage zum Umgang der Bank 10
15Grundstücksplanung für ein dreieckiges Grundstück 37
16Wie würdet ihr das Haus auf dem Grundstück ausrichten? 17
17Einbeziehung der Naturschutzbehörde bei einer Bauvoranfrage nötig? 14
18Grundflächenzahl/Geschossflächenzahl bei Grundstück ohne Bebauungsplan: Wie kalkulieren? Erfahrungen? - Seite 218
19Bauvoranfrage stellen in Hamburg - Seite 316
20Bauen auf Grundstück im Familienbesitz - Grünfläche mit Bodendenkmal - Seite 637

Oben