ᐅ Grundriss Einfamilienhaus, 2 Vollgeschosse ca. 180qm, 600qm Grundstück
Erstellt am: 06.10.21 00:29
M
Masterle25M
Masterle2506.10.21 00:29Hallo liebe Mitglieder,
wie die meisten Anderen habe auch ich eine ganze Weile still und heimlich mitgelesen. Es gibt hier viele tolle Ratschläge.
Der Bauantrag ist eingereicht und Außenmaße sowie Fenster-Anzahl fix. Positionierung geht in Absprache noch, allerdings auch nur in begrenztem Maße. Innen haben wir eigentlich noch fast alle Möglichkeiten. GU ist ein ortsnaher Familienbetrieb und seit über 20 Jahren tätig. In den umliegenden Neubaugebieten findet man ihn sowie zwei weitere GUs durchgehend und der Ruf ist durchaus bemerkenswert. (Tatsächlich haben wir eine ganze Zeit lang die neu eingezogenen Bauherren um uns herum interviewt... *g*) Ein GU schied aufgrund der Bauweise aus (ausschließlich Kfw 40+) und der andere nach Angebotsunterbreitung. Der Prozess bisher hat ca. 10 Monate gedauert, angefangen mit Millimeterpapier, Heiztechnik, notwendige Zimmer, Hauspositionierung und und und. Tolle Leitfäden gibt es hierzu im Forum!
So, ich hoffe die Worte waren einladend genug den Fragenkatalog durchzulesen. Sollte ich etwas vergessen haben, bitte mich darauf aufmerksam machen. Ich freue mich über Rückmeldung eurerseits. Gerne auch kritisch!
Bebauungsplan/Einschränkungen
kein Bebauungsplan
Größe des Grundstücks – 598 qm
Hang - nein
Grundflächenzahl – 0,3
Baufenster, Baulinie und -grenze – 3 m Abstand zu allen Seiten
weitere Vorgaben – Orientierung an Nachbarbebauung
Bauvorhaben, inkl. Unterlagen sind vom zuständigen Bauamt bereits für okay befunden worden.
Anforderungen der Bauherren
Stilrichtung, Dachform, Gebäudetyp - Satteldach/ 30° Neigung à Südseite mit 10KWp Photovoltaikanlage, KfW 55 EE
Keller, Geschosse – Bodenplatte, 2 Vollgeschosse, Speicher kalt
Anzahl der Personen, Alter – momentan 3 Personen, geplant 4; 38, 35, 1
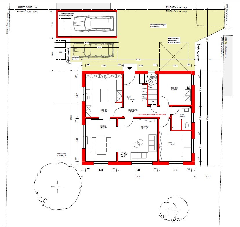
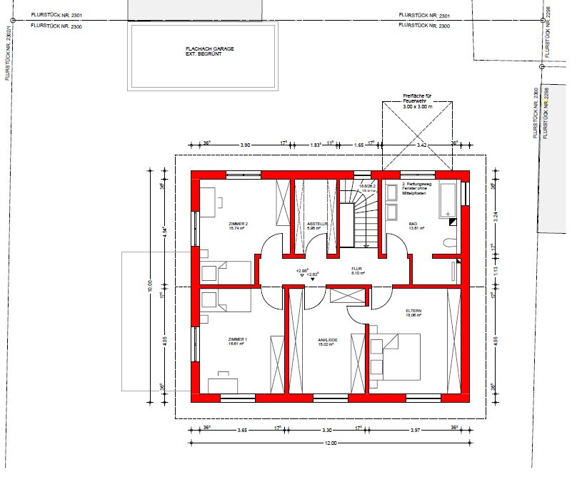
Raumbedarf im EG, OG - EG: Wohnen/Essen, geschlossene Küche, Arbeits-/Gästezimmer, WC/Bad, Hauswirtschaftsraum/Technikraum, Gäste-WC inkl. Dusche OG: Schlafzimmer, Ankleidezimmer (Notfallzimmer falls 3. Kind ), 2 Kinderzimmer, Badezimmer
Büro: 2 Homeoffice Plätze
Schlafgäste pro Jahr: max. 5, wenn man betrunkene Freundschaften nicht dazurechnet, da reicht ja meist die Couch *g*
offene oder geschlossene Architektur: eher geschlossene Architektur
konservativ oder moderne Bauweise: konservativ
offene Küche, Kochinsel: geschlossene Küche, Insel lediglich als Arbeitsfläche
Anzahl Essplätze: 6
Kamin: nein
Musik/Stereowand: TV-Wand
Balkon, Dachterrasse: keine
Garage, Carport: Garage + Carportüberdachung
Hausentwurf
Von wem stammt die Planung:
Planer eines Bauunternehmens, Grundlage war Grundrissvorschlag unsererseits
Was gefällt besonders? Warum? Alle notwendigen Räume in ausreichender Größe vorhanden
Was gefällt nicht? Warum? Eingang Büro schwer nutzbar, Platzmangel aufgrund Gäste-WC + Wohnzimmerverbreiterung
Festpreis: ca. 450.000€
Persönliches Preislimit fürs Haus, inkl. Ausstattung: 550.000€
favorisierte Heiztechnik: Luft-Wasser-Wärmepumpe + Fußbodenheizung
Wenn Ihr verzichten müsst, auf welche Details/Ausbauten
-könnt Ihr verzichten: Größe Ankleidezimmer
-könnt Ihr nicht verzichten: Büro/ zwei Kinderzimmer
Warum ist der Entwurf so geworden, wie er jetzt ist?
Entsprechende/Welche Wünsche wurden vom Planer umgesetzt?
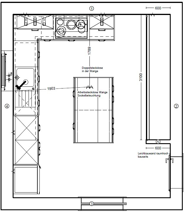
-Küche haben wir bereits geplant und in Auftrag gegeben, Grundriss dahingehend (Änderungen aber sicher möglich)
Haben lange gehadert ob offene Küche oder geschlossene, nach Entscheidung lange gehadert ob Speisekammer hinter Küchenfront oder nicht, jetzt ist Speis hinter verschiebbaren Elementen auf der rechten Seite (s. Anhang)
-Stauraum unter Treppe
-Schlafzimmerfenster gen Osten aufgrund Schlafzimmer-Schranks gestrichen
- Wohnzimmer aufgrund TV-Wand und Raumgewinn verbreitert
Was macht ihn in Euren Augen besonders gut oder schlecht?
Alle Räume alltagsfest und späteres Wohnen im EG mit wenig Umbauten möglich
Was ist die wichtigste/grundlegende Frage zum Grundriss in 130 Zeichen zusammengefasst?
Sind die einzelnen Räume ausreichend belichtet? Hier habe ich überhaupt kein Gefühl. Grobe Schnitzer erkennbar?
PS: Norden ist auf dem Lageplan sowie den beiden Grundrissen jeweils oben!







wie die meisten Anderen habe auch ich eine ganze Weile still und heimlich mitgelesen. Es gibt hier viele tolle Ratschläge.
Der Bauantrag ist eingereicht und Außenmaße sowie Fenster-Anzahl fix. Positionierung geht in Absprache noch, allerdings auch nur in begrenztem Maße. Innen haben wir eigentlich noch fast alle Möglichkeiten. GU ist ein ortsnaher Familienbetrieb und seit über 20 Jahren tätig. In den umliegenden Neubaugebieten findet man ihn sowie zwei weitere GUs durchgehend und der Ruf ist durchaus bemerkenswert. (Tatsächlich haben wir eine ganze Zeit lang die neu eingezogenen Bauherren um uns herum interviewt... *g*) Ein GU schied aufgrund der Bauweise aus (ausschließlich Kfw 40+) und der andere nach Angebotsunterbreitung. Der Prozess bisher hat ca. 10 Monate gedauert, angefangen mit Millimeterpapier, Heiztechnik, notwendige Zimmer, Hauspositionierung und und und. Tolle Leitfäden gibt es hierzu im Forum!
So, ich hoffe die Worte waren einladend genug den Fragenkatalog durchzulesen. Sollte ich etwas vergessen haben, bitte mich darauf aufmerksam machen. Ich freue mich über Rückmeldung eurerseits. Gerne auch kritisch!
Bebauungsplan/Einschränkungen
kein Bebauungsplan
Größe des Grundstücks – 598 qm
Hang - nein
Grundflächenzahl – 0,3
Baufenster, Baulinie und -grenze – 3 m Abstand zu allen Seiten
weitere Vorgaben – Orientierung an Nachbarbebauung
Bauvorhaben, inkl. Unterlagen sind vom zuständigen Bauamt bereits für okay befunden worden.
Anforderungen der Bauherren
Stilrichtung, Dachform, Gebäudetyp - Satteldach/ 30° Neigung à Südseite mit 10KWp Photovoltaikanlage, KfW 55 EE
Keller, Geschosse – Bodenplatte, 2 Vollgeschosse, Speicher kalt
Anzahl der Personen, Alter – momentan 3 Personen, geplant 4; 38, 35, 1
Raumbedarf im EG, OG - EG: Wohnen/Essen, geschlossene Küche, Arbeits-/Gästezimmer, WC/Bad, Hauswirtschaftsraum/Technikraum, Gäste-WC inkl. Dusche OG: Schlafzimmer, Ankleidezimmer (Notfallzimmer falls 3. Kind ), 2 Kinderzimmer, Badezimmer
Büro: 2 Homeoffice Plätze
Schlafgäste pro Jahr: max. 5, wenn man betrunkene Freundschaften nicht dazurechnet, da reicht ja meist die Couch *g*
offene oder geschlossene Architektur: eher geschlossene Architektur
konservativ oder moderne Bauweise: konservativ
offene Küche, Kochinsel: geschlossene Küche, Insel lediglich als Arbeitsfläche
Anzahl Essplätze: 6
Kamin: nein
Musik/Stereowand: TV-Wand
Balkon, Dachterrasse: keine
Garage, Carport: Garage + Carportüberdachung
Hausentwurf
Von wem stammt die Planung:
Planer eines Bauunternehmens, Grundlage war Grundrissvorschlag unsererseits
Was gefällt besonders? Warum? Alle notwendigen Räume in ausreichender Größe vorhanden
Was gefällt nicht? Warum? Eingang Büro schwer nutzbar, Platzmangel aufgrund Gäste-WC + Wohnzimmerverbreiterung
Festpreis: ca. 450.000€
Persönliches Preislimit fürs Haus, inkl. Ausstattung: 550.000€
favorisierte Heiztechnik: Luft-Wasser-Wärmepumpe + Fußbodenheizung
Wenn Ihr verzichten müsst, auf welche Details/Ausbauten
-könnt Ihr verzichten: Größe Ankleidezimmer
-könnt Ihr nicht verzichten: Büro/ zwei Kinderzimmer
Warum ist der Entwurf so geworden, wie er jetzt ist?
Entsprechende/Welche Wünsche wurden vom Planer umgesetzt?
-Küche haben wir bereits geplant und in Auftrag gegeben, Grundriss dahingehend (Änderungen aber sicher möglich)
Haben lange gehadert ob offene Küche oder geschlossene, nach Entscheidung lange gehadert ob Speisekammer hinter Küchenfront oder nicht, jetzt ist Speis hinter verschiebbaren Elementen auf der rechten Seite (s. Anhang)
-Stauraum unter Treppe
-Schlafzimmerfenster gen Osten aufgrund Schlafzimmer-Schranks gestrichen
- Wohnzimmer aufgrund TV-Wand und Raumgewinn verbreitert
Was macht ihn in Euren Augen besonders gut oder schlecht?
Alle Räume alltagsfest und späteres Wohnen im EG mit wenig Umbauten möglich
Was ist die wichtigste/grundlegende Frage zum Grundriss in 130 Zeichen zusammengefasst?
Sind die einzelnen Räume ausreichend belichtet? Hier habe ich überhaupt kein Gefühl. Grobe Schnitzer erkennbar?
PS: Norden ist auf dem Lageplan sowie den beiden Grundrissen jeweils oben!
Wenn Du hier schon eine ganze Weile mitliest, wundern mich allerdings die "eingeplanten" Pfuschertaschen (und natürlich, daß Du erst mit genehmigten Plänen ankommst - was soll man da nun noch raten - ibs. auch noch bei schon beauftragter Küche ?). Trotzdem danke für den mehrfarbigen Fragebogen, so finde ich es wirklich deutlich lesefreundlicher.
https://www.instagram.com/11antgmxde/
https://www.linkedin.com/company/bauen-jetzt/
https://www.instagram.com/11antgmxde/
https://www.linkedin.com/company/bauen-jetzt/
M
Masterle2506.10.21 01:10Änderungen innen sowie auch der Küche sind grundsätzlich noch möglich...
Masterle25 schrieb:
betrunkene Freundschaften 😎 Coole Zusammenstellung!Masterle25 schrieb:
Schlafzimmerfenster gen Osten aufgrund Schlafzimmer-Schranks gestrichenIch würde das Bett an die Außenwand stellen, 1. soll man keine Schränke an Außenwänden stellen wegen Schimmelgefahr, aber ich rate zu 2. wegen des besseren Raumgefühls. Zum Glück gibt es noch andere Möbel als Schränke 😉Im EG würde ich auf die beiden Wände zw WZ und Essbereich verzichten. Die tun nicht gut.
Wenn man im OG Toi und Dusche nebeneinander quer in den jetzigen Duschbereich bekommt, dann hätte man eine recht gut versteckte Toilette, was bei 4 oder 5 Personen Vorteile hat.
Schnitzer gibt es keine. So eine konservative Planung hat schon immer funktioniert.
Masterle25 schrieb:
Alle Räume alltagsfest und späteres Wohnen im EG mit wenig Umbauten möglichDu bist der 3. oder 4. diese Woche, der sich im Alter in ein 4qm großes Bad quetschen will.Was mir sofort auffällt ist das Ankleidezimmer. Durch die zwei Türen und ein Fenster hat man sehr wenig Schrankstellplätze. Wieso sollen es denn 15qm sein? Lieber ein anderes Zimmer vergrößern.
Raumhöhe ist auch zu niedrig. Eine Erhöhung ist recht günstig (bei uns ca. 3.000 €), bringt jedoch sehr viel "Raunfreiheit".
Raumhöhe ist auch zu niedrig. Eine Erhöhung ist recht günstig (bei uns ca. 3.000 €), bringt jedoch sehr viel "Raunfreiheit".
Ähnliche Themen