ᐅ Grundriss Einfamilienhaus 170qm Satteldach - Feedback erwünscht :)
Erstellt am: 18.07.19 10:48
A
AnnaMueHallo Zusammen,
vor einiger Zeit hatte ich schon mal einen Grundriss gepostet, der noch einige Schwachstellen hatte. Mittlerweile haben wir uns für ein Bauunternehmen entschieden und haben den Grundriss überarbeitet. Nun möchte ich mich noch mal der kritischen Beurteilung der Community stellen.
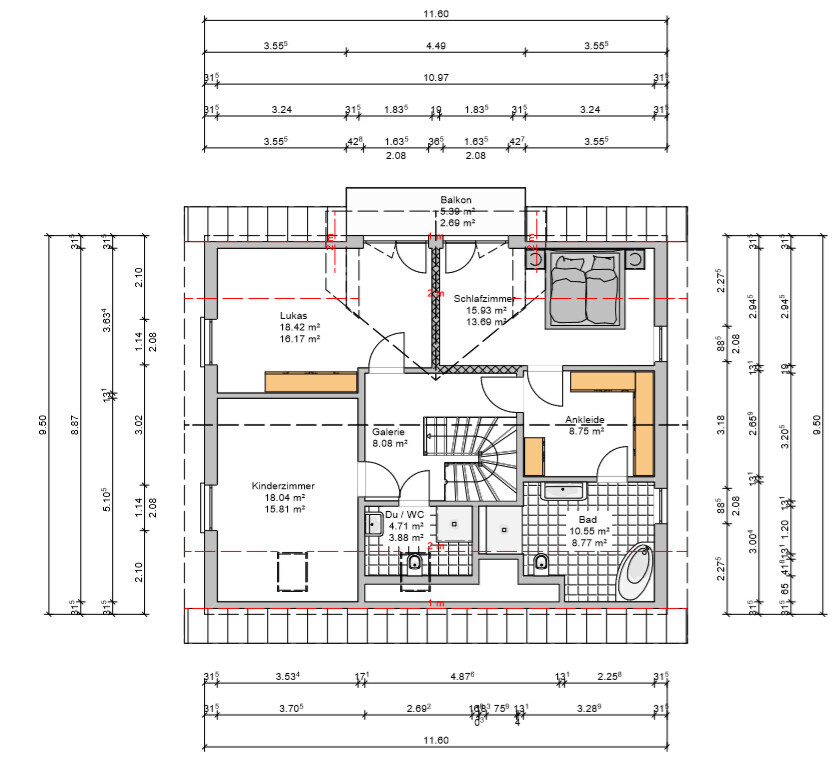
Wir sind bislang zu Dritt, perspektivisch zu Viert und bauen ohne Keller ca. 170qm. Das Grundstück ist knapp 500qm groß.
Die Idee, die Küche um die Ecke zu legen und mit Schiebetür zu versehen, stammt von dem Wunsch eine offene Küche vom Essbereich zu haben, jedoch vom Sofa aus keinen Blick auf die Küchenmöbel zu haben.
Zwischen Ess- und Wohnbereich haben wir ein Stück Wand verlängert, um hier den Fernseher zu platzieren.
Nach wie vor nicht 100% sicher sind wir uns mit der Treppe, finden aber nicht wirklich eine andere Lösung. Unter der Treppe ist eine Abstellkammer, um weiteren Stauraum zu schaffen.
so.. nun bin ich gespannt auf die Rückmeldungen!
Vielen Dank und liebe Grüße
Anna








vor einiger Zeit hatte ich schon mal einen Grundriss gepostet, der noch einige Schwachstellen hatte. Mittlerweile haben wir uns für ein Bauunternehmen entschieden und haben den Grundriss überarbeitet. Nun möchte ich mich noch mal der kritischen Beurteilung der Community stellen.
Wir sind bislang zu Dritt, perspektivisch zu Viert und bauen ohne Keller ca. 170qm. Das Grundstück ist knapp 500qm groß.
Die Idee, die Küche um die Ecke zu legen und mit Schiebetür zu versehen, stammt von dem Wunsch eine offene Küche vom Essbereich zu haben, jedoch vom Sofa aus keinen Blick auf die Küchenmöbel zu haben.
Zwischen Ess- und Wohnbereich haben wir ein Stück Wand verlängert, um hier den Fernseher zu platzieren.
Nach wie vor nicht 100% sicher sind wir uns mit der Treppe, finden aber nicht wirklich eine andere Lösung. Unter der Treppe ist eine Abstellkammer, um weiteren Stauraum zu schaffen.
so.. nun bin ich gespannt auf die Rückmeldungen!
Vielen Dank und liebe Grüße
Anna
Der alte Thread - inklusive Fragebogen in #1 - steht da:
https://www.hausbau-forum.de/threads/welcher-Grundriss-ist-besser-efh-170qm-Feedback-erwuenscht.30890/#post-320880
Es ist übrigens ein Pfeifenkopfgrundstück.
https://www.instagram.com/11antgmxde/
https://www.linkedin.com/company/bauen-jetzt/
https://www.hausbau-forum.de/threads/welcher-Grundriss-ist-besser-efh-170qm-Feedback-erwuenscht.30890/#post-320880
Es ist übrigens ein Pfeifenkopfgrundstück.
https://www.instagram.com/11antgmxde/
https://www.linkedin.com/company/bauen-jetzt/
Ähnliche Themen