Naja.
Das Haus in dem ich vorher gewohnt habe war auch ein "KFW30" Haus. Beinahe Passiv. Deswegen würde ich das nicht so pauschalisieren.
Trotzdem vielleicht bitte um eure Meinung.
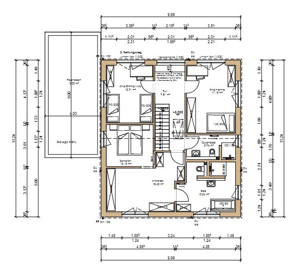
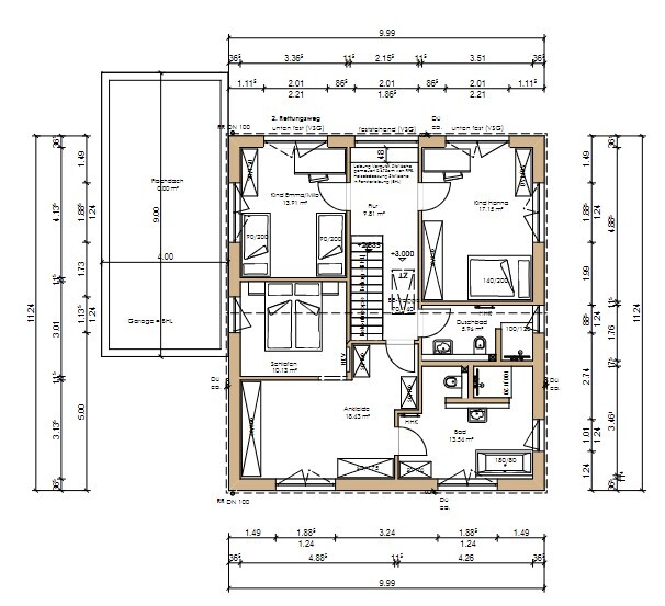
Küche nach Plan linksoben?
Eingang vorne (planunten) (mittig) sinniger?
Hat jemand zufällig ähnliche Grundrisse parat?
Auf jeden Fall auf gerade Treppe verzichten oder nur anders positionieren?
Das Haus in dem ich vorher gewohnt habe war auch ein "KFW30" Haus. Beinahe Passiv. Deswegen würde ich das nicht so pauschalisieren.
Trotzdem vielleicht bitte um eure Meinung.
Küche nach Plan linksoben?
Eingang vorne (planunten) (mittig) sinniger?
Hat jemand zufällig ähnliche Grundrisse parat?
Auf jeden Fall auf gerade Treppe verzichten oder nur anders positionieren?
Klaustal schrieb:
Auf jeden Fall… die Treppe aus der Mitte nehmen. Zumindest so, dass hinter und neben der Treppe das Geschoss nicht ein Schneckenlauf entsteht, der noch nicht einmal Tageslicht sieht.Nach FengShui bleibt die Mitte übrigens am besten immer frei, damit das Chi fließen kann. Kommt hier recht gut zum Erwähnen.
Ich würde wohl die Länge vom Bauferster ausnutzen und das Haus schmaler planen mit SW-Garten. Es sieht ja doch eher mit der Breite etwas plump wie ein Mehrfamilienhaus aus.
Klaustal schrieb:
Danke @ypg
Das war auch unser Gefühl. Mal schauen ob wir das soweit umplanen "dürfen". Wahrscheinlich kostet uns das extra Geld. Aber wir wollen ja auch nicht im Schneckenhaus leben.Warum? Ein Planer/Architekt ist Euch einen gefälligen Plan schuldig. Auch wenn es der dritte oder vierte Anlauf ist.Frau hat sich mit der Planerin (Hausbaufirma) zusammentelfoniert und die hat mal ihre Wünsche eingearbeitet.
Unser Termin steht immer noch aus.
Ich denke es ist etwas besser, zumindest spiegelt es schon mal grob unsere Richtung wieder.
WZ wirkt noch sehr "hingeworfen" und oben das Ankleidezimmer ist natürlich auch Katastrophe.
Küche mit Insel vor hoher Schrankwand ist für meine Frau gesetzt. Sie pocht auch bisschen auf die gerade Treppe.
Ich werde die Tage mal versuchen das Haus etwas in die länge zu strecken. Bin leider nicht der beste Hausplaner glaub ich.
Ihr dürft es auch gerne zerreißen.


Unser Termin steht immer noch aus.
Ich denke es ist etwas besser, zumindest spiegelt es schon mal grob unsere Richtung wieder.
WZ wirkt noch sehr "hingeworfen" und oben das Ankleidezimmer ist natürlich auch Katastrophe.
Küche mit Insel vor hoher Schrankwand ist für meine Frau gesetzt. Sie pocht auch bisschen auf die gerade Treppe.
Ich werde die Tage mal versuchen das Haus etwas in die länge zu strecken. Bin leider nicht der beste Hausplaner glaub ich.
Ihr dürft es auch gerne zerreißen.
Ähnliche Themen