ᐅ Einfamilienhaus 160m2 mit Keller, 500m2 Grundstück
Erstellt am: 09.06.20 18:34
P
pagoni202006.07.20 18:48Murmelstein schrieb:
Ich mache mal die Tage Bilder des Grundstücks und der angrezenden Garage.
Hauptproblem ist, dass ich das Grundstück relativ günstig jetzt bekomme von dem zukünftigen Nachbar auf der linken Seite. Seine Garage liegt ca 0,6 Meter über meinem Grundstück. Auf meinem Grundstück ist dabei ein zugekiester Abstand zu seiner Garage, ich denke es ist eine Drainage in der Erde auf meinem Grundstück. Ich will noch ein zweites Grundstück vom neuen Nachbarn haben, daher werde ich da jetzt keinen Rechtsstreit anfangen wegen der 50 cm, auch wenn diese bei mir im Haus leider fehlen werden.
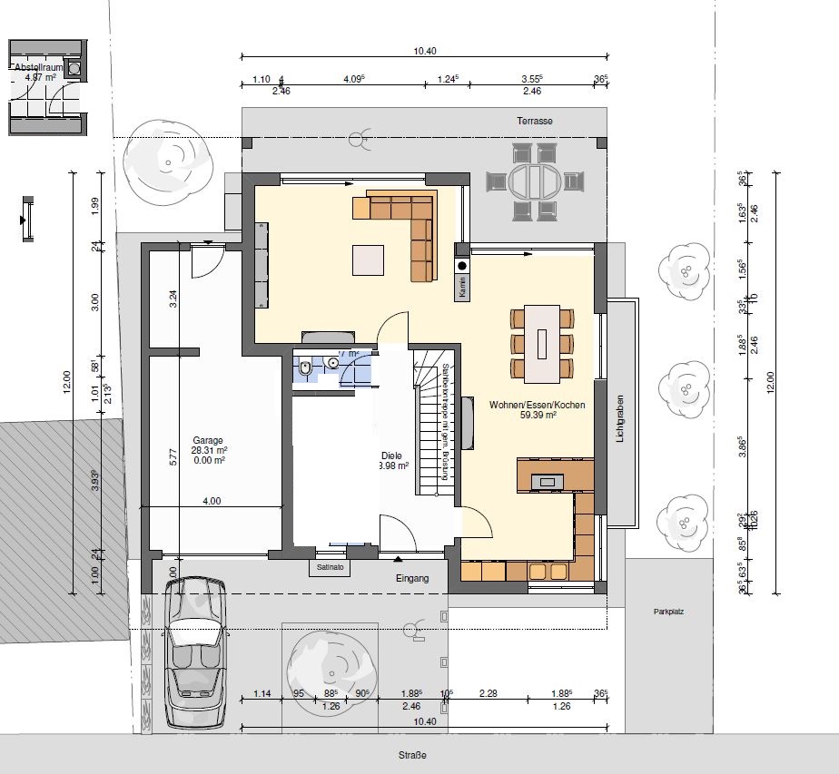
Würfels Idee ist auf jeden Fall gut. Durchgang streichen und Abstellraum mit Garderobe kombinieren ist ganz cool. Abstellraum soll ja nur Staubsauger, Wischmop und Kisten Wasser und Bier beherbergen.
Das Wohnzimmer verkleinern zugunsten einer größeren Küche finde ich eher nicht so gut. Wir sind 5 Personen und da will ich im Wohnzimmer genug Platz haben. Derzeit habe ich Rohbaumaß Ess/Küchenbereich von 9,8m mal 3,8m das ist doch schon riesig. Wohnzimmer ist jetzt 4,4m mal 5m und das ist denke ich ganz gut aber auch nicht gross.
Ich werde auch mal zu Küchenplanern gehen, um mir wirklich ein Bild zu machen von den 3,8m Küchenbreite und der Türposition.
Aber diese Treppe auf der Seite ist einfach nicht gut. Dadurch habe ich diese 2 Türen und den eingang mitten in der Küche.
Vielleicht sollte man überlegen ob man unbedingt von der Küche ein Fenster richtung Strasse braucht. Denn sonst kann man da das Gästebad hinstellen und dann würde die Treppe links auch mehr Sinn machen.Kisten mit Wasser und Bier in en Keller, es sei denn Du brauchst davon täglich ein bis 2 Kisten- Ohnehin empfiehlt sich Wassersprudler. Wenn nicht getränkekisten in den Keller, was denn sonst? Die Garderobe dort ist Klasse.Wishmopp, Sauger etc. haben wir z.B. in einem Hochschrank der Küche, das hast doch genug Platz.
Wohnzimmer würde ioch nicht verkleinern, eher noch 2-5qm dazu als weg. Eher von Küche/Essen etwas wegnehmen; muss aber eben planerisch passen. Von der Fläche hast dort eher Überfluss im Verhältnis zu WZ finde ich. Bei Küche und Essen geht zu viel Raum verloren. Die Raumanordnung von Küche/Essen/Wohnen gefällt mir nicht, bleib da hart bis es Dir gefällt !
Ich hab kein Idee gerade und die planetrischen Umsetzung ist keine Stärke von mir. Vom Platzangebot ist es genug, es hapert nur an der Aufteilung. Wie Du sagst, die Treppe müsste unbedingt auf die andere Seite oder vlt sogar anders gesetzt werden. ich dachte auch schon, ob Du die Küche weiter nach vorne schiebst und Duir den Versatz am WZ sparst und die Treppe vlt. drehst. Wie gesagt......muss Planer ran. Der Kamin muss weg dort, eher in eine Ecke aber nicht im Durchgang dort, auch nicht bei 1,30m, da läuft man nur vorbei......sorry
Würfel* schrieb:
Jetzt stehe ich auf dem SchlauchBimsfertigbauten Hoffmann aus Neuwied (Heimbach) baut Garagen aus Bimsdielen auch grenzfolgend.https://www.instagram.com/11antgmxde/
https://www.linkedin.com/company/bauen-jetzt/
M
Murmelstein07.07.20 10:12Mal eine Frage in die Runde:
Ist es totaler Unsinn ein kleines Gäste-WC ohne Dusche fensterlos zu bauen? Ich würde an die stelle des Abstellraums ein 2qm grosses Gäste-WC hinstellen und im Keller dann ein Duschbad. Dadurch hätte ich eine Garderobe direkt links von Haustür und generell einfach viel mehr Spielraum in der Diele.
Im Keller ist dafür an sich genug Platz.

Ist es totaler Unsinn ein kleines Gäste-WC ohne Dusche fensterlos zu bauen? Ich würde an die stelle des Abstellraums ein 2qm grosses Gäste-WC hinstellen und im Keller dann ein Duschbad. Dadurch hätte ich eine Garderobe direkt links von Haustür und generell einfach viel mehr Spielraum in der Diele.
Im Keller ist dafür an sich genug Platz.
P
Pinky030107.07.20 10:15Ich finde es ok, ein reines WC ohne Fenster zu haben. Andere werden dir hier vermutlich anderes sagen Kontrollierte-Wohnraumlüftung (habt ihr doch hoffentlich geplant?) hilft gegen Gerüche, moderne Beleuchtung wirkt genauso gut wie Tageslicht und moderne Fliesen lassen den Raum auch nicht beengt wirken. Für die schöne große Garderobe lohnt sich das in meinen Augen auf jeden Fall!
M
Murmelstein07.07.20 10:18Pinky0301 schrieb:
Ich finde es ok, ein reines WC ohne Fenster zu haben. Andere werden dir hier vermutlich anderes sagen Kontrollierte-Wohnraumlüftung (habt ihr doch hoffentlich geplant?) hilft gegen Gerüche, moderne Beleuchtung wirkt genauso gut wie Tageslicht und moderne Fliesen lassen den Raum auch nicht beengt wirken. Für die schöne große Garderobe lohnt sich das in meinen Augen auf jeden Fall!Kontrollierte-Wohnraumlüftung ist geplant.
Ich finde auch als reines WC würde ich mir hier so viel neuen Raum schaffen, wenn ich auf ein Fenster verzichte. Ich kann ja ein Fenster von WC zur Garage bauen
T
Tolentino07.07.20 10:19Ich habe in meiner ETW ein Duschbad und ein Wannenbad, beide ohne Fenster. So richtig vermisse ich auch kein Fenster. Du solltest aber für eine Entlüftung sorgen. also wenn nicht über zentrale Kontrollierte-Wohnraumlüftung, dann brauchst du eine einzelne Entlüftung.
Ähnliche Themen