ᐅ Grundriss Einfamilienhaus 1 Vollgeschoss Technik und Tageslicht
Erstellt am: 22.07.24 08:21
K
klabauter8614klabauter8614 schrieb:
Trotzdem geben sie mir Hoffnung, dass mein Architekt auch etwas Passendes für uns planen kann.Natürlich kann man was reelles planen.Zwar war mein Ansatz nur schnell mal hingezeichnet, aber was missfällt Dir denn jetzt an #4?
K
klabauter861429.07.24 16:29Also die Skizze und das konstruktive Feedback sind super, von missfallen kann keine Rede sein. Ich hätte da nur ein paar Fragen.
Und im Sinne von "führen lassen" wären diese auch nur "was ist Ihre Meinung" und nicht "das muss jetzt anders".
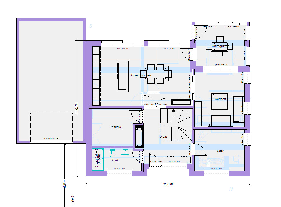
- EG WC ist ein bisschen groß oder nicht? 4-5m2 tun's auch.
- Der Flur ist wie schon erwähnt jetzt noch größer, was mache ich mit dem Riesenraum (große leere Räume kosten sinnlos Geld)? Falls ich das richtig verstanden habe, kommt die Größe durch die mittige Treppe. Ist es dann nicht besser, die Treppe vorne beim Eingang zu planen? Dann verliere ich wohl die Möglichkeit eines Büros im Norden.
- die Garage verdeckt die Hälfte von EG Z5, also quetschen wir links noch ein Fenster hin und dann ist der halbe Raum trotzdem dunkel? Kann mir den Raum noch immer nicht einladend vorstellen.
- Wie komme ich denn in Z2 im OG?
- Wenn ich Z5 8m2 im OG als Büro nutze, ist dann Z6 nicht viel zu groß als Ankleide? Und sollte es besser andersrum, Z3, Z2 und Z8 als Schlafzimmer nutzen und das Z6 als Büro?
Solche Fragen würde ich mit dem Architekten klären, aber du hast gefragt.
Mir helfen diese Dialoge, besser zu verstehen, welche Dinge große Wirkung haben und was vielleicht kleinere.
Und im Sinne von "führen lassen" wären diese auch nur "was ist Ihre Meinung" und nicht "das muss jetzt anders".
- EG WC ist ein bisschen groß oder nicht? 4-5m2 tun's auch.
- Der Flur ist wie schon erwähnt jetzt noch größer, was mache ich mit dem Riesenraum (große leere Räume kosten sinnlos Geld)? Falls ich das richtig verstanden habe, kommt die Größe durch die mittige Treppe. Ist es dann nicht besser, die Treppe vorne beim Eingang zu planen? Dann verliere ich wohl die Möglichkeit eines Büros im Norden.
- die Garage verdeckt die Hälfte von EG Z5, also quetschen wir links noch ein Fenster hin und dann ist der halbe Raum trotzdem dunkel? Kann mir den Raum noch immer nicht einladend vorstellen.
- Wie komme ich denn in Z2 im OG?
- Wenn ich Z5 8m2 im OG als Büro nutze, ist dann Z6 nicht viel zu groß als Ankleide? Und sollte es besser andersrum, Z3, Z2 und Z8 als Schlafzimmer nutzen und das Z6 als Büro?
Solche Fragen würde ich mit dem Architekten klären, aber du hast gefragt.
Mir helfen diese Dialoge, besser zu verstehen, welche Dinge große Wirkung haben und was vielleicht kleinere.
Ich hatte auch mal eine Skizze gemacht.




Mein altes Programm kann leider kein Glasdach darstellen. Ich hoffe, die Phantasie reicht aus dafür.
Mal abgesehen davon, ob das jetzt gefällt oder nicht, möchte ich nochmal auf die fragwürdige Erschließung der Spitze hinweisen. Die Höhen oben reichen bei meiner Skizze zumindest nicht aus, um überhaupt Türen zu setzen. Das bedeutet im Umkehrschluss, man muss alles offen lassen. Da man ja nicht das ganze Dach sinnlos heizen will, würde man vermutlich eine klappbare Deckenluke o.ä. installieren. Das Beispiel vom Architekt hinkt m.E., weil man an der Treppe oben gar nicht mehr links oder rechts vorbei kommt, ohne sich den Kopf zu stoßen. Hier wären Maße hilfreich.
Mein altes Programm kann leider kein Glasdach darstellen. Ich hoffe, die Phantasie reicht aus dafür.
Mal abgesehen davon, ob das jetzt gefällt oder nicht, möchte ich nochmal auf die fragwürdige Erschließung der Spitze hinweisen. Die Höhen oben reichen bei meiner Skizze zumindest nicht aus, um überhaupt Türen zu setzen. Das bedeutet im Umkehrschluss, man muss alles offen lassen. Da man ja nicht das ganze Dach sinnlos heizen will, würde man vermutlich eine klappbare Deckenluke o.ä. installieren. Das Beispiel vom Architekt hinkt m.E., weil man an der Treppe oben gar nicht mehr links oder rechts vorbei kommt, ohne sich den Kopf zu stoßen. Hier wären Maße hilfreich.
klabauter8614 schrieb:
Also die Skizze und das konstruktive Feedback sind super, von missfallen kann keine Rede sein. Ich hätte da nur ein paar Fragen.Ich würde Dir gern alle Fragen beantworten, nur leider deckt sich ständig eine unsichtbare Werbung über den "Beitrag zitieren"-Button.Deshalb mal frei aus der Hand, freier als die Skizze, wohlgemerkt eine Skizze (ich sollte doch wieder zu Karopapier uns Bleistift greifen, damit die Fragesteller das verstehen, dass es hier um keine Ausführungsplanung geht)
Nochmal, die ist in 10 Minuten erstellt.
Und ich weiss nichtm, warum Du ein Problem damit hast, die Garage um nen halben Meter zu versetzen. Aber ich kann Dir versichern, dass die Fensterposition schon anssprechend sein kann, auch wenn die Außenwand etwas von einer Garage bedeckt ist.
Zum Gäste-WC: Du schriebst, dass Eure Eltern für 2 Tage die Woche zu Besuch kommen und das auch noch andauernd. Bei Dir war eine 70 x 75er Dusche eingezeichnet. Insofern reicht 4-5qm eben nicht. Ihr seid um die 40, dann sind die Eltern ja entsprechend auch schon etwas ü65 und in 5 Jahren werden sie 70 sein. .
Die Flur-Größe wird inkl. Treppe dargestellt und ist etwas kleiner. Kleiner als Euer Flur. Aber ich gebe zu, dass ich mir nicht Zeit genommen habe, so ist ja auch die Küche etwas ungenügend für eine gute Möblierung.
Das Schlafzimmer kann man gut über eine aufgeräumte Ankleide betreten. Ein gößere Ankleide könnte zB für Bügelbrett und Koffer gut sein. Irgendwohin müsst Ihr ja mit Eurem Zeugs. Dachraum wird ja wohl eher nicht zu begehen sein, sondern nur für Kisten gut sein.
Und ob man jetzt für das Büro mehr Fläche braucht als für andere Räume, den Vergleich halte ich für etwas kleinkariert.
Wie Du allerdings die Räume nutzen könntest, das steht ja in Deinem Ermessen. ich schreibe Dir dahingehend nichs vor.
Aber grundsätzlich wollte ich nur mal Resonanz von Dir hören. Auch wie Du @K a t j a s Vorschlag findest, kannst Du ja mal von Dir geben.
Im Allen sollte man Dir aber den Rat geben: wenn Du zig Räume zb auch für Büro und Gast benötigst, dann musst Du ggf mit Deinen think-in-big-WZ etwas zurückrudern. Auch 170qm (Pi mal Daumen wegen der Dachschrägen) sind endlich. und Du versuchst überall zu sparen, was einen Mehrwert hat, zB einen geräumigen Technikraum oder ein Dusch-WC, welches wohl auch sehr häufig von Allen genutzt wird.
klabauter8614 schrieb:
Ist es dann nicht besser, die Treppe vorne beim Eingang zu planen?Ja, unter Umständen.klabauter8614 schrieb:
Dann verliere ich wohl die Möglichkeit eines Büros im Norden.das kann man ja dennoch woanders planen.K
klabauter861430.07.24 09:29Ähnliche Themen