Hausbau - Ratgeber
Bauherrenhilfe
- Bauherrenhilfe vor Vertragsabschluss
-- Warum einen unabhängigen Baubetreuer?
-- Vertragsgrundlagen
-- Bausumme
-- Zahlungsplan zur Kostenkontrolle
-- Pflichten des Bauherren vor Vertragsabschluss
-- Unterlagen beim Hausbau vor Vertragsabschluss
- Bauherrenhilfe nach Vertragsabschluss
-- Bauantrag bei Behörden
-- Bau-Genehmigungsverfahren bei Baubehörden
-- Bauspezifische Versicherungen
-- Bauzeitenplan
-- Baubeginn - die Letzten Pflichten der Bauherrschaft
- Bauherrenhilfe während der Bauzeit
- Gewährleistungsansprüche
- Bauabnahme
Baufinanzierung
- Baufinanzierung - Allgemeine Fragen
- Kreditarten
- Kredit-Konditionen
- Bausparen
- Staatliche Förderungen
- Verkehrswert
- Haushaltsrechnung und Bonität
Hausbau Planung
- Haustypen
- Hausbau Vorbereitungsarbeiten
- Das Baugrundstück
- Baugrund beim Hausbau
- Baurecht
- Gebäudeschutz
- Erdarbeiten und Wasserhaltung
- Stützmauern
- Einfriedung
- Untergeschoss
- Kanalisation
- Tragende Elemente
- Nichttragende Innenwände
- Fundation / Fundament
- Deckenkonstruktionen
- Dächer
- Kaminanlagen
- Treppen Rampen Leitern
- Dachbeläge und Spengler
- Fenster
- Sonnen und Wetterschutz
- Aussenputze
- Einbauten, Küchen, Türen
- Bodenbeläge und Unterlagsböden
- Parkett
- Gips, Wand, Decke
Haustechnik und Energie
- Heiztechnik
- Lüftung und Klimatechnik
- Sanitärtechnik
- Elektrotechnik
- Erneuerbare Energie
Whirlpools / Jacuzzi
Hausbau Magazin
- Baufinanzierung trotz Krise?
- Das Blockhaus
- Moderne Dämmstoffe im Vergleich
- Erker Vor- und Nachteile
- Glasflächen beim Hausbau
- Günstig ein Haus Bauen
- Mediterraner Hausbaustil
- Mehrgenerationenhaus
- Moderne Architektur
- Gartengestaltung leicht gemacht
- Traditioneller Ziegelbau
- Villa als höchster Traum
- Im Eigenheim Ruhestand geniessen
- Altbau sanieren
- Kauf einer Holzgarage
- Immobilienmakler
- Arbeitshandschuhe für den Winter
- Zuhause verschönern
- Outdoor-Plissees
- Schlafzimmer planen
- Terrassenüberdachung
- Wohngebäudeversicherung
- Zaunarten und Eigenschaften
- Hauseingang gestalten
- Der perfekte Grundriss
- Sparsamer heizen im Altbau
- Einfamilienhaus smart finanzieren
- Planung einer PV-Anlage
- Neues Haus
- Immobilienfinanzierung
- Installation einer Photovoltaikanlage
- Asbest erkennen und entfernen
- Gartenpflege im Frühling – worauf achten
- Sauna im Fokus - Wellness zuhause
- Erfolgreich vermieten
- Die perfekte Winterbekleidung
- Das Niedrigenergiehaus
- Der April und seine Stürme
- Architektonische Vielfalt
- Ökologisch und nachhaltig bauen
- Das perfekte Schlafzimmer
- Nachhaltige Energieversorgung
- Zukunftsorientiert bauen
- Nachhaltigkeit beim Hausbau
- Tiny Houses
- Wärmepumpen als nachhaltige Heizvariante
- Maßgeschneiderten Kleiderschrank
- Der richtige Baukredit
- Ratgeber für erfolgreichen Hausbau
- Haus als Altersvorsorge
Do-it-yourself Anleitungen
- Verlegeanleitung für Bodenbeläge und Parkett
- Bodenbeläge und Parkett reinigen und pflegen
- Malerarbeiten am Haus
- Garten Tipps
- Umzug und Reinigung

ᐅ Grundriss 200m² Einfamilienhaus, Hochparterre, Bestandsgrundstück, Doppelgarage

Erstellt am: 06.02.25 23:45
G
Gustav5789
K a t j a19.02.25 20:41
ypg schrieb:

Denn Eure 507qm (19,5 x 26) abzüglich 117qm (19,5 x 6) Zufahrt macht 390qm. Und das wollt Ihr mit 100qm Grundfläche plus Doppelgarage plus AB zupflastern. Da bleibt halt nix. . Sorry, kaum etwas.
Ja, das ist wirklich bescheiden für diese Megabude. Ich habe mal eine Skizze gemacht mit dieser Anordnung.


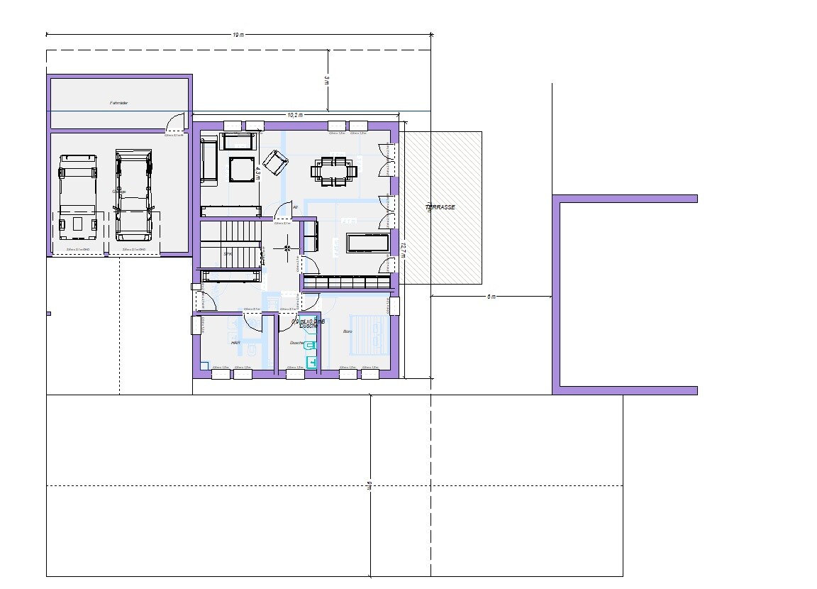
Grundrissplan eines Wohnhauses mit Garage, Eingang und Terrasse.



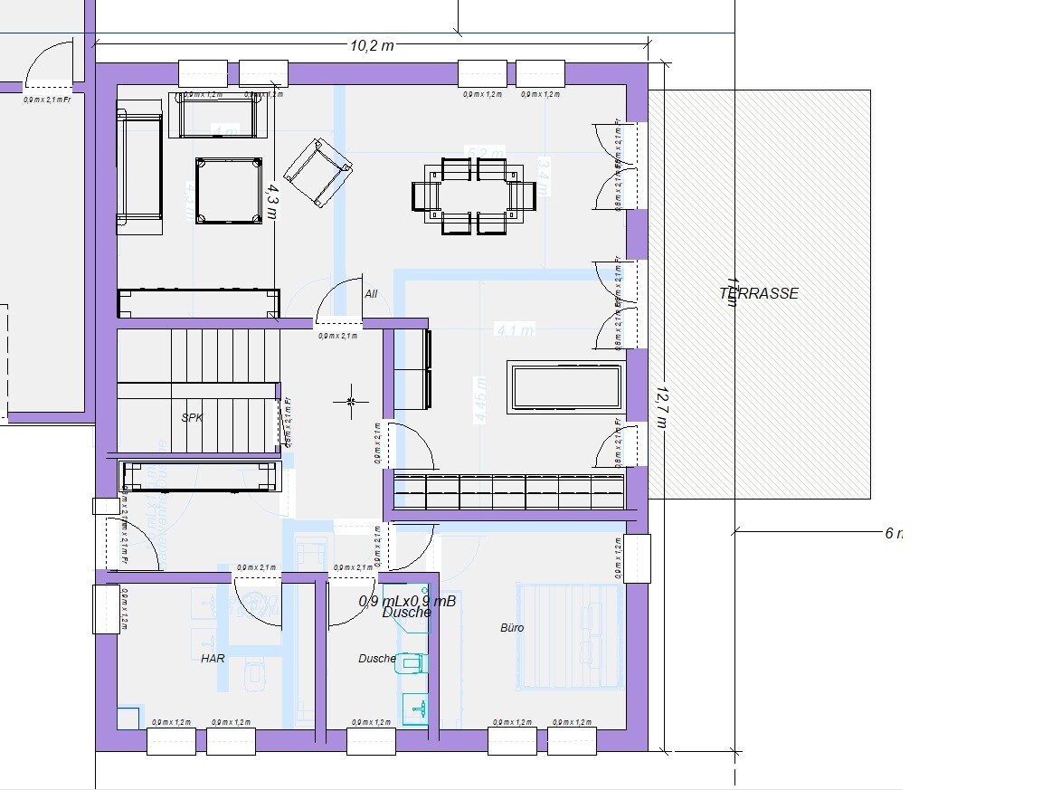
Grundriss eines Hauses mit Terrasse, Büro, HAR, Dusche, Treppenhaus und Möbeln.


Grundriss eines Hauslayouts mit Küche, Wohnzimmer, Schlafzimmer, Bad und Terrasse.


Durch die dicke Garage schiebt sich die Hütte sehr nah an das Elternhaus. Die Westterrasse ist abends tatsächlich schnell im Schatten dadurch. Ob das so der Brüller ist?
G
Gustav5789
19.02.25 20:54
Vielen Dank für die Mühe, meine Frau war heute Nachmitta wohl auch dran gesessen und hat versucht etwas zu zeichnen, das nah an das von dir herankommt.
Handgezeichneter Grundriss eines Hauses mit mehreren Räumen und Türen.

Handgezeichneter Grundrissplan auf Graphpapier, zeigt Räume mit Türen und Maßangaben.
Y
ypg
19.02.25 21:00
Gustav5789 schrieb:

meine Frau war heute Nachmitta wohl auch dran gesessen
Sehr sympathisch. Maßstab? Was ist ein Kästchen? Oder wieviel Köstchen soll ein Meter sein?
Die Hausaufgabe wäre jetzt, das Haus auf das Grundstück zu setzen. Zeichnerisch.
K a t j a19.02.25 21:05
Gustav5789 schrieb:

Zum Dach kann ich nicht viel sagen, unser Architekt hat keine Ahnung, was die maximale Bauhöhe ist. Er würde sich am Vorbescheid orientieren und nicht weiter gehen. Somit würde sich eine Gebäudehöhe von 8m ergeben. 50cm mindesten vom Boden weg ergeben 7.50 nutzbar? Kann man bei der Höhe das Dach wirklich nutzen?
Was steht denn in dem Vorbescheid dazu? Wenn nur die 8m gefragt wurden, werden auch nur die geprüft. Wie hoch sind denn die anderen Häuser ringsum?
Das wäre wirklich eine Option, wo Ihr nochmal nachhaken solltet.
Warum? Das Dach musst Du sowieso bauen. Die Fläche darunter entsteht immer und ist einfach da. Die Decke tragfähig zu machen und die Schrägen zu isolieren kostet zwar, ist aber billig im Vergleich zum Flächengewinn. Oder anders ausgedrückt: die wahnsinnig riesige Fläche unter dem Dach nicht zu nutzen, ist Verschwendung. Dafür braucht es aber schon eine gewisse Steigung und Höhe.
G
Gustav5789
19.02.25 21:43
ypg schrieb:

Sehr sympathisch. Maßstab? Was ist ein Kästchen? Oder wieviel Köstchen soll ein Meter sein?
Die Hausaufgabe wäre jetzt, das Haus auf das Grundstück zu setzen. Zeichnerisch.
25cm entspricht einem Kästchen. die Außenwände sind zwar 50cm breit, aber der Einfachheit wollte sie nicht genauer werden.
K a t j a schrieb:

Was steht denn in dem Vorbescheid dazu? Wenn nur die 8m gefragt wurden, werden auch nur die geprüft. Wie hoch sind denn die anderen Häuser ringsum?
Das wäre wirklich eine Option, wo Ihr nochmal nachhaken solltet.
Warum? Das Dach musst Du sowieso bauen. Die Fläche darunter entsteht immer und ist einfach da. Die Decke tragfähig zu machen und die Schrägen zu isolieren kostet zwar, ist aber billig im Vergleich zum Flächengewinn. Oder anders ausgedrückt: die wahnsinnig riesige Fläche unter dem Dach nicht zu nutzen, ist Verschwendung. Dafür braucht es aber schon eine gewisse Steigung und Höhe.
Zur Höhe steht nichts drinnen, nur dass sich das Gebäude in das Ortsbild einfügt und deswegen genehmigt wird.
Das Haus steht im Grundstück leicht erhöht. Das wurde wohl damals Bewusst aufgeschüttet um einen Keller unterzukriegen. Dadurch steht das Bestandshaus aber im Vergleich zu dem umliegenden Häusern erhöht. Wieviel genau, kann ich nicht sagen, aber zumindest vom Giebelfenster aus kann ich auf die umliegenden Dächer sehen.

Wie kann ich eine Treppe ins OG führen? Das geht doch nur, wenn die Treppe wieder mittig platziert wird, sonst komme ich mit den Dachschrägen doch gar nicht hin oder?
K a t j a19.02.25 23:00
Gustav5789 schrieb:

Wie kann ich eine Treppe ins OG führen? Das geht doch nur, wenn die Treppe wieder mittig platziert wird, sonst komme ich mit den Dachschrägen doch gar nicht hin oder?
Meinst Du ins Dachgeschoss?
Das kommt auf die Dachschräge an. Bei 20° brauchst Du keine Treppe bauen. Dann kannst Du da eh nicht stehen. Deswegen ja die Frage nach der Gesamthöhe.

Hier mal ein Beispiel bei 35° Dach:


Grundriss eines Hauses mit Doppelgarage, Treppenhaus, Wohn- und Essbereich, Küchenbereich, Terrasse.


Grundriss eines Hauses mit Terrasse, Wohnzimmer mit Sofa, Essbereich, Technikraum und Treppenhaus.


Detaillierter Grundriss eines Wohnhauses mit Bad, Küche, Wäsche, Treppen und Terrasse.


Grundriss eines Innenraums mit Büro, Elternzimmer, Dusche und Terrasse.



Zweistöckiges Haus mit grauem Putz, links Garage, Kieszufahrt, grüne Umgebung


Haus 50cm angehoben. Firsthöhe so bei ca. 9,50m.
Man merkt sofort, wie sich alles entspannt. Vermutlich könnte man noch weiter optimieren und noch den ein oder anderen cm raus holen. Ich habe mich jetzt nicht sehr angestrengt diesbezüglich. Wenn es denn unbedingt sein muss, kann man die Kiste auch wieder drehen mit der Terrasse im Westen. Ich würde es ja nicht machen. Aber dazu bräuchte es eben die Höhe.
dachtreppegrundstück