ᐅ Grundriss 166qm Stadtvilla mit zwei Vollgeschossen, 655qm Grundstück
Erstellt am: 06.02.25 11:55
S
SawdustHallo,
nachdem mir empfohlen wurde, euch mal unseren Grundriss zur Beurteilung zu zeigen, werde ich das hier mal tun und freue mich auf eure Ideen, Meinungen und Kritik!
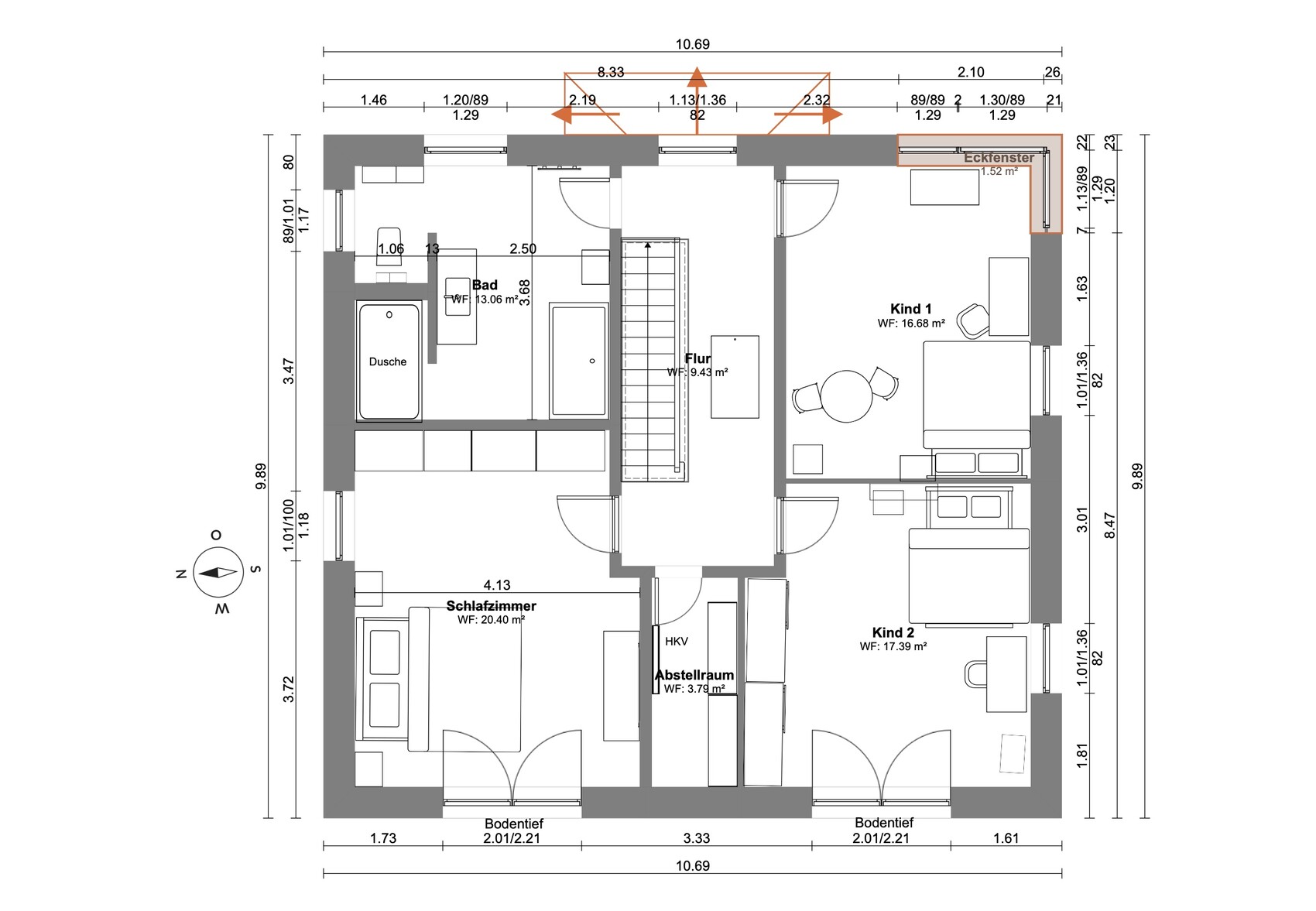
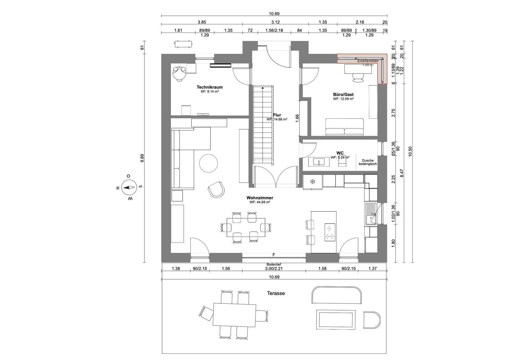
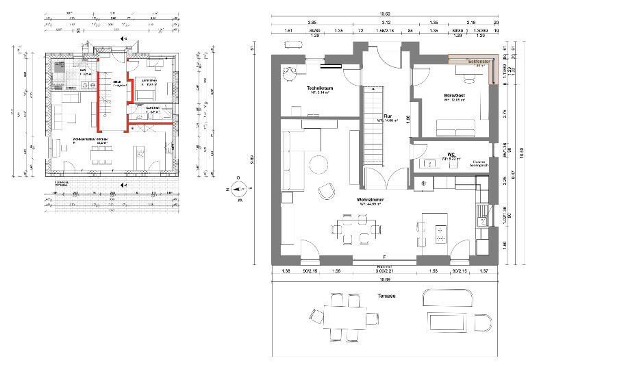
Wir bauen eine Massivhaus Stadtivlla auf einem 655qm Grundstück in einem Neubaugebiet. Nach Westen haben wir einen schönen Feldblick, wo bis zum Horizont kein Haus steht. Bauvertrag ist unterschrieben, jetzt sind wir gerade in der Detailplanung um den Bauantrag fertig zu machen. Fragebogen habe ich unten ausgefüllt. Die Pläne sind nicht die Pläne des Architekten sondern welche die ich aus einer Planungssoftware rausgezogen habe, in welcher ich das Haus nachbaue. Grund ist, dass die Architektenpläne einige Änderungen noch nicht drin haben und ich euch den neuesten Stand der Planung zeigen will. Bei den Außenansichten sehen die Eckfenster etwas komisch aus, das bitte ignorieren. Auf der Nordseite ist für die Zukunft noch ein Carport angedacht. Die großen bodentiefen Fenster im OG sind auch nicht korrekt dargestellt, die haben natürlich noch eine horizontale Strebe in der Mitte.
Für den Allraum haben wir momentan noch den Gedanken einen 5 Meter breiten Erker für ca. 0,7m nach außen zu setzen und mit einer großen Hebeschiebetür auszustatten. Würde noch einmal deutlich mehr kosten aber würde das Platzproblem im Essbereich beheben und natürlich super aussehen.
Vielen Dank schonmal an alle, die sich die Zeit nehmen um das hier zu beurteilen.
Bebauungsplan/Einschränkungen
Größe des Grundstücks 655qm
Hang nein
Grundflächenzahl 0,3
Geschossflächenzahl Maximal zwei Vollgeschosse
Anzahl Stellplatz 2
Geschossigkeit II
Dachform Walmdach
Stilrichtung Stadtvilla
Anforderungen der Bauherren
Stilrichtung, Dachform, Gebäudetyp Stadtvilla mit Walmdach und zwei Vollgeschossen
Keller, Geschosse kein Keller
Anzahl der Personen, Alter Zwei Personen, 30&38, Kinder geplant
Raumbedarf im EG, OG
Büro: Familiennutzung oder Homeoffice? Ein Büro ist gewünscht, welches auch als Gästezimmer benutzt werden kann.
offene oder geschlossene Architektur offene Architektur
konservativ oder moderne Bauweise modern
offene Küche, Kochinsel offene Küche
Anzahl Essplätze 6
Kamin nein
Musik/Stereowand ja
Balkon, Dachterrasse nein
Garage, Carport ist für später geplant
Nutzgarten, Treibhaus nein
Hausentwurf
Von wem stammt die Planung:
Auf Grundlade eines Kataloggrundriss des Bauunternehmers selber geplant und vom Architekten des Bauunternehmers überprüft und für gut befunden
Was gefällt besonders? Warum?
-Große Fenster zur Terrassenseite mit Blick auf weites Feld
-Gerade Treppe
-Büro mit Ostfenster
-Schlafzimmer mit Blick aufs Feld Richtung Westen
-Küche im Süden
-Offener Wohnbereich mit Abtrennung zum Flur
-recht große Kinder- und Schlafzimmer
Was gefällt nicht? Warum?
-Essbereich etwas schmal
-Aufteilung Bad im OG noch unsicher
Preisschätzung laut Architekt/Planer: 550k
Persönliches Preislimit fürs Haus, inkl. Ausstattung: 600k
favorisierte Heiztechnik: Luft-Wasser-Wärmepumpe
Wenn Ihr verzichten müsst, auf welche Details/Ausbauten
-könnt Ihr verzichten: Dusche im Gästebad, Erker am Eingang









nachdem mir empfohlen wurde, euch mal unseren Grundriss zur Beurteilung zu zeigen, werde ich das hier mal tun und freue mich auf eure Ideen, Meinungen und Kritik!
Wir bauen eine Massivhaus Stadtivlla auf einem 655qm Grundstück in einem Neubaugebiet. Nach Westen haben wir einen schönen Feldblick, wo bis zum Horizont kein Haus steht. Bauvertrag ist unterschrieben, jetzt sind wir gerade in der Detailplanung um den Bauantrag fertig zu machen. Fragebogen habe ich unten ausgefüllt. Die Pläne sind nicht die Pläne des Architekten sondern welche die ich aus einer Planungssoftware rausgezogen habe, in welcher ich das Haus nachbaue. Grund ist, dass die Architektenpläne einige Änderungen noch nicht drin haben und ich euch den neuesten Stand der Planung zeigen will. Bei den Außenansichten sehen die Eckfenster etwas komisch aus, das bitte ignorieren. Auf der Nordseite ist für die Zukunft noch ein Carport angedacht. Die großen bodentiefen Fenster im OG sind auch nicht korrekt dargestellt, die haben natürlich noch eine horizontale Strebe in der Mitte.
Für den Allraum haben wir momentan noch den Gedanken einen 5 Meter breiten Erker für ca. 0,7m nach außen zu setzen und mit einer großen Hebeschiebetür auszustatten. Würde noch einmal deutlich mehr kosten aber würde das Platzproblem im Essbereich beheben und natürlich super aussehen.
Vielen Dank schonmal an alle, die sich die Zeit nehmen um das hier zu beurteilen.
Bebauungsplan/Einschränkungen
Größe des Grundstücks 655qm
Hang nein
Grundflächenzahl 0,3
Geschossflächenzahl Maximal zwei Vollgeschosse
Anzahl Stellplatz 2
Geschossigkeit II
Dachform Walmdach
Stilrichtung Stadtvilla
Anforderungen der Bauherren
Stilrichtung, Dachform, Gebäudetyp Stadtvilla mit Walmdach und zwei Vollgeschossen
Keller, Geschosse kein Keller
Anzahl der Personen, Alter Zwei Personen, 30&38, Kinder geplant
Raumbedarf im EG, OG
Büro: Familiennutzung oder Homeoffice? Ein Büro ist gewünscht, welches auch als Gästezimmer benutzt werden kann.
offene oder geschlossene Architektur offene Architektur
konservativ oder moderne Bauweise modern
offene Küche, Kochinsel offene Küche
Anzahl Essplätze 6
Kamin nein
Musik/Stereowand ja
Balkon, Dachterrasse nein
Garage, Carport ist für später geplant
Nutzgarten, Treibhaus nein
Hausentwurf
Von wem stammt die Planung:
Auf Grundlade eines Kataloggrundriss des Bauunternehmers selber geplant und vom Architekten des Bauunternehmers überprüft und für gut befunden
Was gefällt besonders? Warum?
-Große Fenster zur Terrassenseite mit Blick auf weites Feld
-Gerade Treppe
-Büro mit Ostfenster
-Schlafzimmer mit Blick aufs Feld Richtung Westen
-Küche im Süden
-Offener Wohnbereich mit Abtrennung zum Flur
-recht große Kinder- und Schlafzimmer
Was gefällt nicht? Warum?
-Essbereich etwas schmal
-Aufteilung Bad im OG noch unsicher
Preisschätzung laut Architekt/Planer: 550k
Persönliches Preislimit fürs Haus, inkl. Ausstattung: 600k
favorisierte Heiztechnik: Luft-Wasser-Wärmepumpe
Wenn Ihr verzichten müsst, auf welche Details/Ausbauten
-könnt Ihr verzichten: Dusche im Gästebad, Erker am Eingang
Sawdust schrieb:
Die Pläne sind nicht die Pläne des Architekten sondern welche die ich aus einer Planungssoftware rausgezogen habe, in welcher ich das Haus nachbaue. Grund ist, dass die Architektenpläne einige Änderungen noch nicht drin haben und ich euch den neuesten Stand der Planung zeigen will.Dann zeige mal die Originalpläne des Architekten dazu, am besten (auch) in der Version des unveränderten Katalogmodells. So sehen wir u.a. am klarsten, welche Fehler erst von Dir hineingeplant wurden. Und lies´ hier ´mal mit dem Suchbegriff "Pfuschertaschen".https://www.instagram.com/11antgmxde/
https://www.linkedin.com/company/bauen-jetzt/
11ant schrieb:
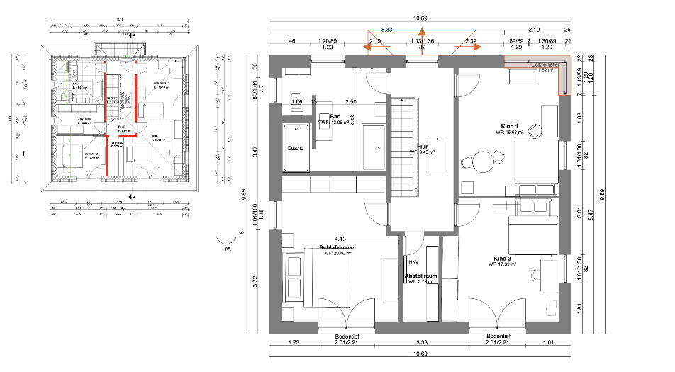
Dann zeige mal die Originalpläne des Architekten dazu, am besten (auch) in der Version des unveränderten Katalogmodells. So sehen wir u.a. am klarsten, welche Fehler erst von Dir hineingeplant wurden. Und lies´ hier ´mal mit dem Suchbegriff "Pfuschertaschen".Also wir haben bei der Firma schon eine individuelle Planung geordert und auch bezahlt. Das ist jetzt keine "Abänderung" eines bestehenden Hauses. Ich fragte auch nach Rastermaßen etc und da wurde gesagt, da sind sie sehr flexibel durch die Massivbauweise aber es gibt natürlich bestimmte Maße wo sie drauf achtet.Ich hab man den letzten Stand des Architekten angehängt. Das Haus, was als Inspiration diente, habe ich auch gescreenshottet. Das war aber wirklich deutlich anders und diente eben am Ende wirklich nur der Inspiration.
Noch zum Thema Pfuschertaschen. Mein "Nachbau" im CAD Programm ist nur für mich persönlich und ist nur auf Grundlage des Architektenentwurfs entstanden. Ich würde mir beim besten Willen nicht zutrauen, dass ich das nur ansatzweise fachlich korrekt mache. Die Verantwortung dafür liegt am Ende beim Architekten der Baufirma.
Sawdust schrieb:
Also wir haben bei der Firma schon eine individuelle Planung geordert und auch bezahlt. Das ist jetzt keine "Abänderung" eines bestehenden Hauses. [...] Ich hab man den letzten Stand des Architekten angehängt. Das Haus, was als Inspiration diente, habe ich auch gescreenshottet. Das war aber wirklich deutlich anders und diente eben am Ende wirklich nur der Inspiration.Erst einmal ein Like für Deine vorbildliche Reaktion auf meine Nachfrage!Sawdust schrieb:
Noch zum Thema Pfuschertaschen. Mein "Nachbau" im CAD Programm ist nur für mich persönlich und ist nur auf Grundlage des Architektenentwurfs entstanden. Ich würde mir beim besten Willen nicht zutrauen, dass ich das nur ansatzweise fachlich korrekt mache. Die Verantwortung dafür liegt am Ende beim Architekten der Baufirma.Die Verantwortung beim Gärtner Bock liegen zu haben, ist insofern nicht ganz ungefährlich, wie Architekten der Generation CAD regelmäßig den Oktameterraster ignorieren. Ein "Nachbau" in einem anderen Planungsprogramm ist ebenfalls problematisch, weil sich in den Medienbrüchen Fehlerkeime tummeln. Besser man nimmt während der Bearbeitungsrunden konsequent die analoge Arbeitsweise zu Hilfe, d.h. operiert mit Bleistift, Butterbrotpapier und Passerkreuzen A und C, sodaß isoliert nur die Änderungen paßgenau eingepflegt werden, oder man verwendet (auf beiden Seiten !) eine Jedermannsoftware mit Exportfunktion in das Profi-CAD. Ich weißer alter Mann bevorzuge die erstgenannte Methode, das ist ein Stück weit eine individuelle Kulturfrage.Sawdust schrieb:
Ich fragte auch nach Rastermaßen etc und da wurde gesagt, da sind sie sehr flexibel durch die Massivbauweise aber es gibt natürlich bestimmte Maße wo sie drauf achtet.Noch eine Kulturfrage, bei der es auf Kommunikation ankommt; denn es gibt hier mehrere "richtige" Wege, von denen die oberste Priorität darin liegt, daß sich Bauherr und Architekt einigen, welche man anwenden will (ungefähr vglb. der Kabelbelegung nach TIA568 A oder B). Ich bevorzuge als Masterkante, daß die konstruktionswandäußere Steinkante der Außenwand (und davon abgeleitet die nach außen zeigende einer tragenden Innenwand) auf der Rasterlinie liegt, und die weiteren "Rindenschichten" der Außenwand ihrer arbeitstechnischen Zeithierarchie gemäß folgen. Ebenso entsprechend dieser Logik wende ich als weitere Vorfahrtsregel an, daß die nichttragenden Innenwände zwischen den tragenden Innenwänden (hier rasterfrei) linear geschoben werden. Auch wo nichttragende Innenwände nur mit ranggleichen Kollegen zusammenstoßen, sollte man möglichst ein Prinzip konsequent durchhalten. Relevant sind die vorgenannten Regeln besonders da, wo (Stichwort tragende Wände Kaliber 175, bzw. Gipsdielen Kaliber 100) Wandstärken auf halbe Taktschritte oder gar nicht auf das Rastermaß "aufgehen". Dies als auszugsweises Beispiel meines Regelnsatzes, hierzu mag es von B bis Z noch weitere "Religionen" geben - wichtig ist daher vor allem, daß die miteinander Planenden darüber sprechen. Ich empfehle hier dem Bauherrn, sich "Praktikabilität vor Hierarchie" dem Architekten anzupassen. Im Steinbau ist nach meiner Erfahrung ein Taktmaß von 75 cm für Großschritte (= 3 Kleinschritte zu 25 cm) zweckmäßig. Je mehr eine konkrete Entwurfsvorlage Verwendung findet, desto obsoleter wird der vorstehende Satz.Mit dem saubersten Überbindemaß und geringsten Verschnitt operierst Du, wenn Du von ungekürzten Elementen von (ggf. inklusive Fuge) 25 cm bei monolithischen Binderverbänden bzw. 50 cm (bei Porenbeton teilweise 60 cm) für die Läuferverbände mehrschaliger Wände und 62,5 cm (teilweise 60 cm) für Leichtbauwände ausgehst.
Die (wie gesagt teilweise individuell auszuhandelnden) Regeln und Maße der beiden vorstehenden Absätze sollte man überprüfen, bevor man einen Entwurf zur Grundlage einer Bearbeitung macht. Ob diese dann alt- oder neumodisch erfolgt, ist dann nachrangig.
https://www.instagram.com/11antgmxde/
https://www.linkedin.com/company/bauen-jetzt/
K
K a t j a06.02.25 19:20Der Entwurf ist zumindest mal ein Ansatz, aber da lässt sich m.E. noch mehr raus holen bzw. verbessern.
Über folgende Punkte solltet Ihr nachdenken:
EG
An Eurer Stelle würde ich noch weitere Grundrisse ausprobieren und Alternativen vergleichen. Vielleicht finden wir in den Archiven noch die ein oder andere Idee, um noch etwas mehr Platz für Euch zu gewinnen. Kernfrage dabei ist oft die Treppe als prägendes Element. Wie wichtig ist es, dass sie gerade ist? Wäre auch eine Podesttreppe akzeptabel oder eine Wendelung hinnehmbar, wenn dafür an anderer Stelle mehr raus springt?
Über folgende Punkte solltet Ihr nachdenken:
EG
- Die Treppenrichtung ist zwar günstig, damit man den Dreck nicht nach oben trägt, raubt Euch aber enorm viel Platz im WZ. Zudem schlägt die WZ Tür vor den Antritt. Das ist ja schon fast eine Gefahrenquelle. Dazu kommt, dass der Flur so elend lang ist. Ich würde sie drehen und dafür dem Dreck lieber mit Saugroboter entgegen wirken.
- Problematisch finde ich auch die Anordnung der Räume. Das Carport in diesem Winkel so dicht neben dem Haus ist gelinde gesagt Blödsinn. Das nimmt Euch sowieso das Licht auf der Seite. Also kann es auch bis ran gebaut werden. Das ist natürlich schlecht für das Wohnzimmer. Dafür hat das Gäste-WC sozusagen einen Sonnenplatz. Für ein stilles Örtchen m.E. etwas verschwendet.
- Der ganze Allraum ist leider nur eine schmales L-Zimmer. Ein Gefühl von Großzügigkeit fehlt vollkommen.
- Der Abstellraum ist so dann wirklich zu schmal. Mann kann sich ja kaum drehen. So richtig was abstellen kann man auch nicht, da nur schmale Schränke rein passen. Dafür ist der qm zu teuer, um solche faulen Kompromisse zu machen.
- Das Bad finde ich so okay, allerdings ist die Dusche etwas finster.
An Eurer Stelle würde ich noch weitere Grundrisse ausprobieren und Alternativen vergleichen. Vielleicht finden wir in den Archiven noch die ein oder andere Idee, um noch etwas mehr Platz für Euch zu gewinnen. Kernfrage dabei ist oft die Treppe als prägendes Element. Wie wichtig ist es, dass sie gerade ist? Wäre auch eine Podesttreppe akzeptabel oder eine Wendelung hinnehmbar, wenn dafür an anderer Stelle mehr raus springt?
Sawdust schrieb:
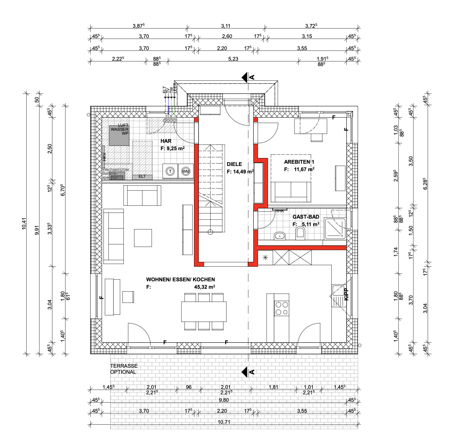
Also wir haben bei der Firma schon eine individuelle Planung geordert und auch bezahlt.Da hätte an Eurer Stelle zu meiner Kundenerwartung gehört, angesichts der Zielgröße 165/166 qm darauf hingewiesen zu werden, daß 160 qm in einem aktuellen Förderprogramm eine Grenze sind. Ich habe - den Inspirationsentwurf weglassend, weil ich die Individualisierung gelungener und für einen sinnvollen Vergleich auch zu stark abweichend finde, OG und EG vorher/nachher einmal zusammengefaßt und auch den deformatierten Absatz meines Beitrages #4 nochmals in der Originalversion angehangen:https://www.instagram.com/11antgmxde/
https://www.linkedin.com/company/bauen-jetzt/
Ähnliche Themen