C
checker7914.09.16 13:06Hallo zusammen,
nachdem ich hier schon viele ehrliche Feedbacks gesehen habe, bitte ich Euch auch mir eines zu geben. Wir haben bereits eine Baulücke im Dorfkern erworben und planen jetzt ein Fertighaus.
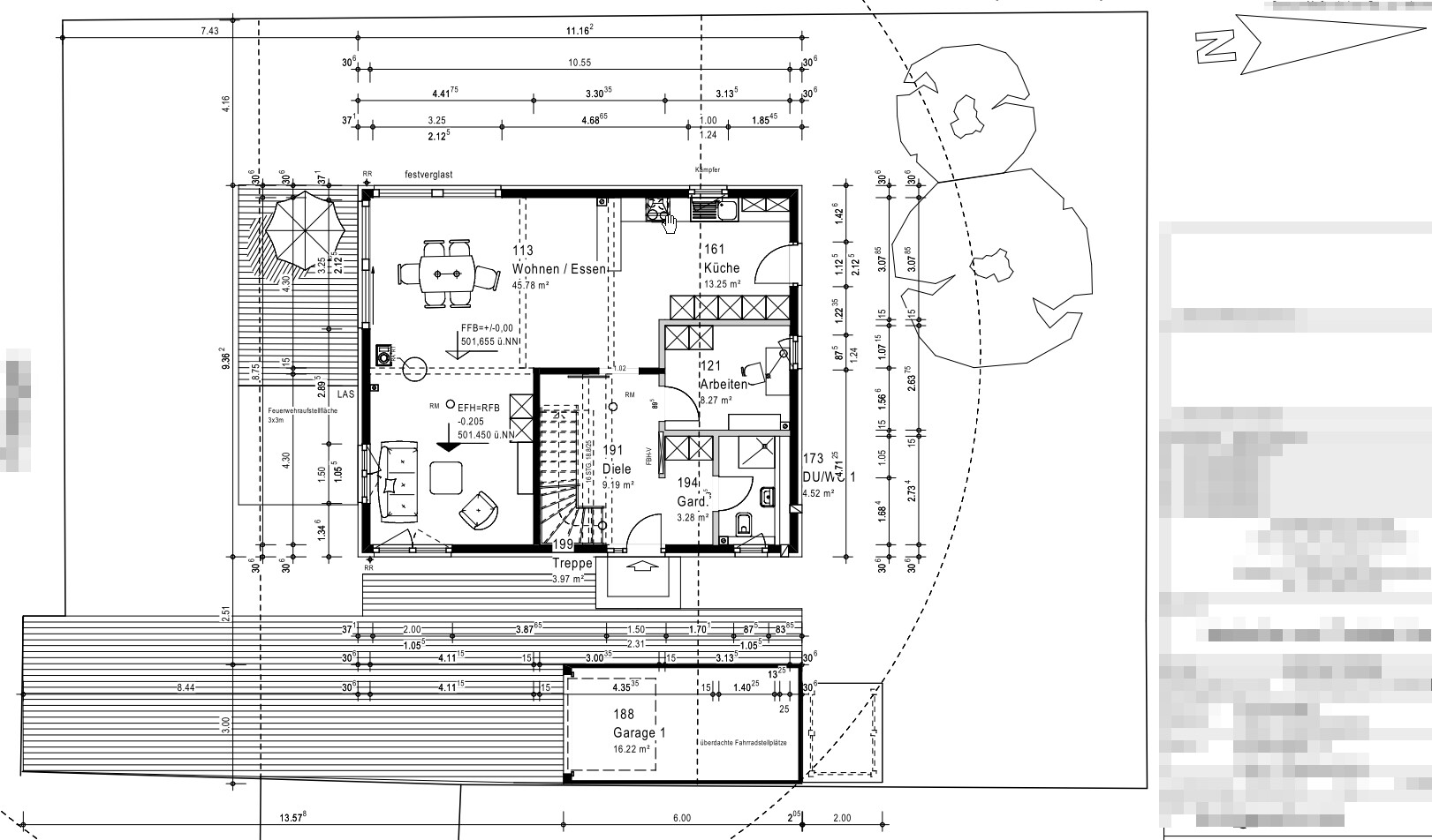
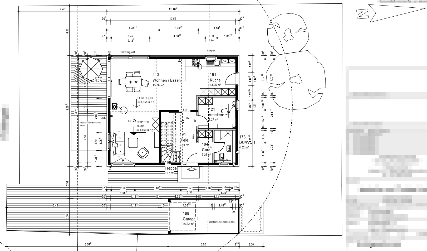
Bebauungsplan/Einschränkungen
Bebauungsplan schränkt uns nach §34 ein, wobei in der direkten Umgebung alles vorhanden ist: Beide Giebelausrichtungen, 2,0 Geschosse, Satteldächer von ca. 25 ° bis ca. 40 °. Außerdem haben die direkten Nachbarn das Baufenster Richtung Norden überbaut, sodass wir das auch so genehmigt bekommen sollten.
Größe des Grundstücks
530 m²
Hang
keinen
Geschossigkeit
2,0
Dachform
Satteldach von ca. 25 ° bis ca. 40 °
Stilrichtung
Satteldach
Ausrichtung
Nach §34 beide Ausrichtungen möglich.
Anforderungen der Bauherren
Stilrichtung, Dachform, Gebäudetyp
offen, modern, Satteldach, hoher Kniestock
Keller, Geschosse
Keller, EG, OG
Anzahl der Personen, Alter
4 Personen
3, 5, 37 und 42 Jahre
Raumbedarf im EG, OG
EG: Wohnzimmer, Esszimmer, Küche, Arbeitszimmer, Gäste-Bad, Garderobe
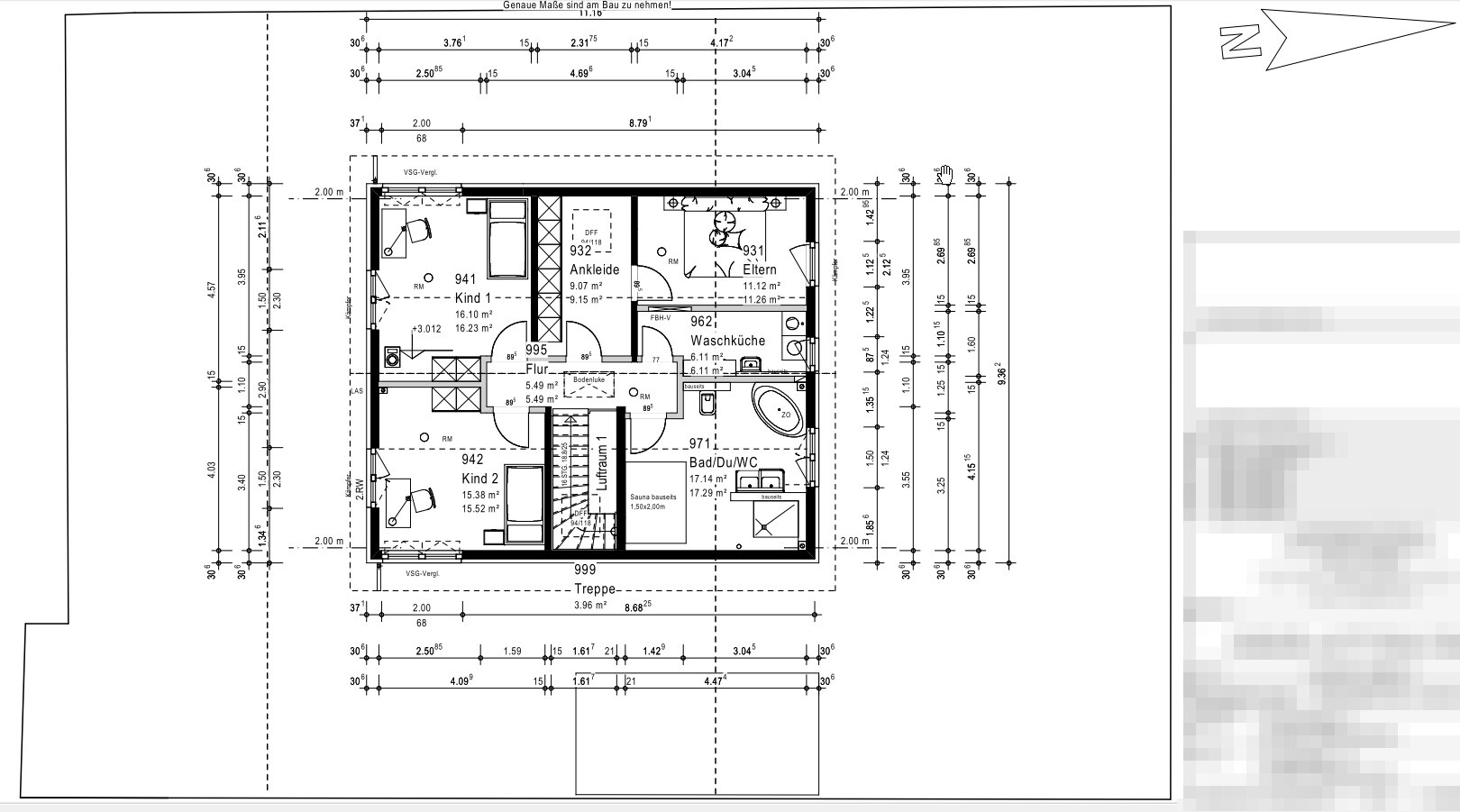
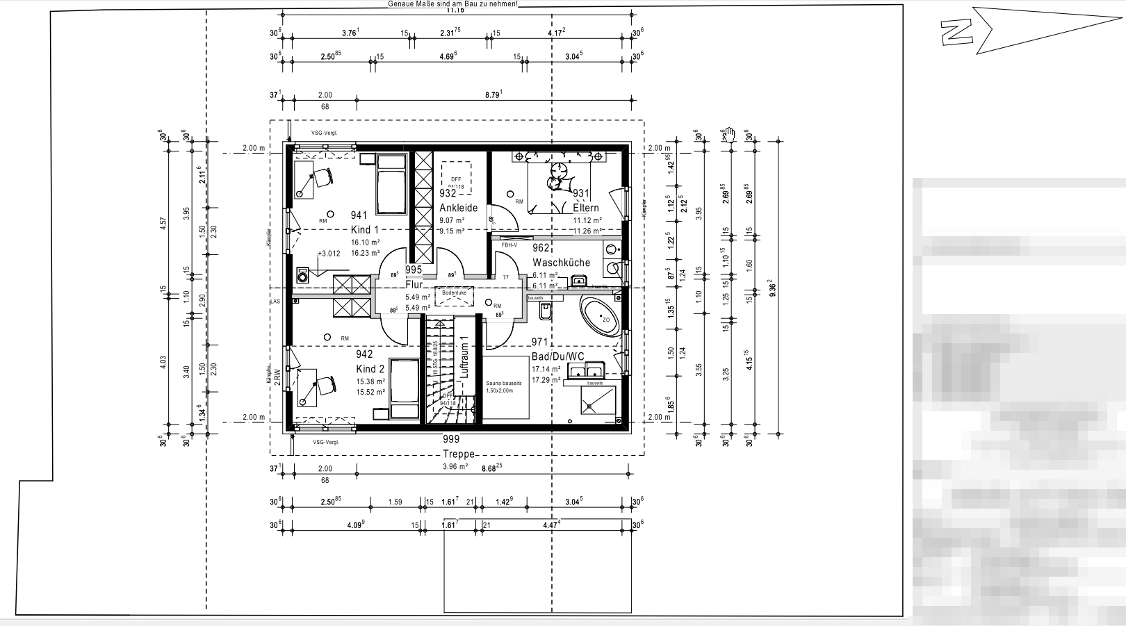
OG: Kind 1, Kind 2, Eltern, Ankleide, Waschküche, Badezimmer inkl. Sauna
Schlafgäste pro Jahr
selten
Architektur
+ offene Architektur
+ moderne Bauweise
+ offene Küche, optional Kochinsel
Anzahl Essplätze
6
Kamin
ja
Musik/Stereowand
nein
Balkon, Dachterrasse
nein
Garage
Einzelgarage, dahinter Gartenhaus für Fahrräder, Rasenmäher etc.
Nutzgarten, Treibhaus
nein
weitere Wünsche/Besonderheiten/Tagesablauf
Geplant ist ein Fertighaus in Holzständerbauweise in Kfw 70 Ausführung (Gasheizung + Solar) mit 2,10 m Kniestock und 160 m² Wohnfläche.
Hausentwurf
Von wem stammt die Planung?
Architekt nach unseren Wünschen
Was gefällt nicht?
Küche: Gerne würden wir hier Euren Input haben, wie Ihr Fenster/Tür und die Funktionen Herdplatte/Kühlschrank/Spülbecken/Backofen positionieren würdet.
Flur DG: Ist dieser zu "schmal"?
Fensterplanung
Wie würdet Ihr die Fensterplanung machen, wie seht Ihr die Lichtverhältnisse?
+ Kniestockfenster zusätzlich (ja/nein),
+ im Badezimmer OG bodentiefes Milchglasfenster sinnvoll?
Viele Grüße
checker79





nachdem ich hier schon viele ehrliche Feedbacks gesehen habe, bitte ich Euch auch mir eines zu geben. Wir haben bereits eine Baulücke im Dorfkern erworben und planen jetzt ein Fertighaus.
Bebauungsplan/Einschränkungen
Bebauungsplan schränkt uns nach §34 ein, wobei in der direkten Umgebung alles vorhanden ist: Beide Giebelausrichtungen, 2,0 Geschosse, Satteldächer von ca. 25 ° bis ca. 40 °. Außerdem haben die direkten Nachbarn das Baufenster Richtung Norden überbaut, sodass wir das auch so genehmigt bekommen sollten.
Größe des Grundstücks
530 m²
Hang
keinen
Geschossigkeit
2,0
Dachform
Satteldach von ca. 25 ° bis ca. 40 °
Stilrichtung
Satteldach
Ausrichtung
Nach §34 beide Ausrichtungen möglich.
Anforderungen der Bauherren
Stilrichtung, Dachform, Gebäudetyp
offen, modern, Satteldach, hoher Kniestock
Keller, Geschosse
Keller, EG, OG
Anzahl der Personen, Alter
4 Personen
3, 5, 37 und 42 Jahre
Raumbedarf im EG, OG
EG: Wohnzimmer, Esszimmer, Küche, Arbeitszimmer, Gäste-Bad, Garderobe
OG: Kind 1, Kind 2, Eltern, Ankleide, Waschküche, Badezimmer inkl. Sauna
Schlafgäste pro Jahr
selten
Architektur
+ offene Architektur
+ moderne Bauweise
+ offene Küche, optional Kochinsel
Anzahl Essplätze
6
Kamin
ja
Musik/Stereowand
nein
Balkon, Dachterrasse
nein
Garage
Einzelgarage, dahinter Gartenhaus für Fahrräder, Rasenmäher etc.
Nutzgarten, Treibhaus
nein
weitere Wünsche/Besonderheiten/Tagesablauf
Geplant ist ein Fertighaus in Holzständerbauweise in Kfw 70 Ausführung (Gasheizung + Solar) mit 2,10 m Kniestock und 160 m² Wohnfläche.
Hausentwurf
Von wem stammt die Planung?
Architekt nach unseren Wünschen
Was gefällt nicht?
Küche: Gerne würden wir hier Euren Input haben, wie Ihr Fenster/Tür und die Funktionen Herdplatte/Kühlschrank/Spülbecken/Backofen positionieren würdet.
Flur DG: Ist dieser zu "schmal"?
Fensterplanung
Wie würdet Ihr die Fensterplanung machen, wie seht Ihr die Lichtverhältnisse?
+ Kniestockfenster zusätzlich (ja/nein),
+ im Badezimmer OG bodentiefes Milchglasfenster sinnvoll?
Viele Grüße
checker79
J
j.bautsch14.09.16 14:24zu erst was mir negativ auffällt:
1. für einen Zweizeiler ist die Küche eigentlich fast zu breit, 300cm weniger 2x60cm schränke bleiben noch 180cm. selbst wenn man eine seite übertief macht ( z.b. 70cm oder 75cm) kommt man sicher nicht unter 1,5m Zeilenabstand.
2. ich persönlich mag es ja nicht wenn die Treppe so nahe am Eingang (Schmutzbereich) ist.
3. ich würde der waschküche einige cm mehr bereite spendieren damit man dort auch die wäsche gut aufhängen kann und man trotzdem noch zur waschmaschine kommt (möglicherweise vom bad).
4. der flur im og scheint mir doch sehr schmal, zu viert rennt ihr euch da über den haufen. bedenkt das von den 1,10m noch putz abgezogen werden muss. unter 1,2m würde ich nicht gehen.
5. die treppe ist mit 18,8/25 geplant? ich glaube das die nicht sehr bequem zu begehen sein wird, 25cm Auftritt ist schon arg kurz. habt ihr mal eine solche Treppe erklommen?
6. was geschieht mit dem raum unter und hinter der Treppe?
7. über die Einrichtung des bades würde ich noch mal nachdenken. die Sauna direkt als Blickfang wenn man rein kommt? ich weis nicht, das geht bestimmt auch anders.
8. das schlafzimmer: 2,69m rohbau weniger putz weniger 2,1m bett (rahmen mit einrechnen) bleibt noch ca. 55cm durchgangsbreite. grenzwertig wie ich finde, ich habe jetzt 40cm und finde es zum ko...en.
positives:
1. großzügiger wohnbereich und essbereich
2. die küche ist an sich auch nicht wirklich klein (je nach persönlichen vorlieben und routinen hätte ich die küche jedoch lieber im süd/östlichen bereich).
3. arbeitszimmergröße in ordnung.
4. Kinderzimmer haben eine schöne größe und ein schönes format
5. ankleide gut dimensioniert.
1. für einen Zweizeiler ist die Küche eigentlich fast zu breit, 300cm weniger 2x60cm schränke bleiben noch 180cm. selbst wenn man eine seite übertief macht ( z.b. 70cm oder 75cm) kommt man sicher nicht unter 1,5m Zeilenabstand.
2. ich persönlich mag es ja nicht wenn die Treppe so nahe am Eingang (Schmutzbereich) ist.
3. ich würde der waschküche einige cm mehr bereite spendieren damit man dort auch die wäsche gut aufhängen kann und man trotzdem noch zur waschmaschine kommt (möglicherweise vom bad).
4. der flur im og scheint mir doch sehr schmal, zu viert rennt ihr euch da über den haufen. bedenkt das von den 1,10m noch putz abgezogen werden muss. unter 1,2m würde ich nicht gehen.
5. die treppe ist mit 18,8/25 geplant? ich glaube das die nicht sehr bequem zu begehen sein wird, 25cm Auftritt ist schon arg kurz. habt ihr mal eine solche Treppe erklommen?
6. was geschieht mit dem raum unter und hinter der Treppe?
7. über die Einrichtung des bades würde ich noch mal nachdenken. die Sauna direkt als Blickfang wenn man rein kommt? ich weis nicht, das geht bestimmt auch anders.
8. das schlafzimmer: 2,69m rohbau weniger putz weniger 2,1m bett (rahmen mit einrechnen) bleibt noch ca. 55cm durchgangsbreite. grenzwertig wie ich finde, ich habe jetzt 40cm und finde es zum ko...en.
positives:
1. großzügiger wohnbereich und essbereich
2. die küche ist an sich auch nicht wirklich klein (je nach persönlichen vorlieben und routinen hätte ich die küche jedoch lieber im süd/östlichen bereich).
3. arbeitszimmergröße in ordnung.
4. Kinderzimmer haben eine schöne größe und ein schönes format
5. ankleide gut dimensioniert.
R
RobsonMKK14.09.16 14:33j.bautsch schrieb:
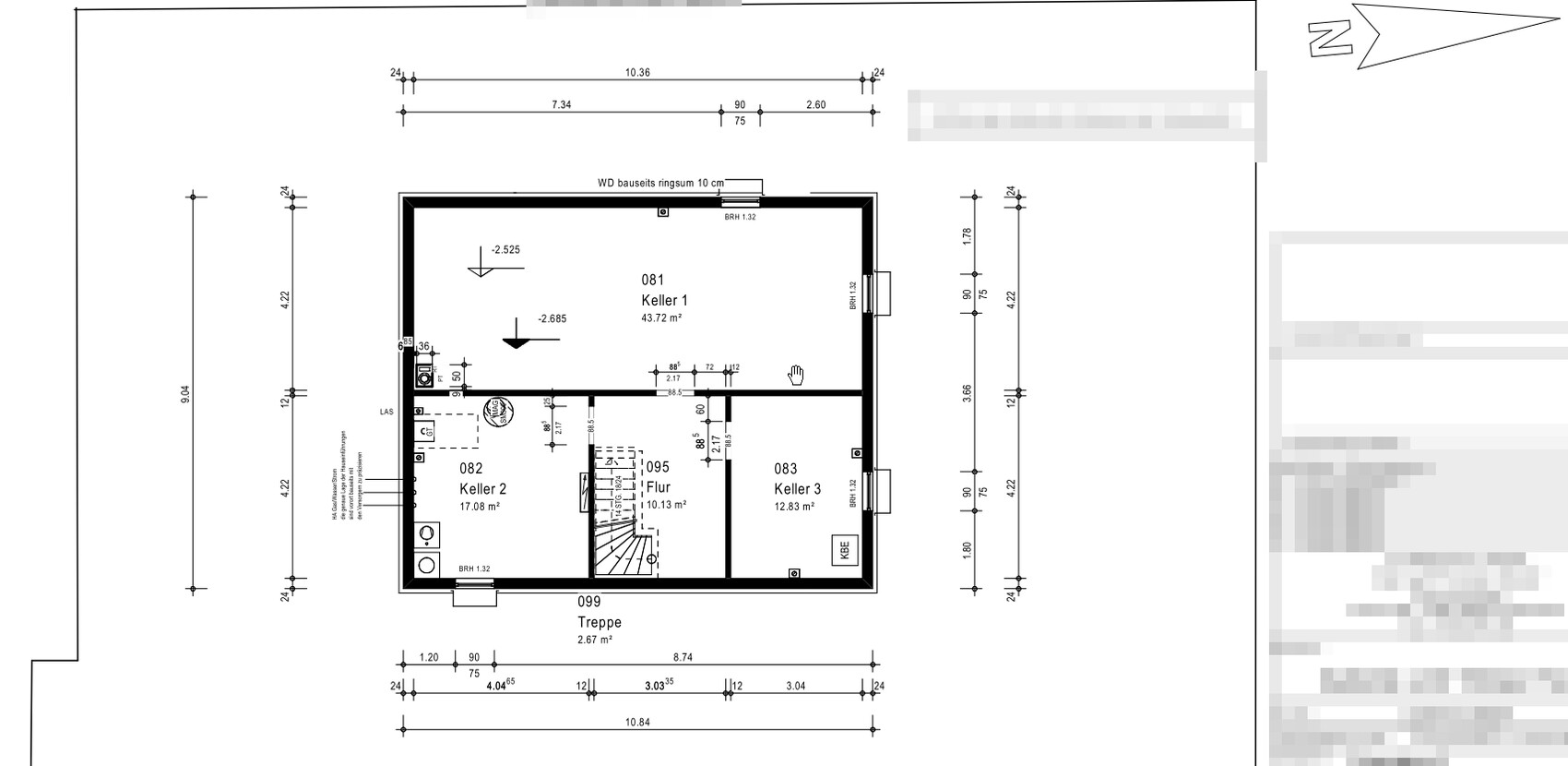
6. was geschieht mit dem raum unter und hinter der treppe?Du meinst im Keller?
J
j.bautsch14.09.16 14:53ach natürlich *hand vor den kopf hau* der keller, den hab ich total vergessen 😀
B
Bieber081514.09.16 15:44Wie wäre folgendes: Keine Waschküche im OG, dafür ein vernünftig großes Schlafzimmer, welches direkt vom Flur aus erschlossen ist (Ankleide nicht als Durchgangszimmer). Die Sauna (toll, hätte ich auch gerne) kommt in den Keller, dafür die Waschmaschine/Trockner ins Bad im OG. Alternativ: Waschküche im Keller.
Ähnliche Themen