ᐅ Grundriss 1,5 geschossiges Haus mit Kapitänsgiebel auf knapp 200m²
Erstellt am: 18.07.21 18:13
B
blubbernase
hi, wir sind hin und her am werkeln und wollten mal eure Meinung hören
Bebauungsplan/Einschränkungen
Größe des Grundstücks: 673 m²
Hang: 3,5 % Steigung einer Seite zur anderen
Grundflächenzahl: 0,2 (Grundflächenzahl I 134,6 m² Grundflächenzahl II: 201,9 m²)
Baufenster, Baulinie und -grenze: Siehe Bild (Die Seitenräder sind die Grundstücksgrenzen)
Randbebauung: Neubaugebiet, freistehende Häuser
Anzahl Stellplatz: 1
Geschossigkeit: Max 1 Vollgeschoss:
Dachform: Satteldach
Stilrichtung: kapitänshaus
Ausrichtung: First läuft Nord/west zu Süd-Ost
Maximale Höhen/Begrenzungen: Traufhöhe 4,5 m, Firsthhöhe 9m, bezugspunkt im Bebauungsplan knapp 1 meter über grundstückshöhe, klinker vorgeschrieben, Gauben nur 50 % der Trauflänge
Anforderungen der Bauherren
Stilrichtung, Dachform, Gebäudetyp: Satteldach
Keller, Geschosse: kalter Teilkeller, EG, OG
Anzahl der Personen, Alter: 34m, 33f, 3m,4f +1 geplant
Raumbedarf im EG: 1 Büro, 1 Büro/Gästezimmer, Wohnküche, Wohnzimmer, Bad mit Dusche, Windfang
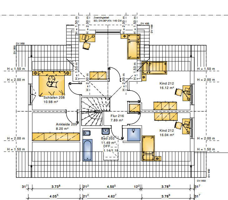
Raumbedarf im DG: 1 Schlafzimmer, 3 Kinderzimmer, ein vollbad, einmal Klo mit Waschmaschine/trockner
Büro: 100% Homeoffice
Schlafgäste pro Jahr: 1/monat Schwiegermama
konservativ oder moderne Bauweise: praktisch?
Küche: Wohnküche, tisch soll in der Küche sein
Anzahl Essplätze: 6
Kamin: nein
Musik/Stereowand: Nein
Balkon, Dachterrasse: Nein
Garage, Carport: Garage für ein Auto und Fahrräder
Nutzgarten, Treibhaus: Vielleicht später
Hausentwurf
EG: Grundfläche 107,5 m² (inkl Treppe)
OG: Grundfläche 101,2 m² [U](inkl Treppe)
KG: ca. 70m²[/U]
Von wem stammt die Planung: Von uns selbst in Sweethome 3D
Grundsätzlich haben wir für die Außenmaße das Whiteline Aktionshaus "Kiefernallee" von Gussek Haus genommen und knapp 50 cm länger gemacht links vom Giebel (. Wir sind schon länger mit Gussek Haus dran. Hatten zuerst einen Grundriss mit 4 Giebel und nem längeren Haus, haben wir aber wegen der komplexität wieder vervorworfen. Der Grundriss ist auch im OG an dem Aktionshaus angelehnt. EG hat sich dann doch ziemlich geändert.
Was gefällt besonders? Man kommt ins Haus und ist nicht gleich im Wohnzimmer.
Preisschätzung lt Architekt/Planer: Basishaus liegt bei ca. 450 in Einzugsfertig+60
Persönliches Preislimit fürs Haus inkl Keller: 550.000 € + Nebenkosten und ausstattung
favorisierte Heiztechnik: Luft-Wasser-Wärmepumpe mit Gerät innen
Wenn Ihr verzichten müsst, auf welche Details/Ausbauten
-könnt Ihr verzichten: Eigentlich nix 😀
-könnt Ihr nicht verzichten: Hier uns da nen qm
Warum ist der Entwurf so geworden, wie er jetzt ist? ZB
Er passt so aufs Grundstück, die Terrasse ist schon Arg klein.
Was ist die wichtigste/grundlegende Frage zum Grundriss in 130 Zeichen zusammengefasst?
wird uns der lange Flur trotz ordentlicher Breite immer nerven?









Bebauungsplan/Einschränkungen
Größe des Grundstücks: 673 m²
Hang: 3,5 % Steigung einer Seite zur anderen
Grundflächenzahl: 0,2 (Grundflächenzahl I 134,6 m² Grundflächenzahl II: 201,9 m²)
Baufenster, Baulinie und -grenze: Siehe Bild (Die Seitenräder sind die Grundstücksgrenzen)
Randbebauung: Neubaugebiet, freistehende Häuser
Anzahl Stellplatz: 1
Geschossigkeit: Max 1 Vollgeschoss:
Dachform: Satteldach
Stilrichtung: kapitänshaus
Ausrichtung: First läuft Nord/west zu Süd-Ost
Maximale Höhen/Begrenzungen: Traufhöhe 4,5 m, Firsthhöhe 9m, bezugspunkt im Bebauungsplan knapp 1 meter über grundstückshöhe, klinker vorgeschrieben, Gauben nur 50 % der Trauflänge
Anforderungen der Bauherren
Stilrichtung, Dachform, Gebäudetyp: Satteldach
Keller, Geschosse: kalter Teilkeller, EG, OG
Anzahl der Personen, Alter: 34m, 33f, 3m,4f +1 geplant
Raumbedarf im EG: 1 Büro, 1 Büro/Gästezimmer, Wohnküche, Wohnzimmer, Bad mit Dusche, Windfang
Raumbedarf im DG: 1 Schlafzimmer, 3 Kinderzimmer, ein vollbad, einmal Klo mit Waschmaschine/trockner
Büro: 100% Homeoffice
Schlafgäste pro Jahr: 1/monat Schwiegermama
konservativ oder moderne Bauweise: praktisch?
Küche: Wohnküche, tisch soll in der Küche sein
Anzahl Essplätze: 6
Kamin: nein
Musik/Stereowand: Nein
Balkon, Dachterrasse: Nein
Garage, Carport: Garage für ein Auto und Fahrräder
Nutzgarten, Treibhaus: Vielleicht später
Hausentwurf
EG: Grundfläche 107,5 m² (inkl Treppe)
OG: Grundfläche 101,2 m² [U](inkl Treppe)
KG: ca. 70m²[/U]
Von wem stammt die Planung: Von uns selbst in Sweethome 3D
Grundsätzlich haben wir für die Außenmaße das Whiteline Aktionshaus "Kiefernallee" von Gussek Haus genommen und knapp 50 cm länger gemacht links vom Giebel (. Wir sind schon länger mit Gussek Haus dran. Hatten zuerst einen Grundriss mit 4 Giebel und nem längeren Haus, haben wir aber wegen der komplexität wieder vervorworfen. Der Grundriss ist auch im OG an dem Aktionshaus angelehnt. EG hat sich dann doch ziemlich geändert.
Was gefällt besonders? Man kommt ins Haus und ist nicht gleich im Wohnzimmer.
Preisschätzung lt Architekt/Planer: Basishaus liegt bei ca. 450 in Einzugsfertig+60
Persönliches Preislimit fürs Haus inkl Keller: 550.000 € + Nebenkosten und ausstattung
favorisierte Heiztechnik: Luft-Wasser-Wärmepumpe mit Gerät innen
Wenn Ihr verzichten müsst, auf welche Details/Ausbauten
-könnt Ihr verzichten: Eigentlich nix 😀
-könnt Ihr nicht verzichten: Hier uns da nen qm
Warum ist der Entwurf so geworden, wie er jetzt ist? ZB
Er passt so aufs Grundstück, die Terrasse ist schon Arg klein.
Was ist die wichtigste/grundlegende Frage zum Grundriss in 130 Zeichen zusammengefasst?
wird uns der lange Flur trotz ordentlicher Breite immer nerven?
B
blubbernase24.11.21 08:04K1300S schrieb:
Ich mutmaße mal, dass Ihr nicht das getan habt, was ich Euch geraten habe, oder?Doch haben wir, die Entwürfe haben uns absolut nicht gefallen.H
hanghaus200024.11.21 13:03außen schaut es zumindest etwas besser aus.
Elternbad: Dusche besser 1 m breit und min 1,2 m lang
KBad? waschbecken und Waschmaschine/WT tauschen. MMn gehoert da noch eine Dusche rein.
Soll an die halb hohe Wand der TV?
Elternbad: Dusche besser 1 m breit und min 1,2 m lang
KBad? waschbecken und Waschmaschine/WT tauschen. MMn gehoert da noch eine Dusche rein.
Soll an die halb hohe Wand der TV?
B
blubbernase24.11.21 13:15hanghaus2000 schrieb:
Elternbad: Dusche besser 1 m breit und min 1,2 m lang Wir haben jetzt nur eine 70x70 Dusche, deswegen erscheint alles so groß. Das Bad ist aber noch nicht final geplant, deswegen sind wir da auch noch offen. Wir würden gern ein größeres Fenster habenhanghaus2000 schrieb:
KBad? Waschbecken und Waschmaschine/WT tauschen. MMn gehoert da noch eine Dusche rein. Dann hätten wir drei duschen. Wir haben jetzt 2 bei uns hier und die eine wird nicht genutzt. Architekt hat auch 3 Kinder und meinte, 2 reichen. Wergen Waschbecken - warum? ich hätte jetzt gedacht, vor mir das Waschbecken zu haben ist angenehmer.hanghaus2000 schrieb:
Soll an die halb hohe Wand der TV?ja, genau.K1300S schrieb:
Ich mutmaße mal, dass Ihr nicht das getan habt, was ich Euch geraten habe, oder?Das denke ich vollumfänglich ebenso. Die regelrechte Zwillingsähnlichkeit zwischen den Skizzen im Eröffnungsbeitrag und allen folgenden Varianten bis einschließlich der jüngsten kann gar nicht anders als den begründeten Verdacht erwecken, hier sei zu einem Abmaler anstatt eines Architekten gegangen worden. So verhindert man natürlich zuverlässig, daß es zu Alternativentwürfen kommen kann. Aus dem im wesentlichen unveränderten Entwurf ergibt sich dann zwangsläufig ein begrenztes Überraschungspotential hinsichtlich der Freiheiten, die Fassadengliederung anders zu arrangieren. Locked-in-Design at its "best" :-(https://www.instagram.com/11antgmxde/
https://www.linkedin.com/company/bauen-jetzt/
blubbernase schrieb:
Doch haben wir, die Entwürfe haben uns absolut nicht gefallen.Also auch wenn wir seinerzeit mit Gussek Haus nicht so recht zu Rande gekommen sind, lag es definitiv nicht an den Entwürfen, die man uns präsentiert hat. Sowohl die Katalogvarianten als auch die Abwandlungen davon waren grundsätzlich in Ordnung und gut bewohnbar. Wenn ich natürlich von vornherein nur auf meinen eigenen "Entwurf" fixiert bin, kann jede auch noch so gute Alternative einfach nicht punkten. Hättet Ihr mal einen dieser nicht gefallen habenden Entwürfe da, um sie hier zu zeigen?B
blubbernase24.11.21 15:11K1300S schrieb:
Also auch wenn wir seinerzeit mit Gussek Haus nicht so recht zu Rande gekommen sind, lag es definitiv nicht an den Entwürfen, die man uns präsentiert hat. Sowohl die Katalogvarianten als auch die Abwandlungen davon waren grundsätzlich in Ordnung und gut bewohnbar. Wenn ich natürlich von vornherein nur auf meinen eigenen "Entwurf" fixiert bin, kann jede auch noch so gute Alternative einfach nicht punkten. Hättet Ihr mal einen dieser nicht gefallen habenden Entwürfe da, um sie hier zu zeigen?Bitte sehr:
Kiefernallee v2 + Sanderau war die Basis für den jetzigen Entwurf. Die Ähnlichkeit zu unserem Entwurf war zufällig, wir haben den bei der vorbemusterung gesehen und als Basis genommen
Hier mal ein Entwurf der von einer Architekten kam, mit dem wir nicht mehr zusammenarbeiten - dieser hat nur die Liste von unseren Prioritäten bekommen und leider sich nicht an alles gehalten und beim Feedbackgespräch sich ggü manchen sachen einfach gesagt "geht nicht"
Ähnliche Themen