ᐅ Grundriss 1,5 geschossiges Haus mit Kapitänsgiebel auf knapp 200m²
Erstellt am: 18.07.21 18:13
B
blubbernase
hi, wir sind hin und her am werkeln und wollten mal eure Meinung hören
Bebauungsplan/Einschränkungen
Größe des Grundstücks: 673 m²
Hang: 3,5 % Steigung einer Seite zur anderen
Grundflächenzahl: 0,2 (Grundflächenzahl I 134,6 m² Grundflächenzahl II: 201,9 m²)
Baufenster, Baulinie und -grenze: Siehe Bild (Die Seitenräder sind die Grundstücksgrenzen)
Randbebauung: Neubaugebiet, freistehende Häuser
Anzahl Stellplatz: 1
Geschossigkeit: Max 1 Vollgeschoss:
Dachform: Satteldach
Stilrichtung: kapitänshaus
Ausrichtung: First läuft Nord/west zu Süd-Ost
Maximale Höhen/Begrenzungen: Traufhöhe 4,5 m, Firsthhöhe 9m, bezugspunkt im Bebauungsplan knapp 1 meter über grundstückshöhe, klinker vorgeschrieben, Gauben nur 50 % der Trauflänge
Anforderungen der Bauherren
Stilrichtung, Dachform, Gebäudetyp: Satteldach
Keller, Geschosse: kalter Teilkeller, EG, OG
Anzahl der Personen, Alter: 34m, 33f, 3m,4f +1 geplant
Raumbedarf im EG: 1 Büro, 1 Büro/Gästezimmer, Wohnküche, Wohnzimmer, Bad mit Dusche, Windfang
Raumbedarf im DG: 1 Schlafzimmer, 3 Kinderzimmer, ein vollbad, einmal Klo mit Waschmaschine/trockner
Büro: 100% Homeoffice
Schlafgäste pro Jahr: 1/monat Schwiegermama
konservativ oder moderne Bauweise: praktisch?
Küche: Wohnküche, tisch soll in der Küche sein
Anzahl Essplätze: 6
Kamin: nein
Musik/Stereowand: Nein
Balkon, Dachterrasse: Nein
Garage, Carport: Garage für ein Auto und Fahrräder
Nutzgarten, Treibhaus: Vielleicht später
Hausentwurf
EG: Grundfläche 107,5 m² (inkl Treppe)
OG: Grundfläche 101,2 m² [U](inkl Treppe)
KG: ca. 70m²[/U]
Von wem stammt die Planung: Von uns selbst in Sweethome 3D
Grundsätzlich haben wir für die Außenmaße das Whiteline Aktionshaus "Kiefernallee" von Gussek Haus genommen und knapp 50 cm länger gemacht links vom Giebel (. Wir sind schon länger mit Gussek Haus dran. Hatten zuerst einen Grundriss mit 4 Giebel und nem längeren Haus, haben wir aber wegen der komplexität wieder vervorworfen. Der Grundriss ist auch im OG an dem Aktionshaus angelehnt. EG hat sich dann doch ziemlich geändert.
Was gefällt besonders? Man kommt ins Haus und ist nicht gleich im Wohnzimmer.
Preisschätzung lt Architekt/Planer: Basishaus liegt bei ca. 450 in Einzugsfertig+60
Persönliches Preislimit fürs Haus inkl Keller: 550.000 € + Nebenkosten und ausstattung
favorisierte Heiztechnik: Luft-Wasser-Wärmepumpe mit Gerät innen
Wenn Ihr verzichten müsst, auf welche Details/Ausbauten
-könnt Ihr verzichten: Eigentlich nix 😀
-könnt Ihr nicht verzichten: Hier uns da nen qm
Warum ist der Entwurf so geworden, wie er jetzt ist? ZB
Er passt so aufs Grundstück, die Terrasse ist schon Arg klein.
Was ist die wichtigste/grundlegende Frage zum Grundriss in 130 Zeichen zusammengefasst?
wird uns der lange Flur trotz ordentlicher Breite immer nerven?









Bebauungsplan/Einschränkungen
Größe des Grundstücks: 673 m²
Hang: 3,5 % Steigung einer Seite zur anderen
Grundflächenzahl: 0,2 (Grundflächenzahl I 134,6 m² Grundflächenzahl II: 201,9 m²)
Baufenster, Baulinie und -grenze: Siehe Bild (Die Seitenräder sind die Grundstücksgrenzen)
Randbebauung: Neubaugebiet, freistehende Häuser
Anzahl Stellplatz: 1
Geschossigkeit: Max 1 Vollgeschoss:
Dachform: Satteldach
Stilrichtung: kapitänshaus
Ausrichtung: First läuft Nord/west zu Süd-Ost
Maximale Höhen/Begrenzungen: Traufhöhe 4,5 m, Firsthhöhe 9m, bezugspunkt im Bebauungsplan knapp 1 meter über grundstückshöhe, klinker vorgeschrieben, Gauben nur 50 % der Trauflänge
Anforderungen der Bauherren
Stilrichtung, Dachform, Gebäudetyp: Satteldach
Keller, Geschosse: kalter Teilkeller, EG, OG
Anzahl der Personen, Alter: 34m, 33f, 3m,4f +1 geplant
Raumbedarf im EG: 1 Büro, 1 Büro/Gästezimmer, Wohnküche, Wohnzimmer, Bad mit Dusche, Windfang
Raumbedarf im DG: 1 Schlafzimmer, 3 Kinderzimmer, ein vollbad, einmal Klo mit Waschmaschine/trockner
Büro: 100% Homeoffice
Schlafgäste pro Jahr: 1/monat Schwiegermama
konservativ oder moderne Bauweise: praktisch?
Küche: Wohnküche, tisch soll in der Küche sein
Anzahl Essplätze: 6
Kamin: nein
Musik/Stereowand: Nein
Balkon, Dachterrasse: Nein
Garage, Carport: Garage für ein Auto und Fahrräder
Nutzgarten, Treibhaus: Vielleicht später
Hausentwurf
EG: Grundfläche 107,5 m² (inkl Treppe)
OG: Grundfläche 101,2 m² [U](inkl Treppe)
KG: ca. 70m²[/U]
Von wem stammt die Planung: Von uns selbst in Sweethome 3D
Grundsätzlich haben wir für die Außenmaße das Whiteline Aktionshaus "Kiefernallee" von Gussek Haus genommen und knapp 50 cm länger gemacht links vom Giebel (. Wir sind schon länger mit Gussek Haus dran. Hatten zuerst einen Grundriss mit 4 Giebel und nem längeren Haus, haben wir aber wegen der komplexität wieder vervorworfen. Der Grundriss ist auch im OG an dem Aktionshaus angelehnt. EG hat sich dann doch ziemlich geändert.
Was gefällt besonders? Man kommt ins Haus und ist nicht gleich im Wohnzimmer.
Preisschätzung lt Architekt/Planer: Basishaus liegt bei ca. 450 in Einzugsfertig+60
Persönliches Preislimit fürs Haus inkl Keller: 550.000 € + Nebenkosten und ausstattung
favorisierte Heiztechnik: Luft-Wasser-Wärmepumpe mit Gerät innen
Wenn Ihr verzichten müsst, auf welche Details/Ausbauten
-könnt Ihr verzichten: Eigentlich nix 😀
-könnt Ihr nicht verzichten: Hier uns da nen qm
Warum ist der Entwurf so geworden, wie er jetzt ist? ZB
Er passt so aufs Grundstück, die Terrasse ist schon Arg klein.
Was ist die wichtigste/grundlegende Frage zum Grundriss in 130 Zeichen zusammengefasst?
wird uns der lange Flur trotz ordentlicher Breite immer nerven?
haydee schrieb:
Klinker in NI ist doch nicht ungewöhnlichDefinitiv nicht. Wir planen gerade aus Niedersachsen ein Haus in Brandenburg und werden immer ganz erstaunt angesehen, wenn wir sagen "kein Klinker " (da unnötige Kosten).
Bei uns hat bisher niemand Probleme ein Haus in 300km Entfernung zu planen. Und wir werden natürlich auch nicht dauernd auf der Baustelle sein können.
Goldelse schrieb:
Bei uns hat bisher niemand Probleme ein Haus in 300km Entfernung zu planen.Na ja, bei mir findet man schon Verständnis (und gerne auch Rat), wenn man sich das nicht ganz ohne Bammel zutraut.https://www.instagram.com/11antgmxde/
https://www.linkedin.com/company/bauen-jetzt/
B
blubbernase29.07.21 11:08ypg schrieb:
Ein ähnlicher Grundriss wurde hier schon diskutiert…11ant schrieb:
Mir fällt es auch gerade nicht ein.Das hier? https://www.hausbau-forum.de/threads/neubau-166-qm-1-5-geschosse-grundriss-fuer-5-koepfige-familie.36288/
ypg schrieb:
Ich denke, dass bei Euch/Dir überhaupt keine Kritik/Änderung eingeplant ist, oder?!Klar ändert sich alles täglich. Wir werden nun einen planungsauftrag mit Gussek Haus abschließen und mit deren Architekten planen. Sobald da ein Entwurf ausgearbeitet ist, melde ich mich wieder.blubbernase schrieb:
Klar ändert sich alles täglich. 🙄 täglich? Es braucht nur eine Änderung, die Passende/Richtige.
B
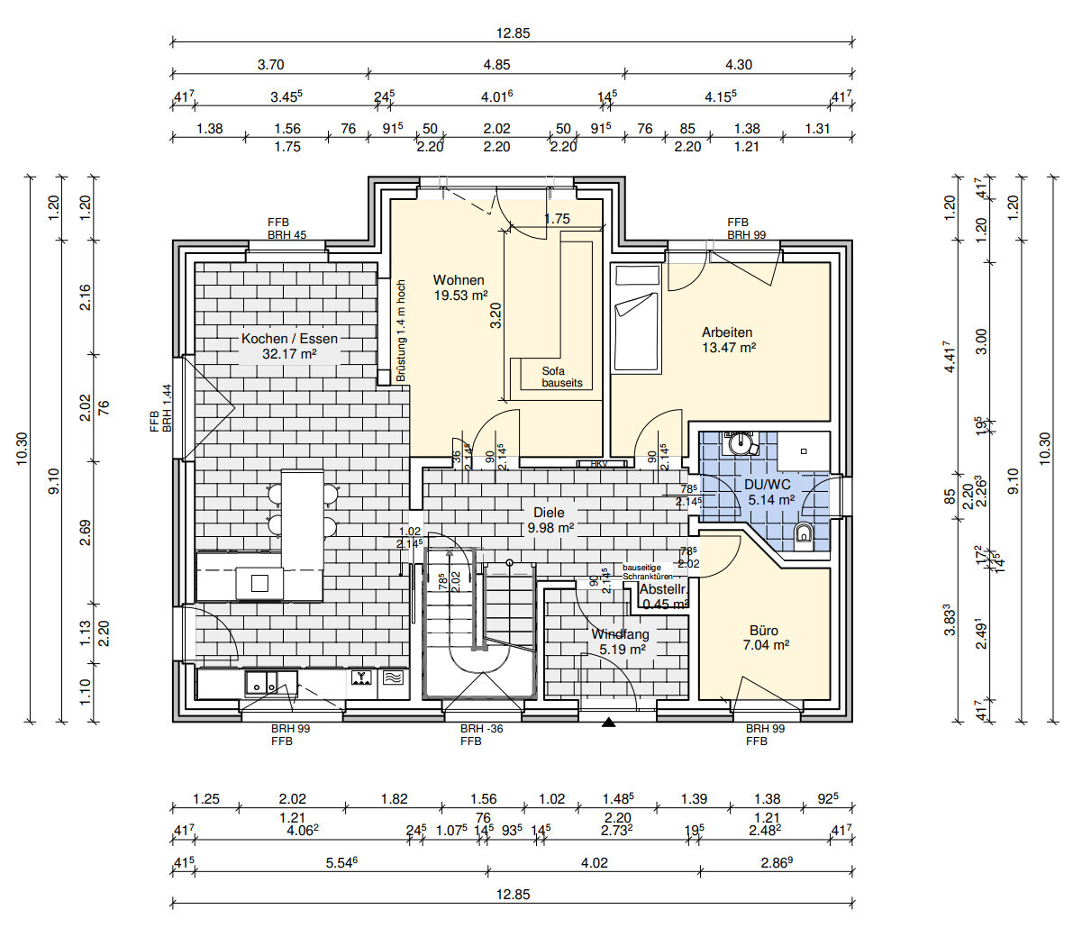
blubbernase24.11.21 00:48So, da sind wir wieder, wir sind nun soweit, dass ich mich mal traue den zu zeigen.
Nicht final sind:
- Bad im OG,
- Keller. Dieser ist und bleibt nutzkeller. Wir wollen keine Wohnräumen da unten haben. Allerdings ist die aufteilung und höhe noch nicht fest.
- Küche (Also schon diese abgedockte Insel, von der idee her, aber alles andere ist darin nur platzhalte vom programm des architekten
Außen ansichten sind auf den Traufseiten etwas tricky und noch haben wir keine lösung für die unruhe dort.
Wir haben jetzt schon so viele Stunden drauf geschaut, was sind eure meinungen?









Nicht final sind:
- Bad im OG,
- Keller. Dieser ist und bleibt nutzkeller. Wir wollen keine Wohnräumen da unten haben. Allerdings ist die aufteilung und höhe noch nicht fest.
- Küche (Also schon diese abgedockte Insel, von der idee her, aber alles andere ist darin nur platzhalte vom programm des architekten
Außen ansichten sind auf den Traufseiten etwas tricky und noch haben wir keine lösung für die unruhe dort.
Wir haben jetzt schon so viele Stunden drauf geschaut, was sind eure meinungen?
K1300S schrieb:
Das OG geht, wie ich finde. Das EG ist mir viel zu verwinkelt. Geht doch mal zum Architekten, und zwar OHNE dieses Gekritzel.Ich mutmaße mal, dass Ihr nicht das getan habt, was ich Euch geraten habe, oder?Ähnliche Themen