Hallo ihr Lieben!
Wie bereits im Begrüßungsthread genannt, haben wir bereits vor einigen Monaten ein Grundstück von der Gemeinde erworben. Seitdem machen wir uns natürlich auch Gedanken über das zukünftige Eigenheim, welches nächstes Jahr konkrete Formen annehmen soll.
Es soll nach KFW 55 gebaut werden. Hierzu steht ein Grundstück mit 665qm zur Verfügung. Wir haben uns bereits von einem Architekten (von einer Hausbaufirma) beraten lassen. Hier ist der Plan, dass abschließend ein Werkvertrag geschlossen werden und alles über die Hausbaufirma laufen soll.
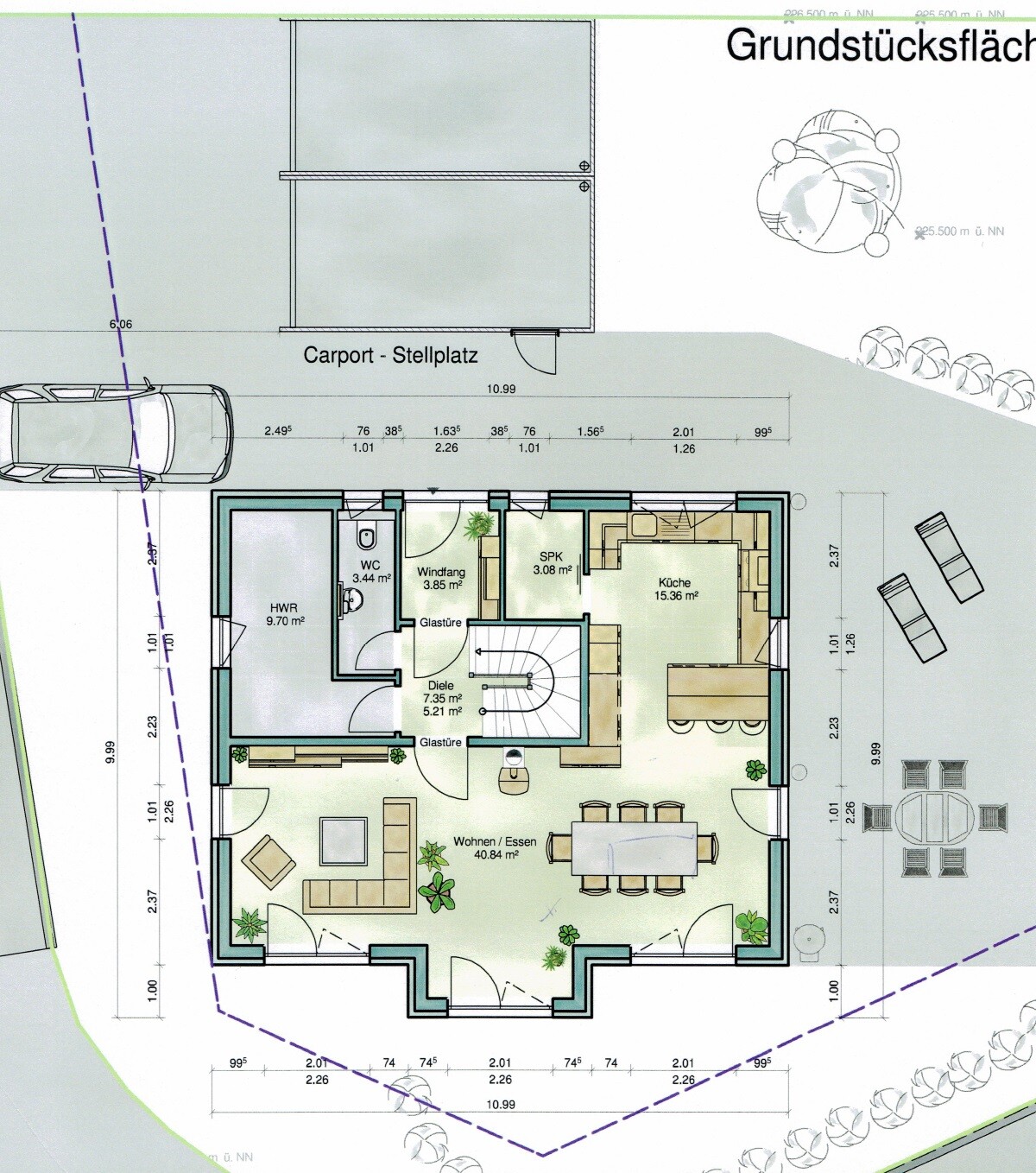
Wir sind zu zweit, beide Anfang-Mitte 20 (22 und 23). Wie oben genannt, das Grundstück ist 665qm groß. Als Wohnfläche sind nach dem letzten Entwurf rund 160qm geplant (wir wissen, sehr großzügig). Nutzfläche wird rund an die 200qm reichen. Das Haus an sich soll recht quadratisch, mit Erker, werden. Die Doppelgarage über einen Dachgiebel an das Hauptdach angebunden.Dieser Durchgang soll gleichzeitig ein Carport sein, welches auch gleichzeitig von der Straße her als Durchgang in den Garten dienen soll. Auch soll hier der Hauseingang sein. Bauweise soll massiv sein.
Im Haus selbst soll ein großzügiger Wohn-Ess- und Kochbereich entstehen. Im EG sollen dann noch eine Speisekammer, Gästebad und Hauswirtschaftsraum folgen. Was uns wichtig ist, ist ein Windfang, da der gesamte Ort recht hoch liegt und wir am Ortsrand bauen möchten, wo auch gerne mal der Wind pfeift (dennoch kein Vergleich zum Wind im hohen Norden :p).
Zum Obergeschoss: Hier entsteht unser Schlafzimmer mit einer direkt angeschlossenen Ankleide (mein Traum!). Zudem ein „Gästezimmer“ – welches dann unseren Tieren zur Verfügung stehen soll bzw. ggf. zum Gästezimmer gewandelt werden kann. Dann noch ein Arbeitszimmer – hier wird nur privates Zeug erledigt.
Im „großen Bad“ wird der Traum einer Eck-Badewanne und bodentiefen Dusche wahr; und einem Doppelwaschtisch. Was uns hier wichtig ist, dass das Bad nicht ensuite ist, da ich Schichtarbeiter bin.
Als kleines Nonplusultra werden die Garagen ausgebaut und über eine Außentreppe zugänglich gemacht. Geplant war ursprünglich ein Durchgang im OG von der dortigen „Galerie“ auf die Garage. Allerdings konnten wir uns hiermit dann doch nicht anfreunden, da beim Einlagern von bspw. Autoreifen, die Sachen dann quer durch das Haus geschleppt werden müssten - direkt über eine Außentreppe ist dann doch einfacher.
Was noch zu erwähnen ist: Es handelt sich bei dem Grundstück um ein Eckgrundstück. Auch soll kein Keller entstehen, da wir das dadurch gesparte Geld lieber in etwas größeren Wohnraum stecken und in der aktuellen Mietwohnung auch nur einen Keller haben, in dem die Autoreifen liegen, mehr nicht.
Anbei auch Ausschnitte vom letzten Plan, wie wir es uns aktuell vorstellen. Was haltet ihr davon? Für konstruktive Kritik sind wir gerne zu haben 🙂
LG




Wie bereits im Begrüßungsthread genannt, haben wir bereits vor einigen Monaten ein Grundstück von der Gemeinde erworben. Seitdem machen wir uns natürlich auch Gedanken über das zukünftige Eigenheim, welches nächstes Jahr konkrete Formen annehmen soll.
Es soll nach KFW 55 gebaut werden. Hierzu steht ein Grundstück mit 665qm zur Verfügung. Wir haben uns bereits von einem Architekten (von einer Hausbaufirma) beraten lassen. Hier ist der Plan, dass abschließend ein Werkvertrag geschlossen werden und alles über die Hausbaufirma laufen soll.
Wir sind zu zweit, beide Anfang-Mitte 20 (22 und 23). Wie oben genannt, das Grundstück ist 665qm groß. Als Wohnfläche sind nach dem letzten Entwurf rund 160qm geplant (wir wissen, sehr großzügig). Nutzfläche wird rund an die 200qm reichen. Das Haus an sich soll recht quadratisch, mit Erker, werden. Die Doppelgarage über einen Dachgiebel an das Hauptdach angebunden.Dieser Durchgang soll gleichzeitig ein Carport sein, welches auch gleichzeitig von der Straße her als Durchgang in den Garten dienen soll. Auch soll hier der Hauseingang sein. Bauweise soll massiv sein.
Im Haus selbst soll ein großzügiger Wohn-Ess- und Kochbereich entstehen. Im EG sollen dann noch eine Speisekammer, Gästebad und Hauswirtschaftsraum folgen. Was uns wichtig ist, ist ein Windfang, da der gesamte Ort recht hoch liegt und wir am Ortsrand bauen möchten, wo auch gerne mal der Wind pfeift (dennoch kein Vergleich zum Wind im hohen Norden :p).
Zum Obergeschoss: Hier entsteht unser Schlafzimmer mit einer direkt angeschlossenen Ankleide (mein Traum!). Zudem ein „Gästezimmer“ – welches dann unseren Tieren zur Verfügung stehen soll bzw. ggf. zum Gästezimmer gewandelt werden kann. Dann noch ein Arbeitszimmer – hier wird nur privates Zeug erledigt.
Im „großen Bad“ wird der Traum einer Eck-Badewanne und bodentiefen Dusche wahr; und einem Doppelwaschtisch. Was uns hier wichtig ist, dass das Bad nicht ensuite ist, da ich Schichtarbeiter bin.
Als kleines Nonplusultra werden die Garagen ausgebaut und über eine Außentreppe zugänglich gemacht. Geplant war ursprünglich ein Durchgang im OG von der dortigen „Galerie“ auf die Garage. Allerdings konnten wir uns hiermit dann doch nicht anfreunden, da beim Einlagern von bspw. Autoreifen, die Sachen dann quer durch das Haus geschleppt werden müssten - direkt über eine Außentreppe ist dann doch einfacher.
Was noch zu erwähnen ist: Es handelt sich bei dem Grundstück um ein Eckgrundstück. Auch soll kein Keller entstehen, da wir das dadurch gesparte Geld lieber in etwas größeren Wohnraum stecken und in der aktuellen Mietwohnung auch nur einen Keller haben, in dem die Autoreifen liegen, mehr nicht.
Anbei auch Ausschnitte vom letzten Plan, wie wir es uns aktuell vorstellen. Was haltet ihr davon? Für konstruktive Kritik sind wir gerne zu haben 🙂
LG
In unserer aktuellen Mietwohnung ist es da aktuell auch nicht viel anders 😀 Wir sind also nicht verwöhnt.
Stimmt, ist ein langer Weg nach dem Einkaufen. Unser Berater hat uns auch schon vorgeschlagen in der Speisekammer ein bodentiefes Fenster einzusetzen, sodass man dann direkt die Speisekammer "beliefern" kann 🙄. Aktuell haben wir uns für ein Fenster entschieden, allein weil man unter das Fenster auch nochmal ein Regal stellen kann.
Der Wocheneinkauf erfolgt einmal in der Woche. Da ist es generell so, dass einer das Auto auslädt und bis zur Tür trägt und der andere darf dann durch die Bude flitzen, da im Haus Straßenschuhe ungern gesehen sind.
Stimmt, ist ein langer Weg nach dem Einkaufen. Unser Berater hat uns auch schon vorgeschlagen in der Speisekammer ein bodentiefes Fenster einzusetzen, sodass man dann direkt die Speisekammer "beliefern" kann 🙄. Aktuell haben wir uns für ein Fenster entschieden, allein weil man unter das Fenster auch nochmal ein Regal stellen kann.
Der Wocheneinkauf erfolgt einmal in der Woche. Da ist es generell so, dass einer das Auto auslädt und bis zur Tür trägt und der andere darf dann durch die Bude flitzen, da im Haus Straßenschuhe ungern gesehen sind.
Was mir auf Anhieb auffällt ... mal wieder 😉 ... ist die Treppe. Da würde ich gerne mal eine genaue Vermaßung sehen, Geschosshöhe wissen wollen. Die sieht mir nämlich zu knapp aus. Und im OG landet man auch direkt vor einer Wand .. .welche Flurbreite ist da geplant?
Ansonsten, ganz schön großzügig 😉. Sind Kinder gar nicht geplant oder werden dann später die Zimmer umfunktioniert?
Im EG bringt der Erker ja recht wenig. Habt ihr schon ein Preisangebot?
Kritisch sehe ich die Nutzbarkeit des Hauswirtschaftsraum. Der dürfte etwas schmal sein. Da sollte mal die Haustechnik eingezeichnet werden, damit man sieht, was von den 9 qm noch bleibt. Gäste-WC könnte auch kürzer sein.
Das Konzept im Schlafbereich ist ok, allerdings solltet ihr mal prüfen, ob die Schlafraumbreite von ca. 335 cm ausreichend ist. Ich finde es etwas knapp. 200 cm Matratze erfordern in aller Regel ca. 210 cm Bettbreite. Dann sind rechts und links vom Bett nur noch 60 cm. Das geht, ist aber leider nicht großzügig 😉. Die Ankleide hat den Namen Ankleide verdient und ist nicht nur Schrankraum. Wobei das kleine "Entenschwänzchen" an der Treppe auch sehr ungünstig ist.
Die Möblierung und die Eingangssituation im Wohn/Ess/Kochbereich geht so nicht. Stell dir mal vor, du kommst da rein. Tür auf jeden Fall andersherum anschlagen lassen. Der Kamin ist irgendwie Niemandsland.
Küche, das ist der Durchgang vermutlich zu eng.
Fazit, ich glaube, das muss noch eine Menge Tuning passieren, gerade um alle passenden guten Ideen auch GUT funktionierend zusammen zu bringen.
Ansonsten, ganz schön großzügig 😉. Sind Kinder gar nicht geplant oder werden dann später die Zimmer umfunktioniert?
Im EG bringt der Erker ja recht wenig. Habt ihr schon ein Preisangebot?
Kritisch sehe ich die Nutzbarkeit des Hauswirtschaftsraum. Der dürfte etwas schmal sein. Da sollte mal die Haustechnik eingezeichnet werden, damit man sieht, was von den 9 qm noch bleibt. Gäste-WC könnte auch kürzer sein.
Das Konzept im Schlafbereich ist ok, allerdings solltet ihr mal prüfen, ob die Schlafraumbreite von ca. 335 cm ausreichend ist. Ich finde es etwas knapp. 200 cm Matratze erfordern in aller Regel ca. 210 cm Bettbreite. Dann sind rechts und links vom Bett nur noch 60 cm. Das geht, ist aber leider nicht großzügig 😉. Die Ankleide hat den Namen Ankleide verdient und ist nicht nur Schrankraum. Wobei das kleine "Entenschwänzchen" an der Treppe auch sehr ungünstig ist.
Die Möblierung und die Eingangssituation im Wohn/Ess/Kochbereich geht so nicht. Stell dir mal vor, du kommst da rein. Tür auf jeden Fall andersherum anschlagen lassen. Der Kamin ist irgendwie Niemandsland.
Küche, das ist der Durchgang vermutlich zu eng.
Fazit, ich glaube, das muss noch eine Menge Tuning passieren, gerade um alle passenden guten Ideen auch GUT funktionierend zusammen zu bringen.
Huhu kbt09,
danke für Deine Antwort!
Was ich vergessen hatte - Kinder stehen keine an - ist bei 2 Männchen biologisch nicht ganz machbar und bei der aktuellen Gesetzeslage sowieso nicht möglich 😀 Unsere Kinder sind und bleiben unsere Stubentiger :p
danke für Deine Antwort!
Was ich vergessen hatte - Kinder stehen keine an - ist bei 2 Männchen biologisch nicht ganz machbar und bei der aktuellen Gesetzeslage sowieso nicht möglich 😀 Unsere Kinder sind und bleiben unsere Stubentiger :p
Da würde ich gerne mal eine genaue Vermaßung sehen, Geschosshöhe wissen wollen. Die sieht mir nämlich zu knapp aus. Und im OG landet man auch direkt vor einer Wand .. .welche Flurbreite ist da geplant?Mit dem Treppenende im OG bin ich selbst auch noch etwas unzufrieden, weil man direkt vor der Wand landet - hier stelle ich mir den Aufgang etwas anders vor. Der "Flur" soll ca 1 Meter breit werden. Die Raumhöhe ist mit 2,62 gerechnet.
Im EG bringt der Erker ja recht wenig.Der Erker im EG soll ein kleines Katzenreich werden. Hier soll vom Erker aus in Richtung Esstisch an der Wand ein schön großer selbstgebauter Kratzbaum für die Stubentiger enstehen, dessen letzten Ausläufer (freistehend) im Erker in Richtung Wohnzimmer auslaufen, sodass die kleinen ein Spielparadies haben (Stubentiger ohne Freigang)
Habt ihr schon ein Preisangebot?Für alles zusammen sind rund 340t€ veranschlagt (mit Baunebenkosten)
Kritisch sehe ich die Nutzbarkeit des Hauswirtschaftsraum. Der dürfte etwas schmal sein. Da sollte mal die Haustechnik eingezeichnet werden, damit man sieht, was von den 9 qm noch bleibt.Laut Aussage unseres Beraters würde der Hauswirtschaftsraum für alles ausreichen, da "er" für die Haustechnik nur ca 4qm bräuchte - die restlichen 5qm können wir frei nutzen. Hier bin ich auch noch auf eine Detailzeichnung gespannt wegen Wasserspeicher, Heizung, Lüftung, etc.
Gefällt mir nicht... weder optisch noch vom Grundriss
- Hauswirtschaftsraum und WC haben viel unnötigen Fluranteil
- 1 m Breite sind m.E. für ein Waschbecken zu wenig
- Küche viel zu weit weg vom Eingang
- Diele ist wohl relativ dunkel - Glastüren hin oder her
- Fenster in der Speisekammer an der Stelle minimiert die Stellfläche
- Ankleide ist ja sogar in der Zeichnung schon merkwürdig möbliert - das passt nicht so ganz (finde die Ankleide im 20 T€ Erker/Giebel eh immer etwas Verschwendung
- Flur im OG gefällt mir nicht.
- Hauswirtschaftsraum und WC haben viel unnötigen Fluranteil
- 1 m Breite sind m.E. für ein Waschbecken zu wenig
- Küche viel zu weit weg vom Eingang
- Diele ist wohl relativ dunkel - Glastüren hin oder her
- Fenster in der Speisekammer an der Stelle minimiert die Stellfläche
- Ankleide ist ja sogar in der Zeichnung schon merkwürdig möbliert - das passt nicht so ganz (finde die Ankleide im 20 T€ Erker/Giebel eh immer etwas Verschwendung
- Flur im OG gefällt mir nicht.
Ähnliche Themen