„Großes Haus“ vs „kleines Haus“ + Nebengebäude

4,00 Stern(e) 13 Votes
Zuletzt aktualisiert 22.12.2025
Sie befinden sich auf der Seite 2 der Diskussion zum Thema: „Großes Haus“ vs „kleines Haus“ + Nebengebäude
>> Zum 1. Beitrag <<

H

haydee

Zeichne doch alles ein
Haus + Nebengebäude etc

Veränderte Grenzabstände, wenn Grenzbebauung wegfällt.
Dann siehst du wie das Ganze wirkt.
Verschattung, zusammenhängende Gartenfläche etc
 
11ant

11ant

Mich interessiert mal die Meinung des „Kollektivs“
wie nennen wir uns denn als solches - Ernst Thälmann, Clara Zetkin ?

Man vergleicht die konzeptionellen Unterschiede und geht in der Ausführung von Gleichwertigkeit aus.
Von der Qualität wurde gesagt, sie sei gleich; und von der Summe - aus der bekanntlich nur die Dummen kürzen - wissen wir, daß dort der Unterschied ein Zimmer bzw. elf Quadratmeter beträgt (und sind so klug als wie zuvor).
 
M

Micha8589

Hallo und guten Abend,
das nicht einstellen der beiden Grundrisse... kein Kommentar

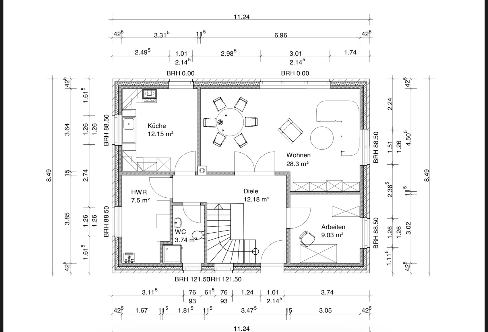
Haus A: 125m2

Grundriss eines Wohnhauses mit Küche, Wohnen, Diele, HWR, WC und Arbeiten.


Haus B: 112m2

Grundriss einer Wohnung: Küche, Diele, WC, HWR, Wohnen und Terrasse.
 
H

hampshire

Von den beiden Grundrissen gefällt mir der kleinere ohne Arbeitszimmer deutlich besser. Allerdings finde ich bei beiden Grundrissen den Weg von der Küche zum Esstisch minderpraktisch.
 
11ant

11ant

Man sieht hier zwar nur Erdgeschosse, dafür jedoch schon signifikante Unterschiede: die Hauswirtschaftsräume sind erheblich anders geschnitten und groß; eine Küche beinhaltet einen Essplatz, die andere nicht; ein WC hat eine Dusche; insgesamt finde ich Haus B schlechter. Das Mehrzimmer in der Summe ist wohl das Arbeitszimmer ? - das wäre ein Pluspunkt, wenn man denn ein solches bräuchte, der Lage wegen aber z.B. als Kinderzimmer ungünstig geeignet. Was beide Varianten eint, ist die Lieblosigkeit des Möblierbarkeitsnachweises - die wäre mir Grund genug, nach anderen Anbietern zu schauen.
 
Zuletzt aktualisiert 22.12.2025
Im Forum Bauplanung gibt es 5077 Themen mit insgesamt 100841 Beiträgen


Ähnliche Themen zu „Großes Haus“ vs „kleines Haus“ + Nebengebäude
Nr.ErgebnisBeiträge
1Grundriss, Ideen zur räumlichen Trennung innerhalb der Küche 23
2Geschlossene oder offene Küche ? 11
3Varianten für eine Ecklösung in der Küche 18
4Wohnen/Essen/Küche: Wie wohnt ihr oder werdet ihr wohnen? 52
5Planung Wohnraum & Küche eines Doppelhaushälfte in Nürnberg 13
6Probleme bei der aufteilung Küche, Essen , Wohnen 16
7Grundriss Halboffene Küche mit großem Essbereich - Detailfragen 12
8Beleuchtung in Diele und Küche: Deckeneinbau-Strahler benötigt? 19
9Feedback zur Ikea-Küche - Seite 4167
10Next 125 Küche Erfahrungen / Preiseinschätzung 39
11Heizkreise/Thermostate für Wohnen/Essen/Küche bei Fußbodenheizung/Wärmepumpe 35
12Küche über ein Jahr vor Fertigstellung kaufen? - Seite 254
13Frage zur Entwässerung / Verrohrung Küche 16
14Grundriss Einfamilienhaus - Problemfall Küche 20
15Steinwand aus Stein/Steinplatten? Wohnzimmer / Küche 69
16Esstisch in einer kleinen Küche 49
17Wasseranschluss außen aus der Küche - möglich? 39
18Maße für Küche festlegen 15
19Kleine Küche - Hilfe bei der Anordnung benötigt - Seite 532
20Jährlicher Wertverlust Küche durchschnittlich? - Seite 222

Oben