P
Pfadfinder8721.04.19 22:28Bin mir nicht sicher ob es ok ist einen weiteren Thread mit anderer Fragestellung zu eröffnen allerdings ergab sich die letzten Tage zwischen meiner Frau und mir ein “Problem” bzw. Fragestellung im Hinblick auf die Gestaltung unseres OGs. Zunächst beantworte ich aber erstmal den Fragenkatalog:
Bebauungsplan/Einschränkungen: keine bekannten, Bestandsbau, Doppelgeschosse erlaubt
Größe des Grundstücks: 560qm
Hang: -
Grundflächenzahl: -
Geschossflächenzahl: -
Baufenster, Baulinie und -grenze: 3m Grenzbebauung
Randbebauung: 3m
Anzahl Stellplatz:
Geschossigkeit: 1,5
Dachform: Satteldach 33 Grad
Stilrichtung: modern
Ausrichtung:
Maximale Höhen/Begrenzungen: -
weitere Vorgaben: keine bekannt
Anforderungen der Bauherren
Stilrichtung, Dachform, Gebäudetyp
Keller, Geschosse: 1,5 geschosse + Keller da Bestandsbau und Bestand im Ursprung zu klein. Ziel war, der alten Raumteilung des 70iger Jahrebaus mehr Fläche zu gönnen im EG sowie den Eingang so zu versetzen um einerseits Platz in der Hofeindahrtsbreite zu gewinnen als auch die Neue Treppe zum OG über die Kellertreppe zu legen. Anforderungen an neues OG: geräumiges Familienbad, mind. 2 Kinderzimmer, Schlafzimmer
Anzahl der Personen, Alter: 2 Personen (32, 26)
Raumbedarf im EG, OG: 230qm
Büro: Familiennutzung oder Homeoffice? Teils, teils. Wenn Frau in Elternzeit geht wird Mann 1 Tag Homeoffice arbeiten
Schlafgäste pro Jahr: mehr als 10 mal
offene oder geschlossene Architektur: so offen es geht
konservativ oder moderne Bauweise: so modern es noch geht
offene Küche, Kochinsel: gewünscht
Anzahl Essplätze: > 6
Kamin: wenn nur mit außenschornstein sofern noch Budget bleibt
Musik/Stereowand: nein
Balkon, Dachterrasse: nein
Garage, Carport: Garage
Nutzgarten, Treibhaus: -
weitere Wünsche/Besonderheiten/Tagesablauf, gern auch Begründungen, warum dieses oder das nicht sein soll: Frau arbeitet Schichtdienst, evtl Problem mit ankleide, die evtl. Ohnehin zu schmal geplant ist
Hausentwurf
Von wem stammt die Planung:
-Planer eines Bauunternehmens
-Architekt: Architektin
-Do-it-Yourself
Was gefällt besonders? Warum?: großzügiger Wohn- Essbereich, Eingangsbereich, Kinderzimmer sind stimmig in der Aufteilung und das EG ist so wie wir es auch in einem Neubau in etwa realisiert hätten
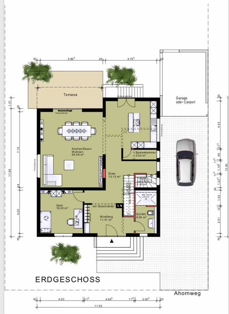
Was gefällt nicht? Warum?: “Schlauchzimmer”im OG. Der Raum ist im Prinzip zu viel. Geplant sind 2 Kinder. Der erste Entwurf (anhängend) ließ Platz für ein gleich großes drittes Kinderzimmer was alternativ als Spielzimmer hätte genutzt werden können (um Lego-Burgen oder Karrerabahn auch mal stehen lassen zu können). Nachdem die Treppe umgeplant wurde ergab sich im OG zwangsläufig eine andere Raumaufteilung. In diesem Zug wollten wir das Badezimmer lieber in Richtung Garten verlegen um dort ein normales Fenster und nicht nur Dachfenster zu haben. Zudem haben wir das Schlafzimmer ebenfalls zum Garten hin verlegen lassen. Laut unserer Architektin lässt sich wegen der Auflage der Mittelfetten nur so realisieren wenn wir das mit diesem “Schlauchzimmer” zwischen Kinderzimmer und Schlafzimmer planen. Nun fiel uns auf, dass die Ankleide recht schmal ist und man quasi direkt im Bett steht wenn man die Tür öffnet. Im Ankleide haben wir Planlinks einen Kniestock von 1,20m und 1,34m weiter rechts eine Höhe von 2m. Wir können also auf 4,50m eine Kommode in Höhe von 1,20 stellen. Zur Bettseite hin müssten wir dann Schrank und Spiegel stellen und hätten zwischen den Schränken nur 1,30m. Wieso aber, wenn man quasi dieses Nutzlose Zimmer direkt daneben hat? Habt ihr eine sinnvolle Idee, dieses Schlauchzimmer als Ankleidezimmer zu integrieren? Bett zieht mit um weil neu und hat eine Kopfhöhe von 1,20m könnte man also grade so in die Schräge schieben ♂️
Preisschätzung lt Architekt/Planer:
Persönliches Preislimit fürs Haus, inkl Ausstattung:
favorisierte Heiztechnik:
Wenn Ihr verzichten müsst, auf welche Details/Ausbauten
-könnt Ihr verzichten:
-könnt Ihr nicht verzichten:
Warum ist der Entwurf so geworden, wie er jetzt ist? ZB
Standardentwurf vom Planer?
Entsprechende/Welche Wünsche wurden vom Architekten umgesetzt?
Ein Gemisch aus vielen Beispielen aus div. Magazinen...
Was macht ihn in Euren Augen besonders gut oder schlecht?
Was ist die wichtigste/grundlegende Frage zum Grundriss in 130 Zeichen zusammengefasst: lässt sich das Zimmer im OG zwischen Kinderzimmer und Schlafzimmer sinnvoll als Ankleideraum im Schlafzimmer integrieren.
Was noch wichtig ist: Frau arbeitet im Schichtdienst und steht deswegen regelmäßig unchristlich früh auf, was mich zwar selten stört aber natürlich dennoch berücksichtigt werden kann.
Angehängt sind die ersten Entwürfe und aktuelle. Den Balkon von Entwurf 1 haben wir raus geworfen, weil wir den nie angesprochen hatten, keine halbe Terrassenüberdachung aus Decke wollen und keine Lust haben zig Euro zu zahlen für was, wo wir definitiv wissen, dass es nie genutzt wird. Und Kinder brauchen in 17 Jahren auch nicht heimlich da oben sitzen und rauchen 😀
Lageplan Parzelle 213




Bebauungsplan/Einschränkungen: keine bekannten, Bestandsbau, Doppelgeschosse erlaubt
Größe des Grundstücks: 560qm
Hang: -
Grundflächenzahl: -
Geschossflächenzahl: -
Baufenster, Baulinie und -grenze: 3m Grenzbebauung
Randbebauung: 3m
Anzahl Stellplatz:
Geschossigkeit: 1,5
Dachform: Satteldach 33 Grad
Stilrichtung: modern
Ausrichtung:
Maximale Höhen/Begrenzungen: -
weitere Vorgaben: keine bekannt
Anforderungen der Bauherren
Stilrichtung, Dachform, Gebäudetyp
Keller, Geschosse: 1,5 geschosse + Keller da Bestandsbau und Bestand im Ursprung zu klein. Ziel war, der alten Raumteilung des 70iger Jahrebaus mehr Fläche zu gönnen im EG sowie den Eingang so zu versetzen um einerseits Platz in der Hofeindahrtsbreite zu gewinnen als auch die Neue Treppe zum OG über die Kellertreppe zu legen. Anforderungen an neues OG: geräumiges Familienbad, mind. 2 Kinderzimmer, Schlafzimmer
Anzahl der Personen, Alter: 2 Personen (32, 26)
Raumbedarf im EG, OG: 230qm
Büro: Familiennutzung oder Homeoffice? Teils, teils. Wenn Frau in Elternzeit geht wird Mann 1 Tag Homeoffice arbeiten
Schlafgäste pro Jahr: mehr als 10 mal
offene oder geschlossene Architektur: so offen es geht
konservativ oder moderne Bauweise: so modern es noch geht
offene Küche, Kochinsel: gewünscht
Anzahl Essplätze: > 6
Kamin: wenn nur mit außenschornstein sofern noch Budget bleibt
Musik/Stereowand: nein
Balkon, Dachterrasse: nein
Garage, Carport: Garage
Nutzgarten, Treibhaus: -
weitere Wünsche/Besonderheiten/Tagesablauf, gern auch Begründungen, warum dieses oder das nicht sein soll: Frau arbeitet Schichtdienst, evtl Problem mit ankleide, die evtl. Ohnehin zu schmal geplant ist
Hausentwurf
Von wem stammt die Planung:
-Planer eines Bauunternehmens
-Architekt: Architektin
-Do-it-Yourself
Was gefällt besonders? Warum?: großzügiger Wohn- Essbereich, Eingangsbereich, Kinderzimmer sind stimmig in der Aufteilung und das EG ist so wie wir es auch in einem Neubau in etwa realisiert hätten
Was gefällt nicht? Warum?: “Schlauchzimmer”im OG. Der Raum ist im Prinzip zu viel. Geplant sind 2 Kinder. Der erste Entwurf (anhängend) ließ Platz für ein gleich großes drittes Kinderzimmer was alternativ als Spielzimmer hätte genutzt werden können (um Lego-Burgen oder Karrerabahn auch mal stehen lassen zu können). Nachdem die Treppe umgeplant wurde ergab sich im OG zwangsläufig eine andere Raumaufteilung. In diesem Zug wollten wir das Badezimmer lieber in Richtung Garten verlegen um dort ein normales Fenster und nicht nur Dachfenster zu haben. Zudem haben wir das Schlafzimmer ebenfalls zum Garten hin verlegen lassen. Laut unserer Architektin lässt sich wegen der Auflage der Mittelfetten nur so realisieren wenn wir das mit diesem “Schlauchzimmer” zwischen Kinderzimmer und Schlafzimmer planen. Nun fiel uns auf, dass die Ankleide recht schmal ist und man quasi direkt im Bett steht wenn man die Tür öffnet. Im Ankleide haben wir Planlinks einen Kniestock von 1,20m und 1,34m weiter rechts eine Höhe von 2m. Wir können also auf 4,50m eine Kommode in Höhe von 1,20 stellen. Zur Bettseite hin müssten wir dann Schrank und Spiegel stellen und hätten zwischen den Schränken nur 1,30m. Wieso aber, wenn man quasi dieses Nutzlose Zimmer direkt daneben hat? Habt ihr eine sinnvolle Idee, dieses Schlauchzimmer als Ankleidezimmer zu integrieren? Bett zieht mit um weil neu und hat eine Kopfhöhe von 1,20m könnte man also grade so in die Schräge schieben ♂️
Preisschätzung lt Architekt/Planer:
Persönliches Preislimit fürs Haus, inkl Ausstattung:
favorisierte Heiztechnik:
Wenn Ihr verzichten müsst, auf welche Details/Ausbauten
-könnt Ihr verzichten:
-könnt Ihr nicht verzichten:
Warum ist der Entwurf so geworden, wie er jetzt ist? ZB
Standardentwurf vom Planer?
Entsprechende/Welche Wünsche wurden vom Architekten umgesetzt?
Ein Gemisch aus vielen Beispielen aus div. Magazinen...
Was macht ihn in Euren Augen besonders gut oder schlecht?
Was ist die wichtigste/grundlegende Frage zum Grundriss in 130 Zeichen zusammengefasst: lässt sich das Zimmer im OG zwischen Kinderzimmer und Schlafzimmer sinnvoll als Ankleideraum im Schlafzimmer integrieren.
Was noch wichtig ist: Frau arbeitet im Schichtdienst und steht deswegen regelmäßig unchristlich früh auf, was mich zwar selten stört aber natürlich dennoch berücksichtigt werden kann.
Angehängt sind die ersten Entwürfe und aktuelle. Den Balkon von Entwurf 1 haben wir raus geworfen, weil wir den nie angesprochen hatten, keine halbe Terrassenüberdachung aus Decke wollen und keine Lust haben zig Euro zu zahlen für was, wo wir definitiv wissen, dass es nie genutzt wird. Und Kinder brauchen in 17 Jahren auch nicht heimlich da oben sitzen und rauchen 😀
Lageplan Parzelle 213
An dem Architektenentwurf würde ich jetzt nicht großartig rumrödeln. Das hat schon alles irgendwie seinen Sinn.
Aber Kleinigkeiten kann man natürlich unter die Lupe nehmen.
Ich finde es immer sinnvoll, die Dachschräge mit einer Schiebetür auf 2 Meter abzutrennen, um dort die Borde (extratief) und Kleiderstangen unterzubringen. Könnt man hier in der Ankleide auch. Man könnte diesen Schrank in Richtung „schmales Zimmer“ erweitern. Dort also einen weiteren Durchgang schaffen. Dadurch habt ihr die Möglichkeit, aus diesem Zimmer zum Bad zu gehen, ohne wieder ins Schlafzimmer zu gehen, ihr würdet dadurch den noch Schlafenden nicht stören. Der Rest des Raumes kann man dann tatsächlich als Nice-to-have nennen und nutzen als Hut-, Taschen-, Schuh- oder Schlipsraum bzw Schmink- oder Sportgerätplatz.
Aber Kleinigkeiten kann man natürlich unter die Lupe nehmen.
Ich finde es immer sinnvoll, die Dachschräge mit einer Schiebetür auf 2 Meter abzutrennen, um dort die Borde (extratief) und Kleiderstangen unterzubringen. Könnt man hier in der Ankleide auch. Man könnte diesen Schrank in Richtung „schmales Zimmer“ erweitern. Dort also einen weiteren Durchgang schaffen. Dadurch habt ihr die Möglichkeit, aus diesem Zimmer zum Bad zu gehen, ohne wieder ins Schlafzimmer zu gehen, ihr würdet dadurch den noch Schlafenden nicht stören. Der Rest des Raumes kann man dann tatsächlich als Nice-to-have nennen und nutzen als Hut-, Taschen-, Schuh- oder Schlipsraum bzw Schmink- oder Sportgerätplatz.
Meine Begeisterung für zwei Threads zu einem Projekt https://www.hausbau-forum.de/threads/Kostenschätzung-kniestockaufbau-und-umbau-am-bestand.30740/ hält sich generell in Grenzen. Lobenswert finde ich hingegen die Besinnung, auf die Umstrickerei der Treppe zu verzichten. Den "treppenerhaltenden" Entwurf zöge ich also vor, allerdings ohne den Balkon.
https://www.instagram.com/11antgmxde/
https://www.linkedin.com/company/bauen-jetzt/
https://www.instagram.com/11antgmxde/
https://www.linkedin.com/company/bauen-jetzt/
H
hampshire22.04.19 09:16Mir gefällt der erste Entwurf mit der geraden Treppe nach oben besser. Oben wie unten. Wenn man im 1. OG zu viel Platz hat, kann man den Balkon vergrößern.
hampshire schrieb:
Mir gefällt der erste Entwurf mit der geraden Treppe nach oben besser.Nicht vergessen: wir reden hier ja von Umbau, und die gerade Treppe ist in diesem Fall vorhanden. Die andere Treppenlage gefällt mir so mickrig miniminimalst besser, daß es zum Aufwand in keinstem Verhältnis stünde.https://www.instagram.com/11antgmxde/
https://www.linkedin.com/company/bauen-jetzt/
Ähnliche Themen