Finanzierung Bauvorhaben Einfamilienhaus 140qm + Keller (Bayern)

4,60 Stern(e) 7 Votes
Zuletzt aktualisiert 19.11.2025
Sie befinden sich auf der Seite 5 der Diskussion zum Thema: Finanzierung Bauvorhaben Einfamilienhaus 140qm + Keller (Bayern)
>> Zum 1. Beitrag <<

face26

face26

Ergänzungen hinter dem Zitierten:

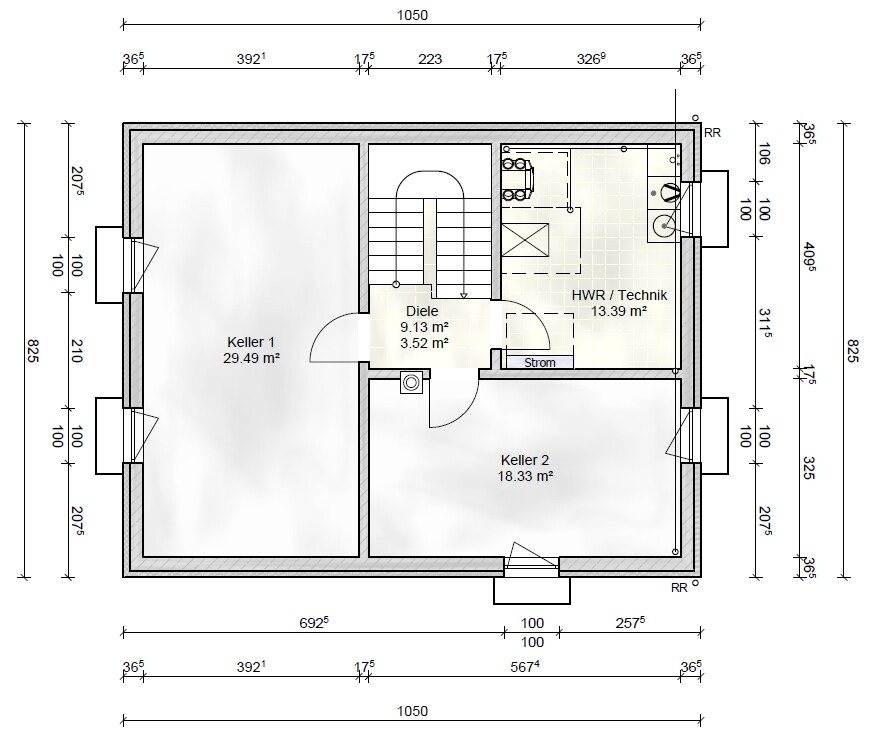
Holzständerbauweise
Maße: 10,50 m auf 8,25m
Wohnfläche: 130 qm

Folgende Preise (aufgerundet) werden für die Schlüsselfertige Ausführung aufgerufen.

Grundpreis: 241.000€ (inkl. Holz Aluminium Fenster & Haustüre von Höhbauer) Kann man ja schlecht bewerten ohne zu wissen was genau inkludiert ist und in welchem Standard
Heizung: 29.000€ (IDM - iPump A3-11) Wird das noch genauer berechnet? Was willst bei 130qm mit dem großen Klopper? Bei Holzständer sollte der energ. Standard nicht so schlecht sein. Ist das schon inkl. Fußbodenheizung oder soll das nur der Aufpreis zu dann welcher Heizung sein?
Wohnraumlüftung: 14.500 € (Zehnder Comfoair Q350) Bewegt sich vermutl. an der oberen Grenze des normalen Rahmens
Sanitär inkl. Badausstattung: 20.000€ (Richter + Frenzel Serie MyStyle) Auch hier was ist im Grundpris dabei?
Elektro: 16.000€ (elektrische Raffstores im EG und Rollläden im OG) OG Aluminium oder Kunststoff? Elektrisch betrieben. Was ist in Elektro dabei
E-Strich: 3.800 €
Spachteln/Verfugen: 11.000€
Malerarbeiten: 4.800 €
Fliesen inkl. 40€/qm Material: 12.500€ Wieviel QM insgesamt
Parkett inkl. 50€/qm Material: 10.800€ Wieviel Qm insgesamt
Innentüren: 4.800€
Geschosstreppen: 8.000€

Bis hier hin hab ich einen QM-Preis von 2.700€ überschlagen. Das ist schon nicht ganz günstig aber ohne zu genauere Details zu kennen schwer zu bewerten. Einige Dinge sind natürlich schon eher gehoben die es teurer machen (Holz-Aluminium Fenster, Kontrollierte-Wohnraumlüftung, Raffstor usw.

Nutzkeller: ca. 70.000€
Ausbau Keller: 32.500€
Photovoltaik: ca. 12.000€ für 10 KW

Gesamt: ca. 490.000€
 
S

stoecklj

Ergänzungen hinter dem Zitierten:

Holzständerbauweise
Maße: 10,50 m auf 8,25m
Wohnfläche: 130 qm

Folgende Preise (aufgerundet) werden für die Schlüsselfertige Ausführung aufgerufen.

Grundpreis: 241.000€ (inkl. Holz Aluminium Fenster & Haustüre von Höhbauer) Kann man ja schlecht bewerten ohne zu wissen was genau inkludiert ist und in welchem Standard
Die u. g. Einzelpunkte sind nur das Material/Ausstattung, die Installation etc. ist im o.g. Grundpreis enthalten.
Heizung: 29.000€ (IDM - iPump A3-11) Wird das noch genauer berechnet? Was willst bei 130qm mit dem großen Klopper? Bei Holzständer sollte der energ. Standard nicht so schlecht sein. Ist das schon inkl. Fußbodenheizung oder soll das nur der Aufpreis zu dann welcher Heizung sein?
- Ja ist inkl. Fußbodenheizung, Verlegung etc.
- Hab ich mir nach der ersten Recherche auch gedacht.
Wohnraumlüftung: 14.500 € (Zehnder Comfoair Q350) Bewegt sich vermutl. an der oberen Grenze des normalen Rahmens
Sanitär inkl. Badausstattung: 20.000€ (Richter + Frenzel Serie MyStyle) Auch hier was ist im Grundpris dabei?
Im Grundpreis nichts, alles hier in Sanitär
Elektro: 16.000€ (elektrische Raffstores im EG und Rollläden im OG) OG Aluminium oder Kunststoff? Elektrisch betrieben. Was ist in Elektro dabei
- Rollläden in Aluminium, auch elektrisch
- Standardausstattung mit zu wenig
E-Strich: 3.800 €
Spachteln/Verfugen: 11.000€
Malerarbeiten: 4.800 €
Fliesen inkl. 40€/qm Material: 12.500€ Wieviel QM insgesamt
ca. 83 qm,
Parkett inkl. 50€/qm Material: 10.800€ Wieviel Qm insgesamt
ca. 100 qm
Innentüren: 4.800€
Geschosstreppen: 8.000€

Bis hier hin hab ich einen QM-Preis von 2.700€ überschlagen. Das ist schon nicht ganz günstig aber ohne zu genauere Details zu kennen schwer zu bewerten. Einige Dinge sind natürlich schon eher gehoben die es teurer machen (Holz-Aluminium Fenster, Kontrollierte-Wohnraumlüftung, Raffstor usw.

Nutzkeller: ca. 70.000€
Ausbau Keller: 32.500€
Photovoltaik: ca. 12.000€ für 10 KW

Gesamt: ca. 490.000€
 
P

pagoni2020

Ups....das hat ja aber Nichts mehr zu tun mit Deinem Ursprungsplan oder ?
Ich denke, Du solltest Manches erläutern wie das Wohnzimmer im OG etc, das versteht sonst Niemand.
Den sog. Allraum bei weitgehend geschlossener Küche finde ich knapp bemessen, das WZ ist ein Durchgangszimmer.
Deinen Ursprungsgrundriss fand ich vom Grundsatz her modern und spannend, diesen jetzt eher bieder und beengt, wenn ich das so sagen darf.
 
S

stoecklj

Ich weiß... wir haben uns aber aus folgenden Gründen vom Ursprungsplan entfernt...
- von einer langen geraden Treppe wurden uns wegen Platzbedarf abgeraten bzw. kreiert einen zu großen Flur im OG
- Das Wohnzimmer(TV Zimmer) wandert ins OG weil in der südwestlichen Ecke im EG nur eine "kleine" Leseecke vorm Kamin geplant wird
- Die Schiebetür in die Küche wird nicht allzu oft zu sein... evtl. nur bei einem großen Kochgelage mit Gästen
 
Zuletzt aktualisiert 19.11.2025
Im Forum Liquiditätsplanung / Finanzplanung / Zinsen gibt es 3219 Themen mit insgesamt 71161 Beiträgen


Ähnliche Themen zu Finanzierung Bauvorhaben Einfamilienhaus 140qm + Keller (Bayern)
Nr.ErgebnisBeiträge
1Ablufthaube bei Kontrollierte-Wohnraumlüftung: Eure Erfahrungen? - Seite 230
2Aufmusterung Elektro, Q2, Badfliesen, Drempel, bodentiefe Fenster 23
3Kontrollierte-Wohnraumlüftung und trotzdem nachts Fenster auf - Seite 671
4offene Küche: Abluft oder Umluft bei Kontrollierte-Wohnraumlüftung & KfW55 - Seite 340
5Öffnungsmöglichkeit der Fenster mit Kontrollierte-Wohnraumlüftung - Ideen zur Planung 60
6Nicht-bodentiefe Fenster im Wohnzimmer unmodern? Welche Vorhänge? - Seite 217
7Heizung in Küche "notwendig"? - Seite 235
8Angebot für Heizung / Sanitär / Lüftung so realistisch? - Seite 355
9Zehnder Comfoair Q350 Lage der Lüftungsgitter 16
10Zehnder ComfoAir Q350 TR Erfahrungen - Seite 421
11Holz-Aluminium-Fenster vs. Kunststoff-Fenster - Seite 222
12Holz-Aluminium-Fenster worauf achten 17
13Weniger öffenbare Fenster mit Kontrollierte-Wohnraumlüftung 30
14Hersteller Heizung / Kontrollierte-Wohnraumlüftung gesucht 10
15Kombination Fliesen und Parkett im Wohnzimmer mit offener Küche - Seite 330
16Grundrissplanung Wohnzimmer-Küche 18
17Kontrollierte-Wohnraumlüftung Schläuche ohne Keller verlegen? 12
18Kontrollierte-Wohnraumlüftung Lüftungsanlage - Entscheidungshilfe 31
19Luft-Wasser-Wärmepumpe oder Gas+Kontrollierte-Wohnraumlüftung im 135qm Einfamilienhaus? - Seite 219
20Beschlagene Fenster trotz Lüftungsanlage 49

Oben