Fertighausplanung Doppelhaushälfte mit Budgetlimit

4,80 Stern(e) 4 Votes
Zuletzt aktualisiert 07.10.2025
Sie befinden sich auf der Seite 4 der Diskussion zum Thema: Fertighausplanung Doppelhaushälfte mit Budgetlimit
>> Zum 1. Beitrag <<

kbt09

kbt09

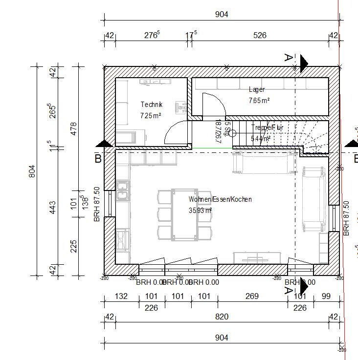
Damit du mal realistische Größenverhältnisse bekommst, auf die Schnelle einen Entwurf.

Keller mit
  • Wohnen/Essen/Kochen
  • Technikraum
  • Lagerraum
  • Treppe nach oben
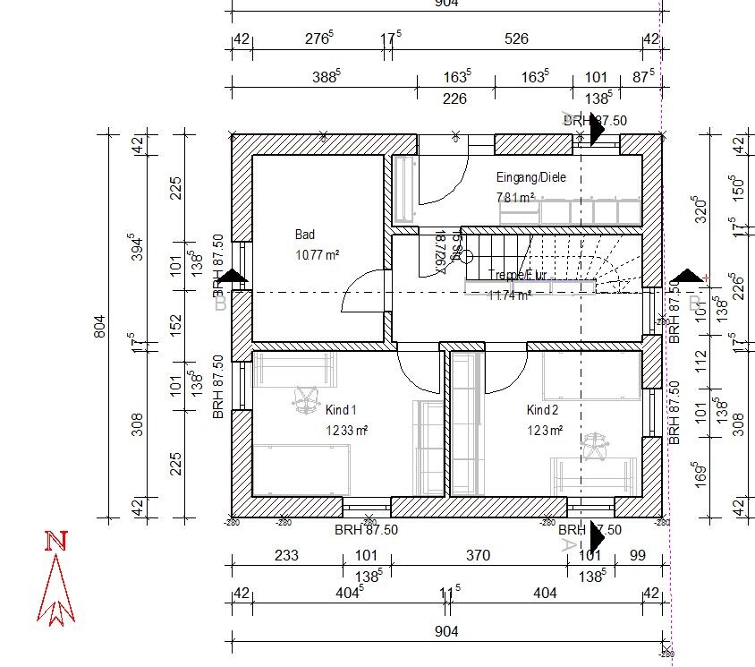
EG mit
  • Eingang/Diele von Treppe getrennt
  • Kind 1 und 2
  • Bad
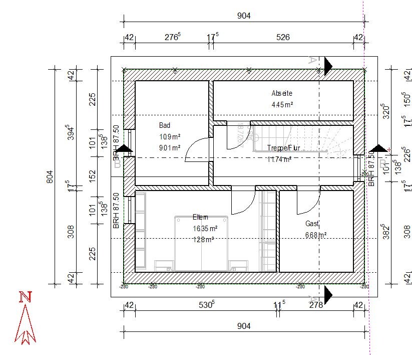
DG mit (hier jeweils Bodenfläche und berechnete Wohnfläche angegeben)
  • Eltern
  • kleinem Gastzimmer
  • Bad
  • Abseite für Koffer usw. Höhe fast überall unter 2 m
Gesamtflächen:

Uebersicht eines Grundrisses mit Gesamtwohnflaeche DG EG Keller


Mögliche Grundrisse:

Grundriss eines Hauses: Wohn-/Ess-/Küche, Technikraum, Lager, Flur.

Grundriss eines Hauses, Obergeschoss: Bad, zwei Kinderzimmer, Eingangsbereich und Treppe.

Grundriss eines Einfamilienhauses: Badezimmer, Elternzimmer, Gästezimmer, Abseite, Treppe und Flur.


Ansichten und Schnitt:

Weißes Haus mit spitzem Dach auf grünem Hang vor blauem Himmel, Fenster sichtbar.

Kleines weißes Einfamilienhaus mit dunkelgrauem Ziegeldach auf grünem Rasen, isometrische Ansicht.

Schnitt A-A durch ein mehrstöckiges Haus; Innenräume, Treppen und Fenster sichtbar.



Welche der Fenster auf der Ostseite tatsächlich realisiert werden könnten, müßte man von der anderen Doppelhaushälfte abhängig machen.

Kosten sehe ich aber ähnlich wie die vielen Experten hier. Denn, ich denke, für eine vernünftige Positionierung des Hauses ist bei einem Gesamthöhenunterschied von 200 cm auch viel Erdarbeit notwendig.

Ich weiß ja auch nicht, auf was du die 130 qm bezogen hast ... ohne Keller? Das wird eben bei den Außenmaßen nicht aufgehen, wie du hier schön siehst.
 
timmaed

timmaed

So liebe Leute, danke für eure Zeit und Mühe. Ich denke, ich hab es verstanden...
Bin dann gestern und heute noch mal durch alle möglichen Threads im Forum gestöbert... Ist ja im Prinzip immer das Gleiche:
Ja, hier mal Hausbauen und so ... 300k€ Budget ... Forum so: Nee, lass mal.

Ich lese, da gehts vielen so wie mir... Deshalb einen großen Dank an euch für die freundliche Beantwortung meiner x-ten Anfrage zum gleichen Thema!

Deine Anforderungen sind in deinem Kostenlimit leider schlicht weg nicht zu realisieren.
... Dafür kriegst Du eine Jagdhütte.... [...]
Wenn Du hier schon viel gelesen hast, dann verstehe ich nicht ganz, wie man so blauäugig sein kann.
Das Forum ist ja sehr umfangreich, da kann er schon ne ganze Weile lesen, bis einem Blauäugigen sowas auffällt.

[...] all in geschätztes Investment: TEUR 495

Ich vermute, eine ETW wäre beim Wunschbudget die klügere Entscheidung
Bei der ETW und beim Gebrauchthaus sind wir schon länger auf der Suche. ETW ist auch erste Wahl. An das Grundstück kamen wir eher durch Zufall: Plötzlich hatte sich eine riesige Warteliste in Luft aufgelöst und wir bekamen die Möglichkeit. Ein möglicher Grund für die plötzliche Auflösung dieser langen Liste kommt mir da ja jetzt in den Sinn.

Ich frage mich, wer so viel Geld für ein Haus ausgeben kann und wie manche Zauberer angeblich mit 1100€/m² auskommen können.

[...] Treppe ... jeder latscht also erst mal durch den Wohnbereich (wie willst du da Sofa etc. stellen?) um ins OG zu kommen.
Ja, die Idee war eine saubere Wohnung mit einem "kommunikativen", zentralen Wohnbereich.

Die Treppe wird zudem daran scheitern, dass wohl die Durchgangshöhe ab Podest nach unten zu knapp wird.
Womit du absolut Recht hast.

Damit du mal realistische Größenverhältnisse bekommst, auf die Schnelle einen Entwurf.
[...]
Danke, deine Idee gefällt mir gut! Ich habe das so ähnlich in einem Einfamilienhaus bei einer Besichtigung gesehen und muss sagen, dass mir/uns das in so guter Erinnerung geblieben ist, dass wir heute noch darüber sprechen.

Ich geh' dann jetzt mal wieder... Danke und Tschüss!
 
P

Payday

So liebe Leute, danke für eure Zeit und Mühe. Ich denke, ich hab es verstanden...
Bin dann gestern und heute noch mal durch alle möglichen Threads im Forum gestöbert... Ist ja im Prinzip immer das Gleiche:
Ja, hier mal Hausbauen und so ... 300k€ Budget ... Forum so: Nee, lass mal.
der Witz ist ja, das die Leute recht haben. man rechnet es sich schön oder vergisst einfach etliche wichtige posten. wir haben mit 250.000€ Gesamtkosten angefangen bei einen 30.000€ Grundstück. das wäre mit ganz viel liebe bei einen billigheimer geworden. nach und nach kamen wir dann auf 330.000€ komplett inkl. 63.000€ Grundstück (ohne Nebenkosten).
während der Bauphase landeten wir am ende bei 340.000€ wegen 2 "Kleinigkeiten" (Bodenarbeiten).
als das Haus dann stand kamen nur noch mal mittlerweile 25.000€ für auffahrt und Carport und Ein bisschen Kleinkram wie Farbe usw dazu.
sind also jetzt bei 365.000€ für ein 125qm Haus OHNE Keller auf einen flachen Grundstück. bis zur Fertigstellung des außenbereichs gehen noch mal locker 5-8000 darauf.

also 500.000€ halte ich von Bauexperte auch maßlos übertrieben aufgerundet. aber für 300.000€ inkl. Grundstück sehe ich schwarz. ohne Grundstücks wird das für 300.000€ was werden mit deinen Eigenleistungen.
 
Zuletzt aktualisiert 07.10.2025
Im Forum Bauplanung gibt es 5061 Themen mit insgesamt 100646 Beiträgen


Ähnliche Themen zu Fertighausplanung Doppelhaushälfte mit Budgetlimit
Nr.ErgebnisBeiträge
1200m2 Einfamilienhaus für 4-5 Personen ohne Keller auf schmalem Grundstück 67
2Grundrissoptimierung Einfamilienhaus mit Keller auf kleinem Grundstück - Seite 5178
3Einfamilienhaus 220qm mit Keller auf 700qm Grundstück 41
4Grundriss-Entwurf: Einfamilienhaus; mit Keller; 800qm Grundstück 10
5Budget Grundstück und bauen mit Keller 21
6Keller oder Grundstück begradigen? 43
7Einfamilienhaus bauen mit/ohne Keller bei kleinem Grundstück - Seite 765
8Einfamilienhaus 160m2 mit Keller, 500m2 Grundstück 108
9Straße ca. 50cm über Grundstück - Auffüllen oder Keller 24
10Teures Grundstück + Einfamilienhaus 155 qm + Keller KFW40+, finanzierbar? - Seite 260
11Bebauung Grundstück - Keller ja oder nein? 75
12Grundriss-Entwurf: Einfamilienhaus mit Keller; 560qm Grundstück - Seite 365
13Einfamilienhaus 2 Stockwerke ohne Keller -Grundriss -Kosten -Umsetzbarkeit? 24
14Suche nach Ideen für Grundstück mit Hanglage 28
15Neue Planversion zu meinem Grundstück 22
16Grundriss Einfamilienhaus mit Keller - Seite 219
17Planung/Grundriss Einfamilienhaus (ca. 140 qm, Keller, EG, DG) - Seite 430
18Grundrisse für Einfamilienhaus, ca. 140m², ohne Keller 78
19Haus mit Keller oder ohne? - Seite 349
20Einfamilienhaus (2Etagen+Wohn-Keller+ausgebautes Dach) etwa 200qm -Änderungen - Seite 9162

Oben