Feedback zum Grundriss - Einfamilienhaus Flachdach

4,00 Stern(e) 16 Votes
Zuletzt aktualisiert 23.11.2025
Sie befinden sich auf der Seite 2 der Diskussion zum Thema: Feedback zum Grundriss - Einfamilienhaus Flachdach
>> Zum 1. Beitrag <<

W

Wugler1978

Eine Anmerkung zu der Garage. Habt ihr euer Grundstück schon nivelliert? Bei uns (keine sichtbaren Höhenunterschiede) ist nach Nivellierung plötzlich das Problem aufgetreten, das die Garage 3,3m hoch ist und somit Grenzabstände eingehalten werden müssen. Dann kannst du nicht mehr bis an die Grundstücksgrenze bauen.
 
B

Bookstar

Garage, Ankleide, Bad und Speis sind in meinen Augen zu klein. Aber Lösung hab ich keine, da sonst wohl das Budget (wo liegt es, 1 Mio?) Ggfs. gesprengt wird.
 
Z

Zaba12

Zeichnet unbedingt eure Wunschmöblierung im Maßstab ein
Gute Hinweis, denn dein Essraum mit 4m Tiefe ist eine Mogelpackung was die Darstellung angeht. Kannst ja selbst überlegen und rechnen.

- Um bequem zu sitzen bzw. Stühle/Sessel am Tisch gestellt zu bekommen benötigst Du 1m für die erste Stuhlreihe
- Der Tisch nimmt auch noch mal 1m ein
- Ebenso die 2 Stuhlreihe.

->Damit hast du entweder auf der einen oder andern Seite (Kannst Dir aussuchen ob Plan unten der Plan oben) des Essraums nur noch 1m Platz.

Und sieht das im Grundriss so aus? NEIN!!! Daher den oberen Rat beherzigen und nicht alles versuchen schönzureden
 
RomeoZwo

RomeoZwo

Hallo,
auch wenn ich gefühlt zu den wenigen Freunden der kubistischen Architektur hier im Forum gehöre, gebe ich hier dem grazilen grauen Tier mit dem lange Rüssel (11ant) recht ... bei deinem Entwurf sind irgendwie zu viele Ecken und dann noch diese erzwungenen Rundung nur im EG vorhanden. Das solche Rundungen durchaus zur Bauhaus Architektur passen sieht man ja zum Beispiel an der Weißenhofsiedlung in Stuttgart, aber da wird es konsequenter angewandt (Haus Scharoun). Bei dir wirkt es wie der verzweifelte Versuch des Architekten sich krampfhaft auf den ersten Blick vom Fertighausbauer unterscheiden zu müssen.
Als Anhang hab ich zwei schnelle Skizzen, die das Haus insgesamt wenig ändern, die Linien zur Strasse etwas ruhiger gestalten und trotz etwas mehr Fläche damit vermutlich die Baukosten senken.


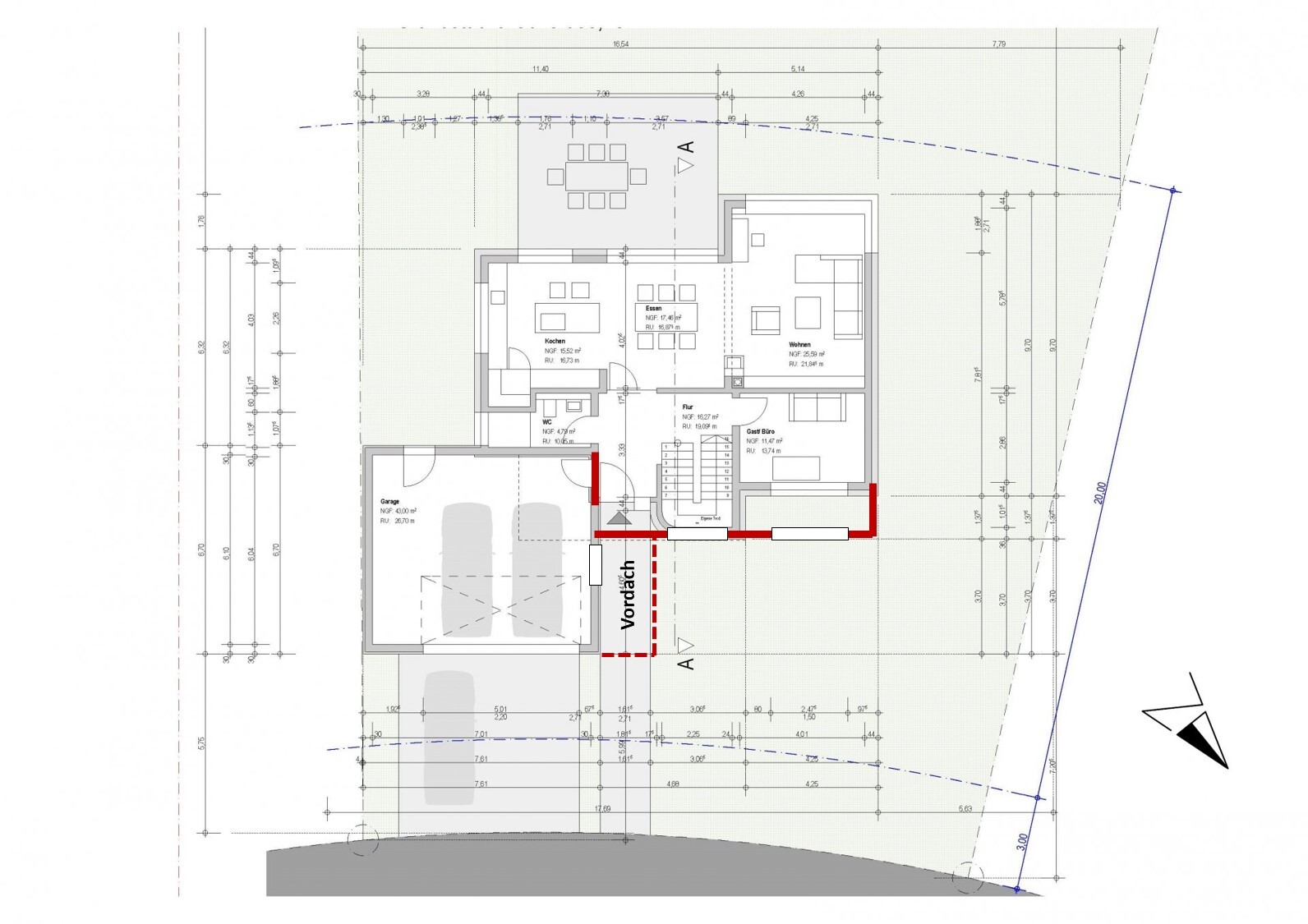
Grundriss eines Einfamilienhauses mit Garage, Vordach, Küche, Essen und Wohnen.


Grundriss eines Hauses: Schlafzimmer, Flur, Bad, zwei Kinderzimmer; rote Wände markiert.


Du könntest dann noch die Tür zur Garage von der Diele unter ein Vordach verlegen. Vorteile sind, Platz für eine Garderobe, kein "Einbruch Problem" von der Garage ins Haus, keine optisch hässliche Außentür von der Garage in die Diele. Und hey, dein Architekt kann ja das Vordach abrunden .
Das Arbeitszimmer würde dabei etwas größer, genauso wie Kind 2, wobei hier die Wand nach Süden ja etwas zurück versetzt werden könnte um diese komische Ecke am Schornstein zu vermeiden.

Das beschriebene sind Dinge, die ich ändern würde. Teils aus Erfahrung, teils aus Geschmack. Aber insgesamt gefällt mir dein Haus gut!
 
Zuletzt aktualisiert 23.11.2025
Im Forum Grundrissplanung / Grundstücksplanung gibt es 2535 Themen mit insgesamt 87992 Beiträgen


Ähnliche Themen zu Feedback zum Grundriss - Einfamilienhaus Flachdach
Nr.ErgebnisBeiträge
1Bungalow mit 140qm und Garage im Grundriss 13
2Grundriss mit Garage auf Grundstück realisierbar? - Seite 329
3Grundriss Einfamilienhaus (ca. 170 qm) mit Garage - Hanglage 35
4Grundriss 140 m2 Einfamilienhaus mit Garage - Hausausrichtung ok? - Seite 218
5Einfamilienhaus-Grundriss 170 qm für 4 Personen mit Garage 20
6Grundriss Bungalow 150qm mit Garage 79
7Grundriss Einfamilienhaus mit Keller und Garage - Seite 250
8Grundriss Einfamilienhaus, 200m2, 2 Vollgeschosse, Garage, ohne Keller 39
9Grundriss Einfamilienhaus mit 240m² mit Einliegerwohnung 75m² und Garage 39
10Grundriss Einfamilienhaus ca. 135 m³, Grundriss. Garage, 1,5 Geschossig, 4 Personen 11
11Grundriss Doppelhaushälfte - Feedback erwünscht :-) 12
12Meinungen zum Grundriss Bungalow 42
13Meinung zu Grundriss - 2-geschossiges Einfamilienhaus - Seite 438
14Grundriss Einfamilienhaus, ~180m², Keller mit Satteldach - Seite 281
15Grundriss - Planung Einfamilienhaus 2 Vollgeschosse - Stadtvilla 113
16Grundriss für eine Stadtvilla mit Satteldach 140qm2 72
17Technikraum in Garage einbauen? Ist dies möglich? - Seite 335
18Meinungen zu Grundriss "Haus am Hang" erbeten - Seite 231
19Grundriss, Wohnbereich zu eng, Ideen / Vorschläge 17
20Grundriss erster Entwurf - Meinungen erwünscht 21

Oben