L
Lassemann04.11.14 22:16Hallo zusammen,
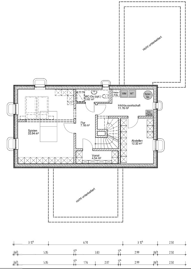
wir haben uns nun auch entschlossen, selber zu bauen ..... nach 3 Jahren endloser Suche. Nun haben wir ein Grundstück gefunden und auch gekauft. Da das Baufenster nicht riesig ist (bebaute Fläche darf Max. 125 qm sein) und wir bei WIO gerne ca. 190 qm Wohnfläche erzielen wollen, haben wir lange mit unserem Architekten getüftelt und folgendes geplant. Was meint Ihr? Den äußeren Grundriss wollen wir nun gerne beibehalten aber die inneren Wände liessen sich zum großen Teil noch schieben.
Was haltet Ihr von unserer Idee? Habt Ihr noch Feinschliff-Ideen?
Vielen Dank und viele Grüße



wir haben uns nun auch entschlossen, selber zu bauen ..... nach 3 Jahren endloser Suche. Nun haben wir ein Grundstück gefunden und auch gekauft. Da das Baufenster nicht riesig ist (bebaute Fläche darf Max. 125 qm sein) und wir bei WIO gerne ca. 190 qm Wohnfläche erzielen wollen, haben wir lange mit unserem Architekten getüftelt und folgendes geplant. Was meint Ihr? Den äußeren Grundriss wollen wir nun gerne beibehalten aber die inneren Wände liessen sich zum großen Teil noch schieben.
Was haltet Ihr von unserer Idee? Habt Ihr noch Feinschliff-Ideen?
Vielen Dank und viele Grüße
L
Lassemann04.11.14 22:32Ich finde es eigentlich auch ganz gut. Auch die Außenansicht ist super. Ich mag diesen Stil.
Zum "Feinschliff":
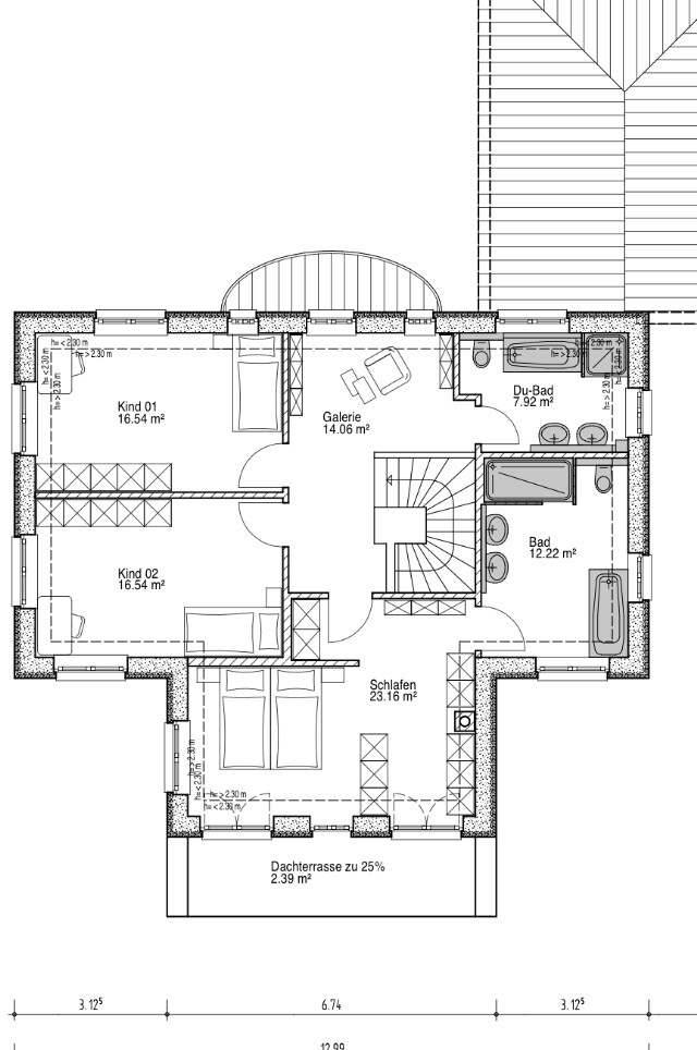
warum macht ihr die Kinderzimmertüren press an die Wand? Lasst doch zur Wand ca. 65cm Platz, dann könnt ihr da noch Möbel stellen und ihr lauft nicht als erstes gegen eine Schrankwand, wenn ihr zur Tür reinkommt.
Mehr seh ich im Moment nicht, was man verbessern könnte
Zum "Feinschliff":
warum macht ihr die Kinderzimmertüren press an die Wand? Lasst doch zur Wand ca. 65cm Platz, dann könnt ihr da noch Möbel stellen und ihr lauft nicht als erstes gegen eine Schrankwand, wenn ihr zur Tür reinkommt.
Mehr seh ich im Moment nicht, was man verbessern könnte
Hallo Lassemann,
danke für die Ansichten.
Ihr habt Euch einen guten Architekten ausgesucht. Ich finde den "Anbau" mit dem Arbeitszimmer gut durchdacht - eventuell könntet Ihr dort den Tipp bekommen, auf die Barrierefreiheit im Gäste-WC zu achten, falls der Trakt umfunktioniert werden muss
Ich habe wegen der Fenster nach den Ansichten gefragt - der Grundriss stimmt nicht mit den Ansichten überein Nun denn, achtet im Schlafzimmer und Wohnbereich einfach mal auf die Möglichkeiten, einen TV zu stellen... nicht, dass Ihr Euch hinterher ärgert, weil keine Stellfläche vorhanden ist.
Du hast recht: Ansichten sind sehr oft Geschmackssache: ich aus dem Bereich LK Harburg kenne den Baustil, mag die neuen Villen in der Ansicht, möchte selbst nicht drin wohnen (ich bevorzuge den puristischen Stil), dennoch: ein schickes Haus, auch innen.
Ich schaue morgen oder Ü-morgen noch mal darauf, vlt fallen dann irgendwelche Schnitzer auf
Ich würde eine schöne Kochinsel in die Küche setzen - auf kleinen Tisch verzichten.
Gruss Yvonne
danke für die Ansichten.
Ihr habt Euch einen guten Architekten ausgesucht. Ich finde den "Anbau" mit dem Arbeitszimmer gut durchdacht - eventuell könntet Ihr dort den Tipp bekommen, auf die Barrierefreiheit im Gäste-WC zu achten, falls der Trakt umfunktioniert werden muss
Ich habe wegen der Fenster nach den Ansichten gefragt - der Grundriss stimmt nicht mit den Ansichten überein Nun denn, achtet im Schlafzimmer und Wohnbereich einfach mal auf die Möglichkeiten, einen TV zu stellen... nicht, dass Ihr Euch hinterher ärgert, weil keine Stellfläche vorhanden ist.
Du hast recht: Ansichten sind sehr oft Geschmackssache: ich aus dem Bereich LK Harburg kenne den Baustil, mag die neuen Villen in der Ansicht, möchte selbst nicht drin wohnen (ich bevorzuge den puristischen Stil), dennoch: ein schickes Haus, auch innen.
Ich schaue morgen oder Ü-morgen noch mal darauf, vlt fallen dann irgendwelche Schnitzer auf
Ich würde eine schöne Kochinsel in die Küche setzen - auf kleinen Tisch verzichten.
Gruss Yvonne
Ähnliche Themen